4.9
Рейтинг на основании 120 отзывов
Дмитров
Опорный проезд 28Б
(индустриальный парк Ниагара)
Бренд "Дмитров-Дело" c 2008 года на рынке строительства в Дмитрове
Звоните 9:00 до 18:00 8 (915) 055-33-61
Бренд "Дмитров-Дело" c 2008 года на рынке строительства в Дмитрове

Загородный дом из клееного бруса «Эридан 2»

Стоимость проекта от:
69 300 ₽
БЕСПЛАТНО! ПРИ ЗАКАЗЕ СТРОИТЕЛЬСТВА
Стоимость строительства от:
10 755 360 ₽
Артикул ART-11622
Дата 25.12.2025
Архитектурный стиль Европейский
Количество надземных этажей 2
Круглогодичное проживание Да
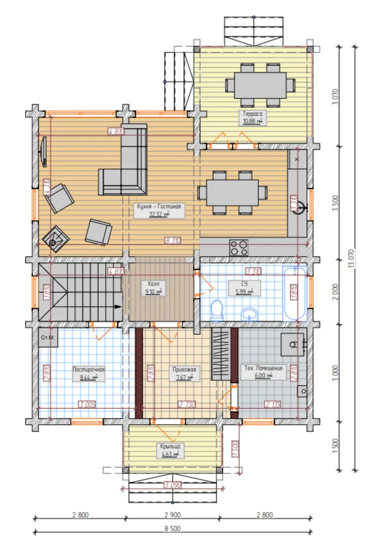
Площадь дома 154 м2
Санузлы 2
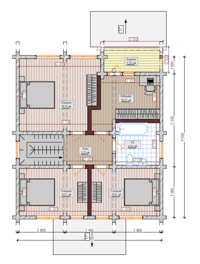
Спальни 3

Описание

**Живи, как будто рядом всегда лето.** Загородный дом «Эридан 2» – это идеальное сочетание скандинавской простоты и европейского уюта. Внутри два надземных этажа, выполненные из клееного бруса, создают ощущение тепла и благополучия даже в самые холодные дни. Величественная двухскатная крыша, покрытая качественной черепицей, подчеркивает классический стиль, а профилированный брус в наружных стенах придаёт дому современный, но при этом надёжный вид. Уникальный архитектурный ансамбль предусматривает только один балкон/лоджию, где можно наслаждаться свежим воздухом и любоваться зеленью окрестностей, а просторная терраса открывает новые горизонты для отдыха и развлечений: вечерние гриль‑вечера, занятия йогой под открытым небом или просто чтение книги в тишине природы. Дом рассчитан на круглогодичное проживание, что делает его идеальным местом как для постоянного отдыха, так и для полноценного жилья. Эргономичный план без чердачных помещений и приёмы гаража позволяет полностью «расправить ноги» и окунуться в гармонию дома без лишних забот. «Эридан 2» – это ваш личный уголок, где каждый день начинается с природного вдохновения, а завершает уютом и теплом, созданным специально для современного человека, ценящего качество и красоту.

Характеристики дома

Архитектурный стиль
Автоматизированное регулирование параметров теплоносителя
Нет
Балконы/лоджии
1
Чердачное помещение
Нет
Датчики протечки воды
Нет
Эксплуатируемая или зеленая кровля
Нет
Электроснабжение
Индивидуальное
Газоснабжение
Индивидуальное
Изоляция воздушного шума
Нет
Камин
Да
Класс энергоэффективности
-
Класс энергосбережения
-
Количество надземных этажей
2
Круглогодичное проживание
Да
Материал кровли
Металлочерепица
Материал перекрытий
Деревянные
Материал внешних стен
Материал внутренних перегородок
Деревянные
Модульное строительство с конструкциями заводского изготовления
Нет
Объем надземной части
743 м3
Основной материал фасадов
Дерево
Отопление
Индивидуальное
Площадь дома
154 м2
Площадь застройки
96 м2
Подвальное помещение
Нет
Показатель компактности здания
-
Приборы учета тепловой энергии
Нет
Пристроенный гараж/крытая автостоянка
Нет
Противопожарная система
Нет
Санузлы
2
Совмещенная кухня-гостиная
Да
Спальни
3
Терраса
Да
Тип фундамента
Плитный
Тип кровли
Толщина внешних стен
190 мм
Толщина внутренних перегородок
190 мм
Улучшенные шумовые характеристики
Нет
Вентиляция
Естественная
Веранда
Нет
Водоотведение
Локальные очистные сооружения
Водоснабжение
Индивидуальное
Высота дома
7.74 м
Высота потолков
2.63 м

Планировка

Фасад дома

Александр

Закажите выезд инженера

Александр

Выездной инженер
Закажите выезд инженера для точной диагностики и профессиональной консультации по инженерным системам. Специалист приедет в удобное время, проведёт осмотр, рассчитает стоимость работ и подберёт оптимальные решения для вашего дома.


    Похожие проекты

    Ипотека и
    рассрочка
    Дом по семейной ипотеке Пригородный — 154
    Стоимость от:
    8 871 120
    Проект от: 66 600
    Этажей 2
    Санузлы 2
    Спальни 4
    Смотреть
    Ипотека и
    рассрочка
    Одноэтажный дом Барнхаус 160.7
    Стоимость от:
    8 516 530
    Проект от: 62 550
    Этажей 1
    Санузлы 1
    Спальни 3
    Смотреть
    Ипотека и
    рассрочка
    Одноэтажный газобетонный дом в скандинавском стиле «Стетманн»
    Стоимость от:
    13 615 580
    Проект от: 89 550
    Этажей 1
    Санузлы 2
    Спальни 3
    Смотреть
    Ипотека и
    рассрочка
    Мираж-1
    Стоимость от:
    6 426 420
    Проект от: 40 950
    Этажей 1
    Санузлы 2
    Спальни 3
    Смотреть
    Ипотека и
    рассрочка
    Модульный дом FL 103 (Х103)
    Стоимость от:
    6 803 940
    Проект от: 54 900
    Этажей 1
    Санузлы 2
    Спальни 4
    Смотреть
    Ипотека и
    рассрочка
    Жилой Дом «КС-2»
    Стоимость от:
    8 277 280
    Проект от: 46 800
    Этажей 1
    Санузлы 1
    Спальни 3
    Смотреть

    Как узнать стоимость дома

    back
    Оставляете заявку
    Вы заполняете форму на сайте или звоните нам. Менеджер Лайвкрафт связывается с вами для уточнения деталей: тип дома, площадь, материалы, участок строительства.
    back
    Консультация и подбор решения
    Наш специалист помогает выбрать оптимальный тип дома и конструкцию с учётом бюджета, сроков и целей — будь то дом для постоянного проживания или дача.
    back
    Расчёт предварительной стоимости
    Инженер делает первичный расчёт стоимости строительства по вашим параметрам: фундамент, коробка, кровля, отделка. Вы получаете смету с разбивкой по этапам.
    back
    Корректировка и утверждение сметы
    При необходимости вносим изменения — например, замену материалов или сокращение этапов. После согласования формируется окончательная фиксированная смета.
    back
    Заключение договора и старт работ
    После утверждения сметы заключаем официальный договор с гарантией. Вы получаете прозрачный график и точную стоимость — без скрытых расходов.

    Заказать конусльтацию по:Загородный дом из клееного бруса «Эридан 2»

    Фото 1 Загородный дом из клееного бруса «Эридан 2»


      Наши
      контакты

      Дмитров
      Опорный проезд 28Б
      (индустриальный парк Ниагара)
      9:00 до 18:00

      Корзина