4.9
Рейтинг на основании 120 отзывов
Дмитров
Опорный проезд 28Б
(индустриальный парк Ниагара)
Бренд "Дмитров-Дело" c 2008 года на рынке строительства в Дмитрове
Звоните 9:00 до 18:00 8 (915) 055-33-61
Бренд "Дмитров-Дело" c 2008 года на рынке строительства в Дмитрове

Дом из двойного бруса «Майма»

Стоимость проекта от:
15 300 ₽
БЕСПЛАТНО! ПРИ ЗАКАЗЕ СТРОИТЕЛЬСТВА
Стоимость строительства от:
2 077 570 ₽
Артикул ART-11459
Дата 25.12.2025
Архитектурный стиль Классический
Количество надземных этажей 1
Круглогодичное проживание Да
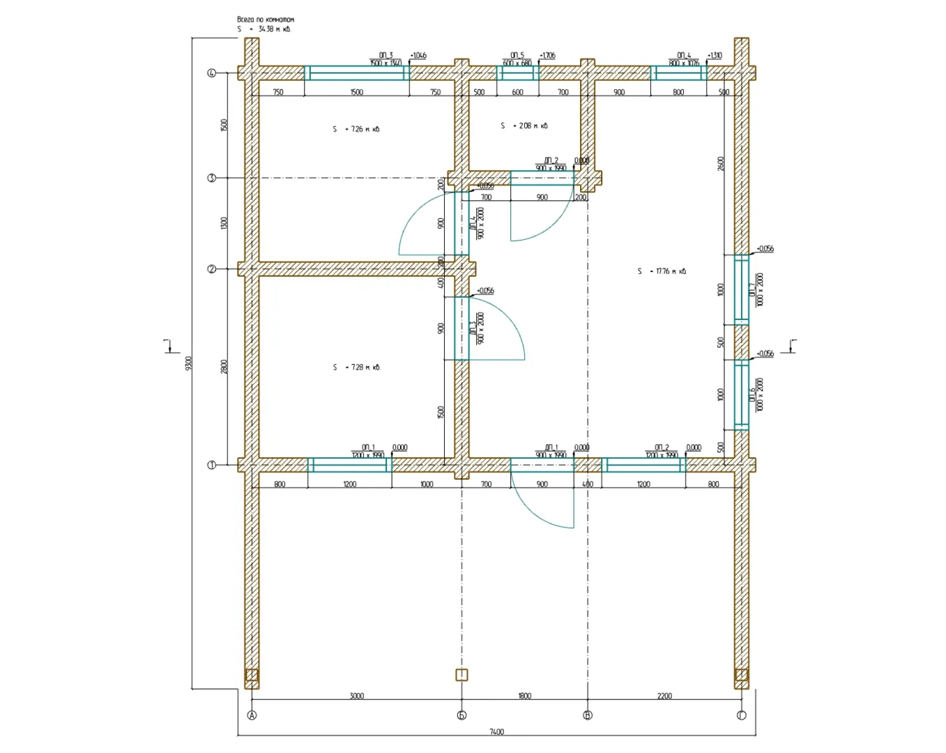
Площадь дома 34 м2
Санузлы 1
Спальни 2

Описание

Герой нашего предложения — уютный деревянный дом “Майма”, выполненный в классическом стиле из профильного бруса. Его ровная, двускатная крыша и изящная простота фасада делают этот дом настоящим символом современного русского быта, но при этом сохраняют душевную теплоту и тепло дерева. Каждый сантиметр его площади пропитан продуманной функциональностью: одноквартирный, но без ограничений на комфорт, он предназначен для полноценной, круглогодичной жизни, благодаря качественному утеплению и использованию профильного бруса, которые в сочетании с классическим укладкой создают естеционную изоляцию от холодов и влаги. В доме отсутствуют балконы и веранда, но зато есть просторная терраса, где можно наслаждаться спокойными вечерами, ароматами леса и свободой от городской суеты. Огромные окна в классическом стиле открывают вид на живописные просторы и приносят в интерьер естественное освещение, делая атмосферу яркой, но теплой. Просторные внутренние коридоры и хорошо продуманное планировочное решение позволяют распределить пространство так, чтобы каждая зона дома служила своему назначению именно так, как вы захотите — будь то рабочий кабинет, уголок для отдыха или обеденная комната. Отсутствие прицепной автостоянки и крытой стоянки делает дом более компактным и сосредоточенным на комфортных внутренних ощущениях, оставляя для семьи пространство для развития и творчества. Благодаря использованию профильного бруса и классическому дизайну, дом “Майма” обеспечивает неповторимый эстетический опыт и гарантирует долгую, надежную эксплуатацию в любых климатических условиях. Приглашаем окунуться в атмосферу уюта и гармонии, которую создаёт данный дом, и подарить себе новое качество жизни в стиле, который ценит традиции, но не боится современных требований к комфорту и удобству.

Характеристики дома

Архитектурный стиль
Автоматизированное регулирование параметров теплоносителя
-
Балконы/лоджии
Отсутствуют
Чердачное помещение
Нет
Датчики протечки воды
-
Эксплуатируемая или зеленая кровля
-
Электроснабжение
Не предусмотрено
Газоснабжение
Не предусмотрено
Изоляция воздушного шума
-
Камин
Нет
Класс энергоэффективности
-
Класс энергосбережения
-
Количество надземных этажей
1
Круглогодичное проживание
Да
Материал кровли
Битумная черепица
Материал перекрытий
Деревянные
Материал внешних стен
Материал внутренних перегородок
Деревянные
Модульное строительство с конструкциями заводского изготовления
Нет
Объем надземной части
-
Основной материал фасадов
Дерево
Отопление
Не предусмотрено
Площадь дома
34 м2
Площадь застройки
68 м2
Подвальное помещение
Нет
Показатель компактности здания
-
Приборы учета тепловой энергии
-
Пристроенный гараж/крытая автостоянка
Нет
Противопожарная система
Нет
Санузлы
1
Совмещенная кухня-гостиная
Да
Спальни
2
Терраса
Да
Тип фундамента
Свайно-винтовой
Тип кровли
Толщина внешних стен
200 мм
Толщина внутренних перегородок
200 мм
Улучшенные шумовые характеристики
-
Вентиляция
Естественная
Веранда
Нет
Водоотведение
Не предусмотрено
Водоснабжение
Не предусмотрено
Высота дома
4 м
Высота потолков
4 м

Планировка

Фасад дома

Александр

Закажите выезд инженера

Александр

Выездной инженер
Закажите выезд инженера для точной диагностики и профессиональной консультации по инженерным системам. Специалист приедет в удобное время, проведёт осмотр, рассчитает стоимость работ и подберёт оптимальные решения для вашего дома.


    Похожие проекты

    Ипотека и
    рассрочка
    КД «Калининград №10-22»
    Стоимость от:
    9 639 060
    Проект от: 72 450
    Этажей 2
    Санузлы 2
    Спальни 4
    Смотреть
    Ипотека и
    рассрочка
    Одноэтажный дом К-100
    Стоимость от:
    7 739 600
    Проект от: 45 000
    Этажей 1
    Санузлы 1
    Спальни 3
    Смотреть
    Ипотека и
    рассрочка
    Смоленская 111
    Стоимость от:
    7 483 080
    Проект от: 42 300
    Этажей 1
    Санузлы 2
    Спальни 3
    Смотреть
    Ипотека и
    рассрочка
    Двухэтажный дом с облицовкой кирпичом в стиле Райт S-201
    Стоимость от:
    18 977 760
    Проект от: 114 300
    Этажей 2
    Санузлы 3
    Спальни 3
    Смотреть
    Ипотека и
    рассрочка
    Проект Линько
    Стоимость от:
    7 800 760
    Проект от: 44 100
    Этажей 1
    Санузлы 1
    Спальни 3
    Смотреть
    Ипотека и
    рассрочка
    Грата 1-130-Шале
    Стоимость от:
    9 540 740
    Проект от: 57 150
    Этажей 1
    Санузлы 2
    Спальни 2
    Смотреть

    Как узнать стоимость дома

    back
    Оставляете заявку
    Вы заполняете форму на сайте или звоните нам. Менеджер Лайвкрафт связывается с вами для уточнения деталей: тип дома, площадь, материалы, участок строительства.
    back
    Консультация и подбор решения
    Наш специалист помогает выбрать оптимальный тип дома и конструкцию с учётом бюджета, сроков и целей — будь то дом для постоянного проживания или дача.
    back
    Расчёт предварительной стоимости
    Инженер делает первичный расчёт стоимости строительства по вашим параметрам: фундамент, коробка, кровля, отделка. Вы получаете смету с разбивкой по этапам.
    back
    Корректировка и утверждение сметы
    При необходимости вносим изменения — например, замену материалов или сокращение этапов. После согласования формируется окончательная фиксированная смета.
    back
    Заключение договора и старт работ
    После утверждения сметы заключаем официальный договор с гарантией. Вы получаете прозрачный график и точную стоимость — без скрытых расходов.

    Заказать конусльтацию по:Дом из двойного бруса «Майма»

    Фото 1 Дом из двойного бруса «Майма»


      Наши
      контакты

      Дмитров
      Опорный проезд 28Б
      (индустриальный парк Ниагара)
      9:00 до 18:00

      Корзина