4.9
Рейтинг на основании 120 отзывов
Дмитров
Опорный проезд 28Б
(индустриальный парк Ниагара)
Бренд "Дмитров-Дело" c 2008 года на рынке строительства в Дмитрове
Звоните 9:00 до 18:00 8 (915) 055-33-61
Бренд "Дмитров-Дело" c 2008 года на рынке строительства в Дмитрове

Дом из кирпича 108 м/2

Стоимость проекта от:
48 600 ₽
БЕСПЛАТНО! ПРИ ЗАКАЗЕ СТРОИТЕЛЬСТВА
Стоимость строительства от:
8 594 960 ₽
Артикул ART-19294
Дата 26.12.2025
Архитектурный стиль Американский/Канадский
Количество надземных этажей 1
Круглогодичное проживание Да
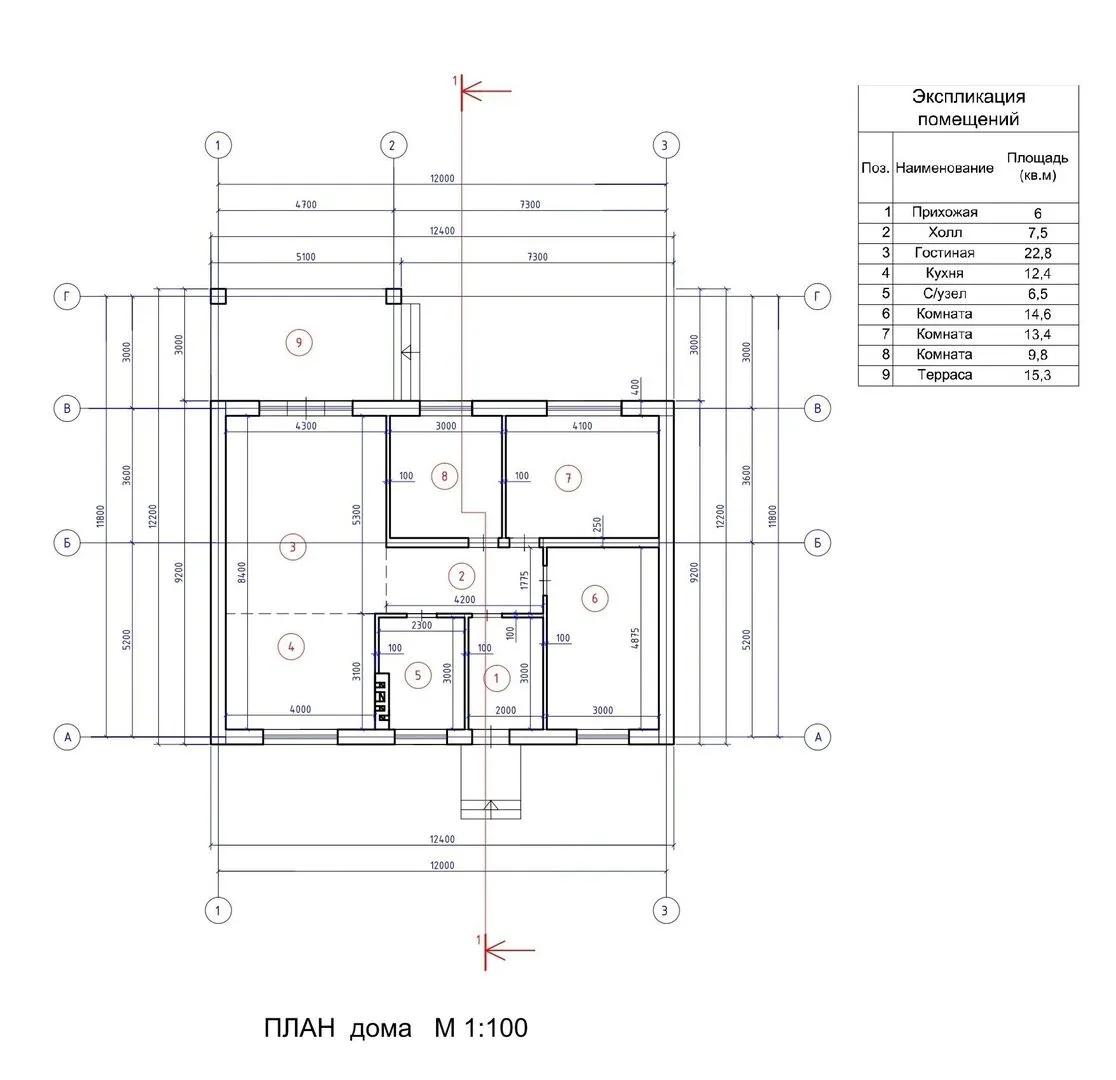
Площадь дома 108 м2
Санузлы 1
Спальни 3

Описание

Небольшой, но обширный, кирпичный дом площадью 108 м², расположенный на тихом участке, сочетает в себе уют и современную функциональность. Этот одноэтажный уголок тепла, построенный в американском/канадском стиле, идеально подходит для круглогодичного проживания, благодаря продуманной теплоизоляции и энергоэффективному фасаду из газобетонных блоков. Просторные окна и светлые интерьеры создают ощущение лёгкости и свободы, а двускатная крыша добавляет дому характер и защищает от непогоды. В доме вы найдете все, что нужно для комфортной жизни: открытая кухня с островом, гостиную с камином, две спальни и ванные комнаты – всё гармонично соединено, создавая непрерывную и гармоничную атмосферу. Веранда отсутствует, но к дому добавлен просторный чердачный уголок, который можно превратить в домашний офис, студию или дополнительную спальню. Балкон с лоджией дарит возможность наслаждаться свежим воздухом и видом на окрестности, а терраса становится идеальным местом для утреннего кофе и семейных ужинов под звёздным небом. Пристроенного гаража или крытой автостоянки нет, но это позволяет владельцам использовать задний двор для организации велосипедных парковок, сада, или просто наслаждаться природой вблизи. Всё это делает дом идеальным решением для тех, кто ценит сочетание функциональности, стиля и качества жизни в едином, привлекательном пакете. ✨

Характеристики дома

Архитектурный стиль
Автоматизированное регулирование параметров теплоносителя
Нет
Балконы/лоджии
1
Чердачное помещение
Да
Датчики протечки воды
Нет
Эксплуатируемая или зеленая кровля
Нет
Электроснабжение
Центральное
Газоснабжение
Центральное
Изоляция воздушного шума
Нет
Камин
Нет
Класс энергоэффективности
A++
Класс энергосбережения
A++
Количество надземных этажей
1
Круглогодичное проживание
Да
Материал кровли
Металлочерепица
Материал перекрытий
Деревянные
Материал внешних стен
Материал внутренних перегородок
Пенобетонные
Модульное строительство с конструкциями заводского изготовления
Нет
Объем надземной части
-
Основной материал фасадов
Облицовочный кирпич
Отопление
Индивидуальное
Площадь дома
108 м2
Площадь застройки
129 м2
Подвальное помещение
Нет
Показатель компактности здания
1
Приборы учета тепловой энергии
Нет
Пристроенный гараж/крытая автостоянка
Нет
Противопожарная система
Нет
Санузлы
1
Совмещенная кухня-гостиная
Да
Спальни
3
Терраса
Да
Тип фундамента
Ленточный
Тип кровли
Толщина внешних стен
300 мм
Толщина внутренних перегородок
200 мм
Улучшенные шумовые характеристики
Нет
Вентиляция
Естественная
Веранда
Нет
Водоотведение
Локальные очистные сооружения
Водоснабжение
Индивидуальное
Высота дома
6 м
Высота потолков
3 м

Планировка

Фасад дома

Александр

Закажите выезд инженера

Александр

Выездной инженер
Закажите выезд инженера для точной диагностики и профессиональной консультации по инженерным системам. Специалист приедет в удобное время, проведёт осмотр, рассчитает стоимость работ и подберёт оптимальные решения для вашего дома.


    Похожие проекты

    Ипотека и
    рассрочка
    Дом из CLT «Дивное»
    Стоимость от:
    1 599 480
    Проект от: 151 650
    Этажей 2
    Санузлы 3
    Спальни 3
    Смотреть
    Ипотека и
    рассрочка
    Модульный дом FL65 (C65)
    Стоимость от:
    4 851 990
    Проект от: 39 150
    Этажей 1
    Санузлы 1
    Спальни 2
    Смотреть
    Ипотека и
    рассрочка
    Загородный дом «Статус» площадью застройки 126м2
    Стоимость от:
    7 590 220
    Проект от: 45 450
    Этажей 1
    Санузлы 1
    Спальни 3
    Смотреть
    Ипотека и
    рассрочка
    «Базыль»
    Стоимость от:
    9 471 120
    Проект от: 59 850
    Этажей 2
    Санузлы 2
    Спальни 5
    Смотреть
    Ипотека и
    рассрочка
    Проект ИЖД 35-08-2022-АР
    Стоимость от:
    8 940 580
    Проект от: 53 550
    Этажей 1
    Санузлы 1
    Спальни 3
    Смотреть
    Ипотека и
    рассрочка
    Одноэтажный дом в скандинавском стиле «ОСК-136»
    Стоимость от:
    9 852 480
    Проект от: 64 800
    Этажей 1
    Санузлы 2
    Спальни 4
    Смотреть

    Как узнать стоимость дома

    back
    Оставляете заявку
    Вы заполняете форму на сайте или звоните нам. Менеджер Лайвкрафт связывается с вами для уточнения деталей: тип дома, площадь, материалы, участок строительства.
    back
    Консультация и подбор решения
    Наш специалист помогает выбрать оптимальный тип дома и конструкцию с учётом бюджета, сроков и целей — будь то дом для постоянного проживания или дача.
    back
    Расчёт предварительной стоимости
    Инженер делает первичный расчёт стоимости строительства по вашим параметрам: фундамент, коробка, кровля, отделка. Вы получаете смету с разбивкой по этапам.
    back
    Корректировка и утверждение сметы
    При необходимости вносим изменения — например, замену материалов или сокращение этапов. После согласования формируется окончательная фиксированная смета.
    back
    Заключение договора и старт работ
    После утверждения сметы заключаем официальный договор с гарантией. Вы получаете прозрачный график и точную стоимость — без скрытых расходов.

    Заказать конусльтацию по:Дом из кирпича 108 м/2

    Фото 1 Дом из кирпича 108 м/2


      Наши
      контакты

      Дмитров
      Опорный проезд 28Б
      (индустриальный парк Ниагара)
      9:00 до 18:00

      Корзина