4.9
Рейтинг на основании 120 отзывов
Дмитров
Опорный проезд 28Б
(индустриальный парк Ниагара)
Бренд "Дмитров-Дело" c 2008 года на рынке строительства в Дмитрове
Звоните 9:00 до 18:00 8 (915) 055-33-61
Бренд "Дмитров-Дело" c 2008 года на рынке строительства в Дмитрове

Дом из клееного бруса «Азов»

Стоимость проекта от:
63 450 ₽
БЕСПЛАТНО! ПРИ ЗАКАЗЕ СТРОИТЕЛЬСТВА
Стоимость строительства от:
8 639 070 ₽
Артикул ART-2093
Дата 26.12.2025
Архитектурный стиль Классический
Количество надземных этажей 1
Круглогодичное проживание Да
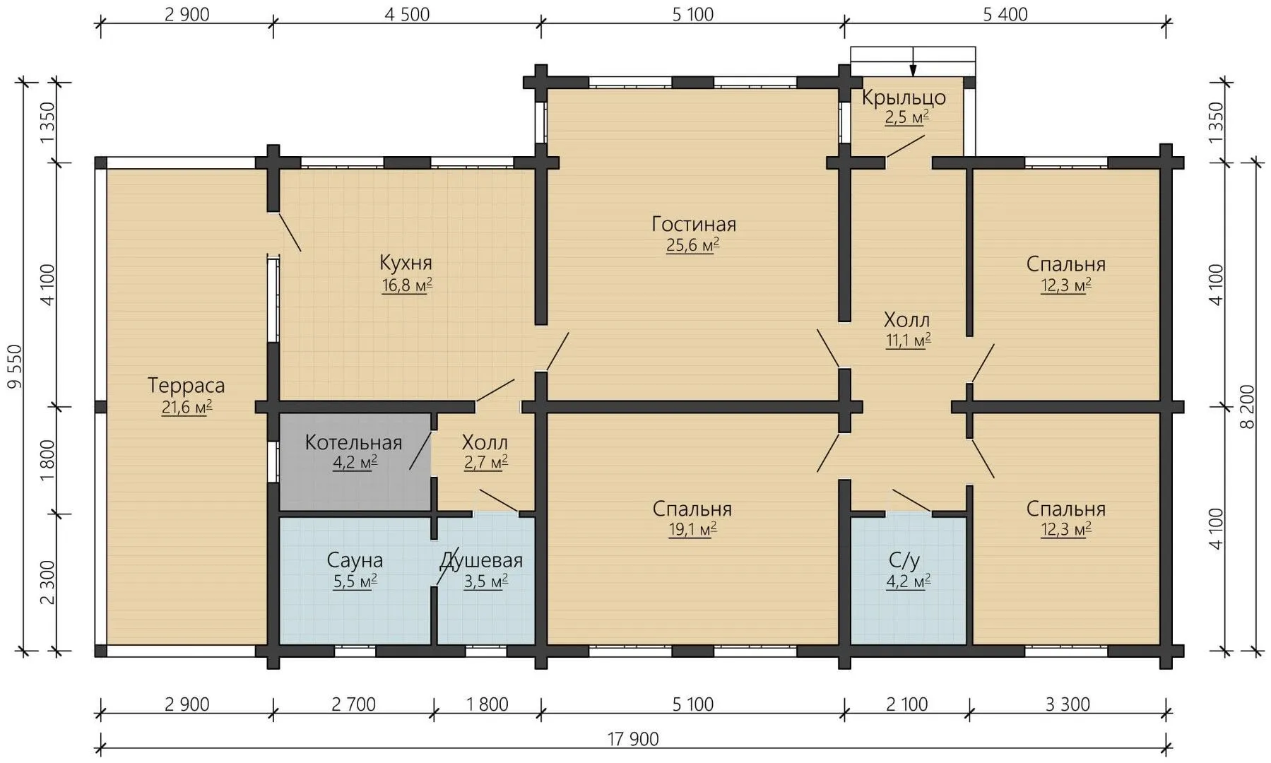
Площадь дома 141 м2
Санузлы 1
Спальни 3

Описание

В сердце тихого уголка природы стоит изящный коттедж «Азов» – воплощение классической элегантности и современного комфорта. Одноэтажный дом, построенный из клееного бруса, поёт гармонией натурального материала, обволакивая пространство ощущением тепла и уюта. Его двускатная крыша, изящное переплетение линий стиля, защищает от непогоды, а в каждом уголке царит безмятежность, позволяя чувствовать себя будто дома в любой сезон. Собственники ценят практичность: просторный внутренний план без чердачных помещений и гаражов делает его идеальным для семей со стилем жизни, в котором важна простота и уют. Одно большое балконы‑лоджия открывает живописный вид, а широкая веранда приглашает к вечерам под звёздами, наслаждаясь лёгким ветерком. Клеёный брус придаёт стенам крепкий, но при этом приятный к дыханию тон, а изысканный классический фасад подчеркивает статус и вкус его владельца. Дом «Азов» – это не просто место, где можно отдохнуть, а настоящий оазис спокойствия, где каждый метр продуман до мелочей: от плавных линий архитектуры до практичных деталей интерьера. В нем рождается ощущение защищённости от ветра и холодов, одновременно открывая вам дверь в мир спокойного, аутентичного уюта, где каждый день заполняет тепло и свет. Это идеальный выбор для тех, кто ищет сочетание эстетики, натуральных материалов и функциональности в каждой детали.

Характеристики дома

Архитектурный стиль
Автоматизированное регулирование параметров теплоносителя
-
Балконы/лоджии
1
Чердачное помещение
Нет
Датчики протечки воды
-
Эксплуатируемая или зеленая кровля
-
Электроснабжение
2 варианта
Газоснабжение
2 варианта
Изоляция воздушного шума
-
Камин
Нет
Класс энергоэффективности
-
Класс энергосбережения
-
Количество надземных этажей
1
Круглогодичное проживание
Да
Материал кровли
Металлические листовые гофрированные профили
Материал перекрытий
Деревянные
Материал внешних стен
Материал внутренних перегородок
Деревянные
Модульное строительство с конструкциями заводского изготовления
Нет
Объем надземной части
629 м3
Основной материал фасадов
Дерево
Отопление
2 варианта
Площадь дома
141 м2
Площадь застройки
170 м2
Подвальное помещение
Нет
Показатель компактности здания
-
Приборы учета тепловой энергии
-
Пристроенный гараж/крытая автостоянка
Нет
Противопожарная система
Нет
Санузлы
1
Совмещенная кухня-гостиная
Нет
Спальни
3
Терраса
Нет
Тип фундамента
Свайный
Тип кровли
Толщина внешних стен
200 мм
Толщина внутренних перегородок
160 мм
Улучшенные шумовые характеристики
-
Вентиляция
2 варианта
Веранда
Да
Водоотведение
2 варианта
Водоснабжение
2 варианта
Высота дома
3.7 м
Высота потолков
2.7 м

Планировка

Фасад дома

Александр

Закажите выезд инженера

Александр

Выездной инженер
Закажите выезд инженера для точной диагностики и профессиональной консультации по инженерным системам. Специалист приедет в удобное время, проведёт осмотр, рассчитает стоимость работ и подберёт оптимальные решения для вашего дома.


    Похожие проекты

    Ипотека и
    рассрочка
    «Северный»
    Стоимость от:
    18 152 760
    Проект от: 139 050
    Этажей 2
    Санузлы 4
    Спальни 5
    Смотреть
    Ипотека и
    рассрочка
    Двухэтажный дом Мендоса
    Стоимость от:
    11 451 120
    Проект от: 68 850
    Этажей 2
    Санузлы 2
    Спальни 4
    Смотреть
    Ипотека и
    рассрочка
    Двухэтажный каркасный дом «Оникс»
    Стоимость от:
    10 773 000
    Проект от: 81 000
    Этажей 2
    Санузлы 2
    Спальни 4
    Смотреть
    Ипотека и
    рассрочка
    Индивидуальный жилой дом 093-22-АС
    Стоимость от:
    13 017 600
    Проект от: 81 000
    Этажей 2
    Санузлы 2
    Спальни 5
    Смотреть
    Ипотека и
    рассрочка
    Лерос 2
    Стоимость от:
    9 690 780
    Проект от: 58 050
    Этажей 1
    Санузлы 2
    Спальни 3
    Смотреть
    Ипотека и
    рассрочка
    Сказка
    Стоимость от:
    5 101 360
    Проект от: 39 600
    Этажей 1
    Санузлы 1
    Спальни 2
    Смотреть

    Как узнать стоимость дома

    back
    Оставляете заявку
    Вы заполняете форму на сайте или звоните нам. Менеджер Лайвкрафт связывается с вами для уточнения деталей: тип дома, площадь, материалы, участок строительства.
    back
    Консультация и подбор решения
    Наш специалист помогает выбрать оптимальный тип дома и конструкцию с учётом бюджета, сроков и целей — будь то дом для постоянного проживания или дача.
    back
    Расчёт предварительной стоимости
    Инженер делает первичный расчёт стоимости строительства по вашим параметрам: фундамент, коробка, кровля, отделка. Вы получаете смету с разбивкой по этапам.
    back
    Корректировка и утверждение сметы
    При необходимости вносим изменения — например, замену материалов или сокращение этапов. После согласования формируется окончательная фиксированная смета.
    back
    Заключение договора и старт работ
    После утверждения сметы заключаем официальный договор с гарантией. Вы получаете прозрачный график и точную стоимость — без скрытых расходов.

    Заказать конусльтацию по:Дом из клееного бруса «Азов»

    Фото 1 Дом из клееного бруса «Азов»


      Наши
      контакты

      Дмитров
      Опорный проезд 28Б
      (индустриальный парк Ниагара)
      9:00 до 18:00

      Корзина