4.9
Рейтинг на основании 120 отзывов
Дмитров
Опорный проезд 28Б
(индустриальный парк Ниагара)
Бренд "Дмитров-Дело" c 2008 года на рынке строительства в Дмитрове
Звоните 9:00 до 18:00 8 (915) 055-33-61
Бренд "Дмитров-Дело" c 2008 года на рынке строительства в Дмитрове

Дом из клееного бруса «Марфино 3»

Стоимость проекта от:
64 800 ₽
БЕСПЛАТНО! ПРИ ЗАКАЗЕ СТРОИТЕЛЬСТВА
Стоимость строительства от:
9 322 560 ₽
Артикул ART-2161
Дата 26.12.2025
Архитектурный стиль Классический
Количество надземных этажей 2
Круглогодичное проживание Да
Площадь дома 144 м2
Санузлы 2
Спальни 3

Описание

Дом «Марфино 3» – это настоящий уголок тишины и уюта, сотканный из крепкого клееного бруса. Его классический облик, подчёркнутый двойным двускатным крыше, отдает дань традициям, а при этом остаётся в современной эстетике. Величественная веранда приглашает провести вечер в теплом, тихом уединении, а два балкона/лоджи открывают живописные виды с разных сторон и дарят ощущение простора даже в ограниченных городских условиях. Два надземных этажа позволяют расположить отдельные зоны: спальню с панорамным окном, светлую гостиную в открытой планировке, рабочую площадку и уютную кухню, где каждый день будет начинаться и заканчиваться ароматом свежих продуктов. Все помещения изнутри наполнены светом – большие окна не только дарят живописный вид, но и делают пространство ярким и приятным. Клеёный брус в стенах гарантирует тепло и долгосрочную износостойкость, обеспечивая безопасные и экологичные условия для круглогодичной жизни. Дом «Марфино 3» – это сочетание практичности и стиля: простая, но элегантная архитектура, удобное расположение без крытой автостоянки (на случай, если вам нужны только свободные балконы и веранда), и отсутствие чердача, которое делает планирование пространства максимально гибким. Для тех, кто ищет гармонию, где можно почувствовать себя как дома, «Марфино 3» – идеальное решение, которое превратит ваш отдых в настоящее благополучие.

Характеристики дома

Архитектурный стиль
Автоматизированное регулирование параметров теплоносителя
-
Балконы/лоджии
2
Чердачное помещение
Нет
Датчики протечки воды
-
Эксплуатируемая или зеленая кровля
-
Электроснабжение
2 варианта
Газоснабжение
2 варианта
Изоляция воздушного шума
-
Камин
Нет
Класс энергоэффективности
-
Класс энергосбережения
-
Количество надземных этажей
2
Круглогодичное проживание
Да
Материал кровли
Металлические листовые гофрированные профили
Материал перекрытий
Деревянные
Материал внешних стен
Материал внутренних перегородок
Деревянные
Модульное строительство с конструкциями заводского изготовления
Нет
Объем надземной части
414 м3
Основной материал фасадов
Дерево
Отопление
2 варианта
Площадь дома
144 м2
Площадь застройки
72 м2
Подвальное помещение
Нет
Показатель компактности здания
-
Приборы учета тепловой энергии
-
Пристроенный гараж/крытая автостоянка
Нет
Противопожарная система
Нет
Санузлы
2
Совмещенная кухня-гостиная
Нет
Спальни
3
Терраса
Нет
Тип фундамента
Свайный
Тип кровли
Толщина внешних стен
200 мм
Толщина внутренних перегородок
160 мм
Улучшенные шумовые характеристики
-
Вентиляция
2 варианта
Веранда
Да
Водоотведение
2 варианта
Водоснабжение
2 варианта
Высота дома
5.7 м
Высота потолков
2.7 м

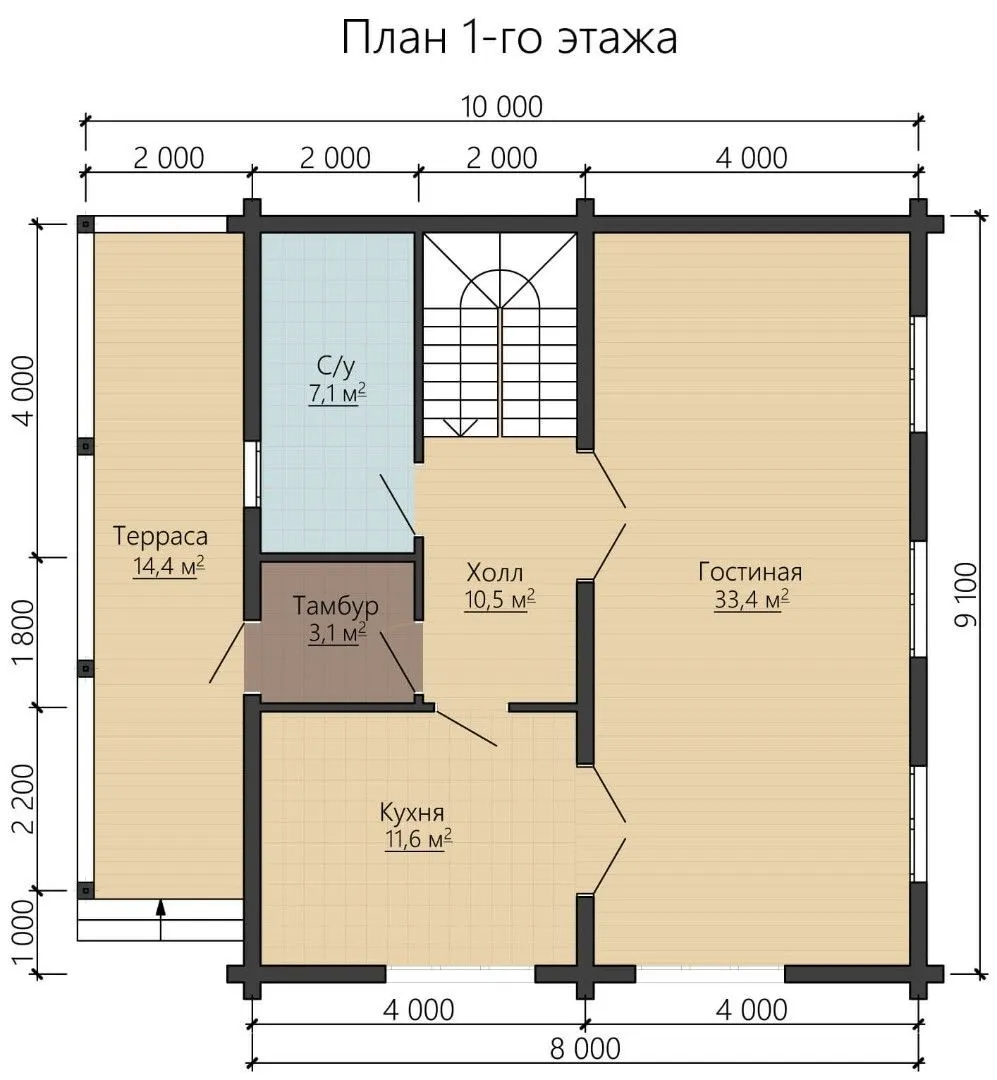
Планировка

Фасад дома

Александр

Закажите выезд инженера

Александр

Выездной инженер
Закажите выезд инженера для точной диагностики и профессиональной консультации по инженерным системам. Специалист приедет в удобное время, проведёт осмотр, рассчитает стоимость работ и подберёт оптимальные решения для вашего дома.


    Похожие проекты

    Ипотека и
    рассрочка
    Загородный дом АС-205
    Стоимость от:
    7 062 300
    Проект от: 53 100
    Этажей 2
    Санузлы 2
    Спальни 3
    Смотреть
    Ипотека и
    рассрочка
    Сканди Карелия 164 — Одноэтажный дом Сканди Карелия 164 ВМ
    Стоимость от:
    10 409 080
    Проект от: 73 800
    Этажей 1
    Санузлы 1
    Спальни 3
    Смотреть
    Ипотека и
    рассрочка
    FK-71 в Сокурах
    Стоимость от:
    4 241 435
    Проект от: 30 150
    Этажей 1
    Санузлы 1
    Спальни 2
    Смотреть
    Ипотека и
    рассрочка
    Вилла для ЖИЗНИ
    Стоимость от:
    38 944 320
    Проект от: 246 600
    Этажей 2
    Санузлы 5
    Спальни 5
    Смотреть
    Ипотека и
    рассрочка
    Загородный дом Энкель-1
    Стоимость от:
    16 761 600
    Проект от: 108 000
    Этажей 2
    Санузлы 2
    Спальни 5
    Смотреть
    Ипотека и
    рассрочка
    Проект 5
    Стоимость от:
    7 115 680
    Проект от: 46 800
    Этажей 1
    Санузлы 1
    Спальни 3
    Смотреть

    Как узнать стоимость дома

    back
    Оставляете заявку
    Вы заполняете форму на сайте или звоните нам. Менеджер Лайвкрафт связывается с вами для уточнения деталей: тип дома, площадь, материалы, участок строительства.
    back
    Консультация и подбор решения
    Наш специалист помогает выбрать оптимальный тип дома и конструкцию с учётом бюджета, сроков и целей — будь то дом для постоянного проживания или дача.
    back
    Расчёт предварительной стоимости
    Инженер делает первичный расчёт стоимости строительства по вашим параметрам: фундамент, коробка, кровля, отделка. Вы получаете смету с разбивкой по этапам.
    back
    Корректировка и утверждение сметы
    При необходимости вносим изменения — например, замену материалов или сокращение этапов. После согласования формируется окончательная фиксированная смета.
    back
    Заключение договора и старт работ
    После утверждения сметы заключаем официальный договор с гарантией. Вы получаете прозрачный график и точную стоимость — без скрытых расходов.

    Заказать конусльтацию по:Дом из клееного бруса «Марфино 3»

    Фото 1 Дом из клееного бруса «Марфино 3»


      Наши
      контакты

      Дмитров
      Опорный проезд 28Б
      (индустриальный парк Ниагара)
      9:00 до 18:00

      Корзина