4.9
Рейтинг на основании 120 отзывов
Дмитров
Опорный проезд 28Б
(индустриальный парк Ниагара)
Бренд "Дмитров-Дело" c 2008 года на рынке строительства в Дмитрове
Звоните 9:00 до 18:00 8 (915) 055-33-61
Бренд "Дмитров-Дело" c 2008 года на рынке строительства в Дмитрове

Проект А006

Стоимость проекта от:
54 000 ₽
БЕСПЛАТНО! ПРИ ЗАКАЗЕ СТРОИТЕЛЬСТВА
Стоимость строительства от:
8 683 200 ₽
Артикул ART-17798
Дата 26.12.2025
Архитектурный стиль Классический
Количество надземных этажей 2
Круглогодичное проживание Да
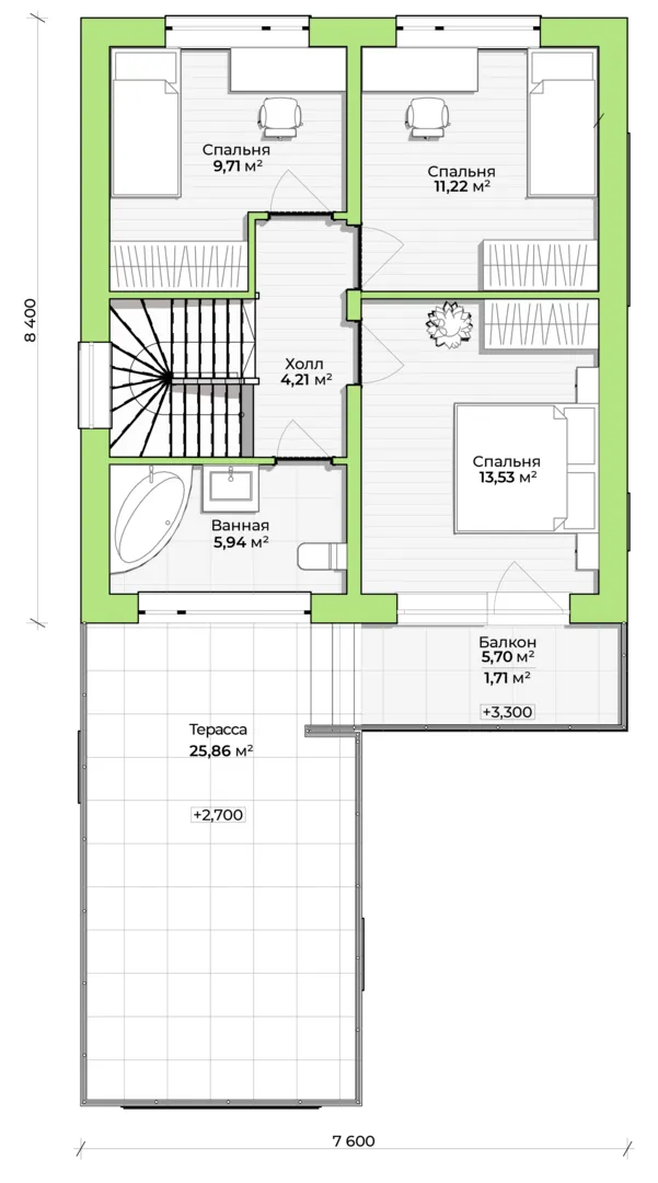
Площадь дома 120 м2
Санузлы 2
Спальни 3

Описание

Ищете идеальный оазис в сердце города, где сочетаются элегантный классический стиль и современные удобства? Проект А006 — это просторный двухэтажный дом, создавший условия для круглогодичного проживания любого рода семей. Его классический фасад придает дому строгую, но теплоту, а керамзитобетонные блоки защитят от шума и холода, обеспечивая покой в любой климатической обстановке. Благодаря двускатной кровле и большим окнам, в доме всегда наполняется естественным светом, создавая уютную атмосферу на каждом уровне. Особое внимание уделено функциональности: вы получите уютный балкон/лоджию, где с утра можно насладиться свежим воздухом, а заодно воспользоваться отдельным чердачным помещением, которое подойдет как для хранения, так и для уютного уголка для творчества. Прямо под входом находится прибрежная веранда, где можно расслабиться в теплый летний вечер. А на территории закреплена крытая автостоянка и прикрепленный гараж — ваши транспортные средства будут всегда под защитой от непогоды. Крытая парковка и отдельный подъезд создают дополнительную безопасность и уединенность. Построенный с вниманием к деталям, этот дом сочетает в себе классику и комфорт, а удобная терраса открывает вид на панораму окрестностей, в которую легко погрузиться, даже находясь дома. Если вы ищете дом, где каждый уголок наполнен теплом, а качество строительства стоит тысячи лет, то проект А006 — ваш идеальный выбор. Свяжитесь с нами сегодня, и давайте вместе воплотим ваши мечты в реальность!

Характеристики дома

Архитектурный стиль
Автоматизированное регулирование параметров теплоносителя
Да
Балконы/лоджии
1
Чердачное помещение
Да
Датчики протечки воды
Нет
Эксплуатируемая или зеленая кровля
Нет
Электроснабжение
Центральное
Газоснабжение
2 варианта
Изоляция воздушного шума
Да
Камин
Нет
Класс энергоэффективности
B
Класс энергосбережения
A
Количество надземных этажей
2
Круглогодичное проживание
Да
Материал кровли
Металлочерепица
Материал перекрытий
Монолитные железобетонные
Материал внешних стен
Материал внутренних перегородок
Блочные
Модульное строительство с конструкциями заводского изготовления
Нет
Объем надземной части
360 м3
Основной материал фасадов
Сайдинг
Отопление
Индивидуальное
Площадь дома
120 м2
Площадь застройки
114 м2
Подвальное помещение
Нет
Показатель компактности здания
0.82
Приборы учета тепловой энергии
Да
Пристроенный гараж/крытая автостоянка
Да
Противопожарная система
Нет
Санузлы
2
Совмещенная кухня-гостиная
Да
Спальни
3
Терраса
Да
Тип фундамента
Свайно-ростверковый
Тип кровли
Толщина внешних стен
400 мм
Толщина внутренних перегородок
120 мм
Улучшенные шумовые характеристики
Да
Вентиляция
Рекуперация
Веранда
Нет
Водоотведение
Локальные очистные сооружения
Водоснабжение
Индивидуальное
Высота дома
10 м
Высота потолков
3 м

Планировка

Фасад дома

Александр

Закажите выезд инженера

Александр

Выездной инженер
Закажите выезд инженера для точной диагностики и профессиональной консультации по инженерным системам. Специалист приедет в удобное время, проведёт осмотр, рассчитает стоимость работ и подберёт оптимальные решения для вашего дома.


    Похожие проекты

    Ипотека и
    рассрочка
    Модульный дом Барн 75
    Стоимость от:
    4 227 630
    Проект от: 31 050
    Этажей 1
    Санузлы 1
    Спальни 2
    Смотреть
    Ипотека и
    рассрочка
    Одноэтажный дом БРАИТ-86
    Стоимость от:
    10 659 880
    Проект от: 60 300
    Этажей 1
    Санузлы 3
    Спальни 3
    Смотреть
    Ипотека и
    рассрочка
    Тайрон 80
    Стоимость от:
    5 318 060
    Проект от: 41 400
    Этажей 1
    Санузлы 1
    Спальни 3
    Смотреть
    Ипотека и
    рассрочка
    82
    Стоимость от:
    6 915 040
    Проект от: 41 400
    Этажей 1
    Санузлы 2
    Спальни 3
    Смотреть
    Ипотека и
    рассрочка
    ОН-1/159 4 спальни
    Стоимость от:
    10 169 280
    Проект от: 64 800
    Этажей 1
    Санузлы 2
    Спальни 4
    Смотреть
    Ипотека и
    рассрочка
    24АШ-МС А-Фрейм от Строй и Живи
    Стоимость от:
    3 115 320
    Проект от: 23 850
    Этажей 2
    Санузлы 1
    Спальни 1
    Смотреть

    Как узнать стоимость дома

    back
    Оставляете заявку
    Вы заполняете форму на сайте или звоните нам. Менеджер Лайвкрафт связывается с вами для уточнения деталей: тип дома, площадь, материалы, участок строительства.
    back
    Консультация и подбор решения
    Наш специалист помогает выбрать оптимальный тип дома и конструкцию с учётом бюджета, сроков и целей — будь то дом для постоянного проживания или дача.
    back
    Расчёт предварительной стоимости
    Инженер делает первичный расчёт стоимости строительства по вашим параметрам: фундамент, коробка, кровля, отделка. Вы получаете смету с разбивкой по этапам.
    back
    Корректировка и утверждение сметы
    При необходимости вносим изменения — например, замену материалов или сокращение этапов. После согласования формируется окончательная фиксированная смета.
    back
    Заключение договора и старт работ
    После утверждения сметы заключаем официальный договор с гарантией. Вы получаете прозрачный график и точную стоимость — без скрытых расходов.

    Заказать конусльтацию по:Проект А006

    Фото 1 Проект А006


      Наши
      контакты

      Дмитров
      Опорный проезд 28Б
      (индустриальный парк Ниагара)
      9:00 до 18:00

      Корзина