4.9
Рейтинг на основании 120 отзывов
Дмитров
Опорный проезд 28Б
(индустриальный парк Ниагара)
Бренд "Дмитров-Дело" c 2008 года на рынке строительства в Дмитрове
Звоните 9:00 до 18:00 8 (915) 055-33-61
Бренд "Дмитров-Дело" c 2008 года на рынке строительства в Дмитрове

Дом из клееного бруса «Семенково»

Стоимость проекта от:
91 350 ₽
БЕСПЛАТНО! ПРИ ЗАКАЗЕ СТРОИТЕЛЬСТВА
Стоимость строительства от:
13 144 320 ₽
Артикул ART-2182
Дата 26.12.2025
Архитектурный стиль Классический
Количество надземных этажей 2
Круглогодичное проживание Да
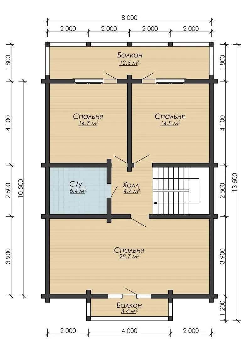
Площадь дома 203 м2
Санузлы 2
Спальни 4

Описание

Пусть в вашем воображении начнётся сцена: солнечный закат отражается на белоснежных порогах, а в тёплой гостиной звучит шёпот старого клеёного бруса, словно шёпот природы подчас забывая о просторах городской суеты. Дом “Семенково” – это гармоничное сочетание классической архитектуры и современных удобств: два надземных этажа открывают пространство для семейной жизни, а каждый из трёх просторных балконов и веранда дарят шанс насладиться рассветами, вечерним солнцем и кристально чистыми ночами. Клеёные брусы, работающие как в защитном, так и в эстетическом плане, сохраняют тепло и при этом излучают естественную теплоотдачу древесины. Двускатная крыша, традиционная в классическом стиле, подчёркивает элегантность линии фасада и обеспечивает надёжную защиту от всех климатических условий, что делает этот дом идеальным для круглогодичного комфортного проживания. Отсутствие прицепного гаража и чердачного пространства делает жильё более «чистым» и простым, позволяя сосредоточиться на главном – на уюте и семейной гармонии. Внутри каждое помещение пропитано дружелюбной атмосферой: открытая планировка, большие окна, залитые светом, и наличие верныны, превращающейся в ваш личный оазис спокойствия в любое время года. Дом “Семенково” – это не просто жильё, это стиль жизни: простота, тепло, уют и элегантность в каждой детали. Выберите его, чтобы каждый день начинался и завершался в атмосфере комфорта, вдохновляющего дизайна и настоящего семейного уюта.

Характеристики дома

Архитектурный стиль
Автоматизированное регулирование параметров теплоносителя
-
Балконы/лоджии
3
Чердачное помещение
Нет
Датчики протечки воды
-
Эксплуатируемая или зеленая кровля
-
Электроснабжение
2 варианта
Газоснабжение
2 варианта
Изоляция воздушного шума
-
Камин
Нет
Класс энергоэффективности
-
Класс энергосбережения
-
Количество надземных этажей
2
Круглогодичное проживание
Да
Материал кровли
Металлические листовые гофрированные профили
Материал перекрытий
Деревянные
Материал внешних стен
Материал внутренних перегородок
Деревянные
Модульное строительство с конструкциями заводского изготовления
Нет
Объем надземной части
911 м3
Основной материал фасадов
Дерево
Отопление
2 варианта
Площадь дома
203 м2
Площадь застройки
159 м2
Подвальное помещение
Нет
Показатель компактности здания
-
Приборы учета тепловой энергии
-
Пристроенный гараж/крытая автостоянка
Нет
Противопожарная система
Нет
Санузлы
2
Совмещенная кухня-гостиная
Да
Спальни
4
Терраса
Нет
Тип фундамента
Свайный
Тип кровли
Толщина внешних стен
200 мм
Толщина внутренних перегородок
160 мм
Улучшенные шумовые характеристики
-
Вентиляция
2 варианта
Веранда
Да
Водоотведение
2 варианта
Водоснабжение
2 варианта
Высота дома
5.7 м
Высота потолков
2.7 м

Планировка

Фасад дома

Александр

Закажите выезд инженера

Александр

Выездной инженер
Закажите выезд инженера для точной диагностики и профессиональной консультации по инженерным системам. Специалист приедет в удобное время, проведёт осмотр, рассчитает стоимость работ и подберёт оптимальные решения для вашего дома.


    Похожие проекты

    Ипотека и
    рассрочка
    Одноэтажный дом «Дарина»
    Стоимость от:
    5 735 840
    Проект от: 32 400
    Этажей 1
    Санузлы 1
    Спальни 3
    Смотреть
    Ипотека и
    рассрочка
    Дом из клееного бруса Вена-2
    Стоимость от:
    9 696 480
    Проект от: 66 150
    Этажей 2
    Санузлы 3
    Спальни 4
    Смотреть
    Ипотека и
    рассрочка
    Одноэтажный дом с двумя спальнями и крыльцом
    Стоимость от:
    6 473 940
    Проект от: 45 900
    Этажей 1
    Санузлы 2
    Спальни 2
    Смотреть
    Ипотека и
    рассрочка
    «Сканди Оптима — семейный»
    Стоимость от:
    3 569 280
    Проект от: 28 800
    Этажей 1
    Санузлы 2
    Спальни 3
    Смотреть
    Ипотека и
    рассрочка
    Каркасный дом 7х10 м
    Стоимость от:
    3 903 900
    Проект от: 31 500
    Этажей 1
    Санузлы 1
    Спальни 2
    Смотреть
    Ипотека и
    рассрочка
    Проект загородного дома NHD-154
    Стоимость от:
    6 014 800
    Проект от: 36 000
    Этажей 1
    Санузлы 1
    Спальни 3
    Смотреть

    Как узнать стоимость дома

    back
    Оставляете заявку
    Вы заполняете форму на сайте или звоните нам. Менеджер Лайвкрафт связывается с вами для уточнения деталей: тип дома, площадь, материалы, участок строительства.
    back
    Консультация и подбор решения
    Наш специалист помогает выбрать оптимальный тип дома и конструкцию с учётом бюджета, сроков и целей — будь то дом для постоянного проживания или дача.
    back
    Расчёт предварительной стоимости
    Инженер делает первичный расчёт стоимости строительства по вашим параметрам: фундамент, коробка, кровля, отделка. Вы получаете смету с разбивкой по этапам.
    back
    Корректировка и утверждение сметы
    При необходимости вносим изменения — например, замену материалов или сокращение этапов. После согласования формируется окончательная фиксированная смета.
    back
    Заключение договора и старт работ
    После утверждения сметы заключаем официальный договор с гарантией. Вы получаете прозрачный график и точную стоимость — без скрытых расходов.

    Заказать конусльтацию по:Дом из клееного бруса «Семенково»

    Фото 1 Дом из клееного бруса «Семенково»


      Наши
      контакты

      Дмитров
      Опорный проезд 28Б
      (индустриальный парк Ниагара)
      9:00 до 18:00

      Корзина