4.9
Рейтинг на основании 120 отзывов
Дмитров
Опорный проезд 28Б
(индустриальный парк Ниагара)
Бренд "Дмитров-Дело" c 2008 года на рынке строительства в Дмитрове
Звоните 9:00 до 18:00 8 (915) 055-33-61
Бренд "Дмитров-Дело" c 2008 года на рынке строительства в Дмитрове

Дом из профилированного бруса 24-10-01

Стоимость проекта от:
31 500 ₽
БЕСПЛАТНО! ПРИ ЗАКАЗЕ СТРОИТЕЛЬСТВА
Стоимость строительства от:
4 134 900 ₽
Артикул ART-15571
Дата 25.12.2025
Архитектурный стиль Классический
Количество надземных этажей 1
Круглогодичное проживание Да
Площадь дома 70 м2
Санузлы 1
Спальни 3

Описание

Рассматривая этот уютный одноэтажный дом, построенный из прочного профилированного бруса 24‑10‑01, вы сразу ощущаете тепло и надежность, которые дарит именно такая техника. Архитектурный стиль «Классический» придает дому элегантность и простоту, а широкие окна и ровная, двускатная крыша создают ощущение простора и света, наполняя каждый уголок мягким сиянием дня. Просторный балкон становится идеальным местом для чашки кофе по утрам или вечернего отдыха, наблюдая за закатами и ароматами вечерних ветров. Внутреннее пространство пропитано комфортом: высокие полы и светло–цветные стены дарят легкость и непринужденность. Теплота дерева ощущаешь и на ощупь, и с каждым шагом, благодаря тому, что в доме нет лишних перегородок и сложных конструкций, пространство открывается, приглашая в уютные семейные вечера. Круглогодичное проживание без проблем, благодаря качественному утеплению профильного бруса и хорошей гидроизоляции, а незначительные акценты в интерьере подчеркивают индивидуальность и стиль. Этот дом — идеальное сочетание традиционного дизайна и современных технологий. Здесь вы почувствуете, как каждый день начинает и заканчивается в гармоний, окруженной тёплой, домашней атмосферой. Позвольте себе окунуться в уют, который создаёт дом из профилированного бруса 24‑10‑01, и увидите, как легко становятся самые яркие мечты о собственном уголке счастья.

Характеристики дома

Архитектурный стиль
Автоматизированное регулирование параметров теплоносителя
Нет
Балконы/лоджии
1
Чердачное помещение
Нет
Датчики протечки воды
Да
Эксплуатируемая или зеленая кровля
Нет
Электроснабжение
2 варианта
Газоснабжение
Центральное
Изоляция воздушного шума
Нет
Камин
Нет
Класс энергоэффективности
-
Класс энергосбережения
-
Количество надземных этажей
1
Круглогодичное проживание
Да
Материал кровли
Стальные листовые гофрированные профили
Материал перекрытий
Деревянные
Материал внешних стен
Материал внутренних перегородок
Деревянные
Модульное строительство с конструкциями заводского изготовления
Нет
Объем надземной части
353 м3
Основной материал фасадов
Дерево
Отопление
Центральное
Площадь дома
70 м2
Площадь застройки
83 м2
Подвальное помещение
Нет
Показатель компактности здания
-
Приборы учета тепловой энергии
Нет
Пристроенный гараж/крытая автостоянка
Нет
Противопожарная система
Нет
Санузлы
1
Совмещенная кухня-гостиная
Да
Спальни
3
Терраса
Нет
Тип фундамента
Свайный
Тип кровли
Толщина внешних стен
200 мм
Толщина внутренних перегородок
150 мм
Улучшенные шумовые характеристики
Да
Вентиляция
Естественная
Веранда
Нет
Водоотведение
2 варианта
Водоснабжение
2 варианта
Высота дома
5.3 м
Высота потолков
2.85 м

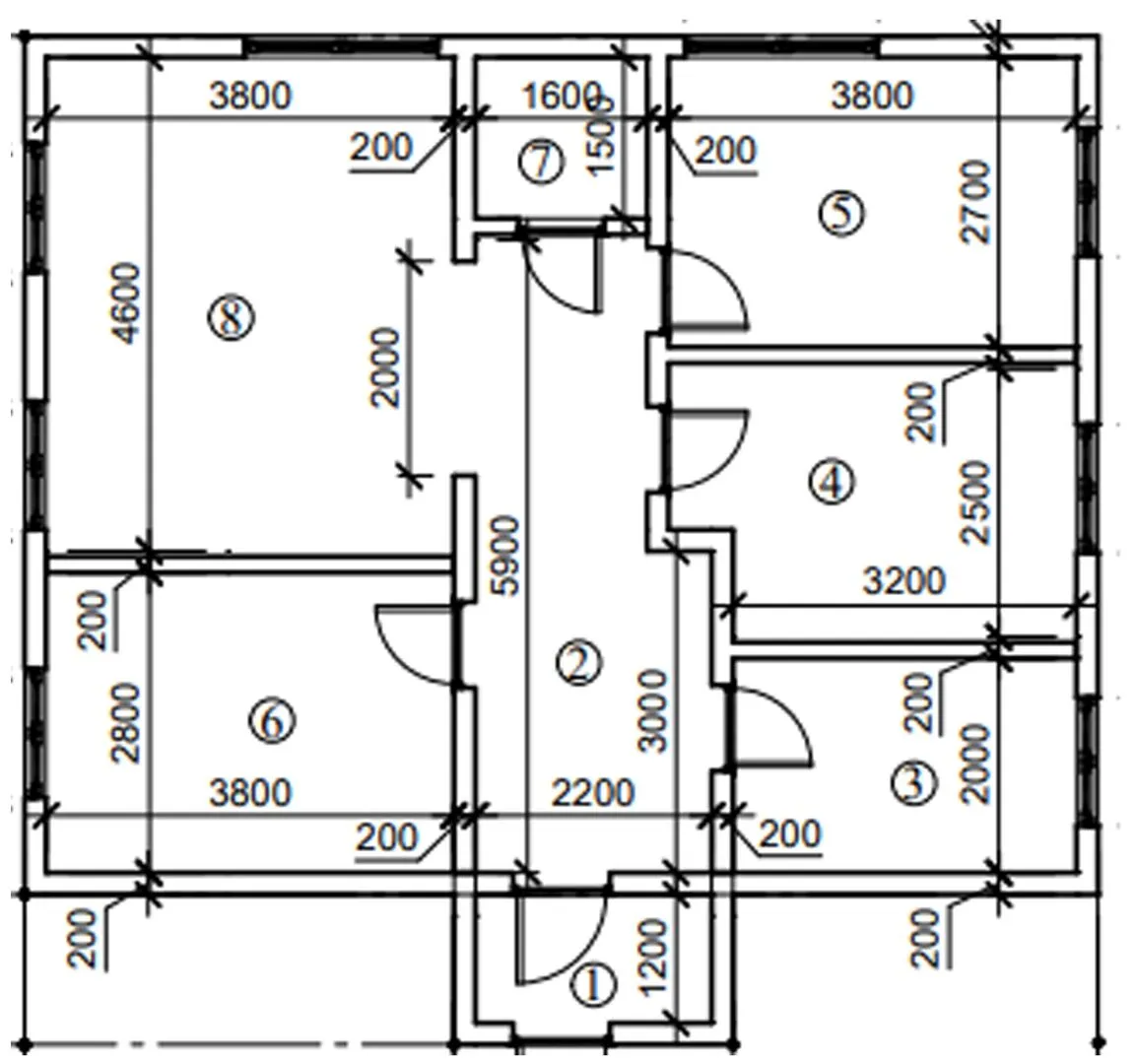
Планировка

Фасад дома

Александр

Закажите выезд инженера

Александр

Выездной инженер
Закажите выезд инженера для точной диагностики и профессиональной консультации по инженерным системам. Специалист приедет в удобное время, проведёт осмотр, рассчитает стоимость работ и подберёт оптимальные решения для вашего дома.


    Похожие проекты

    Ипотека и
    рассрочка
    ХИТАЧИ
    Стоимость от:
    4 747 875
    Проект от: 33 750
    Этажей 1
    Санузлы 1
    Спальни 2
    Смотреть
    Ипотека и
    рассрочка
    Валенсия 129
    Стоимость от:
    7 723 860
    Проект от: 58 050
    Этажей 2
    Санузлы 2
    Спальни 4
    Смотреть
    Ипотека и
    рассрочка
    Двухэтажный дом со вторым светом -«Алисова»
    Стоимость от:
    9 871 680
    Проект от: 59 400
    Этажей 2
    Санузлы 2
    Спальни 4
    Смотреть
    Ипотека и
    рассрочка
    ФД 77
    Стоимость от:
    10 092 120
    Проект от: 68 850
    Этажей 2
    Санузлы 1
    Спальни 3
    Смотреть
    Ипотека и
    рассрочка
    СКАНДИ
    Стоимость от:
    4 115 870
    Проект от: 31 950
    Этажей 1
    Санузлы 1
    Спальни 2
    Смотреть
    Ипотека и
    рассрочка
    Мечта 2021
    Стоимость от:
    12 604 460
    Проект от: 73 350
    Этажей 1
    Санузлы 1
    Спальни 3
    Смотреть

    Как узнать стоимость дома

    back
    Оставляете заявку
    Вы заполняете форму на сайте или звоните нам. Менеджер Лайвкрафт связывается с вами для уточнения деталей: тип дома, площадь, материалы, участок строительства.
    back
    Консультация и подбор решения
    Наш специалист помогает выбрать оптимальный тип дома и конструкцию с учётом бюджета, сроков и целей — будь то дом для постоянного проживания или дача.
    back
    Расчёт предварительной стоимости
    Инженер делает первичный расчёт стоимости строительства по вашим параметрам: фундамент, коробка, кровля, отделка. Вы получаете смету с разбивкой по этапам.
    back
    Корректировка и утверждение сметы
    При необходимости вносим изменения — например, замену материалов или сокращение этапов. После согласования формируется окончательная фиксированная смета.
    back
    Заключение договора и старт работ
    После утверждения сметы заключаем официальный договор с гарантией. Вы получаете прозрачный график и точную стоимость — без скрытых расходов.

    Заказать конусльтацию по:Дом из профилированного бруса 24-10-01

    Фото 1 Дом из профилированного бруса 24-10-01


      Наши
      контакты

      Дмитров
      Опорный проезд 28Б
      (индустриальный парк Ниагара)
      9:00 до 18:00

      Корзина