4.9
Рейтинг на основании 120 отзывов
Дмитров
Опорный проезд 28Б
(индустриальный парк Ниагара)
Бренд "Дмитров-Дело" c 2008 года на рынке строительства в Дмитрове
Звоните 9:00 до 18:00 8 (915) 055-33-61
Бренд "Дмитров-Дело" c 2008 года на рынке строительства в Дмитрове

Загородный дом АС-276

Стоимость проекта от:
19 350 ₽
БЕСПЛАТНО! ПРИ ЗАКАЗЕ СТРОИТЕЛЬСТВА
Стоимость строительства от:
3 239 060 ₽
Артикул ART-18300
Дата 26.12.2025
Архитектурный стиль Классический
Количество надземных этажей 1
Круглогодичное проживание Нет
Площадь дома 43 м2
Санузлы 1
Спальни 1

Описание

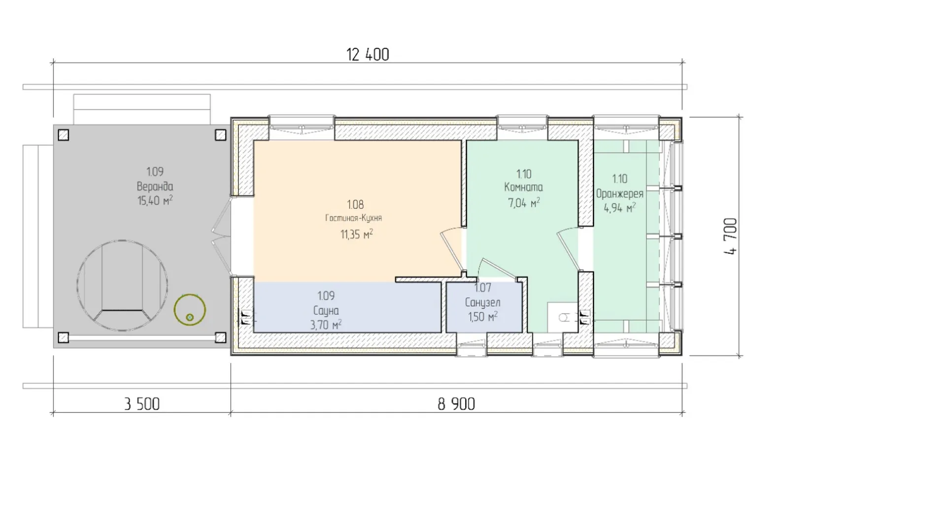
Представляем вам идиллический загородный дом АС‑276 — воплощение спокойствия и утончённого вкуса в классическом архитектурном стиле. Его элегантные линии и изысканные детали создают уютную атмосферу, превращая каждый визит в настоящее путешествие в мир гармонии и красоты. Дом рассчитан на один надземный этаж, что придаёт ему простоту и лёгкость, а классический стиль в сочетании с современными материалами гарантирует долговечность и энергоэффективность. Невзирая на отсутствие балконов и террас, ваш образ жизни будет обогащён просторной верандой, которая станет идеальным местом для чтения, наблюдения за рассветом или вечерних бесед на воздухе. Внешние стены, выполненные из газобетонных блоков, обеспечивают теплоизоляцию и долгий срок службы, а двускатная крыша добавляет неповторимый шарм и защищает дом от суровых погодных условий. Без пристроенного гаража ваш дом будет чистым и аккуратным, а отсутствие чердачных и лоджийных помещений позволяет наслаждаться максимальным пространством и простотой. Этот дом станет не просто вашим домом, а настоящим убежищем, где каждая деталь продумана, чтобы ваше пребывание было комфортным и наполненным вдохновением. Приглашаем вас открыть для себя уют и элегантность дома АС‑276, где каждый день начинается с улыбки и заканчивается гармонией.

Характеристики дома

Архитектурный стиль
Автоматизированное регулирование параметров теплоносителя
Нет
Балконы/лоджии
Отсутствуют
Чердачное помещение
Нет
Датчики протечки воды
Нет
Эксплуатируемая или зеленая кровля
Нет
Электроснабжение
Центральное
Газоснабжение
Индивидуальное
Изоляция воздушного шума
Нет
Камин
Да
Класс энергоэффективности
-
Класс энергосбережения
-
Количество надземных этажей
1
Круглогодичное проживание
Нет
Материал кровли
Металлочерепица
Материал перекрытий
Деревянные
Материал внешних стен
Материал внутренних перегородок
Блочные
Модульное строительство с конструкциями заводского изготовления
Нет
Объем надземной части
155 м3
Основной материал фасадов
Сайдинг
Отопление
Индивидуальное
Площадь дома
43 м2
Площадь застройки
62 м2
Подвальное помещение
Нет
Показатель компактности здания
-
Приборы учета тепловой энергии
Нет
Пристроенный гараж/крытая автостоянка
Нет
Противопожарная система
Нет
Санузлы
1
Совмещенная кухня-гостиная
Да
Спальни
1
Терраса
Нет
Тип фундамента
Свайно-ростверковый
Тип кровли
Толщина внешних стен
300 мм
Толщина внутренних перегородок
100 мм
Улучшенные шумовые характеристики
Нет
Вентиляция
Естественная
Веранда
Да
Водоотведение
Локальные очистные сооружения
Водоснабжение
Центральное
Высота дома
4.54 м
Высота потолков
2.8 м

Планировка

Фасад дома

Александр

Закажите выезд инженера

Александр

Выездной инженер
Закажите выезд инженера для точной диагностики и профессиональной консультации по инженерным системам. Специалист приедет в удобное время, проведёт осмотр, рассчитает стоимость работ и подберёт оптимальные решения для вашего дома.


    Похожие проекты

    Ипотека и
    рассрочка
    РТ-70
    Стоимость от:
    5 414 640
    Проект от: 32 400
    Этажей 1
    Санузлы 1
    Спальни 3
    Смотреть
    Ипотека и
    рассрочка
    Дом по проекту»Кристал»
    Стоимость от:
    4 696 780
    Проект от: 33 300
    Этажей 1
    Санузлы 1
    Спальни 2
    Смотреть
    Ипотека и
    рассрочка
    Загородный дом по проекту «Даррен».
    Стоимость от:
    6 251 520
    Проект от: 43 200
    Этажей 1
    Санузлы 1
    Спальни 3
    Смотреть
    Ипотека и
    рассрочка
    Каркасный дом 19х12 Оржицы 22РИ12.00
    Стоимость от:
    11 850 300
    Проект от: 89 100
    Этажей 2
    Санузлы 3
    Спальни 5
    Смотреть
    Ипотека и
    рассрочка
    Двухэтажное шале №236
    Стоимость от:
    13 269 600
    Проект от: 85 500
    Этажей 2
    Санузлы 3
    Спальни 5
    Смотреть
    Ипотека и
    рассрочка
    Одноэтажный жилой дом из клеёного бруса Велес КБ-198
    Стоимость от:
    13 547 160
    Проект от: 89 100
    Этажей 1
    Санузлы 2
    Спальни 3
    Смотреть

    Как узнать стоимость дома

    back
    Оставляете заявку
    Вы заполняете форму на сайте или звоните нам. Менеджер Лайвкрафт связывается с вами для уточнения деталей: тип дома, площадь, материалы, участок строительства.
    back
    Консультация и подбор решения
    Наш специалист помогает выбрать оптимальный тип дома и конструкцию с учётом бюджета, сроков и целей — будь то дом для постоянного проживания или дача.
    back
    Расчёт предварительной стоимости
    Инженер делает первичный расчёт стоимости строительства по вашим параметрам: фундамент, коробка, кровля, отделка. Вы получаете смету с разбивкой по этапам.
    back
    Корректировка и утверждение сметы
    При необходимости вносим изменения — например, замену материалов или сокращение этапов. После согласования формируется окончательная фиксированная смета.
    back
    Заключение договора и старт работ
    После утверждения сметы заключаем официальный договор с гарантией. Вы получаете прозрачный график и точную стоимость — без скрытых расходов.

    Заказать конусльтацию по:Загородный дом АС-276

    Фото 1 Загородный дом АС-276


      Наши
      контакты

      Дмитров
      Опорный проезд 28Б
      (индустриальный парк Ниагара)
      9:00 до 18:00

      Корзина