4.9
Рейтинг на основании 120 отзывов
Дмитров
Опорный проезд 28Б
(индустриальный парк Ниагара)
Бренд "Дмитров-Дело" c 2008 года на рынке строительства в Дмитрове
Звоните 9:00 до 18:00 8 (915) 055-33-61
Бренд "Дмитров-Дело" c 2008 года на рынке строительства в Дмитрове

Дом «ИЖС-Эконом»

Стоимость проекта от:
25 200 ₽
БЕСПЛАТНО! ПРИ ЗАКАЗЕ СТРОИТЕЛЬСТВА
Стоимость строительства от:
4 091 120 ₽
Артикул ART-18182
Дата 26.12.2025
Архитектурный стиль Классический
Количество надземных этажей 1
Круглогодичное проживание Да
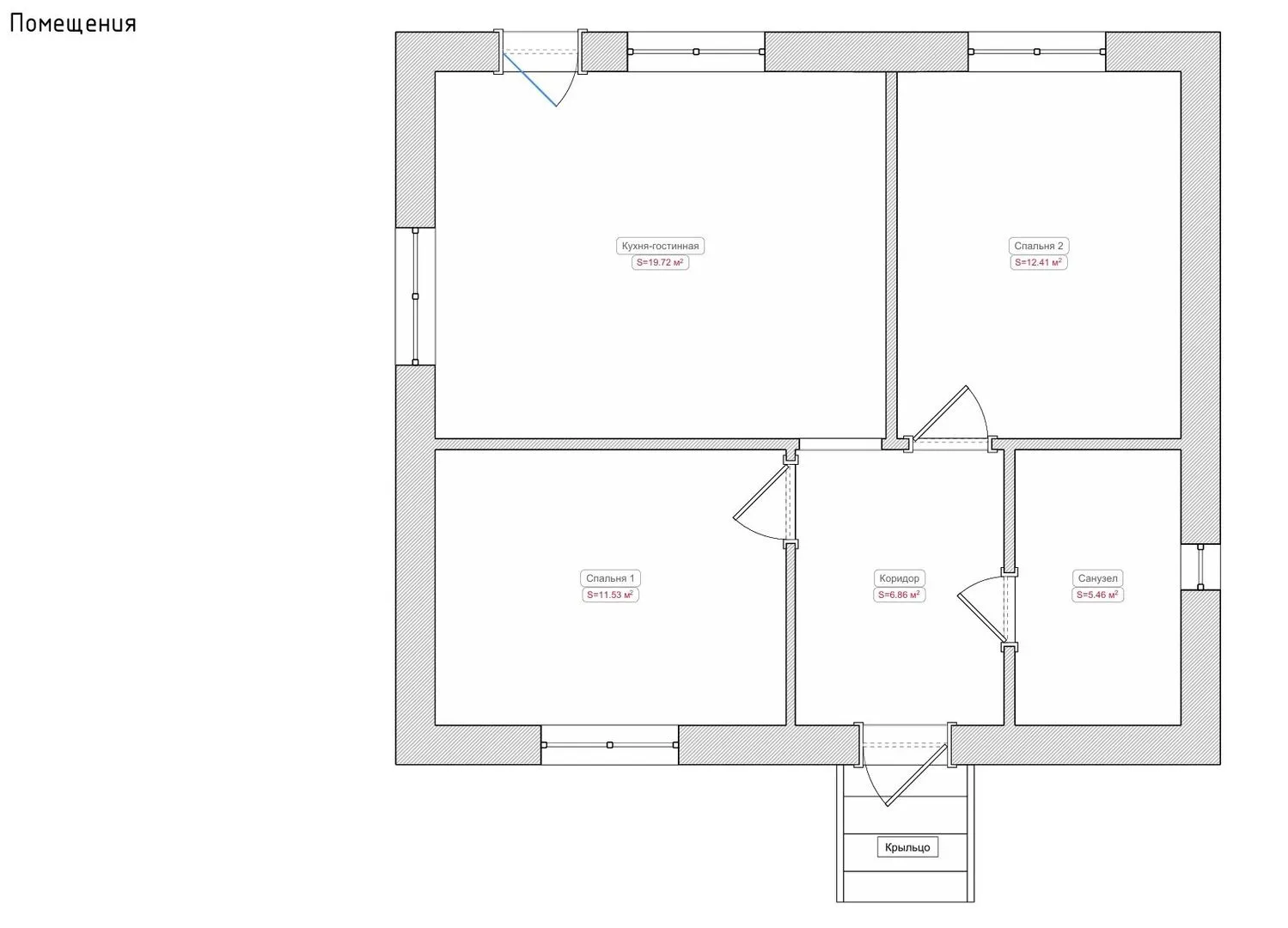
Площадь дома 56 м2
Санузлы 1
Спальни 2

Описание

Дом «ИЖС‑Эконом» — это стильное, классическое решение для тех, кто ценит уют и практичность, не отказываясь при этом от элегантного внешнего облика. Уровень утепления газобетонных блоков обеспечивает высокий класс энергоэффективности: тепло изнутри остается в доме всё течение года, а холодный ветер уходит за пределы, гарантируя круглогодичную комфортную температуру. Просторный одиннадцатый этаж оформлен в строгом классическом стиле: симметричная фасадная архитектура, аккуратные детали и насыщенный цвет создают ощущение надёжности и благородства. Каждый элемент дома продуман так, чтобы жизнь в нём была приятной и без хлопот. Отсутствие балконов, веранд и автомобильных стоянок не уменьшают его привлекательности: в этом месте главные ценности — внутренний уют, порядок и простота. Четырёхскатная вальмовая крыша не только подчёркивает классическую гармонию фасада, но и обеспечивает надёжную защиту от осадков, придавая дому уверенную и стабильную «оболочку». При желании, на будущие развивающиеся потребности возможно легко добавить личный гараж или современное террасное пространство. Таким образом, «ИЖС‑Эконом» – это сочетание классической эстетики, технического надёжного исполнения и экономии стоимости. Это идеальный выбор для семей, ищущих свой первый дом, а также для тех, кто ценит комфорт, стиль и практичность в одном упорядоченном пакете.

Характеристики дома

Архитектурный стиль
Автоматизированное регулирование параметров теплоносителя
Нет
Балконы/лоджии
Отсутствуют
Чердачное помещение
Нет
Датчики протечки воды
Нет
Эксплуатируемая или зеленая кровля
Нет
Электроснабжение
Центральное
Газоснабжение
Не предусмотрено
Изоляция воздушного шума
Нет
Камин
Нет
Класс энергоэффективности
-
Класс энергосбережения
-
Количество надземных этажей
1
Круглогодичное проживание
Да
Материал кровли
Битумная черепица
Материал перекрытий
Деревянные
Материал внешних стен
Материал внутренних перегородок
Кирпичные
Модульное строительство с конструкциями заводского изготовления
Нет
Объем надземной части
195 м3
Основной материал фасадов
Облицовочный кирпич
Отопление
Индивидуальное
Площадь дома
56 м2
Площадь застройки
72 м2
Подвальное помещение
Нет
Показатель компактности здания
-
Приборы учета тепловой энергии
Нет
Пристроенный гараж/крытая автостоянка
Нет
Противопожарная система
Нет
Санузлы
1
Совмещенная кухня-гостиная
Да
Спальни
2
Терраса
Нет
Тип фундамента
Свайно-ростверковый
Толщина внешних стен
430 мм
Толщина внутренних перегородок
120 мм
Улучшенные шумовые характеристики
Нет
Вентиляция
Естественная
Веранда
Нет
Водоотведение
Локальные очистные сооружения
Водоснабжение
2 варианта
Высота дома
5.26 м
Высота потолков
2.9 м

Планировка

Фасад дома

Александр

Закажите выезд инженера

Александр

Выездной инженер
Закажите выезд инженера для точной диагностики и профессиональной консультации по инженерным системам. Специалист приедет в удобное время, проведёт осмотр, рассчитает стоимость работ и подберёт оптимальные решения для вашего дома.


    Похожие проекты

    Ипотека и
    рассрочка
    Одноэтажный дом РХ 80
    Стоимость от:
    6 014 800
    Проект от: 36 000
    Этажей 1
    Санузлы 1
    Спальни 3
    Смотреть
    Ипотека и
    рассрочка
    Проект жилого 2-х этажного дома
    Стоимость от:
    13 733 520
    Проект от: 86 850
    Этажей 2
    Санузлы 1
    Спальни 4
    Смотреть
    Ипотека и
    рассрочка
    Свобода 90
    Стоимость от:
    6 689 980
    Проект от: 40 050
    Этажей 1
    Санузлы 1
    Спальни 2
    Смотреть
    Ипотека и
    рассрочка
    Nordic 150
    Стоимость от:
    9 520 500
    Проект от: 67 500
    Этажей 1
    Санузлы 2
    Спальни 4
    Смотреть
    Ипотека и
    рассрочка
    Дом №3_п. Горная поляна ул. Александра Баскакова 27в
    Стоимость от:
    6 858 280
    Проект от: 42 300
    Этажей 1
    Санузлы 2
    Спальни 3
    Смотреть
    Ипотека и
    рассрочка
    Проект 116
    Стоимость от:
    8 394 240
    Проект от: 52 200
    Этажей 2
    Санузлы 2
    Спальни 4
    Смотреть

    Как узнать стоимость дома

    back
    Оставляете заявку
    Вы заполняете форму на сайте или звоните нам. Менеджер Лайвкрафт связывается с вами для уточнения деталей: тип дома, площадь, материалы, участок строительства.
    back
    Консультация и подбор решения
    Наш специалист помогает выбрать оптимальный тип дома и конструкцию с учётом бюджета, сроков и целей — будь то дом для постоянного проживания или дача.
    back
    Расчёт предварительной стоимости
    Инженер делает первичный расчёт стоимости строительства по вашим параметрам: фундамент, коробка, кровля, отделка. Вы получаете смету с разбивкой по этапам.
    back
    Корректировка и утверждение сметы
    При необходимости вносим изменения — например, замену материалов или сокращение этапов. После согласования формируется окончательная фиксированная смета.
    back
    Заключение договора и старт работ
    После утверждения сметы заключаем официальный договор с гарантией. Вы получаете прозрачный график и точную стоимость — без скрытых расходов.

    Заказать конусльтацию по:Дом «ИЖС-Эконом»

    Фото 1 Дом «ИЖС-Эконом»


      Наши
      контакты

      Дмитров
      Опорный проезд 28Б
      (индустриальный парк Ниагара)
      9:00 до 18:00

      Корзина