4.9
Рейтинг на основании 120 отзывов
Дмитров
Опорный проезд 28Б
(индустриальный парк Ниагара)
Бренд "Дмитров-Дело" c 2008 года на рынке строительства в Дмитрове
Звоните 9:00 до 18:00 8 (915) 055-33-61
Бренд "Дмитров-Дело" c 2008 года на рынке строительства в Дмитрове

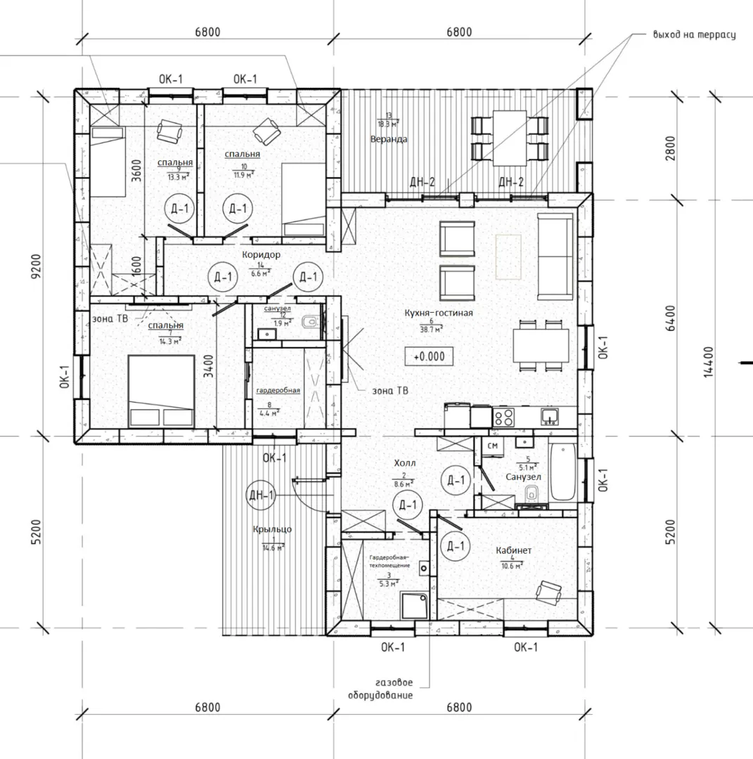
Дом Хайтек 155 один этаж

Стоимость проекта от:
62 100 ₽
БЕСПЛАТНО! ПРИ ЗАКАЗЕ СТРОИТЕЛЬСТВА
Стоимость строительства от:
9 441 960 ₽
Артикул ART-17424
Дата 26.12.2025
Архитектурный стиль Хайтек
Количество надземных этажей 1
Круглогодичное проживание Да
Площадь дома 138 м2
Санузлы 3
Спальни 4

Описание

Добро пожаловать в современный дом «Хайтек 155», где каждая деталь пронизана простотой и функциональностью. Это идеальный вариант одинэнгечного жилья, созданного для тех, кто ценит комфорт и открывает двери круглогодичного проживания. Чистые линии фасада и лаконичный стиль создают впечатление лёгкости и свежести – это настоящий современный оазис в любой обстановке. Гостей ждет просторная веранда, где можно провести вечерную беседу у окна, погрузиться в тишину и насладиться природой. Отсутствие балконов и лоджий позволяет сохранять целостность планировки, а отсутствие чердака делает пространство более открытым и простым в уходе. Всё пространство разработано так, чтобы каждый уголок был удобен и приятен в использовании, а один этаж обеспечивает беззаботную доступность и безопасность. Стены дома выполнены из полистиробетона, который сочетает в себе отличную тепло- и звукоизоляцию с легкостью монтажа. Плоская крыша открывает возможности для установки солнечных панелей или создания зеленого пространства, а отсутствие внешних перегородок делает его идеальным для экологичных технологий. Такой дом – это надёжное вложение в будущее, где простота, уют и современные технологии соединяются в единое целое.

Характеристики дома

Архитектурный стиль
Автоматизированное регулирование параметров теплоносителя
Да
Балконы/лоджии
Отсутствуют
Чердачное помещение
Нет
Датчики протечки воды
Да
Эксплуатируемая или зеленая кровля
Да
Электроснабжение
2 варианта
Газоснабжение
2 варианта
Изоляция воздушного шума
Да
Камин
Нет
Класс энергоэффективности
A++
Класс энергосбережения
A++
Количество надземных этажей
1
Круглогодичное проживание
Да
Материал кровли
ПВХ мембраны
Материал перекрытий
Монолитные железобетонные по металлическим балкам
Материал внешних стен
Материал внутренних перегородок
Блочные
Модульное строительство с конструкциями заводского изготовления
Да
Объем надземной части
465 м3
Основной материал фасадов
Искусственный камень
Отопление
2 варианта
Площадь дома
138 м2
Площадь застройки
155 м2
Подвальное помещение
Нет
Показатель компактности здания
0.9
Приборы учета тепловой энергии
Да
Пристроенный гараж/крытая автостоянка
Нет
Противопожарная система
Нет
Санузлы
3
Совмещенная кухня-гостиная
Да
Спальни
4
Терраса
Нет
Тип фундамента
Плитный
Тип кровли
Толщина внешних стен
400 мм
Толщина внутренних перегородок
100 мм
Улучшенные шумовые характеристики
Да
Вентиляция
2 варианта
Веранда
Да
Водоотведение
2 варианта
Водоснабжение
2 варианта
Высота дома
3.4 м
Высота потолков
3 м

Планировка

Фасад дома

Александр

Закажите выезд инженера

Александр

Выездной инженер
Закажите выезд инженера для точной диагностики и профессиональной консультации по инженерным системам. Специалист приедет в удобное время, проведёт осмотр, рассчитает стоимость работ и подберёт оптимальные решения для вашего дома.


    Похожие проекты

    Ипотека и
    рассрочка
    Двухэтажный дом со вторым светом в гостиной S-136-2
    Стоимость от:
    10 170 240
    Проект от: 61 200
    Этажей 2
    Санузлы 2
    Спальни 6
    Смотреть
    Ипотека и
    рассрочка
    Авторский проект «Хантер»
    Стоимость от:
    18 794 160
    Проект от: 121 050
    Этажей 2
    Санузлы 3
    Спальни 3
    Смотреть
    Ипотека и
    рассрочка
    Загородный дом «Баланс» площадью застройки 75м2
    Стоимость от:
    4 214 320
    Проект от: 25 200
    Этажей 1
    Санузлы 1
    Спальни 2
    Смотреть
    Ипотека и
    рассрочка
    Одноэтажный дом FIXPLANS — 2636
    Стоимость от:
    5 984 440
    Проект от: 36 900
    Этажей 1
    Санузлы 1
    Спальни 2
    Смотреть
    Ипотека и
    рассрочка
    CERTUSHAUS60
    Стоимость от:
    4 182 750
    Проект от: 33 750
    Этажей 1
    Санузлы 1
    Спальни 2
    Смотреть
    Ипотека и
    рассрочка
    Малина 99
    Стоимость от:
    8 865 560
    Проект от: 53 100
    Этажей 1
    Санузлы 2
    Спальни 3
    Смотреть

    Как узнать стоимость дома

    back
    Оставляете заявку
    Вы заполняете форму на сайте или звоните нам. Менеджер Лайвкрафт связывается с вами для уточнения деталей: тип дома, площадь, материалы, участок строительства.
    back
    Консультация и подбор решения
    Наш специалист помогает выбрать оптимальный тип дома и конструкцию с учётом бюджета, сроков и целей — будь то дом для постоянного проживания или дача.
    back
    Расчёт предварительной стоимости
    Инженер делает первичный расчёт стоимости строительства по вашим параметрам: фундамент, коробка, кровля, отделка. Вы получаете смету с разбивкой по этапам.
    back
    Корректировка и утверждение сметы
    При необходимости вносим изменения — например, замену материалов или сокращение этапов. После согласования формируется окончательная фиксированная смета.
    back
    Заключение договора и старт работ
    После утверждения сметы заключаем официальный договор с гарантией. Вы получаете прозрачный график и точную стоимость — без скрытых расходов.

    Заказать конусльтацию по:Дом Хайтек 155 один этаж

    Фото 1 Дом Хайтек 155 один этаж


      Наши
      контакты

      Дмитров
      Опорный проезд 28Б
      (индустриальный парк Ниагара)
      9:00 до 18:00

      Корзина