4.9
Рейтинг на основании 120 отзывов
Дмитров
Опорный проезд 28Б
(индустриальный парк Ниагара)
Бренд "Дмитров-Дело" c 2008 года на рынке строительства в Дмитрове
Звоните 9:00 до 18:00 8 (915) 055-33-61
Бренд "Дмитров-Дело" c 2008 года на рынке строительства в Дмитрове

Дом «Хвоя 4.92» с большой студией и 4 спальнями

Стоимость проекта от:
41 400 ₽
БЕСПЛАТНО! ПРИ ЗАКАЗЕ СТРОИТЕЛЬСТВА
Стоимость строительства от:
5 395 800 ₽
Артикул ART-19285
Дата 26.12.2025
Архитектурный стиль Минимализм
Количество надземных этажей 2
Круглогодичное проживание Да
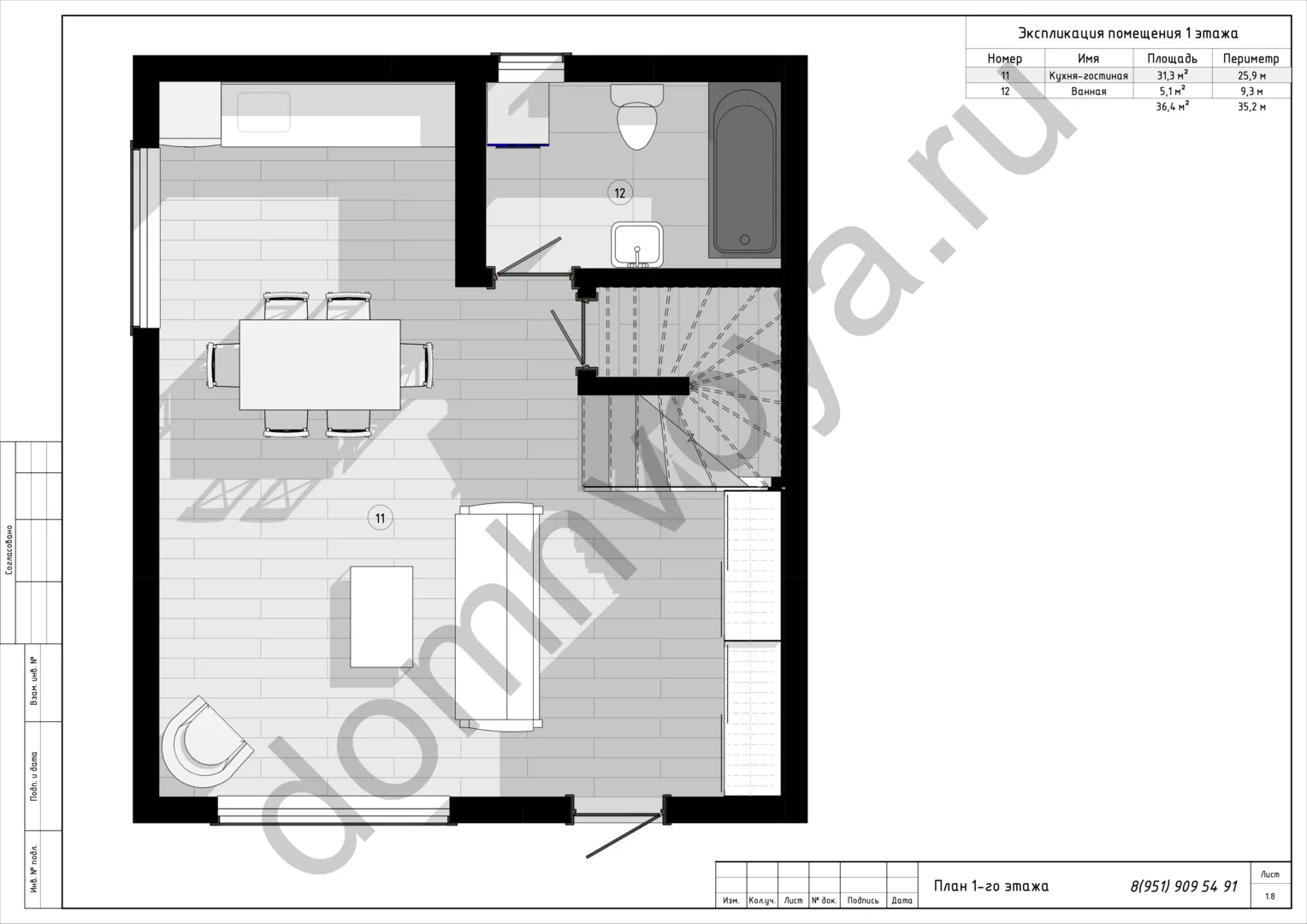
Площадь дома 92 м2
Санузлы 1
Спальни 4

Описание

**Дом "Хвоя 4.92"** – это воплощение спокойствия и уюта в стиле минимализма, где каждый уголок пронизан природной теплотой. Расположенный в тихом районе, он сочетает простоту современных форм с гармонией традиционных материалов. На двух надземных этажах расположены просторная студия, где стены, выполненные из натурального дерева, создают ощущение природного очага, и четыре уютные спальни, каждая из которых сохраняет атмосферу спокойной свежести. Здесь нет лишних шумов и лишних украшений: чистые линии, открытые пространства, естественное освещение и открытая кухня – всё, что нужно, чтобы каждый день начинался с новых идей и вдохновения. Внутреннее пространство продуманно до мелочей: огромная студия идеальна для креативных работ, домашнего кинотеатра или уютных вечеров с книгой; спальни с прямыми окнами наполняются солнечным светом, а тихий переход из гостиной в столовую позволяет ощутить единую, продолжительную ритм жизни. Стены, обрамленные деревянными панелями, мягко поглаживают взгляд, а открытая планировка позволяет свободно перемещаться без ограничений. В этом доме каждая деталь играет роль, обеспечивая функциональное решение и атмосферу тепла. Внешний облик дома – строгий деревянный каркас и плоская, современная крыша, позволяющая использовать пространство под крышей в качестве тихого уголка для отдыха. Дом полностью подготовлен к круглогодичному проживанию: утепленные стены, современные окна и продуманная электросистема делают его комфортным даже в самые холодные вечера. Отсутствие дополнительных балконов, веранд и гаражей подчёркивает чистоту форм и делает акцент на внутреннем пространстве, создавая благоприятную, гармоничную атмосферу, где каждый член семьи сможет найти свой уголок уюта.

Характеристики дома

Архитектурный стиль
Автоматизированное регулирование параметров теплоносителя
Нет
Балконы/лоджии
Отсутствуют
Чердачное помещение
Нет
Датчики протечки воды
Да
Эксплуатируемая или зеленая кровля
Нет
Электроснабжение
Центральное
Газоснабжение
Не предусмотрено
Изоляция воздушного шума
Нет
Камин
Да
Класс энергоэффективности
-
Класс энергосбережения
-
Количество надземных этажей
2
Круглогодичное проживание
Да
Материал кровли
ПВХ мембраны
Материал перекрытий
Деревянные
Материал внешних стен
Материал внутренних перегородок
Деревянные
Модульное строительство с конструкциями заводского изготовления
Нет
Объем надземной части
292 м3
Основной материал фасадов
Дерево
Отопление
Индивидуальное
Площадь дома
92 м2
Площадь застройки
46 м2
Подвальное помещение
Нет
Показатель компактности здания
-
Приборы учета тепловой энергии
Нет
Пристроенный гараж/крытая автостоянка
Нет
Противопожарная система
Да
Санузлы
1
Совмещенная кухня-гостиная
Да
Спальни
4
Терраса
Нет
Тип фундамента
Свайно-винтовой
Тип кровли
Толщина внешних стен
230 мм
Толщина внутренних перегородок
130 мм
Улучшенные шумовые характеристики
Нет
Вентиляция
2 варианта
Веранда
Нет
Водоотведение
Локальные очистные сооружения
Водоснабжение
Индивидуальное
Высота дома
6.31 м
Высота потолков
2.7 м

Планировка

Фасад дома

Александр

Закажите выезд инженера

Александр

Выездной инженер
Закажите выезд инженера для точной диагностики и профессиональной консультации по инженерным системам. Специалист приедет в удобное время, проведёт осмотр, рассчитает стоимость работ и подберёт оптимальные решения для вашего дома.


    Похожие проекты

    Ипотека и
    рассрочка
    Д2-199
    Стоимость от:
    12 827 280
    Проект от: 87 300
    Этажей 2
    Санузлы 2
    Спальни 4
    Смотреть
    Ипотека и
    рассрочка
    «OKSODOMIK-63 в 1 этаж»
    Стоимость от:
    4 310 460
    Проект от: 28 350
    Этажей 1
    Санузлы 1
    Спальни 2
    Смотреть
    Ипотека и
    рассрочка
    Дом из газобетона «Блоу 70»
    Стоимость от:
    4 623 960
    Проект от: 26 100
    Этажей 1
    Санузлы 1
    Спальни 2
    Смотреть
    Ипотека и
    рассрочка
    ЛИГА- 127_2Г
    Стоимость от:
    16 885 440
    Проект от: 110 700
    Этажей 2
    Санузлы 2
    Спальни 3
    Смотреть
    Ипотека и
    рассрочка
    ЧС-175
    Стоимость от:
    13 690 320
    Проект от: 82 350
    Этажей 2
    Санузлы 2
    Спальни 4
    Смотреть
    Ипотека и
    рассрочка
    Одноэтажный жилой дом №09-09-24
    Стоимость от:
    12 319 780
    Проект от: 76 050
    Этажей 1
    Санузлы 2
    Спальни 3
    Смотреть

    Как узнать стоимость дома

    back
    Оставляете заявку
    Вы заполняете форму на сайте или звоните нам. Менеджер Лайвкрафт связывается с вами для уточнения деталей: тип дома, площадь, материалы, участок строительства.
    back
    Консультация и подбор решения
    Наш специалист помогает выбрать оптимальный тип дома и конструкцию с учётом бюджета, сроков и целей — будь то дом для постоянного проживания или дача.
    back
    Расчёт предварительной стоимости
    Инженер делает первичный расчёт стоимости строительства по вашим параметрам: фундамент, коробка, кровля, отделка. Вы получаете смету с разбивкой по этапам.
    back
    Корректировка и утверждение сметы
    При необходимости вносим изменения — например, замену материалов или сокращение этапов. После согласования формируется окончательная фиксированная смета.
    back
    Заключение договора и старт работ
    После утверждения сметы заключаем официальный договор с гарантией. Вы получаете прозрачный график и точную стоимость — без скрытых расходов.

    Заказать конусльтацию по:Дом «Хвоя 4.92» с большой студией и 4 спальнями

    Фото 1 Дом «Хвоя 4.92» с большой студией и 4 спальнями


      Наши
      контакты

      Дмитров
      Опорный проезд 28Б
      (индустриальный парк Ниагара)
      9:00 до 18:00

      Корзина