4.9
Рейтинг на основании 120 отзывов
Дмитров
Опорный проезд 28Б
(индустриальный парк Ниагара)
Бренд "Дмитров-Дело" c 2008 года на рынке строительства в Дмитрове
Звоните 9:00 до 18:00 8 (915) 055-33-61
Бренд "Дмитров-Дело" c 2008 года на рынке строительства в Дмитрове

Дом Классический 200 м2

Стоимость проекта от:
91 800 ₽
БЕСПЛАТНО! ПРИ ЗАКАЗЕ СТРОИТЕЛЬСТВА
Стоимость строительства от:
13 488 480 ₽
Артикул ART-4179
Дата 26.12.2025
Архитектурный стиль Минимализм
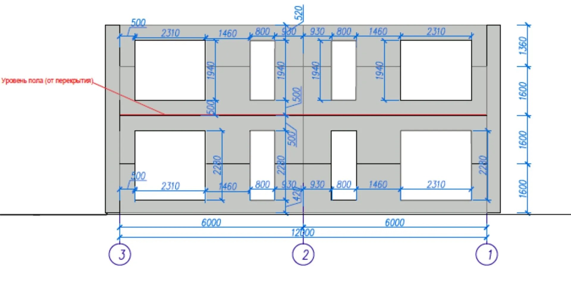
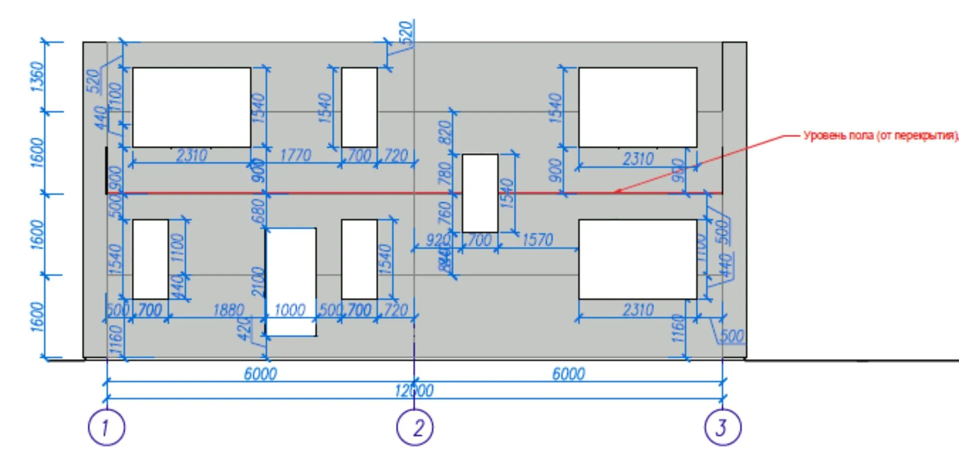
Количество надземных этажей 2
Круглогодичное проживание Да
Площадь дома 204 м2
Санузлы 2
Спальни 4

Описание

**Дом «Классический» – ваш оазис уюта и современного дизайна** Уютный и просторный, этот 200‑кв.м. двухэтажный дом сочетает в себе строгий минимализм и практичность. Конструктивная стальная база и монолитный железобетон обеспечивают долгую долговечность и теплоизоляцию, а комбинированная крыша сохраняет эстетический вид и защищает от непогоды. Внутри каждый квадратный метр продуман до мелочей: от плавных линий планировки до светлых, просторных помещений, создающих ощущение простора и свободы. При входе вы сразу почувствуете гармонию пространства: открытая гостиная с высокими потолками, где естественный свет льется из больших окон, плавно переходит в современную кухню с островом и обеденной зоной. Кожен из двух этажей устроен так, чтобы обеспечить комфорт и приватность всех членов семьи – спальни с собственными ванными включены в планировку, а гостиные зоны легко адаптируются под любые нужды. Весь дом подходит для круглогодичного проживания, а отсутствие балконов, веранд, гаража и чердака – это плюс: меньше места для ухода, меньше беспокойства за лишней инфраструктурой. **Почему именно этот дом?** Он предлагает идеальное сочетание минимализма и практичности: простые, но элегантные линии, качественные материалы и продуманные детали делают его комфортным и долговечным. С 200 м² чистого пространства и двух высот вы получаете свободу в планировании своего пространства без ограничений. Этот дом идеально подходит тем, кто ценит качество, стиль и готов инвестировать в комфортный и надёжный дом для жизни в любое время года. Откройте для себя новый уровень уюта – ваш будущий дом уже ждёт вас.

Характеристики дома

Архитектурный стиль
Автоматизированное регулирование параметров теплоносителя
-
Балконы/лоджии
Отсутствуют
Чердачное помещение
Нет
Датчики протечки воды
-
Эксплуатируемая или зеленая кровля
-
Электроснабжение
2 варианта
Газоснабжение
2 варианта
Изоляция воздушного шума
-
Камин
Нет
Класс энергоэффективности
-
Класс энергосбережения
-
Количество надземных этажей
2
Круглогодичное проживание
Да
Материал кровли
Металлочерепица
Материал перекрытий
Монолитные железобетонные
Материал внешних стен
Материал внутренних перегородок
Блочные
Модульное строительство с конструкциями заводского изготовления
Нет
Объем надземной части
714 м3
Основной материал фасадов
Искусственный камень
Отопление
2 варианта
Площадь дома
204 м2
Площадь застройки
116 м2
Подвальное помещение
Нет
Показатель компактности здания
-
Приборы учета тепловой энергии
-
Пристроенный гараж/крытая автостоянка
Нет
Противопожарная система
Нет
Санузлы
2
Совмещенная кухня-гостиная
Да
Спальни
4
Терраса
Нет
Тип фундамента
Столбчатый
Тип кровли
Толщина внешних стен
260 мм
Толщина внутренних перегородок
100 мм
Улучшенные шумовые характеристики
-
Вентиляция
Естественная
Веранда
Нет
Водоотведение
Центральное
Водоснабжение
2 варианта
Высота дома
6.16 м
Высота потолков
2.7 м

Планировка

Фасад дома

Александр

Закажите выезд инженера

Александр

Выездной инженер
Закажите выезд инженера для точной диагностики и профессиональной консультации по инженерным системам. Специалист приедет в удобное время, проведёт осмотр, рассчитает стоимость работ и подберёт оптимальные решения для вашего дома.


    Похожие проекты

    Ипотека и
    рассрочка
    Одноэтажный дом-Пясино
    Стоимость от:
    7 365 160
    Проект от: 44 100
    Этажей 1
    Санузлы 2
    Спальни 2
    Смотреть
    Ипотека и
    рассрочка
    Дачник 6х7
    Стоимость от:
    3 710 700
    Проект от: 27 900
    Этажей 2
    Санузлы 1
    Спальни 2
    Смотреть
    Ипотека и
    рассрочка
    Дом с мансардным этажом «Босбер 2.0»
    Стоимость от:
    8 457 840
    Проект от: 54 450
    Этажей 2
    Санузлы 2
    Спальни 5
    Смотреть
    Ипотека и
    рассрочка
    Сканди-1(короед)
    Стоимость от:
    8 436 120
    Проект от: 47 700
    Этажей 1
    Санузлы 2
    Спальни 3
    Смотреть
    Ипотека и
    рассрочка
    Дом из клееного бруса РП-11229
    Стоимость от:
    9 218 880
    Проект от: 59 400
    Этажей 2
    Санузлы 1
    Спальни 3
    Смотреть
    Ипотека и
    рассрочка
    Одноэтажный дом «Град»
    Стоимость от:
    6 600 880
    Проект от: 46 800
    Этажей 1
    Санузлы 2
    Спальни 2
    Смотреть

    Как узнать стоимость дома

    back
    Оставляете заявку
    Вы заполняете форму на сайте или звоните нам. Менеджер Лайвкрафт связывается с вами для уточнения деталей: тип дома, площадь, материалы, участок строительства.
    back
    Консультация и подбор решения
    Наш специалист помогает выбрать оптимальный тип дома и конструкцию с учётом бюджета, сроков и целей — будь то дом для постоянного проживания или дача.
    back
    Расчёт предварительной стоимости
    Инженер делает первичный расчёт стоимости строительства по вашим параметрам: фундамент, коробка, кровля, отделка. Вы получаете смету с разбивкой по этапам.
    back
    Корректировка и утверждение сметы
    При необходимости вносим изменения — например, замену материалов или сокращение этапов. После согласования формируется окончательная фиксированная смета.
    back
    Заключение договора и старт работ
    После утверждения сметы заключаем официальный договор с гарантией. Вы получаете прозрачный график и точную стоимость — без скрытых расходов.

    Заказать конусльтацию по:Дом Классический 200 м2

    Фото 1 Дом Классический 200 м2


      Наши
      контакты

      Дмитров
      Опорный проезд 28Б
      (индустриальный парк Ниагара)
      9:00 до 18:00

      Корзина