4.9
Рейтинг на основании 120 отзывов
Дмитров
Опорный проезд 28Б
(индустриальный парк Ниагара)
Бренд "Дмитров-Дело" c 2008 года на рынке строительства в Дмитрове
Звоните 9:00 до 18:00 8 (915) 055-33-61
Бренд "Дмитров-Дело" c 2008 года на рынке строительства в Дмитрове

Мечта 96

Стоимость проекта от:
44 100 ₽
БЕСПЛАТНО! ПРИ ЗАКАЗЕ СТРОИТЕЛЬСТВА
Стоимость строительства от:
7 365 160 ₽
Артикул ART-20656
Дата 26.12.2025
Архитектурный стиль Классический
Количество надземных этажей 1
Круглогодичное проживание Да
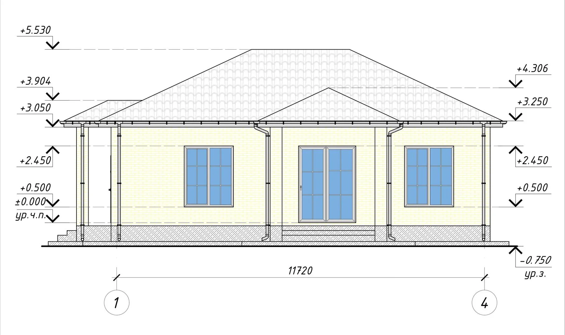
Площадь дома 98 м2
Санузлы 2
Спальни 4

Описание

В сердце спокойного городского окраина дома «Мечта 96» открывает вам уютную, но очень просторную одноквартирную резиденцию, идеально подходящую для круглогодичного проживания. Единый этаж, выполненный в строгом классическом стиле, сливается с архитектурой местности, создавая ощущение гармонии и тепла. Экспертное сочетание газобетонных блоков и четырёхскатной (валмовой) крыши гарантирует тепло зимой и прохладу в летние дни, а изысканный внешний фасад привлекает взгляды прохожих и создаёт атмосферу уюта даже после дождя. Уникальной особенностью является просторная терраса — ваше личное открытое пространство, где можно наслаждаться восходами, закатами и свободным воздухом. Здесь можно устроить романтический ужин, просто отдохнуть после трудового дня, или просто провести вечер, сидя на свежем воздухе, обмывшись звуками города. Внутри дома царит светлая и приятная атмосфера: открытая планировка, большие окна, наполненные естественным светом, и классические детали, подчёркивающие индивидуальность. Каждый квадратный метр этой квартиры — это ваш индивидуальный уголок, где соединились функциональность, комфорт и эстетика. Дом «Мечта 96» приглашает вас стать его частью, окунуться в мир спокойствия и простоты, а каждый ваш день будет сопровождаться вдохновляющим ощущением дома, который всегда ждёт.

Характеристики дома

Архитектурный стиль
Автоматизированное регулирование параметров теплоносителя
Да
Балконы/лоджии
Отсутствуют
Чердачное помещение
Нет
Датчики протечки воды
Нет
Эксплуатируемая или зеленая кровля
Нет
Электроснабжение
Центральное
Газоснабжение
Центральное
Изоляция воздушного шума
Нет
Камин
Нет
Класс энергоэффективности
-
Класс энергосбережения
-
Количество надземных этажей
1
Круглогодичное проживание
Да
Материал кровли
Металлочерепица
Материал перекрытий
Деревянные
Материал внешних стен
Материал внутренних перегородок
Блочные
Модульное строительство с конструкциями заводского изготовления
Нет
Объем надземной части
-
Основной материал фасадов
Облицовочный кирпич
Отопление
Индивидуальное
Площадь дома
98 м2
Площадь застройки
122 м2
Подвальное помещение
Нет
Показатель компактности здания
-
Приборы учета тепловой энергии
Да
Пристроенный гараж/крытая автостоянка
Нет
Противопожарная система
Нет
Санузлы
2
Совмещенная кухня-гостиная
Нет
Спальни
4
Терраса
Да
Тип фундамента
Свайно-ростверковый
Толщина внешних стен
200 мм
Толщина внутренних перегородок
150 мм
Улучшенные шумовые характеристики
Нет
Вентиляция
Естественная
Веранда
Нет
Водоотведение
Локальные очистные сооружения
Водоснабжение
Индивидуальное
Высота дома
6.28 м
Высота потолков
3.05 м

Планировка

Фасад дома

Александр

Закажите выезд инженера

Александр

Выездной инженер
Закажите выезд инженера для точной диагностики и профессиональной консультации по инженерным системам. Специалист приедет в удобное время, проведёт осмотр, рассчитает стоимость работ и подберёт оптимальные решения для вашего дома.


    Похожие проекты

    Ипотека и
    рассрочка
    Каркасный дом КД-2-116
    Стоимость от:
    7 136 160
    Проект от: 53 550
    Этажей 2
    Санузлы 2
    Спальни 4
    Смотреть
    Ипотека и
    рассрочка
    Одноэтажный дом с террасой «Репное-2»
    Стоимость от:
    7 425 990
    Проект от: 52 650
    Этажей 1
    Санузлы 1
    Спальни 3
    Смотреть
    Ипотека и
    рассрочка
    Загородный дом АС-219
    Стоимость от:
    26 136 440
    Проект от: 171 900
    Этажей 1
    Санузлы 5
    Спальни 5
    Смотреть
    Ипотека и
    рассрочка
    Одноэтажный дом Х-135
    Стоимость от:
    9 533 700
    Проект от: 60 750
    Этажей 1
    Санузлы 2
    Спальни 1
    Смотреть
    Ипотека и
    рассрочка
    Дом Wi-KiNG 5221
    Стоимость от:
    5 912 940
    Проект от: 45 900
    Этажей 1
    Санузлы 1
    Спальни 3
    Смотреть
    Ипотека и
    рассрочка
    ДОМ СП-1GD
    Стоимость от:
    8 545 020
    Проект от: 54 450
    Этажей 1
    Санузлы 2
    Спальни 3
    Смотреть

    Как узнать стоимость дома

    back
    Оставляете заявку
    Вы заполняете форму на сайте или звоните нам. Менеджер Лайвкрафт связывается с вами для уточнения деталей: тип дома, площадь, материалы, участок строительства.
    back
    Консультация и подбор решения
    Наш специалист помогает выбрать оптимальный тип дома и конструкцию с учётом бюджета, сроков и целей — будь то дом для постоянного проживания или дача.
    back
    Расчёт предварительной стоимости
    Инженер делает первичный расчёт стоимости строительства по вашим параметрам: фундамент, коробка, кровля, отделка. Вы получаете смету с разбивкой по этапам.
    back
    Корректировка и утверждение сметы
    При необходимости вносим изменения — например, замену материалов или сокращение этапов. После согласования формируется окончательная фиксированная смета.
    back
    Заключение договора и старт работ
    После утверждения сметы заключаем официальный договор с гарантией. Вы получаете прозрачный график и точную стоимость — без скрытых расходов.

    Заказать конусльтацию по:Мечта 96

    Фото 1 Мечта 96


      Наши
      контакты

      Дмитров
      Опорный проезд 28Б
      (индустриальный парк Ниагара)
      9:00 до 18:00

      Корзина