4.9
Рейтинг на основании 120 отзывов
Дмитров
Опорный проезд 28Б
(индустриальный парк Ниагара)
Бренд "Дмитров-Дело" c 2008 года на рынке строительства в Дмитрове
Звоните 9:00 до 18:00 8 (915) 055-33-61
Бренд "Дмитров-Дело" c 2008 года на рынке строительства в Дмитрове

DOM Комфорт 170

Стоимость проекта от:
73 350 ₽
БЕСПЛАТНО! ПРИ ЗАКАЗЕ СТРОИТЕЛЬСТВА
Стоимость строительства от:
9 773 520 ₽
Артикул ART-6192
Дата 26.12.2025
Архитектурный стиль Европейский
Количество надземных этажей 2
Круглогодичное проживание Да
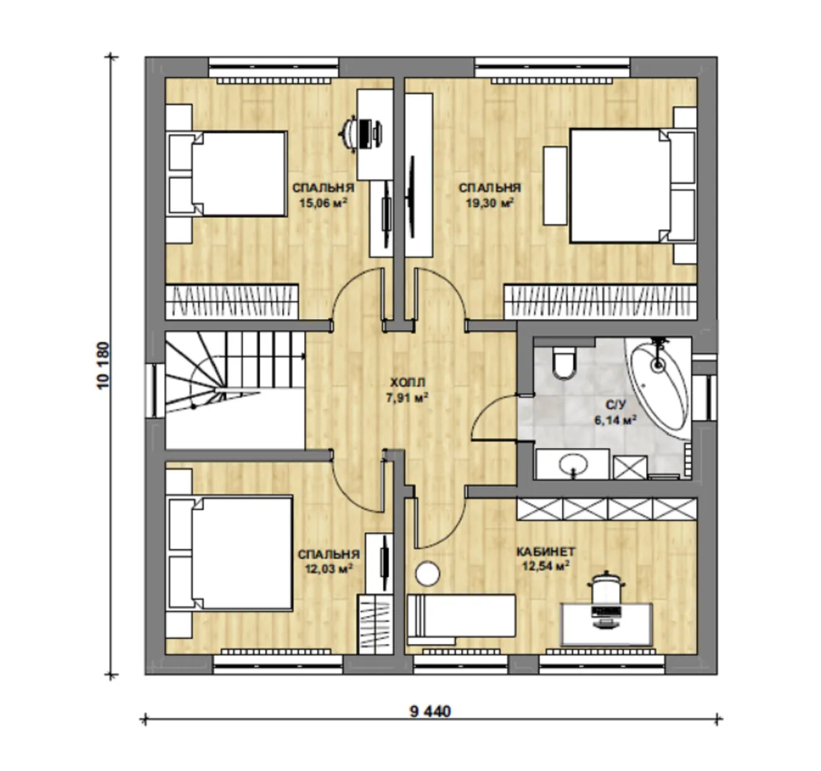
Площадь дома 163 м2
Санузлы 2
Спальни 4

Описание

DOM «Комфорт 170» — это воплощение элегантности и практичности европейского стиля в уютном двухэтажном жилище, созданное с заботой о комфорте и благополучии каждого члена семьи. Каждый момент вашего проживания здесь будет наполнен теплом и гармонией, ведь жильё рассчитано на круглогодичное пребывание: от зимних кристальных дней до летних вечеров, когда солнце касается деревянного фасада. Внешний облик дома раскрывается из стройной древесной каркаса, придающей ему изысканную тонкость и устойчивость. Крыша двухскатная, способная упрямо держать снег и защищать от ветра, при этом оставаясь эстетически привлекательной. Отдаваясь в открытое пространство, дом соединяется с природой благодаря просторной террасы, где каждый гость сможет насладиться свежим воздухом и видом на прилегающий ландшафт. Вместе с комфортной крытой автостоянкой и прикрепленным гаражом, вы не только защитите своё авто, но и создадите дополнительное пространство для хранения и мелких удобств. Внутри помещения гармонично сочетаются светлые, открытые зоны с функциональными решениями: просторные гостиные, уютные спальни, современная кухня с открытой планировкой и стильные санузлы. Благодаря продуманному плану этажей, каждый уголок дома пропитан естественным светом, а тепло сохраняется внутри благодаря качественной изоляции. Это место, где каждая деталь продумана с целью создать ощущение уюта и домашнего тепла, где можно не только жить, но и вдохновляться, отдыхать и делиться счастьем с близкими. Приглашаем вас открыть для себя дом, где уют и стиль идут рука об руку, а качество и комфорт делают каждый день особенным. Вы можете жить в этом доме, наслаждаясь неповторимой атмосферой, которую предлагает «Дом Комфорт 170».

Характеристики дома

Архитектурный стиль
Автоматизированное регулирование параметров теплоносителя
Нет
Балконы/лоджии
Отсутствуют
Чердачное помещение
Нет
Датчики протечки воды
Нет
Эксплуатируемая или зеленая кровля
Нет
Электроснабжение
2 варианта
Газоснабжение
2 варианта
Изоляция воздушного шума
Нет
Камин
Нет
Класс энергоэффективности
-
Класс энергосбережения
-
Количество надземных этажей
2
Круглогодичное проживание
Да
Материал кровли
Металлочерепица
Материал перекрытий
Деревянные
Материал внешних стен
Материал внутренних перегородок
Деревянные
Модульное строительство с конструкциями заводского изготовления
Нет
Объем надземной части
800 м3
Основной материал фасадов
Искусственный камень
Отопление
Индивидуальное
Площадь дома
163 м2
Площадь застройки
120 м2
Подвальное помещение
Нет
Показатель компактности здания
-
Приборы учета тепловой энергии
Нет
Пристроенный гараж/крытая автостоянка
Да
Противопожарная система
Нет
Санузлы
2
Совмещенная кухня-гостиная
Да
Спальни
4
Терраса
Да
Тип фундамента
Свайный
Тип кровли
Толщина внешних стен
220 мм
Толщина внутренних перегородок
150 мм
Улучшенные шумовые характеристики
Нет
Вентиляция
Естественная
Веранда
Нет
Водоотведение
2 варианта
Водоснабжение
2 варианта
Высота дома
7.5 м
Высота потолков
3 м

Планировка

Фасад дома

Александр

Закажите выезд инженера

Александр

Выездной инженер
Закажите выезд инженера для точной диагностики и профессиональной консультации по инженерным системам. Специалист приедет в удобное время, проведёт осмотр, рассчитает стоимость работ и подберёт оптимальные решения для вашего дома.


    Похожие проекты

    Ипотека и
    рассрочка
    КЛМ 132
    Стоимость от:
    7 965 320
    Проект от: 47 700
    Этажей 1
    Санузлы 2
    Спальни 3
    Смотреть
    Ипотека и
    рассрочка
    Одноэтажный дом ИП-147
    Стоимость от:
    10 440 980
    Проект от: 62 550
    Этажей 1
    Санузлы 2
    Спальни 3
    Смотреть
    Ипотека и
    рассрочка
    Одноэтажный дом с мансардой «Бастил»
    Стоимость от:
    10 468 800
    Проект от: 63 000
    Этажей 2
    Санузлы 2
    Спальни 4
    Смотреть
    Ипотека и
    рассрочка
    Одноэтажный дом ДМ- 103
    Стоимость от:
    7 590 220
    Проект от: 45 450
    Этажей 1
    Санузлы 2
    Спальни 2
    Смотреть
    Ипотека и
    рассрочка
    Статус 8х9 Яуза
    Стоимость от:
    3 468 300
    Проект от: 27 000
    Этажей 1
    Санузлы 1
    Спальни 2
    Смотреть
    Ипотека и
    рассрочка
    Одноэтажный дом размером 9*12
    Стоимость от:
    8 594 960
    Проект от: 48 600
    Этажей 1
    Санузлы 1
    Спальни 3
    Смотреть

    Как узнать стоимость дома

    back
    Оставляете заявку
    Вы заполняете форму на сайте или звоните нам. Менеджер Лайвкрафт связывается с вами для уточнения деталей: тип дома, площадь, материалы, участок строительства.
    back
    Консультация и подбор решения
    Наш специалист помогает выбрать оптимальный тип дома и конструкцию с учётом бюджета, сроков и целей — будь то дом для постоянного проживания или дача.
    back
    Расчёт предварительной стоимости
    Инженер делает первичный расчёт стоимости строительства по вашим параметрам: фундамент, коробка, кровля, отделка. Вы получаете смету с разбивкой по этапам.
    back
    Корректировка и утверждение сметы
    При необходимости вносим изменения — например, замену материалов или сокращение этапов. После согласования формируется окончательная фиксированная смета.
    back
    Заключение договора и старт работ
    После утверждения сметы заключаем официальный договор с гарантией. Вы получаете прозрачный график и точную стоимость — без скрытых расходов.

    Заказать конусльтацию по:DOM Комфорт 170

    Фото 1 DOM Комфорт 170


      Наши
      контакты

      Дмитров
      Опорный проезд 28Б
      (индустриальный парк Ниагара)
      9:00 до 18:00

      Корзина