4.9
Рейтинг на основании 120 отзывов
Дмитров
Опорный проезд 28Б
(индустриальный парк Ниагара)
Бренд "Дмитров-Дело" c 2008 года на рынке строительства в Дмитрове
Звоните 9:00 до 18:00 8 (915) 055-33-61
Бренд "Дмитров-Дело" c 2008 года на рынке строительства в Дмитрове

Дом Людмила

Стоимость проекта от:
30 600 ₽
БЕСПЛАТНО! ПРИ ЗАКАЗЕ СТРОИТЕЛЬСТВА
Стоимость строительства от:
4 069 800 ₽
Артикул ART-19322
Дата 26.12.2025
Архитектурный стиль Классический
Количество надземных этажей 2
Круглогодичное проживание Да
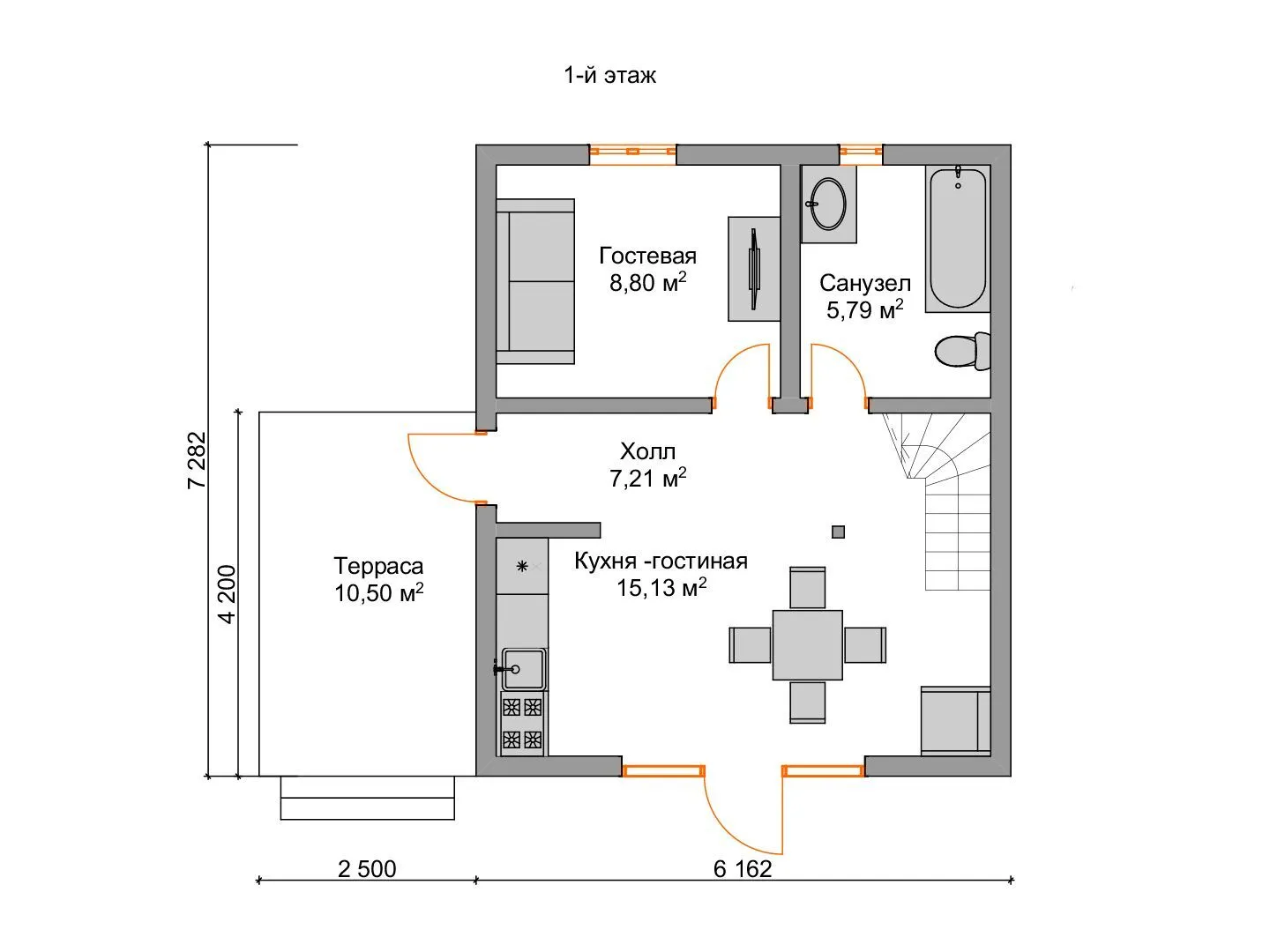
Площадь дома 68 м2
Санузлы 1
Спальни 2

Описание

Вас приветствует «Дом Людмила» – настоящий уголок классической гармонии, где каждая деталь пронизана вниманием к уюту и традициям. С двумя надземными этажами вы сможете организовать пространство по своему вкусу: от просторных кухонных зон и светлых семейных комнат до тихих уголков для отдыха и хобби. Квадратная планировка и классический стиль подчёркивают чувство уюта, а готический двускатный крыса придает дому неповторимую вертикаль и элегантность. Дом предназначен для круглогодичного проживания: высококачественный деревянный каркас и продуманная теплоизоляция обеспечивают комфорт даже в самые холодные дни, а отсутствие лишних открытых площадок, таких как балконы и веранда, сохраняет чувство уединения и защищённости. Для гостей и собственных автомобилей доступна просторная терраса, где можно разжигать барбекю, наслаждаться закатами или устроить семейный пикник, оставив все заботы о крыте за пределами. Если для вас важны простота в организации и экономическая эффективность, «Дом Людмила» станет отличным выбором. Он сочетает в себе классическую эстетическую ценность с функциональной привлекательностью и позволяет вам создать свой собственный райский уголок среди природы и спокойствия. Придите, убедитесь в этом сами и отправляйтесь в мир уюта и гармонии, который только «Дом Людмила» может предложить.

Характеристики дома

Архитектурный стиль
Автоматизированное регулирование параметров теплоносителя
Нет
Балконы/лоджии
Отсутствуют
Чердачное помещение
Нет
Датчики протечки воды
Нет
Эксплуатируемая или зеленая кровля
Нет
Электроснабжение
Центральное
Газоснабжение
Центральное
Изоляция воздушного шума
Нет
Камин
Нет
Класс энергоэффективности
-
Класс энергосбережения
-
Количество надземных этажей
2
Круглогодичное проживание
Да
Материал кровли
Металлочерепица
Материал перекрытий
Деревянные
Материал внешних стен
Материал внутренних перегородок
Гипсокартонные
Модульное строительство с конструкциями заводского изготовления
Нет
Объем надземной части
453 м3
Основной материал фасадов
Дерево
Отопление
Индивидуальное
Площадь дома
68 м2
Площадь застройки
63 м2
Подвальное помещение
Нет
Показатель компактности здания
-
Приборы учета тепловой энергии
Нет
Пристроенный гараж/крытая автостоянка
Нет
Противопожарная система
Нет
Санузлы
1
Совмещенная кухня-гостиная
Да
Спальни
2
Терраса
Да
Тип фундамента
Свайно-винтовой
Тип кровли
Толщина внешних стен
200 мм
Толщина внутренних перегородок
100 мм
Улучшенные шумовые характеристики
Да
Вентиляция
Принудительная
Веранда
Нет
Водоотведение
Локальные очистные сооружения
Водоснабжение
Индивидуальное
Высота дома
7.2 м
Высота потолков
2.5 м

Планировка

Фасад дома

Александр

Закажите выезд инженера

Александр

Выездной инженер
Закажите выезд инженера для точной диагностики и профессиональной консультации по инженерным системам. Специалист приедет в удобное время, проведёт осмотр, рассчитает стоимость работ и подберёт оптимальные решения для вашего дома.


    Похожие проекты

    Ипотека и
    рассрочка
    Family Dream 104.5
    Стоимость от:
    8 277 280
    Проект от: 46 800
    Этажей 1
    Санузлы 2
    Спальни 2
    Смотреть
    Ипотека и
    рассрочка
    Скандия мини 3+ без террасы
    Стоимость от:
    5 437 740
    Проект от: 34 650
    Этажей 1
    Санузлы 1
    Спальни 3
    Смотреть
    Ипотека и
    рассрочка
    Каркасный дом «Релим»
    Стоимость от:
    3 596 400
    Проект от: 27 000
    Этажей 2
    Санузлы 1
    Спальни 1
    Смотреть
    Ипотека и
    рассрочка
    Одноэтажный каркасный дом «Проект 3.38»
    Стоимость от:
    6 376 700
    Проект от: 49 500
    Этажей 1
    Санузлы 2
    Спальни 3
    Смотреть
    Ипотека и
    рассрочка
    Двухэтажный дом 212м2
    Стоимость от:
    14 551 680
    Проект от: 95 400
    Этажей 2
    Санузлы 3
    Спальни 5
    Смотреть
    Ипотека и
    рассрочка
    Двухэтажный дом из калиброванного бревна с террасой
    Стоимость от:
    5 244 000
    Проект от: 31 500
    Этажей 2
    Санузлы 1
    Спальни 2
    Смотреть

    Как узнать стоимость дома

    back
    Оставляете заявку
    Вы заполняете форму на сайте или звоните нам. Менеджер Лайвкрафт связывается с вами для уточнения деталей: тип дома, площадь, материалы, участок строительства.
    back
    Консультация и подбор решения
    Наш специалист помогает выбрать оптимальный тип дома и конструкцию с учётом бюджета, сроков и целей — будь то дом для постоянного проживания или дача.
    back
    Расчёт предварительной стоимости
    Инженер делает первичный расчёт стоимости строительства по вашим параметрам: фундамент, коробка, кровля, отделка. Вы получаете смету с разбивкой по этапам.
    back
    Корректировка и утверждение сметы
    При необходимости вносим изменения — например, замену материалов или сокращение этапов. После согласования формируется окончательная фиксированная смета.
    back
    Заключение договора и старт работ
    После утверждения сметы заключаем официальный договор с гарантией. Вы получаете прозрачный график и точную стоимость — без скрытых расходов.

    Заказать конусльтацию по:Дом Людмила

    Фото 1 Дом Людмила


      Наши
      контакты

      Дмитров
      Опорный проезд 28Б
      (индустриальный парк Ниагара)
      9:00 до 18:00

      Корзина