4.9
Рейтинг на основании 120 отзывов
Дмитров
Опорный проезд 28Б
(индустриальный парк Ниагара)
Бренд "Дмитров-Дело" c 2008 года на рынке строительства в Дмитрове
Звоните 9:00 до 18:00 8 (915) 055-33-61
Бренд "Дмитров-Дело" c 2008 года на рынке строительства в Дмитрове

Дом Пионер

Стоимость проекта от:
22 950 ₽
БЕСПЛАТНО! ПРИ ЗАКАЗЕ СТРОИТЕЛЬСТВА
Стоимость строительства от:
3 303 840 ₽
Артикул ART-10795
Дата 25.12.2025
Архитектурный стиль Минимализм
Количество надземных этажей 2
Круглогодичное проживание Да
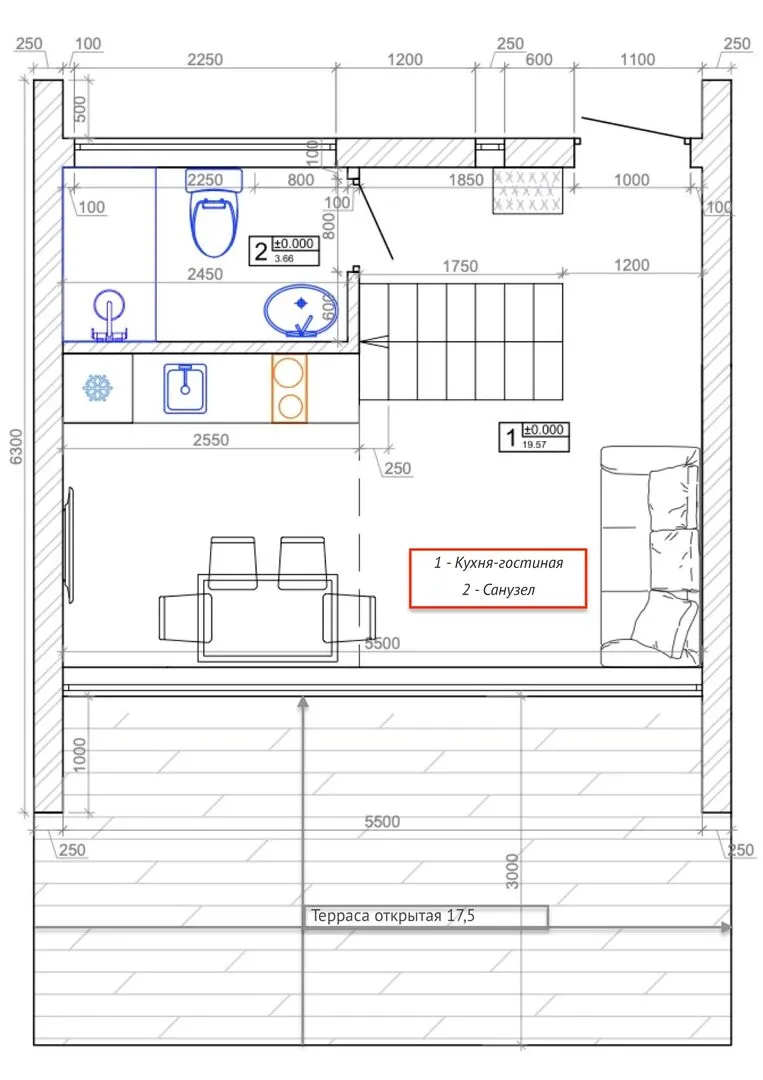
Площадь дома 51 м2
Санузлы 1
Спальни 1

Описание

Пионер — это дом, который воплощает в себе гармонию простоты и современных технологий. На двух этажах вы обретёте уют, где каждый уголок создан для комфортного круглогодичного проживания: просторные светлые комнаты, функциональные планы и современная кухня, где кулинарные идеи обретают жизнь. Архитектурный стиль минимализма подчёркивает чистоту линий, а наружные стены, изготовленные из SIP‑панелей, гарантируют теплоизоляцию и энергоэффективность, а также долговечность на многие годы. Однострочная крыша и отсутствие лишних элементов, как балконы и веранда, придают дому лаконичный и строгий облик, позволяя сконцентрировать внимание на ключевых особенностях — просторной террасе, где можно отдохнуть под звёздами или устроить летние вечера с семьёй. Дом Пионер — это современное решение, которое сочетает в себе элегантность, практичность и заботу о вашем комфорте. Приглашаем открыть для себя новый уровень жизни, где каждая деталь говорит о стремлении к совершенству.

Характеристики дома

Архитектурный стиль
Автоматизированное регулирование параметров теплоносителя
Нет
Балконы/лоджии
Отсутствуют
Чердачное помещение
Нет
Датчики протечки воды
Нет
Эксплуатируемая или зеленая кровля
Нет
Электроснабжение
Центральное
Газоснабжение
Не предусмотрено
Изоляция воздушного шума
Нет
Камин
Нет
Класс энергоэффективности
-
Класс энергосбережения
-
Количество надземных этажей
2
Круглогодичное проживание
Да
Материал кровли
Композитная черепица
Материал перекрытий
Деревянные
Материал внешних стен
Материал внутренних перегородок
Деревянные
Модульное строительство с конструкциями заводского изготовления
Нет
Объем надземной части
-
Основной материал фасадов
Дерево
Отопление
Индивидуальное
Площадь дома
51 м2
Площадь застройки
49 м2
Подвальное помещение
Нет
Показатель компактности здания
-
Приборы учета тепловой энергии
Нет
Пристроенный гараж/крытая автостоянка
Нет
Противопожарная система
Нет
Санузлы
1
Совмещенная кухня-гостиная
Да
Спальни
1
Терраса
Да
Тип фундамента
Свайный
Тип кровли
Толщина внешних стен
200 мм
Толщина внутренних перегородок
150 мм
Улучшенные шумовые характеристики
Нет
Вентиляция
Естественная
Веранда
Нет
Водоотведение
Локальные очистные сооружения
Водоснабжение
Индивидуальное
Высота дома
6 м
Высота потолков
2.7 м

Планировка

Фасад дома

Александр

Закажите выезд инженера

Александр

Выездной инженер
Закажите выезд инженера для точной диагностики и профессиональной консультации по инженерным системам. Специалист приедет в удобное время, проведёт осмотр, рассчитает стоимость работ и подберёт оптимальные решения для вашего дома.


    Похожие проекты

    Ипотека и
    рассрочка
    Алит
    Стоимость от:
    3 988 215
    Проект от: 28 350
    Этажей 1
    Санузлы 1
    Спальни 2
    Смотреть
    Ипотека и
    рассрочка
    Одноэтажный дом по проекту КД161
    Стоимость от:
    5 820 650
    Проект от: 42 750
    Этажей 1
    Санузлы 1
    Спальни 3
    Смотреть
    Ипотека и
    рассрочка
    Проект дома 73 м.кв 3 спальни НД-170-2 из СИП панелей
    Стоимость от:
    5 815 260
    Проект от: 32 850
    Этажей 1
    Санузлы 1
    Спальни 3
    Смотреть
    Ипотека и
    рассрочка
    Одноэтажный дом с террасой, 3 спальнями и отделкой штукатуркой
    Стоимость от:
    7 890 300
    Проект от: 47 250
    Этажей 1
    Санузлы 2
    Спальни 3
    Смотреть
    Ипотека и
    рассрочка
    Одноэтажный дом FK-124 Салмачи
    Стоимость от:
    9 315 680
    Проект от: 55 800
    Этажей 1
    Санузлы 2
    Спальни 2
    Смотреть
    Ипотека и
    рассрочка
    Проект 6
    Стоимость от:
    7 062 000
    Проект от: 45 000
    Этажей 1
    Санузлы 1
    Спальни 3
    Смотреть

    Как узнать стоимость дома

    back
    Оставляете заявку
    Вы заполняете форму на сайте или звоните нам. Менеджер Лайвкрафт связывается с вами для уточнения деталей: тип дома, площадь, материалы, участок строительства.
    back
    Консультация и подбор решения
    Наш специалист помогает выбрать оптимальный тип дома и конструкцию с учётом бюджета, сроков и целей — будь то дом для постоянного проживания или дача.
    back
    Расчёт предварительной стоимости
    Инженер делает первичный расчёт стоимости строительства по вашим параметрам: фундамент, коробка, кровля, отделка. Вы получаете смету с разбивкой по этапам.
    back
    Корректировка и утверждение сметы
    При необходимости вносим изменения — например, замену материалов или сокращение этапов. После согласования формируется окончательная фиксированная смета.
    back
    Заключение договора и старт работ
    После утверждения сметы заключаем официальный договор с гарантией. Вы получаете прозрачный график и точную стоимость — без скрытых расходов.

    Заказать конусльтацию по:Дом Пионер

    Фото 1 Дом Пионер


      Наши
      контакты

      Дмитров
      Опорный проезд 28Б
      (индустриальный парк Ниагара)
      9:00 до 18:00

      Корзина