4.9
Рейтинг на основании 120 отзывов
Дмитров
Опорный проезд 28Б
(индустриальный парк Ниагара)
Бренд "Дмитров-Дело" c 2008 года на рынке строительства в Дмитрове
Звоните 9:00 до 18:00 8 (915) 055-33-61
Бренд "Дмитров-Дело" c 2008 года на рынке строительства в Дмитрове

River Hall 155

Стоимость проекта от:
77 400 ₽
БЕСПЛАТНО! ПРИ ЗАКАЗЕ СТРОИТЕЛЬСТВА
Стоимость строительства от:
12 233 280 ₽
Артикул ART-13337
Дата 25.12.2025
Архитектурный стиль Европейский
Количество надземных этажей 2
Круглогодичное проживание Да
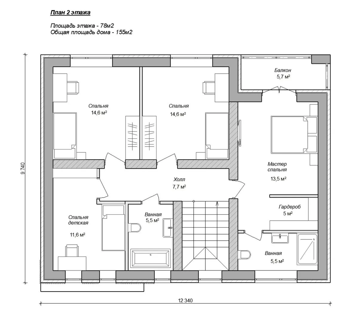
Площадь дома 172 м2
Санузлы 3
Спальни 5

Описание

**River Hall 155** – это элегантная семейная резиденция, достойная современного уровня комфорта и гармонии с природой. Величественный двухэтажный дом в европейском стиле сочетает в себе строгую элегантность и душевную уютность. Его фасад, выполненный из керамического блока, восхищает широчайшим цветовым спектром и стойкостью к климатическим воздействиям. Четырёхскатная (вальмовая) крыша придаёт зданию воздушность и ощущение лёгкости, словно оно словно обвешано лёгкими облаками. Дом рассчитан на круглогодичное проживание: большие окна пропускают естественный свет, а просторные комнаты позволяют гибко распределять пространство под ваши нужды. Внутренний план включает одно балконом и просторный вид на ландшафт, а веранда обеспечивает приятное место для летних вечеров и ароматных завтраков. Хотя гараж и крытая автостоянка отсутствуют, дом располагает достаточно места для парковки и легко обслуживается благодаря своей открытой концепции. River Hall 155 – это место, где каждая деталь проработана с заботой о комфорте и эстетике. Здесь сочетается практичность и художественный подход: от уютной внутренней атмосферы до благородного внешнего облика, созданного из качественных материалов. Такой дом станет настоящим убежищем, где можно почувствовать себя по-настоящему дома, наслаждаясь красотой и гармонией любой порой года.

Характеристики дома

Архитектурный стиль
Автоматизированное регулирование параметров теплоносителя
Нет
Балконы/лоджии
1
Чердачное помещение
Нет
Датчики протечки воды
Нет
Эксплуатируемая или зеленая кровля
Нет
Электроснабжение
Центральное
Газоснабжение
Центральное
Изоляция воздушного шума
Да
Камин
Нет
Класс энергоэффективности
A+
Класс энергосбережения
A+
Количество надземных этажей
2
Круглогодичное проживание
Да
Материал кровли
Фальцевая кровля Кликфальц
Материал перекрытий
Монолитные железобетонные
Материал внешних стен
Материал внутренних перегородок
Кирпичные
Модульное строительство с конструкциями заводского изготовления
Нет
Объем надземной части
734 м3
Основной материал фасадов
Фасадная плитка
Отопление
Индивидуальное
Площадь дома
172 м2
Площадь застройки
124 м2
Подвальное помещение
Нет
Показатель компактности здания
1
Приборы учета тепловой энергии
Нет
Пристроенный гараж/крытая автостоянка
Нет
Противопожарная система
Нет
Санузлы
3
Совмещенная кухня-гостиная
Да
Спальни
5
Терраса
Нет
Тип фундамента
Свайно-ростверковый
Толщина внешних стен
380 мм
Толщина внутренних перегородок
120 мм
Улучшенные шумовые характеристики
Нет
Вентиляция
Принудительная
Веранда
Да
Водоотведение
Центральное
Водоснабжение
Центральное
Высота дома
8.56 м
Высота потолков
3.07 м

Планировка

Фасад дома

Александр

Закажите выезд инженера

Александр

Выездной инженер
Закажите выезд инженера для точной диагностики и профессиональной консультации по инженерным системам. Специалист приедет в удобное время, проведёт осмотр, рассчитает стоимость работ и подберёт оптимальные решения для вашего дома.


    Похожие проекты

    Ипотека и
    рассрочка
    «Майоров»
    Стоимость от:
    7 541 100
    Проект от: 56 700
    Этажей 2
    Санузлы 2
    Спальни 4
    Смотреть
    Ипотека и
    рассрочка
    Дом каркасный Сан-Ремо 122
    Стоимость от:
    7 843 560
    Проект от: 58 950
    Этажей 2
    Санузлы 2
    Спальни 4
    Смотреть
    Ипотека и
    рассрочка
    Мансардный дом П-135
    Стоимость от:
    9 358 560
    Проект от: 60 300
    Этажей 2
    Санузлы 3
    Спальни 4
    Смотреть
    Ипотека и
    рассрочка
    Дом 3
    Стоимость от:
    7 515 200
    Проект от: 45 000
    Этажей 1
    Санузлы 1
    Спальни 3
    Смотреть
    Ипотека и
    рассрочка
    K 2-88
    Стоимость от:
    5 938 080
    Проект от: 36 900
    Этажей 2
    Санузлы 2
    Спальни 3
    Смотреть
    Ипотека и
    рассрочка
    Индивидуальный жилой дом площадью 75 м2
    Стоимость от:
    5 974 100
    Проект от: 33 750
    Этажей 1
    Санузлы 1
    Спальни 2
    Смотреть

    Как узнать стоимость дома

    back
    Оставляете заявку
    Вы заполняете форму на сайте или звоните нам. Менеджер Лайвкрафт связывается с вами для уточнения деталей: тип дома, площадь, материалы, участок строительства.
    back
    Консультация и подбор решения
    Наш специалист помогает выбрать оптимальный тип дома и конструкцию с учётом бюджета, сроков и целей — будь то дом для постоянного проживания или дача.
    back
    Расчёт предварительной стоимости
    Инженер делает первичный расчёт стоимости строительства по вашим параметрам: фундамент, коробка, кровля, отделка. Вы получаете смету с разбивкой по этапам.
    back
    Корректировка и утверждение сметы
    При необходимости вносим изменения — например, замену материалов или сокращение этапов. После согласования формируется окончательная фиксированная смета.
    back
    Заключение договора и старт работ
    После утверждения сметы заключаем официальный договор с гарантией. Вы получаете прозрачный график и точную стоимость — без скрытых расходов.

    Заказать конусльтацию по:River Hall 155

    Фото 1 River Hall 155


      Наши
      контакты

      Дмитров
      Опорный проезд 28Б
      (индустриальный парк Ниагара)
      9:00 до 18:00

      Корзина