4.9
Рейтинг на основании 120 отзывов
Дмитров
Опорный проезд 28Б
(индустриальный парк Ниагара)
Бренд "Дмитров-Дело" c 2008 года на рынке строительства в Дмитрове
Звоните 9:00 до 18:00 8 (915) 055-33-61
Бренд "Дмитров-Дело" c 2008 года на рынке строительства в Дмитрове

Дом с двумя спальнями и студией КБ69

Стоимость проекта от:
37 350 ₽
Стоимость строительства от:
6 239 860 ₽
Артикул ART-14257
Дата 25.12.2025
Архитектурный стиль Европейский
Количество надземных этажей 1
Круглогодичное проживание Да
Площадь дома 83 м2
Санузлы 1
Спальни 2

Описание

Соберитесь в гармоничном уголке европейской уютной архитектуры — дом, в котором каждая деталь спроектирована так, чтобы дарить комфорт круглый год. Небольшой, но функциональный: две спальни и студия, идеально подходящая как для работы, так и для гостевой комнаты, делают семейную жизнь более открытой, а пространство легко адаптируется под любые потребности. Классический двускатный череп, выполненный из клеёного бруса, придаёт дому тепло и надёжность, а строгий европейский стиль в сочетании с мягкой деревянной отделкой создаёт ощущение покоя и уюта. Одним из главных преимуществ этой квартиры является просторная терраса – место, где можно наслаждаться рассветами и закатами, устраивать барбекю или просто отдыхать на свежем воздухе без лишних загромождений балконов или веранд. Здания без кровальных помещений и прицепных гаражей позволяют сохранить чистую линию фасада и сохранить внутреннее пространство свободным и светлым. Всё, о чём можно заботиться, – это качество и простота, благодаря которой вы сможете наслаждаться качественной жизнью без лишних хлопот. Где можно провести уютные вечера и простые, но незабываемые моменты? В этом доме каждый уголок наполнен естественным светом, а тепло деревянных стен гарантирует уюта в любое время года. Это место, где стильная элегантность встречается с практичностью, а простота соединяется с функциональностью. Добро пожаловать в дом, где каждая деталь создана для вашего комфорта и благополучия.

Характеристики дома

Архитектурный стиль
Европейский
Автоматизированное регулирование параметров теплоносителя
Нет
Балконы/лоджии
Отсутствуют
Чердачное помещение
Нет
Датчики протечки воды
Нет
Эксплуатируемая или зеленая кровля
Нет
Электроснабжение
Индивидуальное
Газоснабжение
Не предусмотрено
Изоляция воздушного шума
Нет
Камин
Нет
Класс энергоэффективности
-
Класс энергосбережения
-
Количество надземных этажей
1
Круглогодичное проживание
Да
Материал кровли
Металлочерепица
Материал перекрытий
Деревянные
Материал внешних стен
Клеёный брус
Материал внутренних перегородок
Деревянные
Модульное строительство с конструкциями заводского изготовления
Нет
Объем надземной части
270 м3
Основной материал фасадов
Дерево
Отопление
Индивидуальное
Площадь дома
83 м2
Площадь застройки
93 м2
Подвальное помещение
Нет
Показатель компактности здания
-
Приборы учета тепловой энергии
Нет
Пристроенный гараж/крытая автостоянка
Нет
Противопожарная система
Нет
Санузлы
1
Совмещенная кухня-гостиная
Да
Спальни
2
Терраса
Да
Тип фундамента
Свайно-ростверковый
Тип кровли
Двускатная
Толщина внешних стен
150 мм
Толщина внутренних перегородок
150 мм
Улучшенные шумовые характеристики
Нет
Вентиляция
Естественная
Веранда
Нет
Водоотведение
Локальные очистные сооружения
Водоснабжение
Индивидуальное
Высота дома
4.1 м
Высота потолков
3.3 м

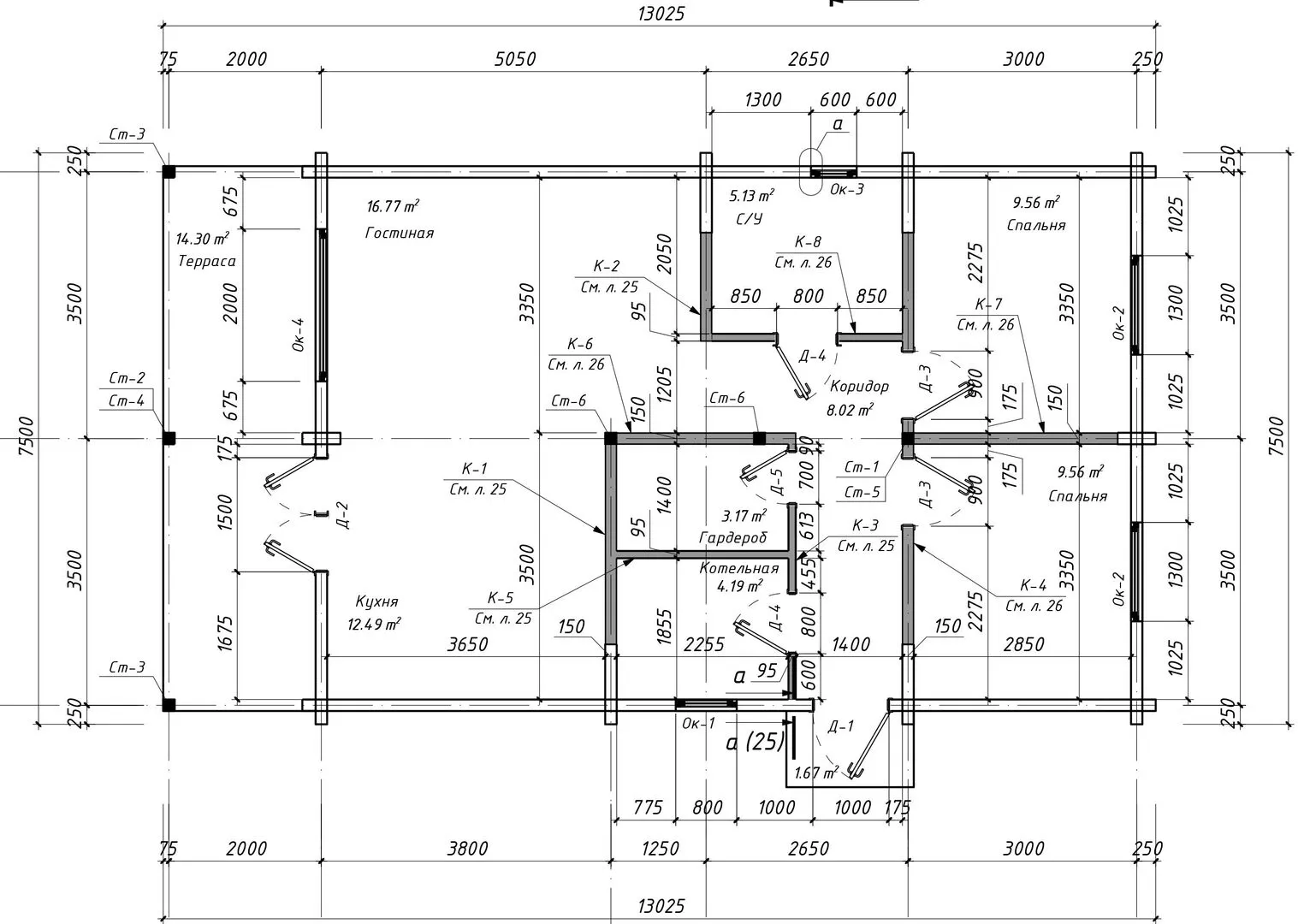
Планировка

Фасад дома

Александр

Закажите выезд инженера

Александр

Выездной инженер
Закажите выезд инженера для точной диагностики и профессиональной консультации по инженерным системам. Специалист приедет в удобное время, проведёт осмотр, рассчитает стоимость работ и подберёт оптимальные решения для вашего дома.


    Похожие проекты

    Ипотека и
    рассрочка
    Двухэтажный 116
    Стоимость от:
    7 402 560
    Проект от: 46 800
    Этажей 2
    Санузлы 2
    Спальни 5
    Смотреть
    Ипотека и
    рассрочка
    Белфаст 106
    Стоимость от:
    6 127 330
    Проект от: 47 700
    Этажей 1
    Санузлы 1
    Спальни 4
    Смотреть
    Ипотека и
    рассрочка
    Линеа — дом заводского изготовления (ПРЕФАБ)
    Стоимость от:
    7 320 940
    Проект от: 48 150
    Этажей 1
    Санузлы 2
    Спальни 3
    Смотреть
    Ипотека и
    рассрочка
    S 2-125
    Стоимость от:
    8 972 160
    Проект от: 55 800
    Этажей 2
    Санузлы 2
    Спальни 4
    Смотреть
    Ипотека и
    рассрочка
    Загородный дом ВС-109
    Стоимость от:
    11 199 760
    Проект от: 80 100
    Этажей 1
    Санузлы 2
    Спальни 4
    Смотреть
    Ипотека и
    рассрочка
    Одноэтажный дом FIXPLANS — 1970
    Стоимость от:
    10 536 680
    Проект от: 69 300
    Этажей 1
    Санузлы 3
    Спальни 4
    Смотреть

    Как узнать стоимость дома

    back
    Оставляете заявку
    Вы заполняете форму на сайте или звоните нам. Менеджер Лайвкрафт связывается с вами для уточнения деталей: тип дома, площадь, материалы, участок строительства.
    back
    Консультация и подбор решения
    Наш специалист помогает выбрать оптимальный тип дома и конструкцию с учётом бюджета, сроков и целей — будь то дом для постоянного проживания или дача.
    back
    Расчёт предварительной стоимости
    Инженер делает первичный расчёт стоимости строительства по вашим параметрам: фундамент, коробка, кровля, отделка. Вы получаете смету с разбивкой по этапам.
    back
    Корректировка и утверждение сметы
    При необходимости вносим изменения — например, замену материалов или сокращение этапов. После согласования формируется окончательная фиксированная смета.
    back
    Заключение договора и старт работ
    После утверждения сметы заключаем официальный договор с гарантией. Вы получаете прозрачный график и точную стоимость — без скрытых расходов.

    Заказать конусльтацию по:Дом с двумя спальнями и студией КБ69

    Фото 1 Дом с двумя спальнями и студией КБ69


      Наши
      контакты

      Дмитров
      Опорный проезд 28Б
      (индустриальный парк Ниагара)
      9:00 до 18:00