4.9
Рейтинг на основании 120 отзывов
Дмитров
Опорный проезд 28Б
(индустриальный парк Ниагара)
Бренд "Дмитров-Дело" c 2008 года на рынке строительства в Дмитрове
Звоните 9:00 до 18:00 8 (915) 055-33-61
Бренд "Дмитров-Дело" c 2008 года на рынке строительства в Дмитрове

Дом с мансардным этажом «Батур»

Стоимость проекта от:
38 700 ₽
Стоимость строительства от:
6 006 240 ₽
Артикул ART-10549
Дата 25.12.2025
Архитектурный стиль Европейский
Количество надземных этажей 2
Круглогодичное проживание Да
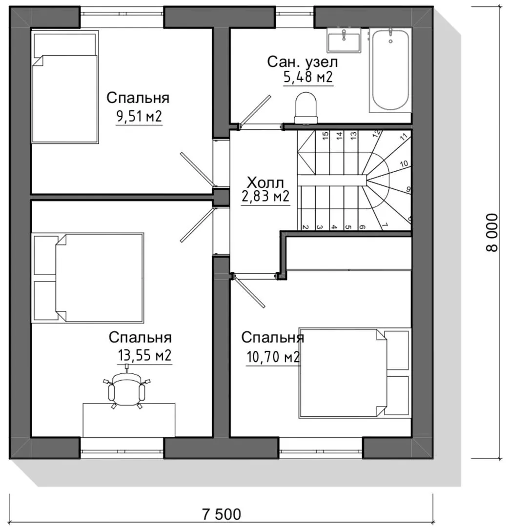
Площадь дома 86 м2
Санузлы 2
Спальни 3

Описание

Дом «Батур» — это уникальное сочетание современного европейского стиля и традиционной практичности. Уже в первый взор вы ощутите гармонию строгих геометрических форм и уютных деталей: элегантный двускатный чердак, выполненный из высококачественных газобетонных блоков, легко защищает от непогодных воздействий, обеспечивая стабильный микроклимат на протяжении всего года. Просторные, светлые комнаты с высоким потолком создают ощущение открытости, а тщательно продуманный внутренний план позволяет вам удобно распределить пространство в зависимости от ваших потребностей. Дом «Батур» рассчитан на комфортную жизнь в любое время года: изоляция газобетона и качественная кровля гарантируют тепло в холодное время и прохладу в жаркие дни. Благодаря отсутствию лишних наружных конструкций типа балконов, веранд и гаражей, вы обретаете неприкосновенность своего пространства с начала и до конца каждой недели. Внутреннее пространство легко адаптируется под семейный режим, работу из дома или творческое вдохновение: от уютного уголка для чтения до отдельной студии с видом на сад. Простые стилистические решения, использованные в архитектуре, подчёркивают современность и одновременно дают ощущение семейного притяжения. Выбирая «Батур», вы инвестируете в надежную, спокойную и эстетичную среду, где каждый элемент продуман до мелочей для вашего комфорта. При входе в дом вы сразу почувствуете, какой это уютный, светлый и практичный уголок современного европейского быта, созданный специально для тех, кто ценит гармонию, простоту и душевный уют.

Характеристики дома

Архитектурный стиль
Европейский
Автоматизированное регулирование параметров теплоносителя
Нет
Балконы/лоджии
Отсутствуют
Чердачное помещение
Нет
Датчики протечки воды
Нет
Эксплуатируемая или зеленая кровля
Нет
Электроснабжение
Индивидуальное
Газоснабжение
Индивидуальное
Изоляция воздушного шума
Нет
Камин
Нет
Класс энергоэффективности
-
Класс энергосбережения
-
Количество надземных этажей
2
Круглогодичное проживание
Да
Материал кровли
Металлочерепица
Материал перекрытий
Сборные железобетонные многопустотные плиты
Материал внешних стен
Газобетонные блоки
Материал внутренних перегородок
Блочные
Модульное строительство с конструкциями заводского изготовления
Нет
Объем надземной части
-
Основной материал фасадов
Штукатурка
Отопление
Индивидуальное
Площадь дома
86 м2
Площадь застройки
120 м2
Подвальное помещение
Нет
Показатель компактности здания
-
Приборы учета тепловой энергии
Нет
Пристроенный гараж/крытая автостоянка
Нет
Противопожарная система
Нет
Санузлы
2
Совмещенная кухня-гостиная
Да
Спальни
3
Терраса
Нет
Тип фундамента
Плитный
Тип кровли
Двускатная
Толщина внешних стен
375 мм
Толщина внутренних перегородок
100 мм
Улучшенные шумовые характеристики
Нет
Вентиляция
Естественная
Веранда
Нет
Водоотведение
Локальные очистные сооружения
Водоснабжение
Индивидуальное
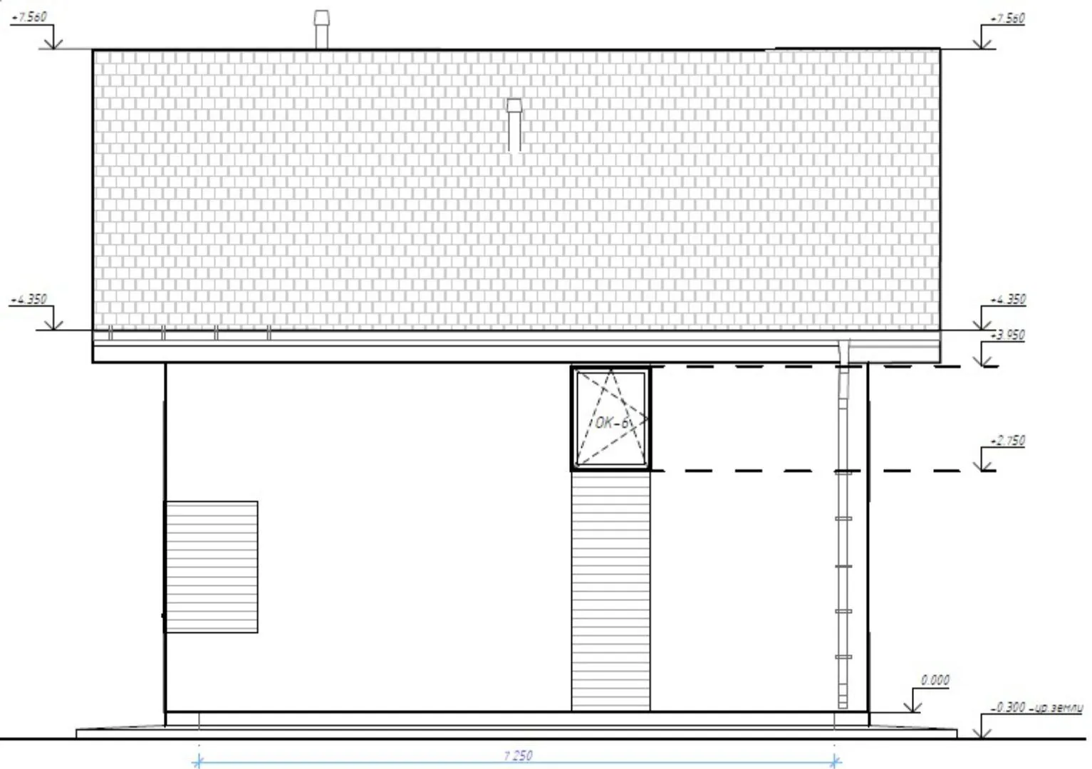
Высота дома
7.56 м
Высота потолков
2.75 м

Планировка

Фасад дома

Александр

Закажите выезд инженера

Александр

Выездной инженер
Закажите выезд инженера для точной диагностики и профессиональной консультации по инженерным системам. Специалист приедет в удобное время, проведёт осмотр, рассчитает стоимость работ и подберёт оптимальные решения для вашего дома.


    Похожие проекты

    Ипотека и
    рассрочка
    Колпино 98
    Стоимость от:
    6 990 060
    Проект от: 41 850
    Этажей 1
    Санузлы 2
    Спальни 3
    Смотреть
    Ипотека и
    рассрочка
    Одноэтажный дом
    Стоимость от:
    7 199 060
    Проект от: 41 850
    Этажей 1
    Санузлы 2
    Спальни 3
    Смотреть
    Ипотека и
    рассрочка
    БЛИЗКИЙ ДОМ
    Стоимость от:
    4 782 800
    Проект от: 27 000
    Этажей 1
    Санузлы 1
    Спальни 1
    Смотреть
    Ипотека и
    рассрочка
    Дом из клееного бруса «Озерки»
    Стоимость от:
    9 925 740
    Проект от: 72 900
    Этажей 1
    Санузлы 2
    Спальни 3
    Смотреть
    Ипотека и
    рассрочка
    Одноэтажный дом из керамзитоблока «Счастье»
    Стоимость от:
    4 660 920
    Проект от: 29 700
    Этажей 1
    Санузлы 1
    Спальни 2
    Смотреть
    Ипотека и
    рассрочка
    Загородный дом «Славянка»
    Стоимость от:
    8 842 240
    Проект от: 57 150
    Этажей 1
    Санузлы 2
    Спальни 3
    Смотреть

    Как узнать стоимость дома

    back
    Оставляете заявку
    Вы заполняете форму на сайте или звоните нам. Менеджер Лайвкрафт связывается с вами для уточнения деталей: тип дома, площадь, материалы, участок строительства.
    back
    Консультация и подбор решения
    Наш специалист помогает выбрать оптимальный тип дома и конструкцию с учётом бюджета, сроков и целей — будь то дом для постоянного проживания или дача.
    back
    Расчёт предварительной стоимости
    Инженер делает первичный расчёт стоимости строительства по вашим параметрам: фундамент, коробка, кровля, отделка. Вы получаете смету с разбивкой по этапам.
    back
    Корректировка и утверждение сметы
    При необходимости вносим изменения — например, замену материалов или сокращение этапов. После согласования формируется окончательная фиксированная смета.
    back
    Заключение договора и старт работ
    После утверждения сметы заключаем официальный договор с гарантией. Вы получаете прозрачный график и точную стоимость — без скрытых расходов.

    Заказать конусльтацию по:Дом с мансардным этажом «Батур»

    Фото 1 Дом с мансардным этажом «Батур»


      Наши
      контакты

      Дмитров
      Опорный проезд 28Б
      (индустриальный парк Ниагара)
      9:00 до 18:00

      Корзина