4.9
Рейтинг на основании 120 отзывов
Дмитров
Опорный проезд 28Б
(индустриальный парк Ниагара)
Бренд "Дмитров-Дело" c 2008 года на рынке строительства в Дмитрове
Звоните 9:00 до 18:00 8 (915) 055-33-61
Бренд "Дмитров-Дело" c 2008 года на рынке строительства в Дмитрове

Одноэтажный дом Липовый

Стоимость проекта от:
27 000 ₽
БЕСПЛАТНО! ПРИ ЗАКАЗЕ СТРОИТЕЛЬСТВА
Стоимость строительства от:
4 237 200 ₽
Артикул ART-12159
Дата 25.12.2025
Архитектурный стиль Минимализм
Количество надземных этажей 1
Круглогодичное проживание Да
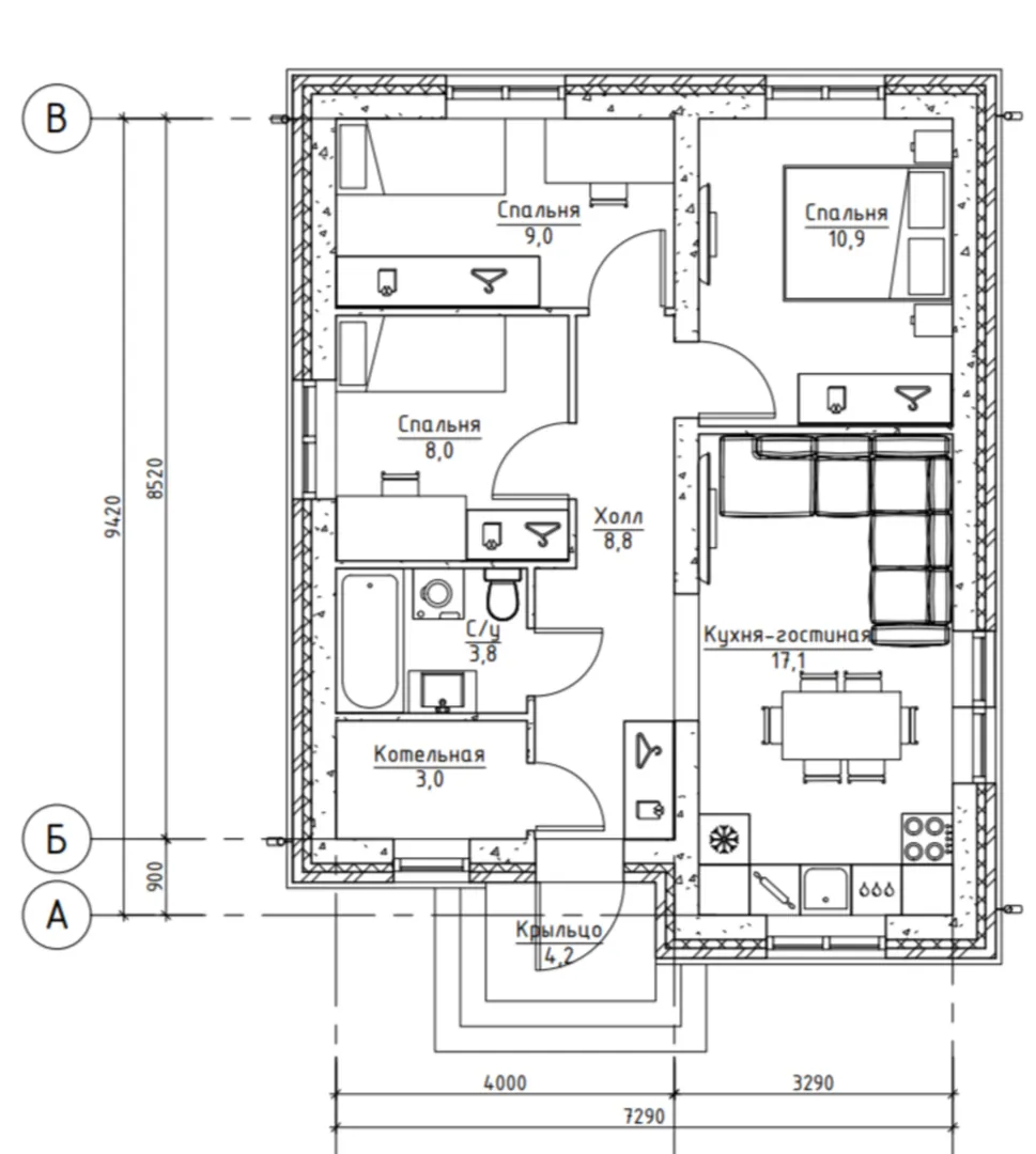
Площадь дома 60 м2
Санузлы 1
Спальни 3

Описание

**Дома Липовый – ваш личный уголок уюта** Вдохновленный чистотой линий и естественной простотой, наш одностроительный дом «Липовый» воплощает идеал современного минимализма. Сердце дома – просторный открытый план, где каждая комната плавно переходит в другую, создавая ощущение целостности и свободы. Керамзитобетонные блоки внешних стен гарантируют надежность и тепло, а комбинированная кровля обеспечивает долгую службу, удерживая от неурядиц погоды и защищая ваш дом. Здесь каждый элемент задуман так, чтобы удобно проживать круглый год. Внутренние помещения легко адаптировать под ваш образ жизни, обставки и предпочтения. Легкие перепады температур не создают лишних проблем, ведь материал стен и изоляция обеспечивают стабильный микроклимат. Отсутствие балконов, веранд и гаража не ограничивает вас – это просто освобождает пространство от лишних декоративных элементов и делает интерьер ещё более светлым и гармоничным. Приходите оценить «Липовый» – место, где минимализм становится комфортом, а каждый день в вашем доме начинается с улыбки. Мы с радостью откроем для вас все тайны этого уютного уголка.

Характеристики дома

Архитектурный стиль
Автоматизированное регулирование параметров теплоносителя
Нет
Балконы/лоджии
Отсутствуют
Чердачное помещение
Нет
Датчики протечки воды
Нет
Эксплуатируемая или зеленая кровля
Нет
Электроснабжение
Центральное
Газоснабжение
Центральное
Изоляция воздушного шума
Нет
Камин
Нет
Класс энергоэффективности
-
Класс энергосбережения
-
Количество надземных этажей
1
Круглогодичное проживание
Да
Материал кровли
Металлочерепица
Материал перекрытий
Деревянные
Материал внешних стен
Материал внутренних перегородок
Блочные
Модульное строительство с конструкциями заводского изготовления
Нет
Объем надземной части
-
Основной материал фасадов
Облицовочный кирпич
Отопление
Индивидуальное
Площадь дома
60 м2
Площадь застройки
81 м2
Подвальное помещение
Нет
Показатель компактности здания
-
Приборы учета тепловой энергии
Нет
Пристроенный гараж/крытая автостоянка
Нет
Противопожарная система
Нет
Санузлы
1
Совмещенная кухня-гостиная
Да
Спальни
3
Терраса
Нет
Тип фундамента
Плитный
Тип кровли
Толщина внешних стен
510 мм
Толщина внутренних перегородок
120 мм
Улучшенные шумовые характеристики
Нет
Вентиляция
Принудительная
Веранда
Нет
Водоотведение
Локальные очистные сооружения
Водоснабжение
Индивидуальное
Высота дома
5.27 м
Высота потолков
3 м

Планировка

Фасад дома

Александр

Закажите выезд инженера

Александр

Выездной инженер
Закажите выезд инженера для точной диагностики и профессиональной консультации по инженерным системам. Специалист приедет в удобное время, проведёт осмотр, рассчитает стоимость работ и подберёт оптимальные решения для вашего дома.


    Похожие проекты

    Ипотека и
    рассрочка
    Кирпичный дом Чебоксары
    Стоимость от:
    6 089 820
    Проект от: 36 450
    Этажей 1
    Санузлы 1
    Спальни 3
    Смотреть
    Ипотека и
    рассрочка
    Проект одноэтажного жилого дома 171.38 кв.м.
    Стоимость от:
    12 916 640
    Проект от: 77 400
    Этажей 1
    Санузлы 3
    Спальни 3
    Смотреть
    Ипотека и
    рассрочка
    Загородный коттедж №196
    Стоимость от:
    15 183 120
    Проект от: 91 350
    Этажей 2
    Санузлы 3
    Спальни 5
    Смотреть
    Ипотека и
    рассрочка
    Мансардный дом №16
    Стоимость от:
    10 468 800
    Проект от: 63 000
    Этажей 2
    Санузлы 2
    Спальни 3
    Смотреть
    Ипотека и
    рассрочка
    Holz 149
    Стоимость от:
    10 194 580
    Проект от: 67 050
    Этажей 1
    Санузлы 2
    Спальни 3
    Смотреть
    Ипотека и
    рассрочка
    Беседина
    Стоимость от:
    4 889 500
    Проект от: 29 250
    Этажей 1
    Санузлы 1
    Спальни 3
    Смотреть

    Как узнать стоимость дома

    back
    Оставляете заявку
    Вы заполняете форму на сайте или звоните нам. Менеджер Лайвкрафт связывается с вами для уточнения деталей: тип дома, площадь, материалы, участок строительства.
    back
    Консультация и подбор решения
    Наш специалист помогает выбрать оптимальный тип дома и конструкцию с учётом бюджета, сроков и целей — будь то дом для постоянного проживания или дача.
    back
    Расчёт предварительной стоимости
    Инженер делает первичный расчёт стоимости строительства по вашим параметрам: фундамент, коробка, кровля, отделка. Вы получаете смету с разбивкой по этапам.
    back
    Корректировка и утверждение сметы
    При необходимости вносим изменения — например, замену материалов или сокращение этапов. После согласования формируется окончательная фиксированная смета.
    back
    Заключение договора и старт работ
    После утверждения сметы заключаем официальный договор с гарантией. Вы получаете прозрачный график и точную стоимость — без скрытых расходов.

    Заказать конусльтацию по:Одноэтажный дом Липовый

    Фото 1 Одноэтажный дом Липовый


      Наши
      контакты

      Дмитров
      Опорный проезд 28Б
      (индустриальный парк Ниагара)
      9:00 до 18:00

      Корзина