4.9
Рейтинг на основании 120 отзывов
Дмитров
Опорный проезд 28Б
(индустриальный парк Ниагара)
Бренд "Дмитров-Дело" c 2008 года на рынке строительства в Дмитрове
Звоните 9:00 до 18:00 8 (915) 055-33-61
Бренд "Дмитров-Дело" c 2008 года на рынке строительства в Дмитрове

Дом из CLT «Пятигорск»

Стоимость проекта от:
80 100 ₽
БЕСПЛАТНО! ПРИ ЗАКАЗЕ СТРОИТЕЛЬСТВА
Стоимость строительства от:
843 720 ₽
Артикул ART-2055
Дата 26.12.2025
Архитектурный стиль Классический
Количество надземных этажей 2
Круглогодичное проживание Да
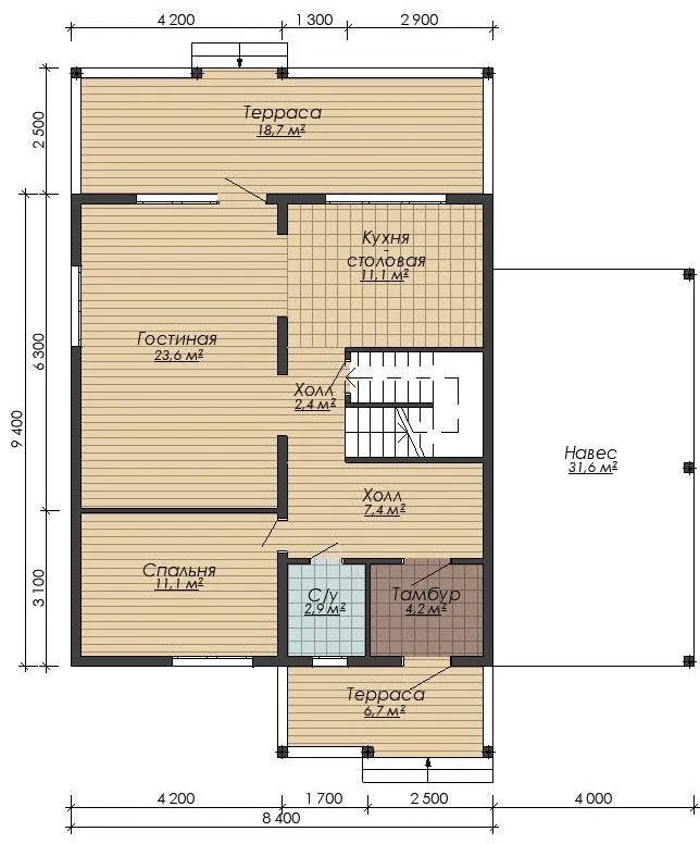
Площадь дома 178 м2
Санузлы 2
Спальни 4

Описание

Дом из CLT в Пятигорске — это воплощение уюта и современного строения в классическом исполнении. Уже с первых шагов по двору вы почувствуете тепло деревянных панелей, которые создают неповторимую архитектурную ауру, а дюже-скачная крыша, украшенная элементами народного стиля, добавляет дома величественности и традиций. Благодаря двум надземным этажам, просторные внутренние помещения позволяют удобно распределить жилое пространство, а три балкона и большая веранда открывают панорамные виды на живописные окрестности и создают идеальные уголки для отдыха и общения. Придуманный как «дом для всех времен года» обладает превосходными теплоизоляционными свойствами CLT‑материалов, обеспечивая мягкое, комфортное проживание даже в самые холодные дни. Пристроенный гараж и крытая автостоянка позволяют не беспокоиться о состоянии автомобиля, а просторные полки в гараже легко впишутся в ваш быт. Внутри – современные инженерные сети, высокое качество отделки и продуманная планировка, в которой каждый уголок служит не только функциональной и практической, но и эстетической ценности. Дом из CLT «Пятигорск» приглашает вас почувствовать гармонию между природой, традициями и комфортом, где каждый дом – это уютный уголок, способный стать вашим крепким убежищем и источником вдохновения. Приходите, и вы убедитесь, как легко можно жить в стиле, где классика встречается с инновациями, а уют и простор становятся синонимами вашего нового дома.

Характеристики дома

Архитектурный стиль
Автоматизированное регулирование параметров теплоносителя
-
Балконы/лоджии
3
Чердачное помещение
Нет
Датчики протечки воды
-
Эксплуатируемая или зеленая кровля
-
Электроснабжение
2 варианта
Газоснабжение
2 варианта
Изоляция воздушного шума
-
Камин
Нет
Класс энергоэффективности
-
Класс энергосбережения
-
Количество надземных этажей
2
Круглогодичное проживание
Да
Материал кровли
Металлические листовые гофрированные профили
Материал перекрытий
Деревянные
Материал внешних стен
Материал внутренних перегородок
Деревянные
Модульное строительство с конструкциями заводского изготовления
Нет
Объем надземной части
450 м3
Основной материал фасадов
Планкен
Отопление
2 варианта
Площадь дома
178 м2
Площадь застройки
78 м2
Подвальное помещение
Нет
Показатель компактности здания
-
Приборы учета тепловой энергии
-
Пристроенный гараж/крытая автостоянка
Да
Противопожарная система
Нет
Санузлы
2
Совмещенная кухня-гостиная
Нет
Спальни
4
Терраса
Нет
Тип фундамента
Свайный
Тип кровли
Толщина внешних стен
200 мм
Толщина внутренних перегородок
100 мм
Улучшенные шумовые характеристики
-
Вентиляция
2 варианта
Веранда
Да
Водоотведение
2 варианта
Водоснабжение
2 варианта
Высота дома
5.7 м
Высота потолков
2.7 м

Планировка

Фасад дома

Александр

Закажите выезд инженера

Александр

Выездной инженер
Закажите выезд инженера для точной диагностики и профессиональной консультации по инженерным системам. Специалист приедет в удобное время, проведёт осмотр, рассчитает стоимость работ и подберёт оптимальные решения для вашего дома.


    Похожие проекты

    Ипотека и
    рассрочка
    Levelhouse SH
    Стоимость от:
    4 114 770
    Проект от: 33 300
    Этажей 1
    Санузлы 1
    Спальни 2
    Смотреть
    Ипотека и
    рассрочка
    Загородный дом ВС-116
    Стоимость от:
    18 477 160
    Проект от: 115 200
    Этажей 3
    Санузлы 2
    Спальни 3
    Смотреть
    Ипотека и
    рассрочка
    Проект двухэтажного дома Леон
    Стоимость от:
    12 439 680
    Проект от: 77 400
    Этажей 2
    Санузлы 2
    Спальни 4
    Смотреть
    Ипотека и
    рассрочка
    Одноэтажный дом К-96.1
    Стоимость от:
    6 568 320
    Проект от: 43 200
    Этажей 1
    Санузлы 2
    Спальни 3
    Смотреть
    Ипотека и
    рассрочка
    Хвоя 4.88 с двумя спальнями, кабинетом и гардеробом
    Стоимость от:
    4 893 240
    Проект от: 39 600
    Этажей 1
    Санузлы 1
    Спальни 2
    Смотреть
    Ипотека и
    рассрочка
    Быстровозводимый капитальный одноэтажный дом из арболита
    Стоимость от:
    6 275 720
    Проект от: 38 700
    Этажей 1
    Санузлы 2
    Спальни 2
    Смотреть

    Как узнать стоимость дома

    back
    Оставляете заявку
    Вы заполняете форму на сайте или звоните нам. Менеджер Лайвкрафт связывается с вами для уточнения деталей: тип дома, площадь, материалы, участок строительства.
    back
    Консультация и подбор решения
    Наш специалист помогает выбрать оптимальный тип дома и конструкцию с учётом бюджета, сроков и целей — будь то дом для постоянного проживания или дача.
    back
    Расчёт предварительной стоимости
    Инженер делает первичный расчёт стоимости строительства по вашим параметрам: фундамент, коробка, кровля, отделка. Вы получаете смету с разбивкой по этапам.
    back
    Корректировка и утверждение сметы
    При необходимости вносим изменения — например, замену материалов или сокращение этапов. После согласования формируется окончательная фиксированная смета.
    back
    Заключение договора и старт работ
    После утверждения сметы заключаем официальный договор с гарантией. Вы получаете прозрачный график и точную стоимость — без скрытых расходов.

    Заказать конусльтацию по:Дом из CLT «Пятигорск»

    Фото 1 Дом из CLT «Пятигорск»


      Наши
      контакты

      Дмитров
      Опорный проезд 28Б
      (индустриальный парк Ниагара)
      9:00 до 18:00

      Корзина