4.9
Рейтинг на основании 120 отзывов
Дмитров
Опорный проезд 28Б
(индустриальный парк Ниагара)
Бренд "Дмитров-Дело" c 2008 года на рынке строительства в Дмитрове
Звоните 9:00 до 18:00 8 (915) 055-33-61
Бренд "Дмитров-Дело" c 2008 года на рынке строительства в Дмитрове

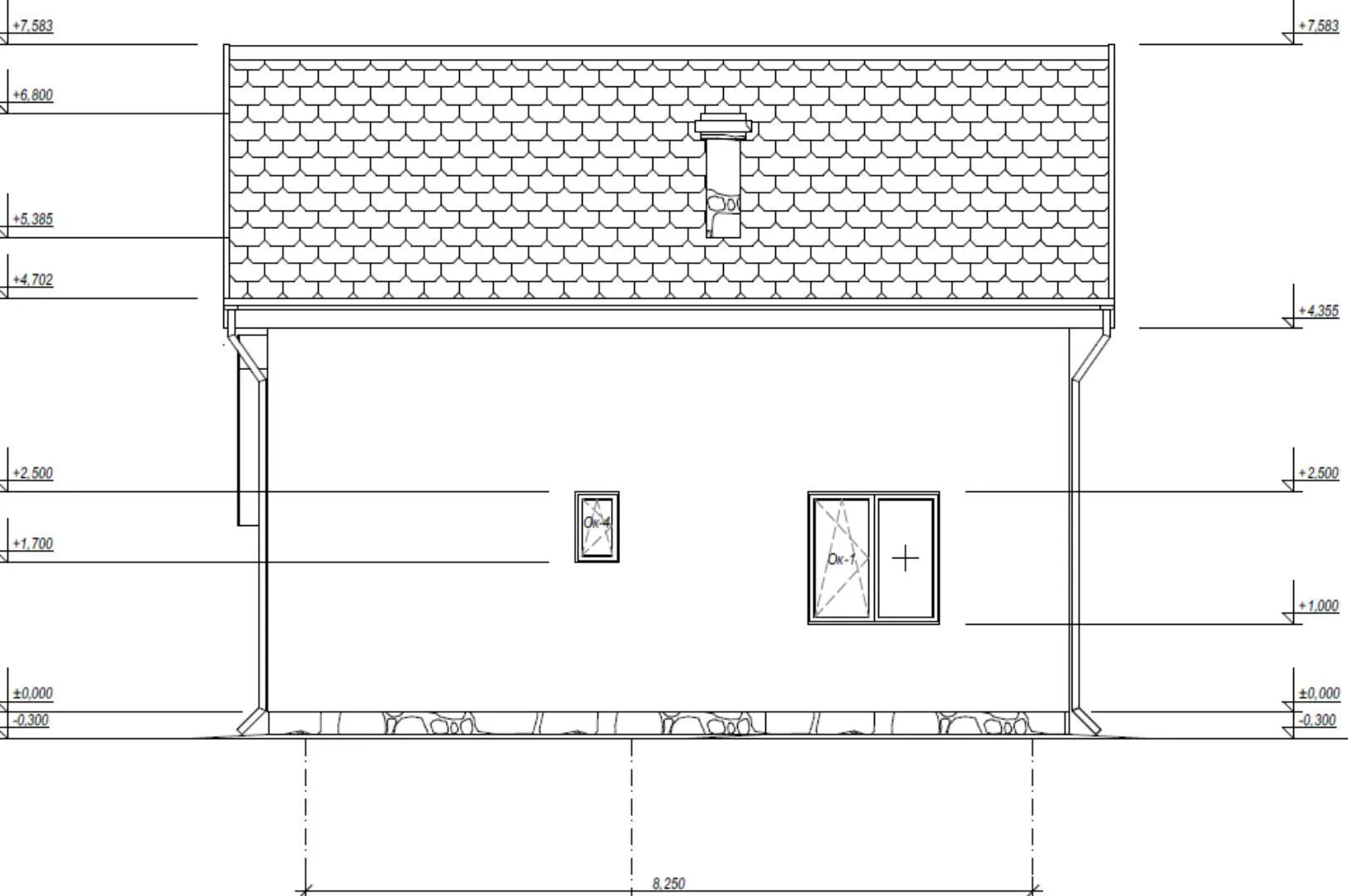
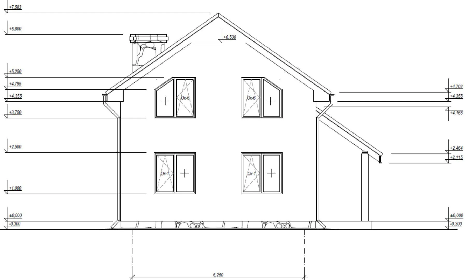
Дом с мансардным этажом «Грегит»

Стоимость проекта от:
41 400 ₽
Стоимость строительства от:
6 425 280 ₽
Артикул ART-14322
Дата 25.12.2025
Архитектурный стиль Европейский
Количество надземных этажей 2
Круглогодичное проживание Да
Площадь дома 92 м2
Санузлы 2
Спальни 3

Описание

Добро пожаловать в уют нашего нового дома в стиле «Грегит» – сочетание классической европейской элегантности и современного комфорта. Два надземных этажа, покрытые традиционной двускатной кровлей, создают неповторимый силуэт, напоминая о времени безоблачных дней в южной европейской долине. Нейтральные тональные решения и тщательно продуманные детали архитектуры дарят ощущение спокойствия и благородства, словно вы шагнули в уголок европейской престижа. Дом предлагает круглогодичное проживание, благодаря высочайшим стандартам теплоизоляции: внешние стены выполнены из газобетонных блоков, которые гарантируют теплоизоляцию и звукоизоляцию, защищая уют от ветра и шума. Каждый уголок пронизан светом, а просторный мансардный этаж открывает новые возможности для творчества: от уютного домашнего офиса до детской игровой комнаты. Отсутствие открытых балконов и веранды не уменьшает привлекательности – в доме предусмотрено всё необходимое для комфорта и безопасности: надежный двутавровый фундамент, качественные материалы и продуманный план расположения помещений. Стремитесь к гармоничному сочетанию традиций и современности? Дом «Грегит» – настоящий храм семейного уюта! Окунитесь в атмосферу европейской идиллии и сделайте ваш дом оазисом спокойствия и благополучия. Приходите, мы с радостью ответим на все ваши вопросы и устроим просмотр в любое время, которое удобно вам.

Характеристики дома

Архитектурный стиль
Европейский
Автоматизированное регулирование параметров теплоносителя
Нет
Балконы/лоджии
Отсутствуют
Чердачное помещение
Нет
Датчики протечки воды
Нет
Эксплуатируемая или зеленая кровля
Нет
Электроснабжение
Индивидуальное
Газоснабжение
Индивидуальное
Изоляция воздушного шума
Нет
Камин
Нет
Класс энергоэффективности
-
Класс энергосбережения
-
Количество надземных этажей
2
Круглогодичное проживание
Да
Материал кровли
Металлочерепица
Материал перекрытий
Сборные железобетонные многопустотные плиты
Материал внешних стен
Газобетонные блоки
Материал внутренних перегородок
Блочные
Модульное строительство с конструкциями заводского изготовления
Нет
Объем надземной части
-
Основной материал фасадов
Штукатурка
Отопление
Индивидуальное
Площадь дома
92 м2
Площадь застройки
132 м2
Подвальное помещение
Нет
Показатель компактности здания
-
Приборы учета тепловой энергии
Нет
Пристроенный гараж/крытая автостоянка
Нет
Противопожарная система
Нет
Санузлы
2
Совмещенная кухня-гостиная
Да
Спальни
3
Терраса
Нет
Тип фундамента
Плитный
Тип кровли
Двускатная
Толщина внешних стен
375 мм
Толщина внутренних перегородок
100 мм
Улучшенные шумовые характеристики
Нет
Вентиляция
Естественная
Веранда
Нет
Водоотведение
Локальные очистные сооружения
Водоснабжение
Индивидуальное
Высота дома
7.58 м
Высота потолков
2.75 м

Планировка

Фасад дома

Александр

Закажите выезд инженера

Александр

Выездной инженер
Закажите выезд инженера для точной диагностики и профессиональной консультации по инженерным системам. Специалист приедет в удобное время, проведёт осмотр, рассчитает стоимость работ и подберёт оптимальные решения для вашего дома.


    Похожие проекты

    Ипотека и
    рассрочка
    Одноэтажный жилой дом Гамбия 92 кв.м.
    Стоимость от:
    6 915 040
    Проект от: 41 400
    Этажей 1
    Санузлы 1
    Спальни 3
    Смотреть
    Ипотека и
    рассрочка
    Nordic 130
    Стоимость от:
    8 124 160
    Проект от: 57 600
    Этажей 1
    Санузлы 2
    Спальни 3
    Смотреть
    Ипотека и
    рассрочка
    Одноэтажный дом «Уютный»
    Стоимость от:
    5 437 740
    Проект от: 34 650
    Этажей 1
    Санузлы 1
    Спальни 2
    Смотреть
    Ипотека и
    рассрочка
    Мансардный дом Ю-130
    Стоимость от:
    8 939 520
    Проект от: 57 600
    Этажей 2
    Санузлы 2
    Спальни 4
    Смотреть
    Ипотека и
    рассрочка
    Одноэтажный дом БАРН-167
    Стоимость от:
    2 835 855
    Проект от: 22 950
    Этажей 1
    Санузлы 1
    Спальни 1
    Смотреть
    Ипотека и
    рассрочка
    Загородный дом по проекту «Юрий».
    Стоимость от:
    8 171 520
    Проект от: 57 600
    Этажей 2
    Санузлы 2
    Спальни 2
    Смотреть

    Как узнать стоимость дома

    back
    Оставляете заявку
    Вы заполняете форму на сайте или звоните нам. Менеджер Лайвкрафт связывается с вами для уточнения деталей: тип дома, площадь, материалы, участок строительства.
    back
    Консультация и подбор решения
    Наш специалист помогает выбрать оптимальный тип дома и конструкцию с учётом бюджета, сроков и целей — будь то дом для постоянного проживания или дача.
    back
    Расчёт предварительной стоимости
    Инженер делает первичный расчёт стоимости строительства по вашим параметрам: фундамент, коробка, кровля, отделка. Вы получаете смету с разбивкой по этапам.
    back
    Корректировка и утверждение сметы
    При необходимости вносим изменения — например, замену материалов или сокращение этапов. После согласования формируется окончательная фиксированная смета.
    back
    Заключение договора и старт работ
    После утверждения сметы заключаем официальный договор с гарантией. Вы получаете прозрачный график и точную стоимость — без скрытых расходов.

    Заказать конусльтацию по:Дом с мансардным этажом «Грегит»

    Фото 1 Дом с мансардным этажом «Грегит»


      Наши
      контакты

      Дмитров
      Опорный проезд 28Б
      (индустриальный парк Ниагара)
      9:00 до 18:00