4.9
Рейтинг на основании 120 отзывов
Дмитров
Опорный проезд 28Б
(индустриальный парк Ниагара)
Бренд "Дмитров-Дело" c 2008 года на рынке строительства в Дмитрове
Звоните 9:00 до 18:00 8 (915) 055-33-61
Бренд "Дмитров-Дело" c 2008 года на рынке строительства в Дмитрове

Дом с мансардным этажом «Пилион 2.0»

Стоимость проекта от:
49 050 ₽
Стоимость строительства от:
7 619 760 ₽
Артикул ART-14310
Дата 25.12.2025
Архитектурный стиль Скандинавский
Количество надземных этажей 2
Круглогодичное проживание Да
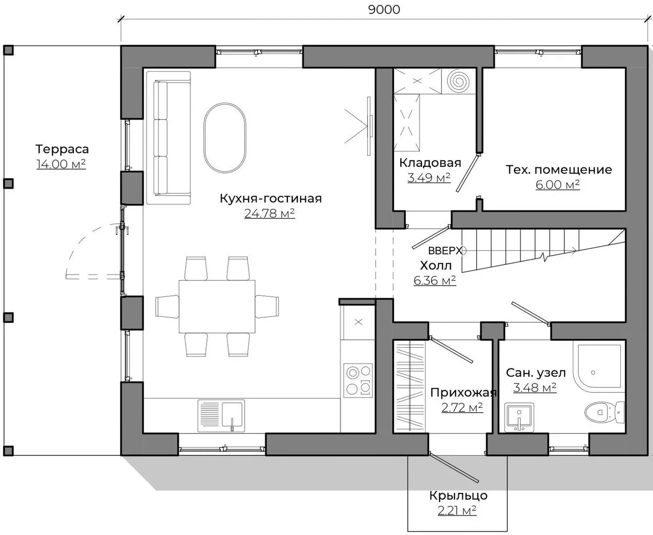
Площадь дома 109 м2
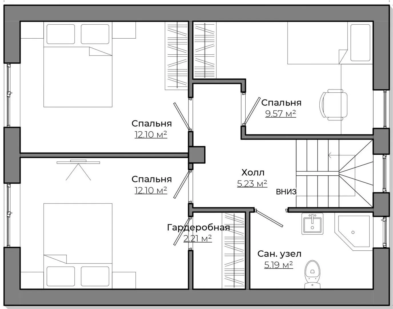
Санузлы 2
Спальни 3

Описание

Золотой флагман современного комфорта – **Дом «Пилион 2.0»**. В двух надземных этажах, окруженных чистым скандинавским дизайном, каждый элемент продуман так, чтобы придать просторы умиротворённую элегантность. Стены, выполненные из газобетонных блоков, обеспечивают отличную тепло- и звукоизоляцию, позволяя наслаждаться спокойствием любой порой года. Двускатная крыша придает дому характер, а мансардный этаж создаёт ощущение лёгкости и воздушности, открывая незабываемые виды на окружающий ландшафт. Дом рассчитан на круглогодичное проживание: изоляция и вентиляция позволяют сохранить идеальный микроклимат, а строгие геометрические линии создают ощущение уюта и простора. Внутри – открытая планировка, где естественный свет льётся сквозь большие окна, подчёркивая светлые тона скандинавского интерьера. Отсутствие балконов и веранд не значит отсутствие открытого пространства – именно открытые внутренние уровни способствуют общению и создают ощущение бесконечной свободы. Пилион 2.0 – это не просто дом, а стиль жизни, где гармония между простотой и функционалом воплощается в каждой детали. Отдайте предпочтение уюту, дизайну и качеству: этот дом будет вашим надёжным убежищем на любые времена года.

Характеристики дома

Архитектурный стиль
Скандинавский
Автоматизированное регулирование параметров теплоносителя
Нет
Балконы/лоджии
Отсутствуют
Чердачное помещение
Нет
Датчики протечки воды
Нет
Эксплуатируемая или зеленая кровля
Нет
Электроснабжение
Индивидуальное
Газоснабжение
Индивидуальное
Изоляция воздушного шума
Нет
Камин
Нет
Класс энергоэффективности
-
Класс энергосбережения
-
Количество надземных этажей
2
Круглогодичное проживание
Да
Материал кровли
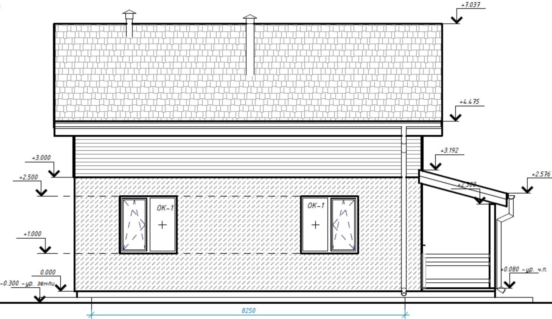
Металлочерепица
Материал перекрытий
Сборные железобетонные многопустотные плиты
Материал внешних стен
Газобетонные блоки
Материал внутренних перегородок
Блочные
Модульное строительство с конструкциями заводского изготовления
Нет
Объем надземной части
-
Основной материал фасадов
Штукатурка
Отопление
Индивидуальное
Площадь дома
109 м2
Площадь застройки
133 м2
Подвальное помещение
Нет
Показатель компактности здания
-
Приборы учета тепловой энергии
Нет
Пристроенный гараж/крытая автостоянка
Нет
Противопожарная система
Нет
Санузлы
2
Совмещенная кухня-гостиная
Да
Спальни
3
Терраса
Нет
Тип фундамента
Плитный
Тип кровли
Двускатная
Толщина внешних стен
375 мм
Толщина внутренних перегородок
100 мм
Улучшенные шумовые характеристики
Нет
Вентиляция
Естественная
Веранда
Нет
Водоотведение
Локальные очистные сооружения
Водоснабжение
Индивидуальное
Высота дома
7.03 м
Высота потолков
2.75 м

Планировка

Фасад дома

Александр

Закажите выезд инженера

Александр

Выездной инженер
Закажите выезд инженера для точной диагностики и профессиональной консультации по инженерным системам. Специалист приедет в удобное время, проведёт осмотр, рассчитает стоимость работ и подберёт оптимальные решения для вашего дома.


    Похожие проекты

    Ипотека и
    рассрочка
    «Базыль»
    Стоимость от:
    9 471 120
    Проект от: 59 850
    Этажей 2
    Санузлы 2
    Спальни 5
    Смотреть
    Ипотека и
    рассрочка
    Одноэтажный кирпичный дом BUSINESS — 131m2 Красный облицовочный кирпич
    Стоимость от:
    7 800 760
    Проект от: 44 100
    Этажей 1
    Санузлы 2
    Спальни 3
    Смотреть
    Ипотека и
    рассрочка
    Двухэтажный дом Ирбис 2
    Стоимость от:
    7 483 200
    Проект от: 45 000
    Этажей 2
    Санузлы 2
    Спальни 3
    Смотреть
    Ипотека и
    рассрочка
    ЕР-1
    Стоимость от:
    10 605 100
    Проект от: 69 750
    Этажей 1
    Санузлы 1
    Спальни 3
    Смотреть
    Ипотека и
    рассрочка
    Европейский-141,70
    Стоимость от:
    9 706 840
    Проект от: 54 900
    Этажей 1
    Санузлы 2
    Спальни 3
    Смотреть
    Ипотека и
    рассрочка
    Времена Года. Зима, лето, весна, осень. Комплектация Серебро.
    Стоимость от:
    474 300
    Проект от: 45 900
    Этажей 2
    Санузлы 2
    Спальни 2
    Смотреть

    Как узнать стоимость дома

    back
    Оставляете заявку
    Вы заполняете форму на сайте или звоните нам. Менеджер Лайвкрафт связывается с вами для уточнения деталей: тип дома, площадь, материалы, участок строительства.
    back
    Консультация и подбор решения
    Наш специалист помогает выбрать оптимальный тип дома и конструкцию с учётом бюджета, сроков и целей — будь то дом для постоянного проживания или дача.
    back
    Расчёт предварительной стоимости
    Инженер делает первичный расчёт стоимости строительства по вашим параметрам: фундамент, коробка, кровля, отделка. Вы получаете смету с разбивкой по этапам.
    back
    Корректировка и утверждение сметы
    При необходимости вносим изменения — например, замену материалов или сокращение этапов. После согласования формируется окончательная фиксированная смета.
    back
    Заключение договора и старт работ
    После утверждения сметы заключаем официальный договор с гарантией. Вы получаете прозрачный график и точную стоимость — без скрытых расходов.

    Заказать конусльтацию по:Дом с мансардным этажом «Пилион 2.0»

    Фото 1 Дом с мансардным этажом «Пилион 2.0»


      Наши
      контакты

      Дмитров
      Опорный проезд 28Б
      (индустриальный парк Ниагара)
      9:00 до 18:00