4.9
Рейтинг на основании 120 отзывов
Дмитров
Опорный проезд 28Б
(индустриальный парк Ниагара)
Бренд "Дмитров-Дело" c 2008 года на рынке строительства в Дмитрове
Звоните 9:00 до 18:00 8 (915) 055-33-61
Бренд "Дмитров-Дело" c 2008 года на рынке строительства в Дмитрове

Дом в Осиново

Стоимость проекта от:
102 600 ₽
БЕСПЛАТНО! ПРИ ЗАКАЗЕ СТРОИТЕЛЬСТВА
Стоимость строительства от:
16 211 520 ₽
Артикул ART-18448
Дата 26.12.2025
Архитектурный стиль Классический
Количество надземных этажей 2
Круглогодичное проживание Да
Площадь дома 228 м2
Санузлы 2
Спальни 5

Описание

Вас приветствует уютный дом в живописном поселке Осиново, где каждая деталь создана, чтобы дарить комфорт и вдохновение. Строительное решение в классическом стиле, выполненное из керамического блока, сочетает в себе надёжность и визуальное спокойствие. При открытии двери вас встретит просторный внутренний двор с кулинарными шедеврами, а из просторных кабинетов открываются виды на зелёные тропы и тихий берёзовый лес. Двухэтажная планировка удобно распределяет зоны уюта: залы для семейных встреч, тихий уголок чтения и динамичная кухня для кулинарных экспериментов. С балконом и террасой вы сможете наслаждаться восходом и закатом в любой сезон, а чердачное помещение превращается в стильную студию или уютный кабинет для творчества. Приходите и ощутите, как классика встречается с функцией, создавая дом, в котором каждый найдет своё убежище от суеты и сможет расслабиться в тёплой, светлой атмосфере. Этот дом – ваш новый личный уголок, где каждая деталь продумана до малейших нюансов, а архитектура обнимает вас теплом и гармонией.

Характеристики дома

Архитектурный стиль
Автоматизированное регулирование параметров теплоносителя
Нет
Балконы/лоджии
1
Чердачное помещение
Да
Датчики протечки воды
Нет
Эксплуатируемая или зеленая кровля
Нет
Электроснабжение
Центральное
Газоснабжение
Центральное
Изоляция воздушного шума
Нет
Камин
Нет
Класс энергоэффективности
-
Класс энергосбережения
-
Количество надземных этажей
2
Круглогодичное проживание
Да
Материал кровли
Битумная черепица
Материал перекрытий
Деревянные
Материал внешних стен
Материал внутренних перегородок
Кирпичные
Модульное строительство с конструкциями заводского изготовления
Нет
Объем надземной части
1856 м3
Основной материал фасадов
Облицовочный кирпич
Отопление
Индивидуальное
Площадь дома
228 м2
Площадь застройки
232 м2
Подвальное помещение
Нет
Показатель компактности здания
-
Приборы учета тепловой энергии
Нет
Пристроенный гараж/крытая автостоянка
Нет
Противопожарная система
Нет
Санузлы
2
Совмещенная кухня-гостиная
Нет
Спальни
5
Терраса
Да
Тип фундамента
Свайно-ростверковый
Тип кровли
Толщина внешних стен
525 мм
Толщина внутренних перегородок
120 мм
Улучшенные шумовые характеристики
Нет
Вентиляция
Естественная
Веранда
Нет
Водоотведение
Локальные очистные сооружения
Водоснабжение
Центральное
Высота дома
9.5 м
Высота потолков
3 м

Планировка

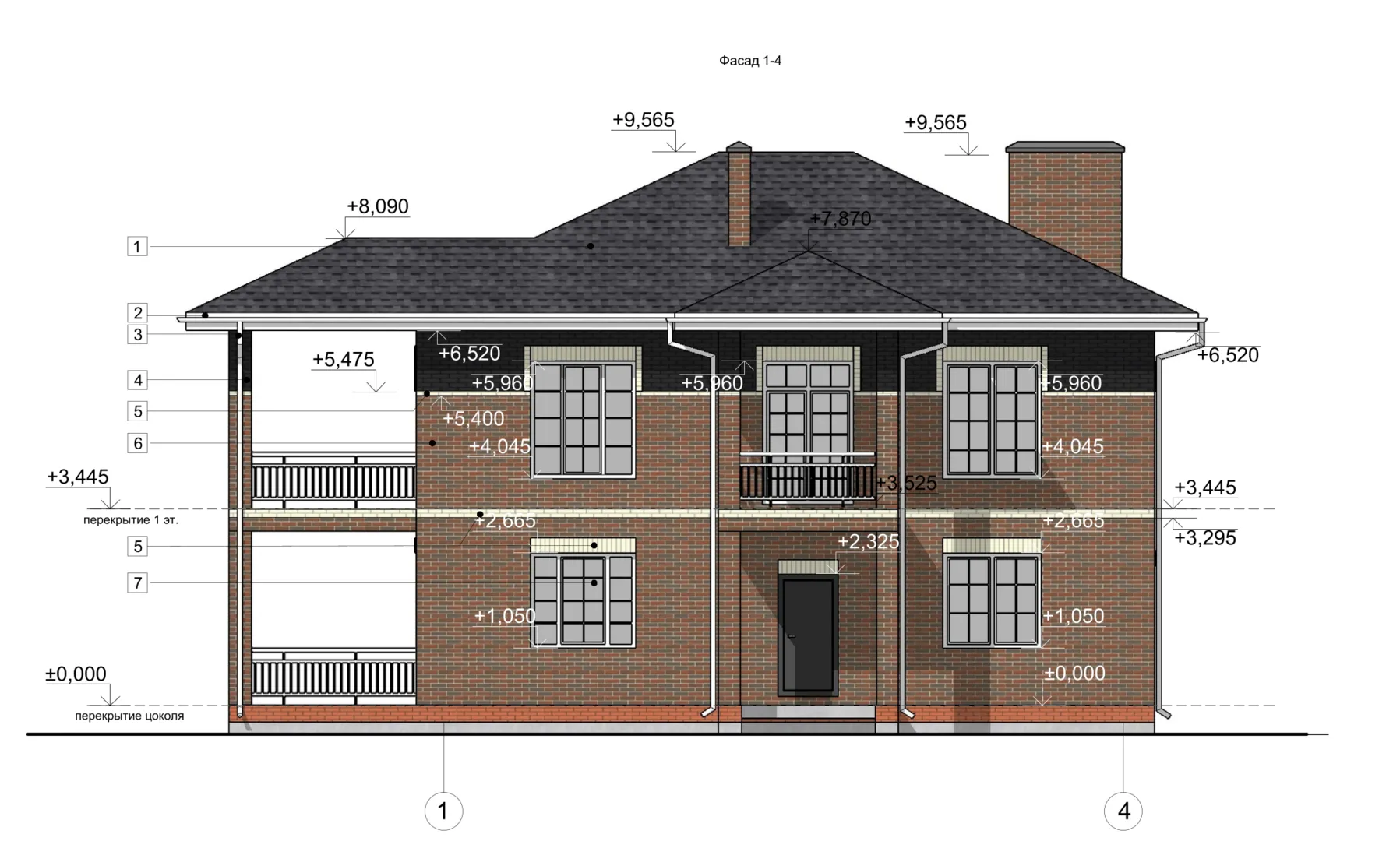
Фасад дома

Александр

Закажите выезд инженера

Александр

Выездной инженер
Закажите выезд инженера для точной диагностики и профессиональной консультации по инженерным системам. Специалист приедет в удобное время, проведёт осмотр, рассчитает стоимость работ и подберёт оптимальные решения для вашего дома.


    Похожие проекты

    Ипотека и
    рассрочка
    Охлопковы 8647
    Стоимость от:
    11 056 980
    Проект от: 62 550
    Этажей 1
    Санузлы 1
    Спальни 3
    Смотреть
    Ипотека и
    рассрочка
    Двухэтажный дом с мансардой ЦН-107
    Стоимость от:
    6 919 560
    Проект от: 48 150
    Этажей 2
    Санузлы 2
    Спальни 2
    Смотреть
    Ипотека и
    рассрочка
    Каркасный дом 110 кв.м.
    Стоимость от:
    6 593 400
    Проект от: 49 500
    Этажей 2
    Санузлы 2
    Спальни 4
    Смотреть
    Ипотека и
    рассрочка
    А 85
    Стоимость от:
    5 815 700
    Проект от: 38 250
    Этажей 1
    Санузлы 1
    Спальни 3
    Смотреть
    Ипотека и
    рассрочка
    Проект 5
    Стоимость от:
    14 806 080
    Проект от: 95 400
    Этажей 2
    Санузлы 2
    Спальни 5
    Смотреть
    Ипотека и
    рассрочка
    Дом двухэтажный «Большая семья»
    Стоимость от:
    6 139 680
    Проект от: 36 900
    Этажей 2
    Санузлы 2
    Спальни 3
    Смотреть

    Как узнать стоимость дома

    back
    Оставляете заявку
    Вы заполняете форму на сайте или звоните нам. Менеджер Лайвкрафт связывается с вами для уточнения деталей: тип дома, площадь, материалы, участок строительства.
    back
    Консультация и подбор решения
    Наш специалист помогает выбрать оптимальный тип дома и конструкцию с учётом бюджета, сроков и целей — будь то дом для постоянного проживания или дача.
    back
    Расчёт предварительной стоимости
    Инженер делает первичный расчёт стоимости строительства по вашим параметрам: фундамент, коробка, кровля, отделка. Вы получаете смету с разбивкой по этапам.
    back
    Корректировка и утверждение сметы
    При необходимости вносим изменения — например, замену материалов или сокращение этапов. После согласования формируется окончательная фиксированная смета.
    back
    Заключение договора и старт работ
    После утверждения сметы заключаем официальный договор с гарантией. Вы получаете прозрачный график и точную стоимость — без скрытых расходов.

    Заказать конусльтацию по:Дом в Осиново

    Фото 1 Дом в Осиново


      Наши
      контакты

      Дмитров
      Опорный проезд 28Б
      (индустриальный парк Ниагара)
      9:00 до 18:00

      Корзина