4.9
Рейтинг на основании 120 отзывов
Дмитров
Опорный проезд 28Б
(индустриальный парк Ниагара)
Бренд "Дмитров-Дело" c 2008 года на рынке строительства в Дмитрове
Звоните 9:00 до 18:00 8 (915) 055-33-61
Бренд "Дмитров-Дело" c 2008 года на рынке строительства в Дмитрове

Дом с мансардным этажом «Юрма 2.0»

Стоимость проекта от:
42 300 ₽
БЕСПЛАТНО! ПРИ ЗАКАЗЕ СТРОИТЕЛЬСТВА
Стоимость строительства от:
6 564 960 ₽
Артикул ART-14363
Дата 25.12.2025
Архитектурный стиль Европейский
Количество надземных этажей 2
Круглогодичное проживание Да
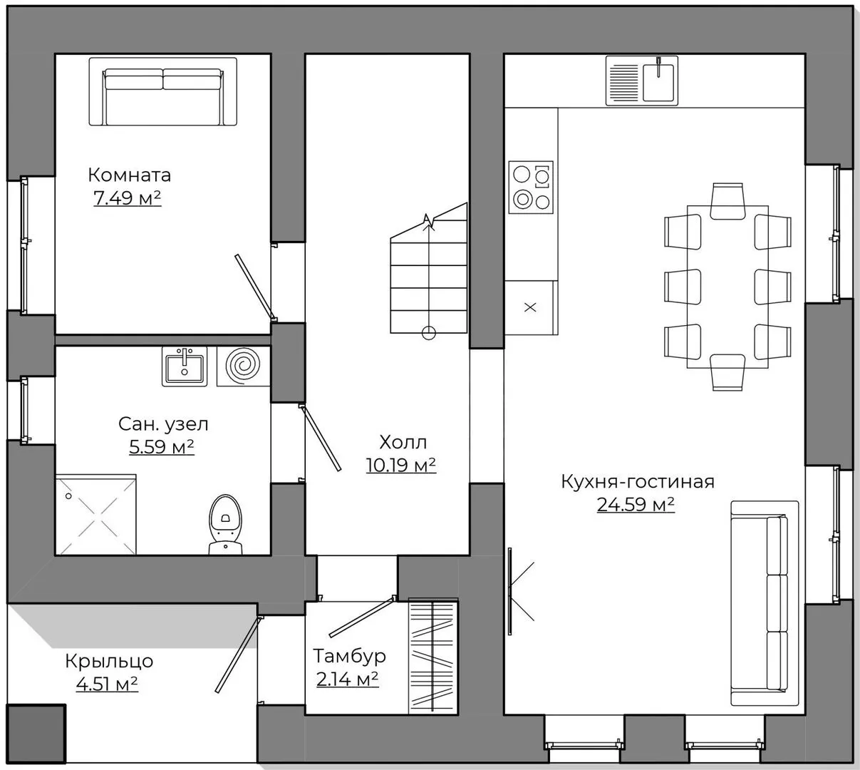
Площадь дома 94 м2
Санузлы 3
Спальни 2

Описание

**Дом «Юрма 2.0» – уют в европейском стиле** Этот очаровательный двухэтажный дом, выполненный в строгом европейском стиле, приглашает почувствовать комфорт круглый год. Изысканные газобетонные стены обрамлены комбинированной крышей, создающей приятный контраст с нежно-крашеной фасадной отделкой. При этом его простая, но элегантная архитектура позволяет легко вписаться в любой городской или загородный ландшафт. **Как бы вы жили внутри?** Несмотря на отсутствие балконов, веранд и парковки, «Юрма 2.0» предлагает продуманное пространство: мансардный этаж, где можно разместить дополнительную спальню, кабинет или игровую комнату. Удобная планировка двух надземных этаже обеспечивает достаточное освещение и хорошую вентиляцию, а отсутствие чердачного помещения облегчает обслуживание дома. Внутри встречают светлеющие интерьеры с современными материалами, функциональными проходами и изолированными стенами для тихого отдыха. **Звоните сейчас и начните жизнь в новом доме** Если вы ищете стильное, комфортабельное жильё, которое сочетает в себе европейскую элегантность и практическую беззаботность, «Юрма 2.0» – это ваш выбор. Позвоните нам сегодня, и мы с радостью расскажем о ценах, возможных планах и условиях покупки. Ваш новый дом уже ждёт!

Характеристики дома

Архитектурный стиль
Автоматизированное регулирование параметров теплоносителя
Нет
Балконы/лоджии
Отсутствуют
Чердачное помещение
Нет
Датчики протечки воды
Нет
Эксплуатируемая или зеленая кровля
Нет
Электроснабжение
Индивидуальное
Газоснабжение
Индивидуальное
Изоляция воздушного шума
Нет
Камин
Нет
Класс энергоэффективности
-
Класс энергосбережения
-
Количество надземных этажей
2
Круглогодичное проживание
Да
Материал кровли
Металлочерепица
Материал перекрытий
Сборные железобетонные многопустотные плиты
Материал внешних стен
Материал внутренних перегородок
Блочные
Модульное строительство с конструкциями заводского изготовления
Нет
Объем надземной части
-
Основной материал фасадов
Облицовочный кирпич
Отопление
Индивидуальное
Площадь дома
94 м2
Площадь застройки
150 м2
Подвальное помещение
Нет
Показатель компактности здания
-
Приборы учета тепловой энергии
Нет
Пристроенный гараж/крытая автостоянка
Нет
Противопожарная система
Нет
Санузлы
3
Совмещенная кухня-гостиная
Да
Спальни
2
Терраса
Нет
Тип фундамента
Плитный
Тип кровли
Толщина внешних стен
375 мм
Толщина внутренних перегородок
100 мм
Улучшенные шумовые характеристики
Нет
Вентиляция
Естественная
Веранда
Нет
Водоотведение
Локальные очистные сооружения
Водоснабжение
Индивидуальное
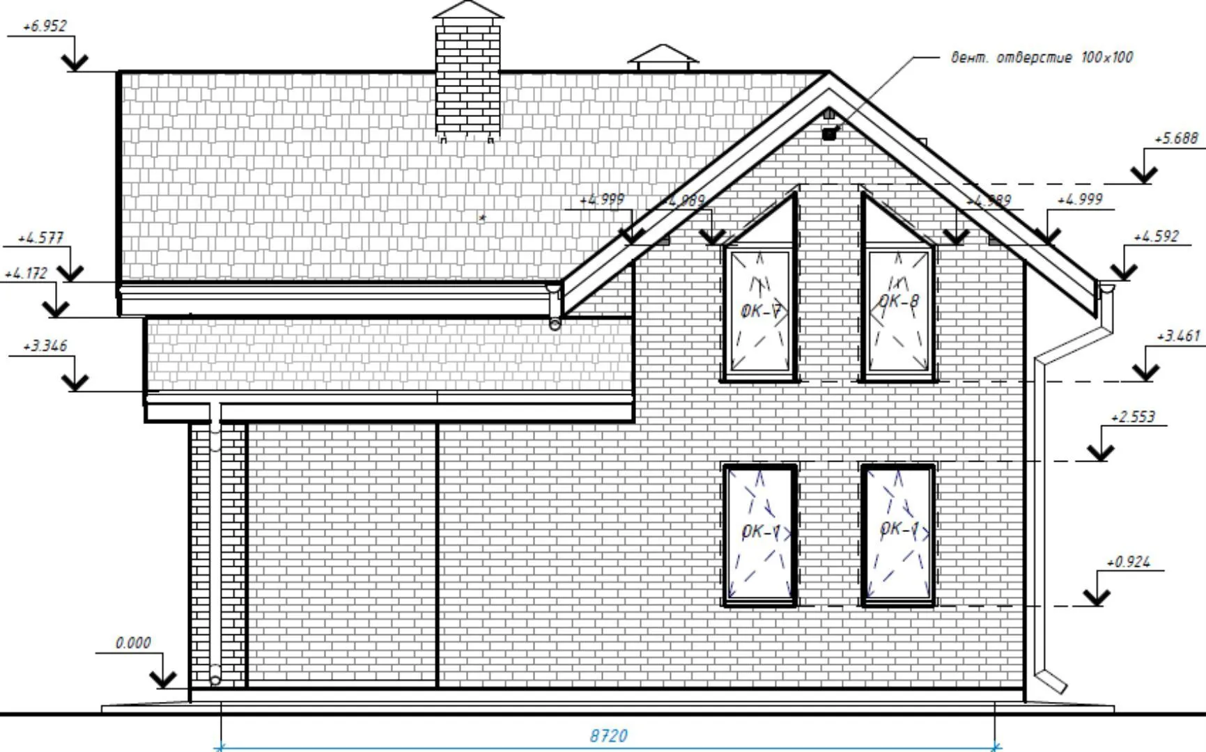
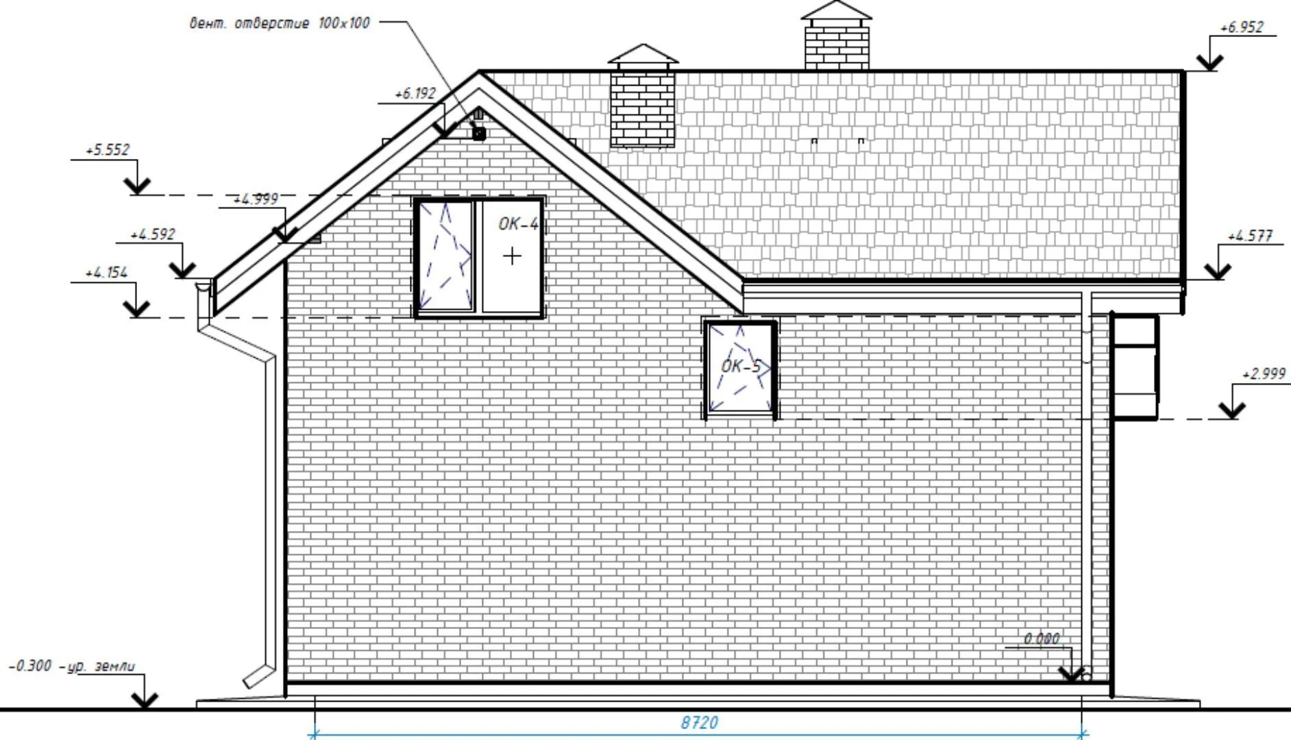
Высота дома
6.95 м
Высота потолков
2.75 м

Планировка

Фасад дома

Александр

Закажите выезд инженера

Александр

Выездной инженер
Закажите выезд инженера для точной диагностики и профессиональной консультации по инженерным системам. Специалист приедет в удобное время, проведёт осмотр, рассчитает стоимость работ и подберёт оптимальные решения для вашего дома.


    Похожие проекты

    Ипотека и
    рассрочка
    Одноэтажный дом FIXPLANS — 2330
    Стоимость от:
    9 150 900
    Проект от: 51 750
    Этажей 1
    Санузлы 2
    Спальни 3
    Смотреть
    Ипотека и
    рассрочка
    Проект Мия
    Стоимость от:
    27 636 000
    Проект от: 166 500
    Этажей 2
    Санузлы 3
    Спальни 3
    Смотреть
    Ипотека и
    рассрочка
    Загородный дом ВС-112
    Стоимость от:
    10 451 760
    Проект от: 66 600
    Этажей 1
    Санузлы 2
    Спальни 2
    Смотреть
    Ипотека и
    рассрочка
    Лейрвик-1
    Стоимость от:
    4 216 245
    Проект от: 31 050
    Этажей 1
    Санузлы 1
    Спальни 3
    Смотреть
    Ипотека и
    рассрочка
    Дом «Лестер 82» в стиле барнхаус
    Стоимость от:
    4 740 010
    Проект от: 36 900
    Этажей 1
    Санузлы 1
    Спальни 2
    Смотреть
    Ипотека и
    рассрочка
    Лебедево
    Стоимость от:
    6 842 000
    Проект от: 45 000
    Этажей 1
    Санузлы 2
    Спальни 3
    Смотреть

    Как узнать стоимость дома

    back
    Оставляете заявку
    Вы заполняете форму на сайте или звоните нам. Менеджер Лайвкрафт связывается с вами для уточнения деталей: тип дома, площадь, материалы, участок строительства.
    back
    Консультация и подбор решения
    Наш специалист помогает выбрать оптимальный тип дома и конструкцию с учётом бюджета, сроков и целей — будь то дом для постоянного проживания или дача.
    back
    Расчёт предварительной стоимости
    Инженер делает первичный расчёт стоимости строительства по вашим параметрам: фундамент, коробка, кровля, отделка. Вы получаете смету с разбивкой по этапам.
    back
    Корректировка и утверждение сметы
    При необходимости вносим изменения — например, замену материалов или сокращение этапов. После согласования формируется окончательная фиксированная смета.
    back
    Заключение договора и старт работ
    После утверждения сметы заключаем официальный договор с гарантией. Вы получаете прозрачный график и точную стоимость — без скрытых расходов.

    Заказать конусльтацию по:Дом с мансардным этажом «Юрма 2.0»

    Фото 1 Дом с мансардным этажом «Юрма 2.0»


      Наши
      контакты

      Дмитров
      Опорный проезд 28Б
      (индустриальный парк Ниагара)
      9:00 до 18:00

      Корзина