4.9
Рейтинг на основании 120 отзывов
Дмитров
Опорный проезд 28Б
(индустриальный парк Ниагара)
Бренд "Дмитров-Дело" c 2008 года на рынке строительства в Дмитрове
Звоните 9:00 до 18:00 8 (915) 055-33-61
Бренд "Дмитров-Дело" c 2008 года на рынке строительства в Дмитрове

Maria

Стоимость проекта от:
33 750 ₽
БЕСПЛАТНО! ПРИ ЗАКАЗЕ СТРОИТЕЛЬСТВА
Стоимость строительства от:
5 974 100 ₽
Артикул ART-15205
Дата 25.12.2025
Архитектурный стиль Фахверк
Количество надземных этажей 1
Круглогодичное проживание Да
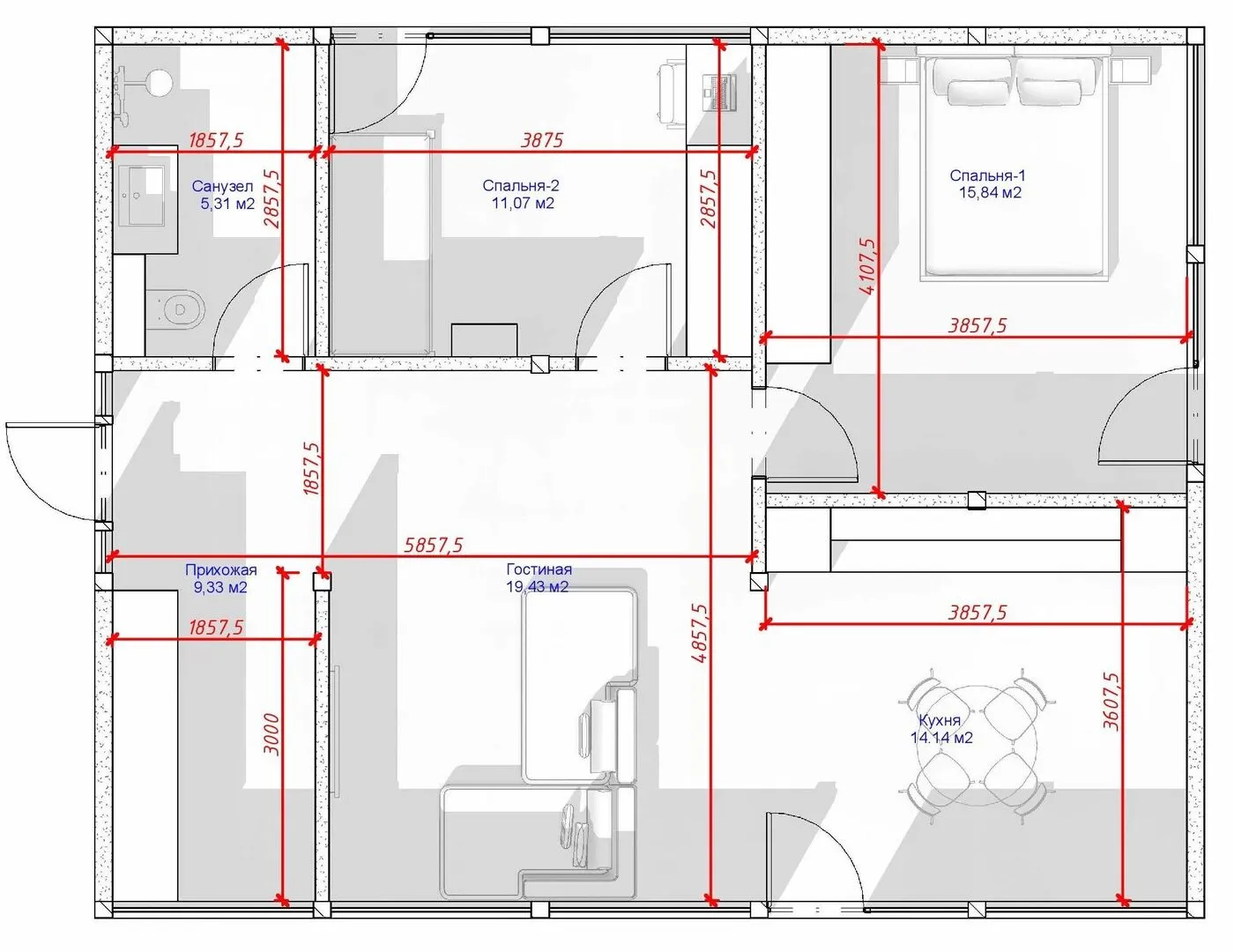
Площадь дома 75 м2
Санузлы 1
Спальни 2

Описание

В сердце тихого уголка, где каждый закат раскрывает свои золотые краски, находится наш дом «Мари́я» – воплощение очарования традиций и комфорта современности. С одной полостью надземного пространства этот уютный уголок приглашает гостей в круглогодичное проживание, где каждый день начинается с легкости и завершается ощущением уюта. Архитектурный стиль фахверк придает дому характерный, почти сказочный вид: резные деревянные каркасы, словно живое сердце дома, оживляют фасад и создают гармоничную связь с природой. Внутри «Мари́я» раскрывает тепло и простоту. Каркасно‑панельная конструкция обеспечивает изоляцию и энергоэффективность, позволяя наслаждаться приятной температурой в любое время года. Двускатная крыша добавляет образу нотки грандиозности, а простые, открытые внутренние зоны приглашают к творческому самовыражению и семейным уютным вечерам. Здесь нет лишней суеты: вдали от повседневных помех, каждый уголок наполнен свободой и возможностью погрузиться в собственный мир, где гармония с природой и комфорт дома идут рука об руку.

Характеристики дома

Архитектурный стиль
Автоматизированное регулирование параметров теплоносителя
Да
Балконы/лоджии
Отсутствуют
Чердачное помещение
Нет
Датчики протечки воды
Нет
Эксплуатируемая или зеленая кровля
Нет
Электроснабжение
Центральное
Газоснабжение
Не предусмотрено
Изоляция воздушного шума
Нет
Камин
Нет
Класс энергоэффективности
-
Класс энергосбережения
-
Количество надземных этажей
1
Круглогодичное проживание
Да
Материал кровли
Металлочерепица
Материал перекрытий
Иной вид материалов перекрытий
Материал внешних стен
Материал внутренних перегородок
Гипсокартонные
Модульное строительство с конструкциями заводского изготовления
Нет
Объем надземной части
250 м3
Основной материал фасадов
Фасадная плитка
Отопление
Индивидуальное
Площадь дома
75 м2
Площадь застройки
600 м2
Подвальное помещение
Нет
Показатель компактности здания
-
Приборы учета тепловой энергии
Нет
Пристроенный гараж/крытая автостоянка
Нет
Противопожарная система
Нет
Санузлы
1
Совмещенная кухня-гостиная
Да
Спальни
2
Терраса
Нет
Тип фундамента
Ленточный
Тип кровли
Толщина внешних стен
160 мм
Толщина внутренних перегородок
150 мм
Улучшенные шумовые характеристики
Да
Вентиляция
Естественная
Веранда
Нет
Водоотведение
Не предусмотрено
Водоснабжение
Индивидуальное
Высота дома
4.2 м
Высота потолков
3.8 м

Планировка

Фасад дома

Александр

Закажите выезд инженера

Александр

Выездной инженер
Закажите выезд инженера для точной диагностики и профессиональной консультации по инженерным системам. Специалист приедет в удобное время, проведёт осмотр, рассчитает стоимость работ и подберёт оптимальные решения для вашего дома.


    Похожие проекты

    Ипотека и
    рассрочка
    ЛИНДАУ
    Стоимость от:
    6 389 900
    Проект от: 38 250
    Этажей 1
    Санузлы 1
    Спальни 2
    Смотреть
    Ипотека и
    рассрочка
    Сидней 148
    Стоимость от:
    8 618 400
    Проект от: 64 800
    Этажей 2
    Санузлы 2
    Спальни 7
    Смотреть
    Ипотека и
    рассрочка
    Дом из клееного бруса «Егорьевск»
    Стоимость от:
    8 742 000
    Проект от: 60 750
    Этажей 2
    Санузлы 2
    Спальни 1
    Смотреть
    Ипотека и
    рассрочка
    Жилой дом 6х6
    Стоимость от:
    4 584 240
    Проект от: 27 450
    Этажей 2
    Санузлы 1
    Спальни 2
    Смотреть
    Ипотека и
    рассрочка
    88-24
    Стоимость от:
    9 837 850
    Проект от: 69 750
    Этажей 1
    Санузлы 2
    Спальни 4
    Смотреть
    Ипотека и
    рассрочка
    D131-2
    Стоимость от:
    11 331 360
    Проект от: 78 300
    Этажей 2
    Санузлы 2
    Спальни 4
    Смотреть

    Как узнать стоимость дома

    back
    Оставляете заявку
    Вы заполняете форму на сайте или звоните нам. Менеджер Лайвкрафт связывается с вами для уточнения деталей: тип дома, площадь, материалы, участок строительства.
    back
    Консультация и подбор решения
    Наш специалист помогает выбрать оптимальный тип дома и конструкцию с учётом бюджета, сроков и целей — будь то дом для постоянного проживания или дача.
    back
    Расчёт предварительной стоимости
    Инженер делает первичный расчёт стоимости строительства по вашим параметрам: фундамент, коробка, кровля, отделка. Вы получаете смету с разбивкой по этапам.
    back
    Корректировка и утверждение сметы
    При необходимости вносим изменения — например, замену материалов или сокращение этапов. После согласования формируется окончательная фиксированная смета.
    back
    Заключение договора и старт работ
    После утверждения сметы заключаем официальный договор с гарантией. Вы получаете прозрачный график и точную стоимость — без скрытых расходов.

    Заказать конусльтацию по:Maria

    Фото 1 Maria


      Наши
      контакты

      Дмитров
      Опорный проезд 28Б
      (индустриальный парк Ниагара)
      9:00 до 18:00

      Корзина