4.9
Рейтинг на основании 120 отзывов
Дмитров
Опорный проезд 28Б
(индустриальный парк Ниагара)
Бренд "Дмитров-Дело" c 2008 года на рынке строительства в Дмитрове
Звоните 9:00 до 18:00 8 (915) 055-33-61
Бренд "Дмитров-Дело" c 2008 года на рынке строительства в Дмитрове

Дом Светлый 36

Стоимость проекта от:
15 750 ₽
БЕСПЛАТНО! ПРИ ЗАКАЗЕ СТРОИТЕЛЬСТВА
Стоимость строительства от:
2 023 175 ₽
Артикул ART-18217
Дата 26.12.2025
Архитектурный стиль Классический
Количество надземных этажей 1
Круглогодичное проживание Да
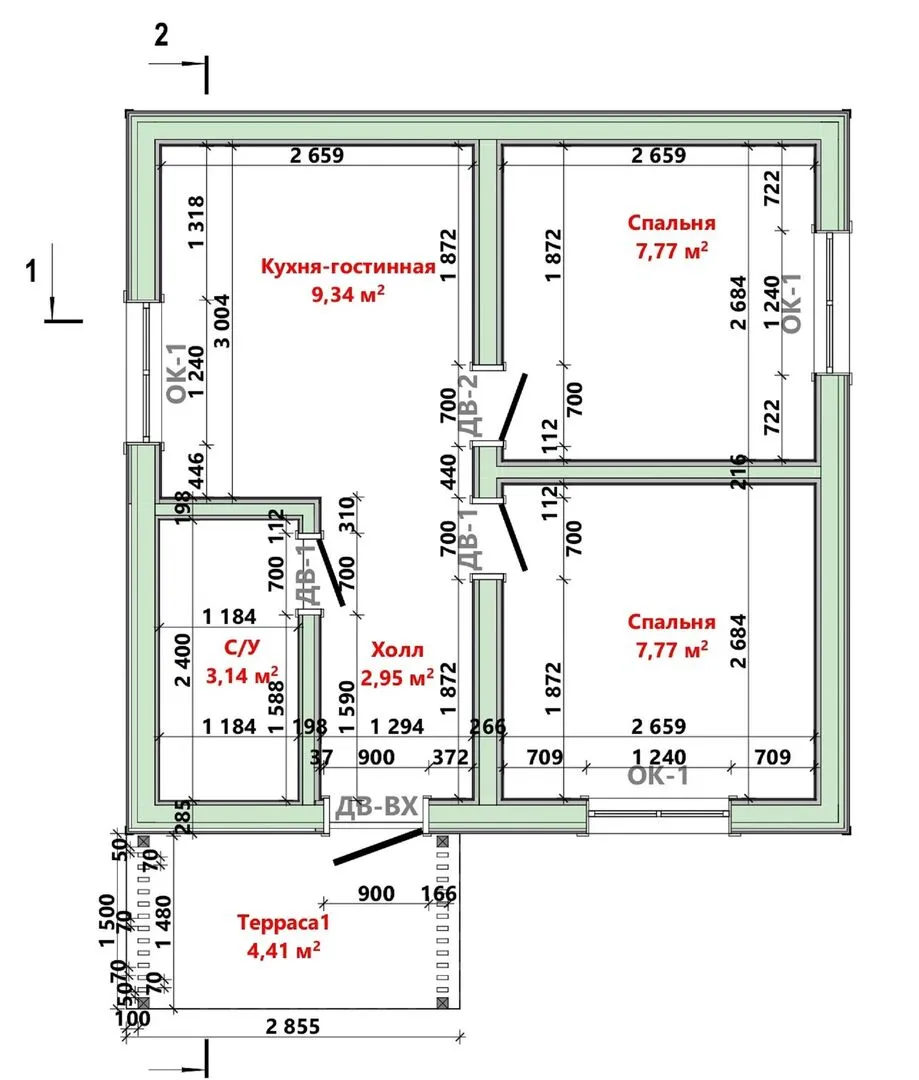
Площадь дома 35 м2
Санузлы 1
Спальни 2

Описание

**Добро пожаловать в Дом Светлый 36 – уютный уголок, где каждый луч солнца обретает новый смысл.** Небольшой, но уютный одноэтажный дом, построенный в классическом стиле, очаровывает своим гармоничным сочетанием древесного каркаса и традиционной двускатной крыши. Внутренний свет льется как из самого сердца, а просторный чердачное помещение открывает возможности для творчества и хранения. Всё построено так, чтобы обеспечить вам круглогодичное комфортное проживание: изысканная отделка, удобная планировка, а также тёплая, приглушённая атмосфера, где ничто не отвлекает от ощущения дома. **Терраса, где встречаются воздух и природа, приглашает к спокойным прогулкам и восстанавливающим вечерним беседам.** На открытой площадке вы сможете насладиться чашечкой кофе под звуки ветра в листве, а в прохладные вечера — укрыться под пледом и смотреть на звёздное небо. Отсутствие гаража лишь подчёркивает простоту и незамысловатость, а отсутствие веранды позволяет полностью погрузиться в естественный свет. Дом Светлый 36 создаёт неповторимую атмосферу уюта и гармонии, напоминая о вечных ценностях традиций и современного комфорта. Если вы ищете дом, где каждый уголок говорит о тепле и светлой встрече с миром, этот уютный уголок станет идеальным выбором.

Характеристики дома

Архитектурный стиль
Автоматизированное регулирование параметров теплоносителя
Нет
Балконы/лоджии
Отсутствуют
Чердачное помещение
Да
Датчики протечки воды
Нет
Эксплуатируемая или зеленая кровля
Нет
Электроснабжение
Центральное
Газоснабжение
Не предусмотрено
Изоляция воздушного шума
Нет
Камин
Нет
Класс энергоэффективности
-
Класс энергосбережения
-
Количество надземных этажей
1
Круглогодичное проживание
Да
Материал кровли
Металлочерепица
Материал перекрытий
Деревянные
Материал внешних стен
Материал внутренних перегородок
Деревянные
Модульное строительство с конструкциями заводского изготовления
Нет
Объем надземной части
180 м3
Основной материал фасадов
Сайдинг
Отопление
Индивидуальное
Площадь дома
35 м2
Площадь застройки
40 м2
Подвальное помещение
Нет
Показатель компактности здания
-
Приборы учета тепловой энергии
Нет
Пристроенный гараж/крытая автостоянка
Нет
Противопожарная система
Нет
Санузлы
1
Совмещенная кухня-гостиная
Да
Спальни
2
Терраса
Да
Тип фундамента
Свайно-винтовой
Тип кровли
Толщина внешних стен
200 мм
Толщина внутренних перегородок
100 мм
Улучшенные шумовые характеристики
Да
Вентиляция
Принудительная
Веранда
Нет
Водоотведение
Не предусмотрено
Водоснабжение
Не предусмотрено
Высота дома
4.8 м
Высота потолков
2.6 м

Планировка

Фасад дома

Александр

Закажите выезд инженера

Александр

Выездной инженер
Закажите выезд инженера для точной диагностики и профессиональной консультации по инженерным системам. Специалист приедет в удобное время, проведёт осмотр, рассчитает стоимость работ и подберёт оптимальные решения для вашего дома.


    Похожие проекты

    Ипотека и
    рассрочка
    Одноэтажный дом Морион 127
    Стоимость от:
    8 968 740
    Проект от: 57 150
    Этажей 1
    Санузлы 2
    Спальни 3
    Смотреть
    Ипотека и
    рассрочка
    Статус 8х9 Базис
    Стоимость от:
    6 703 200
    Проект от: 50 400
    Этажей 2
    Санузлы 2
    Спальни 4
    Смотреть
    Ипотека и
    рассрочка
    Двухэтажный загородный дом №160
    Стоимость от:
    9 423 840
    Проект от: 56 700
    Этажей 2
    Санузлы 2
    Спальни 4
    Смотреть
    Ипотека и
    рассрочка
    Загородный дом «АНЮЙ»
    Стоимость от:
    8 050 680
    Проект от: 51 300
    Этажей 1
    Санузлы 2
    Спальни 3
    Смотреть
    Ипотека и
    рассрочка
    Проект 113 без террасы
    Стоимость от:
    7 440 180
    Проект от: 44 550
    Этажей 1
    Санузлы 2
    Спальни 3
    Смотреть
    Ипотека и
    рассрочка
    Загородный дом «Консоль»
    Стоимость от:
    18 672 960
    Проект от: 114 300
    Этажей 2
    Санузлы 2
    Спальни 5
    Смотреть

    Как узнать стоимость дома

    back
    Оставляете заявку
    Вы заполняете форму на сайте или звоните нам. Менеджер Лайвкрафт связывается с вами для уточнения деталей: тип дома, площадь, материалы, участок строительства.
    back
    Консультация и подбор решения
    Наш специалист помогает выбрать оптимальный тип дома и конструкцию с учётом бюджета, сроков и целей — будь то дом для постоянного проживания или дача.
    back
    Расчёт предварительной стоимости
    Инженер делает первичный расчёт стоимости строительства по вашим параметрам: фундамент, коробка, кровля, отделка. Вы получаете смету с разбивкой по этапам.
    back
    Корректировка и утверждение сметы
    При необходимости вносим изменения — например, замену материалов или сокращение этапов. После согласования формируется окончательная фиксированная смета.
    back
    Заключение договора и старт работ
    После утверждения сметы заключаем официальный договор с гарантией. Вы получаете прозрачный график и точную стоимость — без скрытых расходов.

    Заказать конусльтацию по:Дом Светлый 36

    Фото 1 Дом Светлый 36


      Наши
      контакты

      Дмитров
      Опорный проезд 28Б
      (индустриальный парк Ниагара)
      9:00 до 18:00

      Корзина