4.9
Рейтинг на основании 120 отзывов
Дмитров
Опорный проезд 28Б
(индустриальный парк Ниагара)
Бренд "Дмитров-Дело" c 2008 года на рынке строительства в Дмитрове
Звоните 9:00 до 18:00 8 (915) 055-33-61
Бренд "Дмитров-Дело" c 2008 года на рынке строительства в Дмитрове

Дом в Булгаково

Стоимость проекта от:
42 750 ₽
БЕСПЛАТНО! ПРИ ЗАКАЗЕ СТРОИТЕЛЬСТВА
Стоимость строительства от:
6 931 100 ₽
Артикул ART-17788
Дата 26.12.2025
Архитектурный стиль Классический
Количество надземных этажей 1
Круглогодичное проживание Да
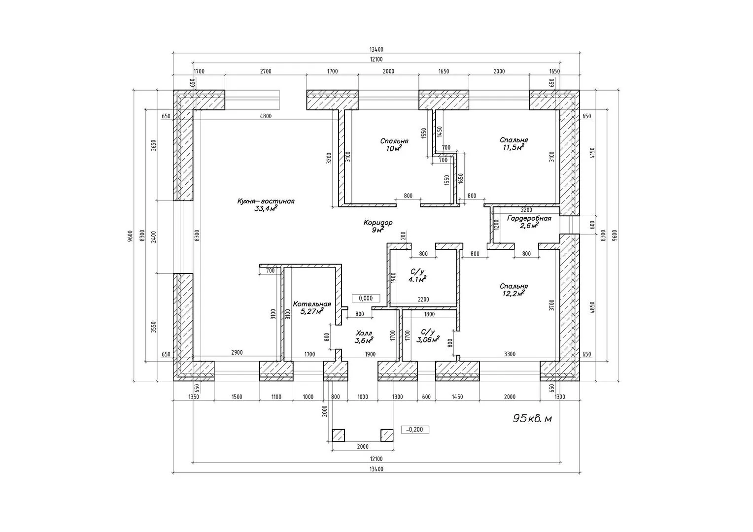
Площадь дома 95 м2
Санузлы 2
Спальни 3

Описание

Небольшой уютный уголок в тихнем поселке Булгаково, где каждый день начинается с запаха свежего леса и звуков зарницы, готов предложить вам идеальный старт новой жизни. Дом, открывающийся с широким проёмом в классическом стиле, создаёт ощущение домашнего тепла и беззаботной простоты. Его одна надземная этажа позволяет с лёгкостью ориентироваться, а просторные большие окна дарят свет и свежий ветер, наполняя помещение приятной атмосферой. Круглогодичное проживание в этом доме — гарантия комфорта в любое время года: в летний день лёгкая прохлада, в осенний вечер очаровательный уют, а в зиму тепло и защита от холода. В архитектуре не обошло стороной классический стиль, который подчёркивает гармонию простых линий и продуманную функциональность. Балконы, веранда и чердачное помещение отсутствуют, но это лишь подчеркивает чистоту и лаконичность дизайна, позволяя сосредоточиться на главном — на вашем комфорте и близости к природе. Внешние стены из газобетонных блоков гарантируют надёжную тепло- и звукоизоляцию, а четырёхскатная (вальмовая) кровля дарит прочность и защиту от непогоды. Такой дом стал бы идеальной площадкой для тихой семейной жизни или уютного уединения, ведь каждый уголок здесь спроектирован так, чтобы дарить радость и приятные ощущения. Приглашаем вас сделать шаг навстречу комфорту и простоте, открыть дверь в новый уютный дом на солнечном Булгаково.

Характеристики дома

Архитектурный стиль
Автоматизированное регулирование параметров теплоносителя
Нет
Балконы/лоджии
Отсутствуют
Чердачное помещение
Нет
Датчики протечки воды
Нет
Эксплуатируемая или зеленая кровля
Нет
Электроснабжение
Центральное
Газоснабжение
Не предусмотрено
Изоляция воздушного шума
Нет
Камин
Нет
Класс энергоэффективности
-
Класс энергосбережения
-
Количество надземных этажей
1
Круглогодичное проживание
Да
Материал кровли
Металлические рулонные или листовые материалы
Материал перекрытий
Сборно-монолитные железобетонные по металлическим балкам
Материал внешних стен
Материал внутренних перегородок
Блочные
Модульное строительство с конструкциями заводского изготовления
Нет
Объем надземной части
-
Основной материал фасадов
Облицовочный кирпич
Отопление
Индивидуальное
Площадь дома
95 м2
Площадь застройки
129 м2
Подвальное помещение
Нет
Показатель компактности здания
-
Приборы учета тепловой энергии
Нет
Пристроенный гараж/крытая автостоянка
Нет
Противопожарная система
Нет
Санузлы
2
Совмещенная кухня-гостиная
Да
Спальни
3
Терраса
Нет
Тип фундамента
Свайно-ростверковый
Толщина внешних стен
300 мм
Толщина внутренних перегородок
200 мм
Улучшенные шумовые характеристики
Нет
Вентиляция
Принудительная
Веранда
Нет
Водоотведение
Локальные очистные сооружения
Водоснабжение
Индивидуальное
Высота дома
5.7 м
Высота потолков
2.8 м

Планировка

Фасад дома

Александр

Закажите выезд инженера

Александр

Выездной инженер
Закажите выезд инженера для точной диагностики и профессиональной консультации по инженерным системам. Специалист приедет в удобное время, проведёт осмотр, рассчитает стоимость работ и подберёт оптимальные решения для вашего дома.


    Похожие проекты

    Ипотека и
    рассрочка
    Двухэтажный дом -Family 02
    Стоимость от:
    9 335 040
    Проект от: 61 200
    Этажей 2
    Санузлы 1
    Спальни 4
    Смотреть
    Ипотека и
    рассрочка
    Одноэтажный дом А022
    Стоимость от:
    5 639 700
    Проект от: 33 750
    Этажей 1
    Санузлы 1
    Спальни 3
    Смотреть
    Ипотека и
    рассрочка
    Загородный дом по проекту «Вильям».
    Стоимость от:
    9 768 000
    Проект от: 67 500
    Этажей 1
    Санузлы 1
    Спальни 3
    Смотреть
    Ипотека и
    рассрочка
    Канен 107
    Стоимость от:
    5 967 390
    Проект от: 48 150
    Этажей 1
    Санузлы 2
    Спальни 3
    Смотреть
    Ипотека и
    рассрочка
    Проект «Мальцева»
    Стоимость от:
    6 567 660
    Проект от: 41 850
    Этажей 1
    Санузлы 1
    Спальни 2
    Смотреть
    Ипотека и
    рассрочка
    Алтай
    Стоимость от:
    15 022 800
    Проект от: 96 750
    Этажей 2
    Санузлы 3
    Спальни 4
    Смотреть

    Как узнать стоимость дома

    back
    Оставляете заявку
    Вы заполняете форму на сайте или звоните нам. Менеджер Лайвкрафт связывается с вами для уточнения деталей: тип дома, площадь, материалы, участок строительства.
    back
    Консультация и подбор решения
    Наш специалист помогает выбрать оптимальный тип дома и конструкцию с учётом бюджета, сроков и целей — будь то дом для постоянного проживания или дача.
    back
    Расчёт предварительной стоимости
    Инженер делает первичный расчёт стоимости строительства по вашим параметрам: фундамент, коробка, кровля, отделка. Вы получаете смету с разбивкой по этапам.
    back
    Корректировка и утверждение сметы
    При необходимости вносим изменения — например, замену материалов или сокращение этапов. После согласования формируется окончательная фиксированная смета.
    back
    Заключение договора и старт работ
    После утверждения сметы заключаем официальный договор с гарантией. Вы получаете прозрачный график и точную стоимость — без скрытых расходов.

    Заказать конусльтацию по:Дом в Булгаково

    Фото 1 Дом в Булгаково


      Наши
      контакты

      Дмитров
      Опорный проезд 28Б
      (индустриальный парк Ниагара)
      9:00 до 18:00

      Корзина