4.9
Рейтинг на основании 120 отзывов
Дмитров
Опорный проезд 28Б
(индустриальный парк Ниагара)
Бренд "Дмитров-Дело" c 2008 года на рынке строительства в Дмитрове
Звоните 9:00 до 18:00 8 (915) 055-33-61
Бренд "Дмитров-Дело" c 2008 года на рынке строительства в Дмитрове

Дом в стиле «Шале» ЭД-99

Стоимость проекта от:
31 950 ₽
БЕСПЛАТНО! ПРИ ЗАКАЗЕ СТРОИТЕЛЬСТВА
Стоимость строительства от:
4 338 455 ₽
Артикул ART-11013
Дата 25.12.2025
Архитектурный стиль Шале
Количество надземных этажей 1
Круглогодичное проживание Да
Площадь дома 71 м2
Санузлы 1
Спальни 3

Описание

**Дом в стиле «Шале» — ЭД‑99** Величественная горная архитектура встречает современную технологию в этом уютном шале. С единственным надземным этажом он приглашает к простому, но при этом роскошному образу жизни: просторные открытые зоны, большие панорамные окна, пропитанные светом, создают ощущение лёгкости и свободы, характерное для альпийских коттеджей. Внутренняя планировка продумана до мелочей: обеденная зона, камин, кухонный остров — всё, что нужно для семейных вечеров и приглашений друзей, не уступая комфорту ни в одном доме. **Изысканное сочетание природы и технологии** Внешние стены выполнены из высококлассных SIP‑панелей, которые обеспечивают непревзойденную теплоизоляцию и экономичность, а двускатная крыша не только подчёркивает традиционный шале‑образ, но и отводит снег и дождь с легкостью. На открытой террасе можно насладиться рассветом, закатами и свежим воздухом, не выходя из дома. Этот шале рассчитан на круглогодичную жизнь: от жарких летних дней, наполненных прогулками, до уютных зимних вечеров у камина, где тепло и свет никогда не покинет ваше пространство. **Плюсы и особенности** - 1 надземный этаж, идеально подходят для семей с детьми или парой, ценящей спокойствие и простор. - Отличная теплоизоляция благодаря SIP‑панелям делает энерговоспользование низким. - Трехкратное внимание к деталям: архитектура, материал и функциональность в одном комплексе. - Легко поддерживать: не требуются сложные гаражи или подземные стоянки, всё, что нужно, находится на открытой террасе. **Принятие решения** Этот шале — идеальный выбор для тех, кто ищет гармонию между природой и комфортной бытовой средой. Позвольте себе ощутить всю прелесть горного уюта в каждом уголке вашего нового дома. Начните жить там, где каждый день напоминает праздник.

Характеристики дома

Архитектурный стиль
Автоматизированное регулирование параметров теплоносителя
Нет
Балконы/лоджии
Отсутствуют
Чердачное помещение
Нет
Датчики протечки воды
Нет
Эксплуатируемая или зеленая кровля
Нет
Электроснабжение
2 варианта
Газоснабжение
Не предусмотрено
Изоляция воздушного шума
Нет
Камин
Нет
Класс энергоэффективности
-
Класс энергосбережения
-
Количество надземных этажей
1
Круглогодичное проживание
Да
Материал кровли
Фальцевая кровля Кликфальц
Материал перекрытий
Деревянные
Материал внешних стен
Материал внутренних перегородок
Деревянные
Модульное строительство с конструкциями заводского изготовления
Нет
Объем надземной части
298 м3
Основной материал фасадов
Фальцевая кровля кликфальц
Отопление
Индивидуальное
Площадь дома
71 м2
Площадь застройки
99 м2
Подвальное помещение
Нет
Показатель компактности здания
-
Приборы учета тепловой энергии
Нет
Пристроенный гараж/крытая автостоянка
Нет
Противопожарная система
Нет
Санузлы
1
Совмещенная кухня-гостиная
Да
Спальни
3
Терраса
Да
Тип фундамента
Свайно-винтовой
Тип кровли
Толщина внешних стен
174 мм
Толщина внутренних перегородок
145 мм
Улучшенные шумовые характеристики
Нет
Вентиляция
Система кондиционирования
Веранда
Нет
Водоотведение
Не предусмотрено
Водоснабжение
Индивидуальное
Высота дома
3.82 м
Высота потолков
3.82 м

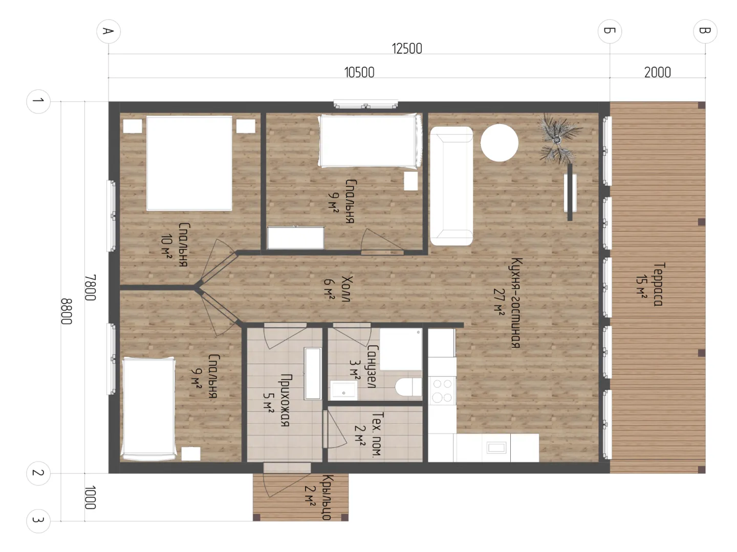
Планировка

Фасад дома

Александр

Закажите выезд инженера

Александр

Выездной инженер
Закажите выезд инженера для точной диагностики и профессиональной консультации по инженерным системам. Специалист приедет в удобное время, проведёт осмотр, рассчитает стоимость работ и подберёт оптимальные решения для вашего дома.


    Похожие проекты

    Ипотека и
    рассрочка
    Одноэтажный дом Дубки 2
    Стоимость от:
    8 565 480
    Проект от: 51 300
    Этажей 1
    Санузлы 1
    Спальни 3
    Смотреть
    Ипотека и
    рассрочка
    Комфортабельный двухэтажный особняк в стиле хайтек S3-312 (Zx127)
    Стоимость от:
    1 457 280
    Проект от: 248 400
    Этажей 2
    Санузлы 3
    Спальни 4
    Смотреть
    Ипотека и
    рассрочка
    Одноэтажный дом Fixplans-0845i
    Стоимость от:
    11 191 180
    Проект от: 67 050
    Этажей 1
    Санузлы 2
    Спальни 3
    Смотреть
    Ипотека и
    рассрочка
    Индивидуальный жилой дом площадью 99м2
    Стоимость от:
    7 880 180
    Проект от: 44 550
    Этажей 1
    Санузлы 2
    Спальни 4
    Смотреть
    Ипотека и
    рассрочка
    Кошачий поселок 1- 80
    Стоимость от:
    5 939 780
    Проект от: 35 550
    Этажей 1
    Санузлы 1
    Спальни 2
    Смотреть
    Ипотека и
    рассрочка
    Проект дома с большой террасой и навесом для автомобиля S-158
    Стоимость от:
    19 705 680
    Проект от: 129 150
    Этажей 2
    Санузлы 3
    Спальни 3
    Смотреть

    Как узнать стоимость дома

    back
    Оставляете заявку
    Вы заполняете форму на сайте или звоните нам. Менеджер Лайвкрафт связывается с вами для уточнения деталей: тип дома, площадь, материалы, участок строительства.
    back
    Консультация и подбор решения
    Наш специалист помогает выбрать оптимальный тип дома и конструкцию с учётом бюджета, сроков и целей — будь то дом для постоянного проживания или дача.
    back
    Расчёт предварительной стоимости
    Инженер делает первичный расчёт стоимости строительства по вашим параметрам: фундамент, коробка, кровля, отделка. Вы получаете смету с разбивкой по этапам.
    back
    Корректировка и утверждение сметы
    При необходимости вносим изменения — например, замену материалов или сокращение этапов. После согласования формируется окончательная фиксированная смета.
    back
    Заключение договора и старт работ
    После утверждения сметы заключаем официальный договор с гарантией. Вы получаете прозрачный график и точную стоимость — без скрытых расходов.

    Заказать конусльтацию по:Дом в стиле «Шале» ЭД-99

    Фото 1 Дом в стиле «Шале» ЭД-99


      Наши
      контакты

      Дмитров
      Опорный проезд 28Б
      (индустриальный парк Ниагара)
      9:00 до 18:00

      Корзина