4.9
Рейтинг на основании 120 отзывов
Дмитров
Опорный проезд 28Б
(индустриальный парк Ниагара)
Бренд "Дмитров-Дело" c 2008 года на рынке строительства в Дмитрове
Звоните 9:00 до 18:00 8 (915) 055-33-61
Бренд "Дмитров-Дело" c 2008 года на рынке строительства в Дмитрове

Двухэтажное шале с балконом 08-24КД.

Стоимость проекта от:
66 600 ₽
БЕСПЛАТНО! ПРИ ЗАКАЗЕ СТРОИТЕЛЬСТВА
Стоимость строительства от:
9 759 120 ₽
Артикул ART-12076
Дата 25.12.2025
Архитектурный стиль Шале
Количество надземных этажей 2
Круглогодичное проживание Да
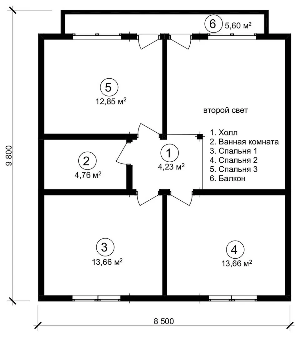
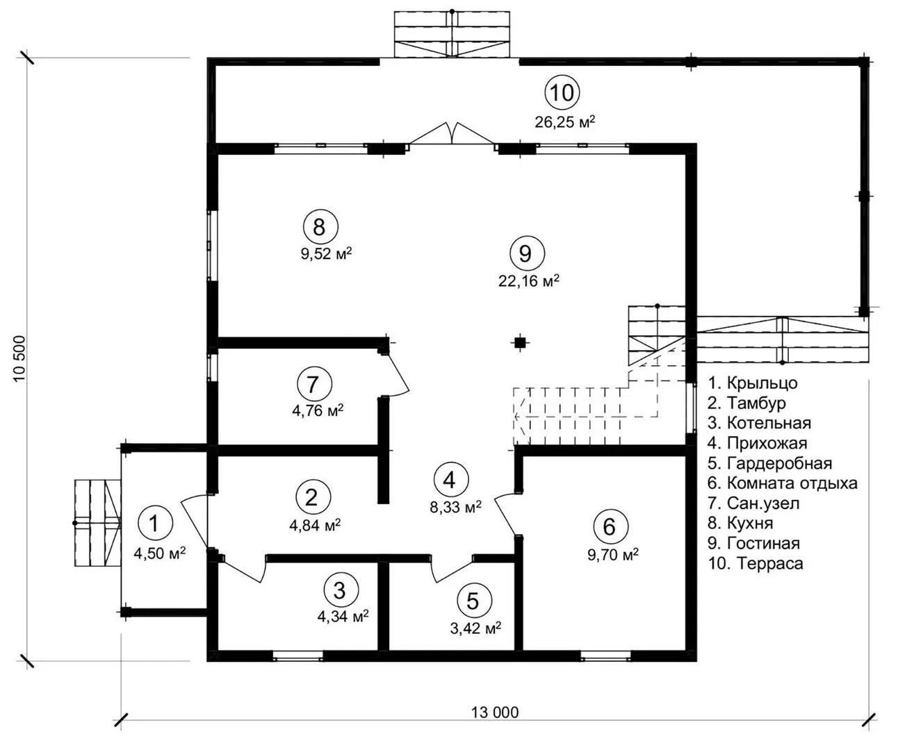
Площадь дома 148 м2
Санузлы 2
Спальни 4

Описание

Добро пожаловать в настоящий уголок зимней сказки, где каждая деталь пропитана духом шале, а уют встречает вас с первой же минуты. Этот двухэтажный шале 08‑24КД обрамлен просторным балконом, с которого открывается завораживающий вид на живописные горы и хвойные хвосты. Идеально подходящий для круглогодичного проживания, дом объединяет современную теплоизоляцию из SIP‑панелей с теплотой и теплом классического альпийского стиля. Двускатная крыша подчёркивает его горный характер, а тщательно продуманная планировка делает каждую комнату настоящим оазисом уюта. При входе вы сразу ощущаете гармонию пространства: светлые стены, обилие естественного света и просторы, где музыка ветра и шепот сосен становятся частью домашнего уединения. Балкон и терраса – ваши личные парты для завтраков под рассветом или вечерних коктейлей под звёздами, где шум зимнего леса смягчает будни. Без лишних деталей, как гараж или чердачное помещение, дом сохраняет чистую, но одновременно функциональную эстетику, благодаря которой вы сможете сосредоточиться на настоящих ценностях: семье и спокойствии. Этот шале – не просто жильё, а приглашение к гармоничному образу жизни. Здесь каждый штрих продуман до мелочей: от материалов, которые защитят тепло, до открытых окон, раскрывающих живописный мир за стенами. Если вы ищете сочетание современного комфорта с атмосферой неизменной, а главное – с непередаваемым ощущением дома, то именно этот дом станет вашими идеальными окнами в альпийскую мечту.

Характеристики дома

Архитектурный стиль
Автоматизированное регулирование параметров теплоносителя
Да
Балконы/лоджии
1
Чердачное помещение
Нет
Датчики протечки воды
Нет
Эксплуатируемая или зеленая кровля
Нет
Электроснабжение
Центральное
Газоснабжение
Не предусмотрено
Изоляция воздушного шума
Нет
Камин
Нет
Класс энергоэффективности
-
Класс энергосбережения
-
Количество надземных этажей
2
Круглогодичное проживание
Да
Материал кровли
Металлочерепица
Материал перекрытий
Деревянные
Материал внешних стен
Материал внутренних перегородок
Деревянные
Модульное строительство с конструкциями заводского изготовления
Нет
Объем надземной части
760 м3
Основной материал фасадов
Сайдинг
Отопление
Индивидуальное
Площадь дома
148 м2
Площадь застройки
136 м2
Подвальное помещение
Нет
Показатель компактности здания
-
Приборы учета тепловой энергии
Нет
Пристроенный гараж/крытая автостоянка
Нет
Противопожарная система
Нет
Санузлы
2
Совмещенная кухня-гостиная
Да
Спальни
4
Терраса
Да
Тип фундамента
Свайный
Тип кровли
Толщина внешних стен
174 мм
Толщина внутренних перегородок
124 мм
Улучшенные шумовые характеристики
Нет
Вентиляция
Естественная
Веранда
Нет
Водоотведение
Локальные очистные сооружения
Водоснабжение
Центральное
Высота дома
8.4 м
Высота потолков
2.8 м

Планировка

Фасад дома

Александр

Закажите выезд инженера

Александр

Выездной инженер
Закажите выезд инженера для точной диагностики и профессиональной консультации по инженерным системам. Специалист приедет в удобное время, проведёт осмотр, рассчитает стоимость работ и подберёт оптимальные решения для вашего дома.


    Похожие проекты

    Ипотека и
    рассрочка
    Мун
    Стоимость от:
    10 522 380
    Проект от: 67 050
    Этажей 1
    Санузлы 2
    Спальни 3
    Смотреть
    Ипотека и
    рассрочка
    Мансардный дом на Дружной
    Стоимость от:
    9 079 200
    Проект от: 58 500
    Этажей 2
    Санузлы 2
    Спальни 3
    Смотреть
    Ипотека и
    рассрочка
    KDR-201
    Стоимость от:
    7 403 660
    Проект от: 41 850
    Этажей 1
    Санузлы 1
    Спальни 2
    Смотреть
    Ипотека и
    рассрочка
    S.Dom-98-2
    Стоимость от:
    5 116 560
    Проект от: 35 550
    Этажей 2
    Санузлы 1
    Спальни 4
    Смотреть
    Ипотека и
    рассрочка
    Двухэтажный дом 4С-120
    Стоимость от:
    8 683 200
    Проект от: 54 000
    Этажей 2
    Санузлы 2
    Спальни 4
    Смотреть
    Ипотека и
    рассрочка
    Одноэтажный дом ОПТИМУМ 115-1
    Стоимость от:
    7 729 920
    Проект от: 49 950
    Этажей 1
    Санузлы 1
    Спальни 3
    Смотреть

    Как узнать стоимость дома

    back
    Оставляете заявку
    Вы заполняете форму на сайте или звоните нам. Менеджер Лайвкрафт связывается с вами для уточнения деталей: тип дома, площадь, материалы, участок строительства.
    back
    Консультация и подбор решения
    Наш специалист помогает выбрать оптимальный тип дома и конструкцию с учётом бюджета, сроков и целей — будь то дом для постоянного проживания или дача.
    back
    Расчёт предварительной стоимости
    Инженер делает первичный расчёт стоимости строительства по вашим параметрам: фундамент, коробка, кровля, отделка. Вы получаете смету с разбивкой по этапам.
    back
    Корректировка и утверждение сметы
    При необходимости вносим изменения — например, замену материалов или сокращение этапов. После согласования формируется окончательная фиксированная смета.
    back
    Заключение договора и старт работ
    После утверждения сметы заключаем официальный договор с гарантией. Вы получаете прозрачный график и точную стоимость — без скрытых расходов.

    Заказать конусльтацию по:Двухэтажное шале с балконом 08-24КД.

    Фото 1 Двухэтажное шале с балконом 08-24КД.


      Наши
      контакты

      Дмитров
      Опорный проезд 28Б
      (индустриальный парк Ниагара)
      9:00 до 18:00

      Корзина