4.9
Рейтинг на основании 120 отзывов
Дмитров
Опорный проезд 28Б
(индустриальный парк Ниагара)
Бренд "Дмитров-Дело" c 2008 года на рынке строительства в Дмитрове
Звоните 9:00 до 18:00 8 (915) 055-33-61
Бренд "Дмитров-Дело" c 2008 года на рынке строительства в Дмитрове

Двухэтажное шале

Стоимость проекта от:
94 950 ₽
БЕСПЛАТНО! ПРИ ЗАКАЗЕ СТРОИТЕЛЬСТВА
Стоимость строительства от:
13 662 240 ₽
Артикул ART-3407
Дата 26.12.2025
Архитектурный стиль Русский
Количество надземных этажей 2
Круглогодичное проживание Да
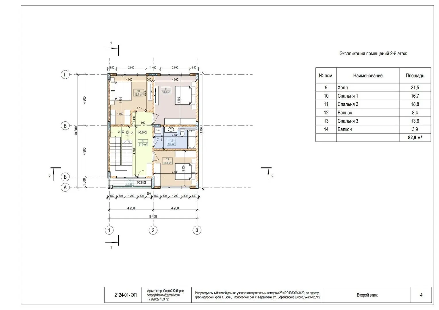
Площадь дома 211 м2
Санузлы 2
Спальни 4

Описание

Сердце этого уютного шале – традиционный русский стиль, в котором каждая деталь пронизана теплом и душевной простотой. Двухэтажный дом построен из прочных керамзитобетонных блоков, придавая ему крепость и тепло, а двускатная крыша нежно перекрывает просторные комнаты, создавая ощущение защищённости и домашнего уюта. В любой сезон – от первых морозов до летних закатов, ваш дом будет ваш надёжный убежище, где каждый уголок наполнен светом и теплом. Входя в дом, вы сразу ощущаете приглашение: широкая веранда, идеальная для ранних утренних кофейных ритуалов и вечерних вечеров на свежем воздухе. Одна из комфортабельных лоджий открывает панораму вокруг, словно приглашая вас в диалог с природой. Пристроенный гараж обеспечивает безопасное хранение автомобиля и легкий доступ к дому даже в самые суровые зимние дни. Просторные балконы и открытые внутренние помещения создают атмосферу свободы и гармонии, а архитектурные детали, пронизанные российским характером, делают этот дом не просто жильем, а местом, где каждый день начинается и заканчивается с удовольствием и спокойствием.

Характеристики дома

Архитектурный стиль
Автоматизированное регулирование параметров теплоносителя
-
Балконы/лоджии
1
Чердачное помещение
Нет
Датчики протечки воды
-
Эксплуатируемая или зеленая кровля
-
Электроснабжение
Центральное
Газоснабжение
Индивидуальное
Изоляция воздушного шума
-
Камин
Нет
Класс энергоэффективности
-
Класс энергосбережения
-
Количество надземных этажей
2
Круглогодичное проживание
Да
Материал кровли
Битумная черепица
Материал перекрытий
Монолитные железобетонные
Материал внешних стен
Материал внутренних перегородок
Блочные
Модульное строительство с конструкциями заводского изготовления
Нет
Объем надземной части
-
Основной материал фасадов
Штукатурка
Отопление
Не предусмотрено
Площадь дома
211 м2
Площадь застройки
187 м2
Подвальное помещение
Нет
Показатель компактности здания
-
Приборы учета тепловой энергии
-
Пристроенный гараж/крытая автостоянка
Да
Противопожарная система
Нет
Санузлы
2
Совмещенная кухня-гостиная
Да
Спальни
4
Терраса
Нет
Тип фундамента
Свайный
Тип кровли
Толщина внешних стен
200 мм
Толщина внутренних перегородок
200 мм
Улучшенные шумовые характеристики
-
Вентиляция
Естественная
Веранда
Да
Водоотведение
Локальные очистные сооружения
Водоснабжение
Центральное
Высота дома
8.4 м
Высота потолков
3.1 м

Планировка

Фасад дома

Александр

Закажите выезд инженера

Александр

Выездной инженер
Закажите выезд инженера для точной диагностики и профессиональной консультации по инженерным системам. Специалист приедет в удобное время, проведёт осмотр, рассчитает стоимость работ и подберёт оптимальные решения для вашего дома.


    Похожие проекты

    Ипотека и
    рассрочка
    Загородный дом СКИВ-5
    Стоимость от:
    10 056 200
    Проект от: 58 500
    Этажей 1
    Санузлы 2
    Спальни 3
    Смотреть
    Ипотека и
    рассрочка
    Проект современного двухэтажного коттеджа с четырьмя спальнями S-193
    Стоимость от:
    15 544 320
    Проект от: 93 600
    Этажей 2
    Санузлы 3
    Спальни 4
    Смотреть
    Ипотека и
    рассрочка
    Одноэтажный дом FIXPLANS — 1448
    Стоимость от:
    11 299 200
    Проект от: 72 000
    Этажей 1
    Санузлы 3
    Спальни 3
    Смотреть
    Ипотека и
    рассрочка
    Мазай
    Стоимость от:
    2 955 810
    Проект от: 23 850
    Этажей 1
    Санузлы 1
    Спальни 2
    Смотреть
    Ипотека и
    рассрочка
    Магдебург-133
    Стоимость от:
    10 767 360
    Проект от: 64 800
    Этажей 2
    Санузлы 3
    Спальни 3
    Смотреть
    Ипотека и
    рассрочка
    Барнхаус-10
    Стоимость от:
    4 942 080
    Проект от: 32 400
    Этажей 2
    Санузлы 2
    Спальни 2
    Смотреть

    Как узнать стоимость дома

    back
    Оставляете заявку
    Вы заполняете форму на сайте или звоните нам. Менеджер Лайвкрафт связывается с вами для уточнения деталей: тип дома, площадь, материалы, участок строительства.
    back
    Консультация и подбор решения
    Наш специалист помогает выбрать оптимальный тип дома и конструкцию с учётом бюджета, сроков и целей — будь то дом для постоянного проживания или дача.
    back
    Расчёт предварительной стоимости
    Инженер делает первичный расчёт стоимости строительства по вашим параметрам: фундамент, коробка, кровля, отделка. Вы получаете смету с разбивкой по этапам.
    back
    Корректировка и утверждение сметы
    При необходимости вносим изменения — например, замену материалов или сокращение этапов. После согласования формируется окончательная фиксированная смета.
    back
    Заключение договора и старт работ
    После утверждения сметы заключаем официальный договор с гарантией. Вы получаете прозрачный график и точную стоимость — без скрытых расходов.

    Заказать конусльтацию по:Двухэтажное шале

    Фото 1 Двухэтажное шале


      Наши
      контакты

      Дмитров
      Опорный проезд 28Б
      (индустриальный парк Ниагара)
      9:00 до 18:00

      Корзина