4.9
Рейтинг на основании 120 отзывов
Дмитров
Опорный проезд 28Б
(индустриальный парк Ниагара)
Бренд "Дмитров-Дело" c 2008 года на рынке строительства в Дмитрове
Звоните 9:00 до 18:00 8 (915) 055-33-61
Бренд "Дмитров-Дело" c 2008 года на рынке строительства в Дмитрове

Двухэтажный А-фрейм СМ-14.1

Стоимость проекта от:
52 650 ₽
БЕСПЛАТНО! ПРИ ЗАКАЗЕ СТРОИТЕЛЬСТВА
Стоимость строительства от:
8 764 080 ₽
Артикул ART-15080
Дата 25.12.2025
Архитектурный стиль Классический
Количество надземных этажей 2
Круглогодичное проживание Да
Площадь дома 117 м2
Санузлы 2
Спальни 2

Описание

Прекрасный двухэтажный А‑фрейм «СМ‑14.1» – это воплощение комфорта и изящности в классическом облике. Его гармоничные линии, строгие пропорции и уютная планировка создают атмосферу, где каждый уголок ощущается как часть большой семьи. От открытого спального двора до светлой гостиной с высокими окнами – всё продумано так, чтобы ваш дом был одновременно элегантным и практичным. Дом рассчитан на круглогодичную жизнь: прочная каркасно‑панельная конструкция, надежный двускатный металл‑кровельный материал и утеплённые стены гарантируют тепло зимой и прохладу летом, сохраняя энергию и уменьшив расходы на отопление и кондиционирование. Удобный двухэтажный разборка позволяет распределить пространство так, чтобы приватность и общительность находились в гармонии. В «СМ‑14.1» вы почувствуете себя хозяином без лишних забот. Просторные комнаты, удобный доступ к кухне и спальням, а также продуманные бытовые площади делают этот дом идеальными для семейного уюта, отдыха после трудного дня или же для тех, кто просто ценит спокойствие и эстетику. Приглашаем вас в мир, где каждая деталь говорит о тепле, заботе и уверенности в будущем.

Характеристики дома

Архитектурный стиль
Автоматизированное регулирование параметров теплоносителя
Нет
Балконы/лоджии
Отсутствуют
Чердачное помещение
Нет
Датчики протечки воды
Нет
Эксплуатируемая или зеленая кровля
Нет
Электроснабжение
Не предусмотрено
Газоснабжение
Не предусмотрено
Изоляция воздушного шума
Нет
Камин
Нет
Класс энергоэффективности
-
Класс энергосбережения
-
Количество надземных этажей
2
Круглогодичное проживание
Да
Материал кровли
Металлочерепица
Материал перекрытий
Деревянные
Материал внешних стен
Материал внутренних перегородок
Гипсокартонные
Модульное строительство с конструкциями заводского изготовления
Нет
Объем надземной части
491 м3
Основной материал фасадов
Сайдинг
Отопление
Не предусмотрено
Площадь дома
117 м2
Площадь застройки
128 м2
Подвальное помещение
Нет
Показатель компактности здания
-
Приборы учета тепловой энергии
Нет
Пристроенный гараж/крытая автостоянка
Нет
Противопожарная система
Нет
Санузлы
2
Совмещенная кухня-гостиная
Нет
Спальни
2
Терраса
Нет
Тип фундамента
Ленточный
Тип кровли
Толщина внешних стен
165 мм
Толщина внутренних перегородок
100 мм
Улучшенные шумовые характеристики
Нет
Вентиляция
Естественная
Веранда
Нет
Водоотведение
Не предусмотрено
Водоснабжение
Не предусмотрено
Высота дома
7.65 м
Высота потолков
2.7 м

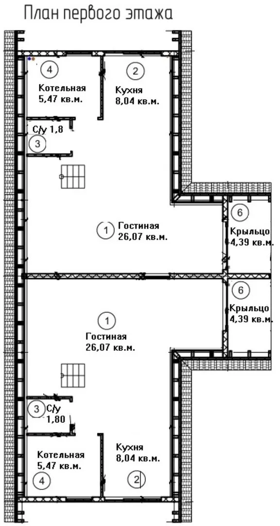
Планировка

Фасад дома

Александр

Закажите выезд инженера

Александр

Выездной инженер
Закажите выезд инженера для точной диагностики и профессиональной консультации по инженерным системам. Специалист приедет в удобное время, проведёт осмотр, рассчитает стоимость работ и подберёт оптимальные решения для вашего дома.


    Похожие проекты

    Ипотека и
    рассрочка
    Форелька проект 5
    Стоимость от:
    5 027 400
    Проект от: 37 800
    Этажей 2
    Санузлы 2
    Спальни 2
    Смотреть
    Ипотека и
    рассрочка
    Y-96
    Стоимость от:
    6 765 000
    Проект от: 40 500
    Этажей 1
    Санузлы 1
    Спальни 3
    Смотреть
    Ипотека и
    рассрочка
    ЙОМЕН
    Стоимость от:
    11 041 140
    Проект от: 66 150
    Этажей 1
    Санузлы 2
    Спальни 3
    Смотреть
    Ипотека и
    рассрочка
    Кудиново
    Стоимость от:
    10 281 360
    Проект от: 71 550
    Этажей 2
    Санузлы 2
    Спальни 5
    Смотреть
    Ипотека и
    рассрочка
    MR
    Стоимость от:
    11 266 200
    Проект от: 67 500
    Этажей 1
    Санузлы 2
    Спальни 3
    Смотреть
    Ипотека и
    рассрочка
    Хайтек К118
    Стоимость от:
    4 987 260
    Проект от: 38 250
    Этажей 2
    Санузлы 2
    Спальни 3
    Смотреть

    Как узнать стоимость дома

    back
    Оставляете заявку
    Вы заполняете форму на сайте или звоните нам. Менеджер Лайвкрафт связывается с вами для уточнения деталей: тип дома, площадь, материалы, участок строительства.
    back
    Консультация и подбор решения
    Наш специалист помогает выбрать оптимальный тип дома и конструкцию с учётом бюджета, сроков и целей — будь то дом для постоянного проживания или дача.
    back
    Расчёт предварительной стоимости
    Инженер делает первичный расчёт стоимости строительства по вашим параметрам: фундамент, коробка, кровля, отделка. Вы получаете смету с разбивкой по этапам.
    back
    Корректировка и утверждение сметы
    При необходимости вносим изменения — например, замену материалов или сокращение этапов. После согласования формируется окончательная фиксированная смета.
    back
    Заключение договора и старт работ
    После утверждения сметы заключаем официальный договор с гарантией. Вы получаете прозрачный график и точную стоимость — без скрытых расходов.

    Заказать конусльтацию по:Двухэтажный А-фрейм СМ-14.1

    Фото 1 Двухэтажный А-фрейм СМ-14.1


      Наши
      контакты

      Дмитров
      Опорный проезд 28Б
      (индустриальный парк Ниагара)
      9:00 до 18:00

      Корзина