4.9
Рейтинг на основании 120 отзывов
Дмитров
Опорный проезд 28Б
(индустриальный парк Ниагара)
Бренд "Дмитров-Дело" c 2008 года на рынке строительства в Дмитрове
Звоните 9:00 до 18:00 8 (915) 055-33-61
Бренд "Дмитров-Дело" c 2008 года на рынке строительства в Дмитрове

Двухэтажный дом 222 (238) м2 SHOLOH

Стоимость проекта от:
107 100 ₽
БЕСПЛАТНО! ПРИ ЗАКАЗЕ СТРОИТЕЛЬСТВА
Стоимость строительства от:
17 497 920 ₽
Артикул ART-5550
Дата 26.12.2025
Архитектурный стиль Барнхаус
Количество надземных этажей 2
Круглогодичное проживание Да
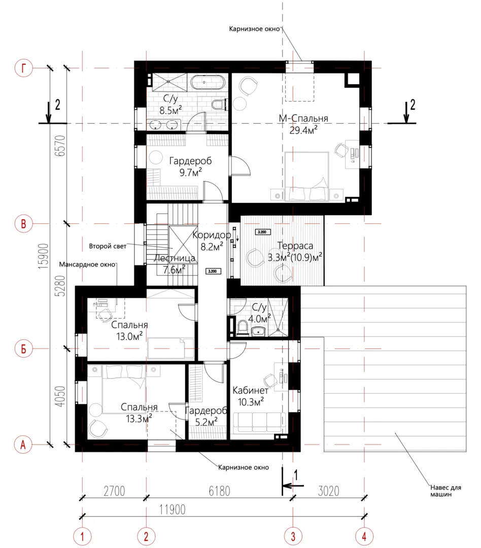
Площадь дома 238 м2
Санузлы 4
Спальни 6

Описание

**Откройте для себя уют и элегантность в доме, где каждая деталь пронизана характером.** Двухэтажный дом площадью 238 м² (внутренний объём 222 м²) в стиле Барнхаус сочетает в себе строгие геометрические линии и тепло традиционных материалов. Здесь вы ощутите неповторимое чувство уюта: кирпичные и керамические блоки внешних стен дарят надежность, а классическая двускатная крыша подчёркивает аутентичную атмосферу усадьбы. В квартире предусмотрено всё необходимое для круглогодичного проживания — от просторных светлых комнат до уютного балкона, который станет вашим личным оазисом в теплом солнечном свету. **Удобство и функциональность на каждом шагу.** Не хватает гаража? В доме предусмотрено чердачное помещение, которое можно легко превратить в дополнительное жилое пространство, мастерскую или даже уютное кафе. Внутренний балкон и лоджия предлагают романтичные места для вдохновения — наблюдайте за природой, наслаждайтесь ароматом свежего воздуха, пока к вам приезжают гости. Внутренний дизайн с открытыми пространствами создан для тех, кто ценит гармонию между функциональностью и эстетикой. **Покупка с гарантией качества и тепла.** Этот дом — идеальный выбор для семей, которые ищут гармонию и комфорт. Никаких загромжающих деталей, только честная архитектура и уютная атмосфера. Здесь вы обязательно почувствуете себя дома, а каждая ваша мечта станет реальностью. Выбирая этот Барнхаус, вы дарите себе и своей семье пространство, где каждый день будет наполнен светом, теплом и вдохновением.

Характеристики дома

Архитектурный стиль
Автоматизированное регулирование параметров теплоносителя
-
Балконы/лоджии
1
Чердачное помещение
Да
Датчики протечки воды
-
Эксплуатируемая или зеленая кровля
-
Электроснабжение
Центральное
Газоснабжение
2 варианта
Изоляция воздушного шума
-
Камин
Нет
Класс энергоэффективности
-
Класс энергосбережения
-
Количество надземных этажей
2
Круглогодичное проживание
Да
Материал кровли
Фальцевая кровля Кликфальц
Материал перекрытий
Монолитные железобетонные
Материал внешних стен
Материал внутренних перегородок
Блочные
Модульное строительство с конструкциями заводского изготовления
Нет
Объем надземной части
1150 м3
Основной материал фасадов
Штукатурка
Отопление
2 варианта
Площадь дома
238 м2
Площадь застройки
157 м2
Подвальное помещение
Нет
Показатель компактности здания
-
Приборы учета тепловой энергии
-
Пристроенный гараж/крытая автостоянка
Нет
Противопожарная система
Нет
Санузлы
4
Совмещенная кухня-гостиная
Да
Спальни
6
Терраса
Нет
Тип фундамента
Ленточный
Тип кровли
Толщина внешних стен
380 мм
Толщина внутренних перегородок
100 мм
Улучшенные шумовые характеристики
-
Вентиляция
Естественная
Веранда
Нет
Водоотведение
2 варианта
Водоснабжение
2 варианта
Высота дома
9 м
Высота потолков
2.8 м

Планировка

Фасад дома

Александр

Закажите выезд инженера

Александр

Выездной инженер
Закажите выезд инженера для точной диагностики и профессиональной консультации по инженерным системам. Специалист приедет в удобное время, проведёт осмотр, рассчитает стоимость работ и подберёт оптимальные решения для вашего дома.


    Похожие проекты

    Ипотека и
    рассрочка
    Двухэтажный дом с плоской кровлей M
    Стоимость от:
    6 726 720
    Проект от: 44 100
    Этажей 2
    Санузлы 2
    Спальни 4
    Смотреть
    Ипотека и
    рассрочка
    NorFin 140
    Стоимость от:
    9 715 640
    Проект от: 63 900
    Этажей 1
    Санузлы 2
    Спальни 3
    Смотреть
    Ипотека и
    рассрочка
    К-7
    Стоимость от:
    6 014 800
    Проект от: 36 000
    Этажей 1
    Санузлы 2
    Спальни 3
    Смотреть
    Ипотека и
    рассрочка
    Мансардный дом 150м2
    Стоимость от:
    9 960 240
    Проект от: 67 950
    Этажей 2
    Санузлы 2
    Спальни 3
    Смотреть
    Ипотека и
    рассрочка
    Дом ГД-846
    Стоимость от:
    16 989 300
    Проект от: 116 100
    Этажей 2
    Санузлы 2
    Спальни 5
    Смотреть
    Ипотека и
    рассрочка
    Дом из бруса с гаражом
    Стоимость от:
    11 299 200
    Проект от: 72 000
    Этажей 1
    Санузлы 1
    Спальни 3
    Смотреть

    Как узнать стоимость дома

    back
    Оставляете заявку
    Вы заполняете форму на сайте или звоните нам. Менеджер Лайвкрафт связывается с вами для уточнения деталей: тип дома, площадь, материалы, участок строительства.
    back
    Консультация и подбор решения
    Наш специалист помогает выбрать оптимальный тип дома и конструкцию с учётом бюджета, сроков и целей — будь то дом для постоянного проживания или дача.
    back
    Расчёт предварительной стоимости
    Инженер делает первичный расчёт стоимости строительства по вашим параметрам: фундамент, коробка, кровля, отделка. Вы получаете смету с разбивкой по этапам.
    back
    Корректировка и утверждение сметы
    При необходимости вносим изменения — например, замену материалов или сокращение этапов. После согласования формируется окончательная фиксированная смета.
    back
    Заключение договора и старт работ
    После утверждения сметы заключаем официальный договор с гарантией. Вы получаете прозрачный график и точную стоимость — без скрытых расходов.

    Заказать конусльтацию по:Двухэтажный дом 222 (238) м2 SHOLOH

    Фото 1 Двухэтажный дом 222 (238) м2 SHOLOH


      Наши
      контакты

      Дмитров
      Опорный проезд 28Б
      (индустриальный парк Ниагара)
      9:00 до 18:00

      Корзина