4.9
Рейтинг на основании 120 отзывов
Дмитров
Опорный проезд 28Б
(индустриальный парк Ниагара)
Бренд "Дмитров-Дело" c 2008 года на рынке строительства в Дмитрове
Звоните 9:00 до 18:00 8 (915) 055-33-61
Бренд "Дмитров-Дело" c 2008 года на рынке строительства в Дмитрове

Владимир

Стоимость проекта от:
57 150 ₽
БЕСПЛАТНО! ПРИ ЗАКАЗЕ СТРОИТЕЛЬСТВА
Стоимость строительства от:
8 876 880 ₽
Артикул ART-18445
Дата 26.12.2025
Архитектурный стиль Европейский
Количество надземных этажей 2
Круглогодичное проживание Да
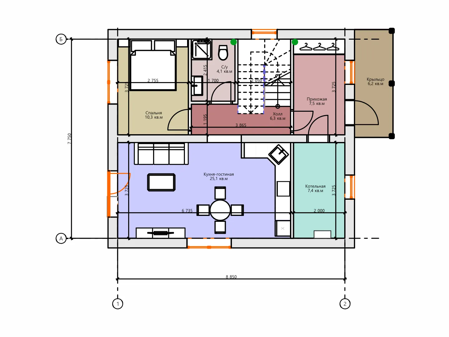
Площадь дома 127 м2
Санузлы 2
Спальни 3

Описание

Величественный дом в европейском стиле, расположенный на двух уровне­х, обещает комфортные условия в любой сезон. Его архитектурный язык подчёркивает элегантность и простоту: строгие линии, крупные стеклянные окна, а также аккуратный двускатный крыша создают ощущение просторного и светлого пространства. Окружённый природой, дом не требует дополнительных наружных сооружений – балконы, веранда и чердак здесь отсутствуют, но это делает интерьер более целостным и избавляет от лишних забот об обслуживании. Внутри вы сразу заметите гармоничное сочетание функциональности и эстетики. Гостинная площадь открыта, так что любой член семьи сможет наслаждаться уютными вечерами в кругу друзей и близких. Приготовление пищи обрадует своей простотой – полностью оборудованная кухня с современными плитами и вытяжкой, а просторные спальни обеспечат полноценный сон и отдых. Кровельная система, состоящая из высококачественного двускатного покрытия, гарантирует надёжную защиту от атмосферных осадков, а теплоизоляция из газобетонных блоков обеспечивает энергоэффективность и бережное отношение к бюджету. Весь дом выполнен из газобетонных блоков, что придаёт ему прочность и устойчивость к нагрузкам времени и климату. При необходимости дальнейшего развития, можно легко расширять пространство благодаря открытой планировке – будь то дополнительная комната, небольшая мастерская или уютная зона для чтения. Этот дом – идеальное решение для тех, кто ценит сочетание европейской эстетики, практичности и надёжности в своём доме. Мы приглашаем вас открыть для себя новый образ жизни, где каждый день начинается с улыбки и завершается ощущением уюта.

Характеристики дома

Архитектурный стиль
Автоматизированное регулирование параметров теплоносителя
Да
Балконы/лоджии
Отсутствуют
Чердачное помещение
Нет
Датчики протечки воды
Нет
Эксплуатируемая или зеленая кровля
Нет
Электроснабжение
2 варианта
Газоснабжение
2 варианта
Изоляция воздушного шума
Да
Камин
Нет
Класс энергоэффективности
A
Класс энергосбережения
A
Количество надземных этажей
2
Круглогодичное проживание
Да
Материал кровли
Металлочерепица
Материал перекрытий
Сборные железобетонные многопустотные плиты
Материал внешних стен
Материал внутренних перегородок
Пенобетонные
Модульное строительство с конструкциями заводского изготовления
Нет
Объем надземной части
476 м3
Основной материал фасадов
Штукатурка
Отопление
2 варианта
Площадь дома
127 м2
Площадь застройки
87 м2
Подвальное помещение
Нет
Показатель компактности здания
0.9
Приборы учета тепловой энергии
Да
Пристроенный гараж/крытая автостоянка
Нет
Противопожарная система
Нет
Санузлы
2
Совмещенная кухня-гостиная
Да
Спальни
3
Терраса
Нет
Тип фундамента
Плитный
Тип кровли
Толщина внешних стен
375 мм
Толщина внутренних перегородок
115 мм
Улучшенные шумовые характеристики
Да
Вентиляция
Естественная
Веранда
Нет
Водоотведение
2 варианта
Водоснабжение
2 варианта
Высота дома
7.95 м
Высота потолков
2.85 м

Планировка

Фасад дома

Александр

Закажите выезд инженера

Александр

Выездной инженер
Закажите выезд инженера для точной диагностики и профессиональной консультации по инженерным системам. Специалист приедет в удобное время, проведёт осмотр, рассчитает стоимость работ и подберёт оптимальные решения для вашего дома.


    Похожие проекты

    Ипотека и
    рассрочка
    Дом с Верандой
    Стоимость от:
    4 743 200
    Проект от: 34 650
    Этажей 1
    Санузлы 1
    Спальни 2
    Смотреть
    Ипотека и
    рассрочка
    Одноэтажный загородный дом «Барнхаус-90»
    Стоимость от:
    3 641 715
    Проект от: 28 350
    Этажей 1
    Санузлы 1
    Спальни 3
    Смотреть
    Ипотека и
    рассрочка
    Проект А021
    Стоимость от:
    6 308 880
    Проект от: 39 150
    Этажей 2
    Санузлы 2
    Спальни 3
    Смотреть
    Ипотека и
    рассрочка
    Дом-баня с тамбуром и мансардным этажом
    Стоимость от:
    5 393 280
    Проект от: 32 400
    Этажей 2
    Санузлы 1
    Спальни 2
    Смотреть
    Ипотека и
    рассрочка
    Авторский проект «Сидли»
    Стоимость от:
    6 285 180
    Проект от: 40 050
    Этажей 1
    Санузлы 1
    Спальни 3
    Смотреть
    Ипотека и
    рассрочка
    Одноэтажный дом РН 103,4 с террасой
    Стоимость от:
    8 865 560
    Проект от: 53 100
    Этажей 1
    Санузлы 1
    Спальни 3
    Смотреть

    Как узнать стоимость дома

    back
    Оставляете заявку
    Вы заполняете форму на сайте или звоните нам. Менеджер Лайвкрафт связывается с вами для уточнения деталей: тип дома, площадь, материалы, участок строительства.
    back
    Консультация и подбор решения
    Наш специалист помогает выбрать оптимальный тип дома и конструкцию с учётом бюджета, сроков и целей — будь то дом для постоянного проживания или дача.
    back
    Расчёт предварительной стоимости
    Инженер делает первичный расчёт стоимости строительства по вашим параметрам: фундамент, коробка, кровля, отделка. Вы получаете смету с разбивкой по этапам.
    back
    Корректировка и утверждение сметы
    При необходимости вносим изменения — например, замену материалов или сокращение этапов. После согласования формируется окончательная фиксированная смета.
    back
    Заключение договора и старт работ
    После утверждения сметы заключаем официальный договор с гарантией. Вы получаете прозрачный график и точную стоимость — без скрытых расходов.

    Заказать конусльтацию по:Владимир

    Фото 1 Владимир


      Наши
      контакты

      Дмитров
      Опорный проезд 28Б
      (индустриальный парк Ниагара)
      9:00 до 18:00

      Корзина