4.9
Рейтинг на основании 120 отзывов
Дмитров
Опорный проезд 28Б
(индустриальный парк Ниагара)
Бренд "Дмитров-Дело" c 2008 года на рынке строительства в Дмитрове
Звоните 9:00 до 18:00 8 (915) 055-33-61
Бренд "Дмитров-Дело" c 2008 года на рынке строительства в Дмитрове

Двухэтажный дом Давинчи

Стоимость проекта от:
58 950 ₽
БЕСПЛАТНО! ПРИ ЗАКАЗЕ СТРОИТЕЛЬСТВА
Стоимость строительства от:
8 483 040 ₽
Артикул ART-18987
Дата 26.12.2025
Архитектурный стиль Скандинавский
Количество надземных этажей 2
Круглогодичное проживание Да
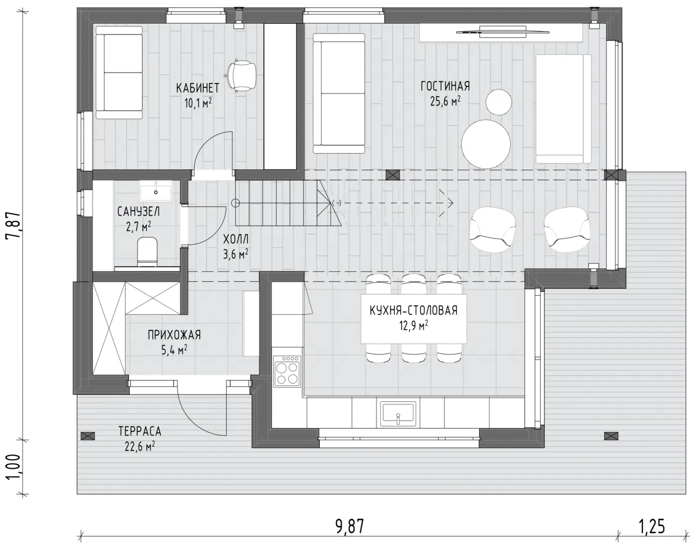
Площадь дома 131 м2
Санузлы 3
Спальни 4

Описание

Добро пожаловать в дом мечты, где современный комфорт сочетает в себе скандинавскую простоту и тепло северных ветров. Двухэтажный «Давинчи» – это не просто жильё, это пространство, созданное для круглогодичного проживания. Его архитектура выражена чистыми линиями и светлыми оттенками, в гармонии с природой вокруг. Каркасно‑панельные стены гарантируют энергоэффективность и лёгкость, а два сквозных вида с видом на просторную террасу создают ощущение бесконечного пространства. Внутри каждого этажа скрыты идеальные зоны для семейной жизни: открытый план кухонно‑обеденной зоны, где свет льётся естественно, создавая уютную атмосферу, и уютные спальные комнаты, где можно уединиться и отдохнуть от городской суеты. Скленный кромочный стиль подчеркивает простоту, а внимание к деталям делает каждый квадратный метр максимально функциональным. Вместо балконов и веранды – большая терраса, где можно провести время на свежем воздухе, наслаждаясь видами и ароматами родных лесов. «Давинчи» – это идеальное решение для тех, кто ценит современность, экологичность и уединённый комфорт. Здесь вы можете построить свою жизнь в гармонии с природой, сохраняя уют и тепло даже в самые холодные месяцы. Присоединяйтесь к сообществу, где каждый день начинается с вдохновения и заканчивается спокойствием.

Характеристики дома

Архитектурный стиль
Автоматизированное регулирование параметров теплоносителя
Нет
Балконы/лоджии
Отсутствуют
Чердачное помещение
Нет
Датчики протечки воды
Нет
Эксплуатируемая или зеленая кровля
Нет
Электроснабжение
2 варианта
Газоснабжение
Центральное
Изоляция воздушного шума
Нет
Камин
Нет
Класс энергоэффективности
-
Класс энергосбережения
-
Количество надземных этажей
2
Круглогодичное проживание
Да
Материал кровли
Битумная черепица
Материал перекрытий
Деревянные
Материал внешних стен
Материал внутренних перегородок
Деревянные
Модульное строительство с конструкциями заводского изготовления
Да
Объем надземной части
610 м3
Основной материал фасадов
Фасадная плитка
Отопление
2 варианта
Площадь дома
131 м2
Площадь застройки
98 м2
Подвальное помещение
Нет
Показатель компактности здания
-
Приборы учета тепловой энергии
Нет
Пристроенный гараж/крытая автостоянка
Нет
Противопожарная система
Да
Санузлы
3
Совмещенная кухня-гостиная
Да
Спальни
4
Терраса
Да
Тип фундамента
Свайный
Тип кровли
Толщина внешних стен
250 мм
Толщина внутренних перегородок
150 мм
Улучшенные шумовые характеристики
Нет
Вентиляция
Принудительная
Веранда
Нет
Водоотведение
2 варианта
Водоснабжение
2 варианта
Высота дома
7.7 м
Высота потолков
2.5 м

Планировка

Фасад дома

Александр

Закажите выезд инженера

Александр

Выездной инженер
Закажите выезд инженера для точной диагностики и профессиональной консультации по инженерным системам. Специалист приедет в удобное время, проведёт осмотр, рассчитает стоимость работ и подберёт оптимальные решения для вашего дома.


    Похожие проекты

    Ипотека и
    рассрочка
    Загородный коттедж №196
    Стоимость от:
    15 183 120
    Проект от: 91 350
    Этажей 2
    Санузлы 3
    Спальни 5
    Смотреть
    Ипотека и
    рассрочка
    Одноэтажный жилой дом СВ-116 в декоративной штукатурке
    Стоимость от:
    7 389 360
    Проект от: 48 600
    Этажей 1
    Санузлы 1
    Спальни 2
    Смотреть
    Ипотека и
    рассрочка
    Одноэтажный барнхаус LATO-85+ PANORAMA
    Стоимость от:
    7 081 800
    Проект от: 47 250
    Этажей 1
    Санузлы 1
    Спальни 2
    Смотреть
    Ипотека и
    рассрочка
    Одноэтажный коттедж Жуковка
    Стоимость от:
    14 335 860
    Проект от: 91 350
    Этажей 1
    Санузлы 2
    Спальни 3
    Смотреть
    Ипотека и
    рассрочка
    Барн-Хаус
    Стоимость от:
    3 878 600
    Проект от: 22 500
    Этажей 1
    Санузлы 1
    Спальни 1
    Смотреть
    Ипотека и
    рассрочка
    Одноэтажный дом Trend 126
    Стоимость от:
    7 027 020
    Проект от: 56 700
    Этажей 1
    Санузлы 2
    Спальни 4
    Смотреть

    Как узнать стоимость дома

    back
    Оставляете заявку
    Вы заполняете форму на сайте или звоните нам. Менеджер Лайвкрафт связывается с вами для уточнения деталей: тип дома, площадь, материалы, участок строительства.
    back
    Консультация и подбор решения
    Наш специалист помогает выбрать оптимальный тип дома и конструкцию с учётом бюджета, сроков и целей — будь то дом для постоянного проживания или дача.
    back
    Расчёт предварительной стоимости
    Инженер делает первичный расчёт стоимости строительства по вашим параметрам: фундамент, коробка, кровля, отделка. Вы получаете смету с разбивкой по этапам.
    back
    Корректировка и утверждение сметы
    При необходимости вносим изменения — например, замену материалов или сокращение этапов. После согласования формируется окончательная фиксированная смета.
    back
    Заключение договора и старт работ
    После утверждения сметы заключаем официальный договор с гарантией. Вы получаете прозрачный график и точную стоимость — без скрытых расходов.

    Заказать конусльтацию по:Двухэтажный дом Давинчи

    Фото 1 Двухэтажный дом Давинчи


      Наши
      контакты

      Дмитров
      Опорный проезд 28Б
      (индустриальный парк Ниагара)
      9:00 до 18:00

      Корзина