4.9
Рейтинг на основании 120 отзывов
Дмитров
Опорный проезд 28Б
(индустриальный парк Ниагара)
Бренд "Дмитров-Дело" c 2008 года на рынке строительства в Дмитрове
Звоните 9:00 до 18:00 8 (915) 055-33-61
Бренд "Дмитров-Дело" c 2008 года на рынке строительства в Дмитрове

Двухэтажный дом — Family 01

Стоимость проекта от:
57 600 ₽
БЕСПЛАТНО! ПРИ ЗАКАЗЕ СТРОИТЕЛЬСТВА
Стоимость строительства от:
8 785 920 ₽
Артикул ART-19947
Дата 26.12.2025
Архитектурный стиль Классический
Количество надземных этажей 2
Круглогодичное проживание Да
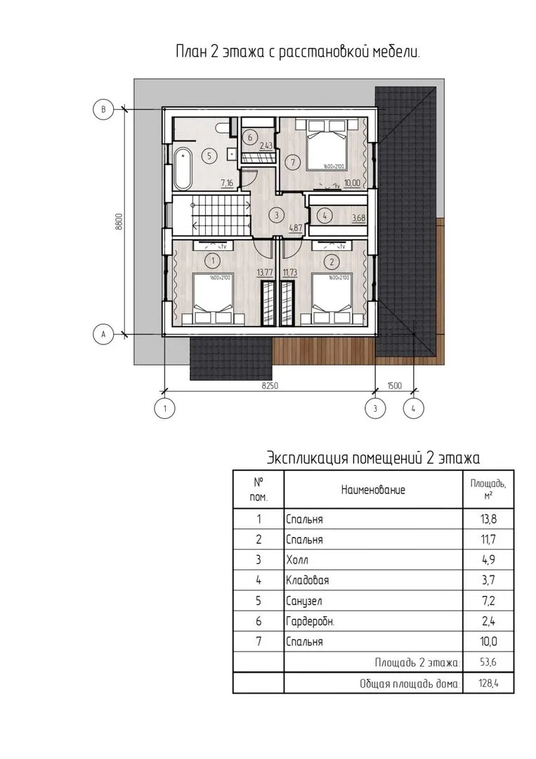
Площадь дома 128 м2
Санузлы 2
Спальни 3

Описание

Незабываемый уют двухэтажного семейного дома Family 01 приглашает сделать его своим «большим» уголком. Хозяйственный классический стиль, выполненный в гармоничных линиях и теплом оттенке, создаёт ощущение домашнего очарования с первого взгляда. Стены, выстроенные из газобетонных блоков, не только дарят энергоэффективность и долгий срок службы, но и поддерживают приятную теплоизоляцию даже в самые холодные дни года, позволяя беспрепятственно наслаждаться круглогодичным комфортом. Просторное распределение помещений по этажам позволяет каждому члену семьи чувствовать себя свободно и уютно. На первом этаже – светлая гостиная, обеденная зона и кухня, где легко готовить семейные блюда, а вторая палуба – спальня, спальное место, кабинет, создающий идеальное место для отдыха и творчества. Терраса, открывающаяся в открытый свет, словно приютивает ароматные вечеров в летний и осенний период. Без лишних балконов и веранд, дом сохраняет чистую, лаконичную линию, одновременно оставляя достаточно места для прогулок и свежего воздуха. Дом Family 01 – это воплощение практичности в стиле. Его простота сочетает экономичность материалов, отсутствие лишних конструкций (пристроенного гаража, чердачных помещений, балконов) с функциональностью, позволяющей каждый квадратный метр использовать с умом. Затишье, тепло, уют и открытость – все это делает вашу будущую обитель особенной. Приглашаем заглянуть, почувствовать атмосферу и мечтать о реальной жизни в этом прекрасном доме!

Характеристики дома

Архитектурный стиль
Автоматизированное регулирование параметров теплоносителя
Да
Балконы/лоджии
Отсутствуют
Чердачное помещение
Нет
Датчики протечки воды
Нет
Эксплуатируемая или зеленая кровля
Нет
Электроснабжение
Центральное
Газоснабжение
Центральное
Изоляция воздушного шума
Да
Камин
Нет
Класс энергоэффективности
B
Класс энергосбережения
A
Количество надземных этажей
2
Круглогодичное проживание
Да
Материал кровли
Фальцевая кровля Кликфальц
Материал перекрытий
Монолитные железобетонные
Материал внешних стен
Материал внутренних перегородок
Блочные
Модульное строительство с конструкциями заводского изготовления
Нет
Объем надземной части
630 м3
Основной материал фасадов
Штукатурка
Отопление
Индивидуальное
Площадь дома
128 м2
Площадь застройки
94 м2
Подвальное помещение
Нет
Показатель компактности здания
0.91
Приборы учета тепловой энергии
Да
Пристроенный гараж/крытая автостоянка
Нет
Противопожарная система
Нет
Санузлы
2
Совмещенная кухня-гостиная
Да
Спальни
3
Терраса
Да
Тип фундамента
Плитный
Тип кровли
Толщина внешних стен
375 мм
Толщина внутренних перегородок
150 мм
Улучшенные шумовые характеристики
Да
Вентиляция
2 варианта
Веранда
Нет
Водоотведение
Локальные очистные сооружения
Водоснабжение
2 варианта
Высота дома
7.13 м
Высота потолков
3 м

Планировка

Фасад дома

Александр

Закажите выезд инженера

Александр

Выездной инженер
Закажите выезд инженера для точной диагностики и профессиональной консультации по инженерным системам. Специалист приедет в удобное время, проведёт осмотр, рассчитает стоимость работ и подберёт оптимальные решения для вашего дома.


    Похожие проекты

    Ипотека и
    рассрочка
    Дом по семейной ипотеке Пригородный — 154
    Стоимость от:
    8 871 120
    Проект от: 66 600
    Этажей 2
    Санузлы 2
    Спальни 4
    Смотреть
    Ипотека и
    рассрочка
    Barling 127
    Стоимость от:
    8 689 340
    Проект от: 57 150
    Этажей 1
    Санузлы 3
    Спальни 4
    Смотреть
    Ипотека и
    рассрочка
    Дом из бруса Д45/2-125,5
    Стоимость от:
    8 245 800
    Проект от: 56 250
    Этажей 2
    Санузлы 2
    Спальни 5
    Смотреть
    Ипотека и
    рассрочка
    Проект 164-2
    Стоимость от:
    11 391 120
    Проект от: 73 350
    Этажей 2
    Санузлы 2
    Спальни 3
    Смотреть
    Ипотека и
    рассрочка
    Модульный дом FL 43 (ФО43)
    Стоимость от:
    3 625 050
    Проект от: 29 250
    Этажей 1
    Санузлы 1
    Спальни 2
    Смотреть
    Ипотека и
    рассрочка
    Проект «Добрыня Барн»
    Стоимость от:
    7 474 940
    Проект от: 54 900
    Этажей 1
    Санузлы 2
    Спальни 3
    Смотреть

    Как узнать стоимость дома

    back
    Оставляете заявку
    Вы заполняете форму на сайте или звоните нам. Менеджер Лайвкрафт связывается с вами для уточнения деталей: тип дома, площадь, материалы, участок строительства.
    back
    Консультация и подбор решения
    Наш специалист помогает выбрать оптимальный тип дома и конструкцию с учётом бюджета, сроков и целей — будь то дом для постоянного проживания или дача.
    back
    Расчёт предварительной стоимости
    Инженер делает первичный расчёт стоимости строительства по вашим параметрам: фундамент, коробка, кровля, отделка. Вы получаете смету с разбивкой по этапам.
    back
    Корректировка и утверждение сметы
    При необходимости вносим изменения — например, замену материалов или сокращение этапов. После согласования формируется окончательная фиксированная смета.
    back
    Заключение договора и старт работ
    После утверждения сметы заключаем официальный договор с гарантией. Вы получаете прозрачный график и точную стоимость — без скрытых расходов.

    Заказать конусльтацию по:Двухэтажный дом — Family 01

    Фото 1 Двухэтажный дом — Family 01


      Наши
      контакты

      Дмитров
      Опорный проезд 28Б
      (индустриальный парк Ниагара)
      9:00 до 18:00

      Корзина