4.9
Рейтинг на основании 120 отзывов
Дмитров
Опорный проезд 28Б
(индустриальный парк Ниагара)
Бренд "Дмитров-Дело" c 2008 года на рынке строительства в Дмитрове
Звоните 9:00 до 18:00 8 (915) 055-33-61
Бренд "Дмитров-Дело" c 2008 года на рынке строительства в Дмитрове

Михалева 114

Стоимость проекта от:
49 050 ₽
БЕСПЛАТНО! ПРИ ЗАКАЗЕ СТРОИТЕЛЬСТВА
Стоимость строительства от:
8 190 380 ₽
Артикул ART-18651
Дата 26.12.2025
Архитектурный стиль Европейский
Количество надземных этажей 1
Круглогодичное проживание Да
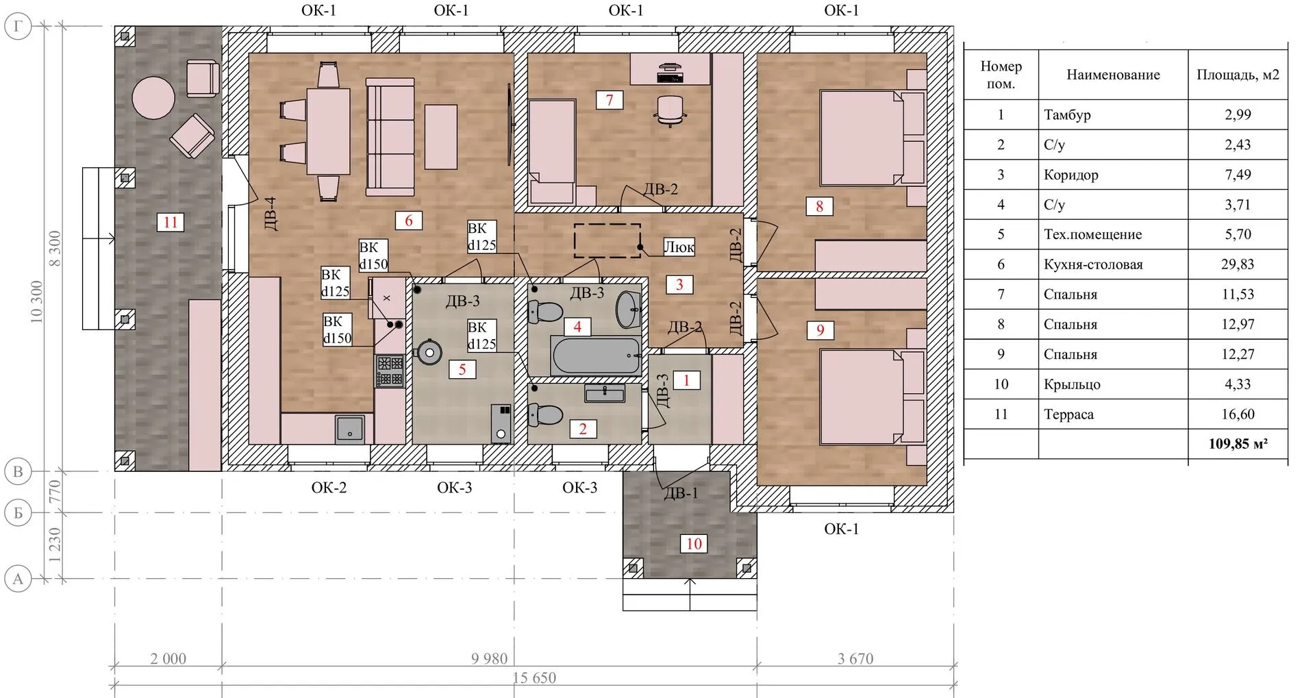
Площадь дома 109 м2
Санузлы 2
Спальни 3

Описание

Уникальный объект на улице Михалёва, 114 – одиннадцатый в нашем каталоге европейского стиля, который заставит вас почувствовать умиротворение и комфорт. Квартира расположена на первом (единственном) надземном этаже, так что вам не придётся восходить по лестнице за свежестью. Величественная четырехскатная крыша в стиле вальм, гармонично сочетается с ровно выложенными керамическими блоками, придавая дому строгую и в то же время уютную атмосферу. Вся конструкция рассчитана на круглогодичное проживание – здесь вам ни о чем не придётся беспокоиться, ведь все детали уже продуманы до мелочей. Внутреннее пространство обустроено с заботой о комфорте современного человека: просторная гостиная с большими окнами, светлый жилой угол, отдельная кухня-столовая. На выходе – элегантная терраса, где можно насладиться утренним кофе, вечерним закатом и простым удовольствием от природы. Отсутствие балконов и прицепных гаражей не является недостатком: вместо этого вы получите чистый, не перенасыщенный вид, а открытый двор и ухоженный задний двор сделают ваш маленький оазис ещё более привлекательным. Если вам нужен дом, в котором не будет нужды в обслуживании балконов и прицепных площадок, а каждая деталь уже заложена для вашего удобства, то эта недвижимость – идеальный выбор. Приглашаем принять участие в индивидуальном просмотре, после чего вы убедитесь, что европейский стиль в сочетании с практичностью и красотой делает этот дом поистине привлекательным для жизни. Запишитесь на просмотр уже сегодня и откройте для себя новый уровень комфорта!

Характеристики дома

Архитектурный стиль
Автоматизированное регулирование параметров теплоносителя
Нет
Балконы/лоджии
Отсутствуют
Чердачное помещение
Нет
Датчики протечки воды
Нет
Эксплуатируемая или зеленая кровля
Нет
Электроснабжение
Центральное
Газоснабжение
Не предусмотрено
Изоляция воздушного шума
Нет
Камин
Нет
Класс энергоэффективности
-
Класс энергосбережения
-
Количество надземных этажей
1
Круглогодичное проживание
Да
Материал кровли
Металлочерепица
Материал перекрытий
Деревянные
Материал внешних стен
Материал внутренних перегородок
Кирпичные
Модульное строительство с конструкциями заводского изготовления
Нет
Объем надземной части
263 м3
Основной материал фасадов
Облицовочный кирпич
Отопление
Индивидуальное
Площадь дома
109 м2
Площадь застройки
137 м2
Подвальное помещение
Нет
Показатель компактности здания
-
Приборы учета тепловой энергии
Нет
Пристроенный гараж/крытая автостоянка
Нет
Противопожарная система
Нет
Санузлы
2
Совмещенная кухня-гостиная
Да
Спальни
3
Терраса
Да
Тип фундамента
Свайно-ростверковый
Толщина внешних стен
500 мм
Толщина внутренних перегородок
120 мм
Улучшенные шумовые характеристики
Нет
Вентиляция
Естественная
Веранда
Нет
Водоотведение
Локальные очистные сооружения
Водоснабжение
Индивидуальное
Высота дома
5 м
Высота потолков
2.8 м

Планировка

Фасад дома

Александр

Закажите выезд инженера

Александр

Выездной инженер
Закажите выезд инженера для точной диагностики и профессиональной консультации по инженерным системам. Специалист приедет в удобное время, проведёт осмотр, рассчитает стоимость работ и подберёт оптимальные решения для вашего дома.


    Похожие проекты

    Ипотека и
    рассрочка
    Проект индивидуального жилого одноэтажного на 154,97 м 2
    Стоимость от:
    11 566 280
    Проект от: 69 300
    Этажей 1
    Санузлы 2
    Спальни 3
    Смотреть
    Ипотека и
    рассрочка
    БГ 55
    Стоимость от:
    16 763 520
    Проект от: 102 600
    Этажей 2
    Санузлы 2
    Спальни 3
    Смотреть
    Ипотека и
    рассрочка
    Модульный дом FL 77 (ДМ77)
    Стоимость от:
    5 521 230
    Проект от: 44 550
    Этажей 1
    Санузлы 1
    Спальни 3
    Смотреть
    Ипотека и
    рассрочка
    Загородный дом «Иланц»
    Стоимость от:
    6 705 160
    Проект от: 44 100
    Этажей 1
    Санузлы 2
    Спальни 3
    Смотреть
    Ипотека и
    рассрочка
    Одноэтажный жилой дом СВ-130
    Стоимость от:
    6 910 420
    Проект от: 45 450
    Этажей 1
    Санузлы 1
    Спальни 3
    Смотреть
    Ипотека и
    рассрочка
    Одноэтажный дом LV-95
    Стоимость от:
    7 065 080
    Проект от: 42 300
    Этажей 1
    Санузлы 2
    Спальни 3
    Смотреть

    Как узнать стоимость дома

    back
    Оставляете заявку
    Вы заполняете форму на сайте или звоните нам. Менеджер Лайвкрафт связывается с вами для уточнения деталей: тип дома, площадь, материалы, участок строительства.
    back
    Консультация и подбор решения
    Наш специалист помогает выбрать оптимальный тип дома и конструкцию с учётом бюджета, сроков и целей — будь то дом для постоянного проживания или дача.
    back
    Расчёт предварительной стоимости
    Инженер делает первичный расчёт стоимости строительства по вашим параметрам: фундамент, коробка, кровля, отделка. Вы получаете смету с разбивкой по этапам.
    back
    Корректировка и утверждение сметы
    При необходимости вносим изменения — например, замену материалов или сокращение этапов. После согласования формируется окончательная фиксированная смета.
    back
    Заключение договора и старт работ
    После утверждения сметы заключаем официальный договор с гарантией. Вы получаете прозрачный график и точную стоимость — без скрытых расходов.

    Заказать конусльтацию по:Михалева 114

    Фото 1 Михалева 114


      Наши
      контакты

      Дмитров
      Опорный проезд 28Б
      (индустриальный парк Ниагара)
      9:00 до 18:00

      Корзина