4.9
Рейтинг на основании 120 отзывов
Дмитров
Опорный проезд 28Б
(индустриальный парк Ниагара)
Бренд "Дмитров-Дело" c 2008 года на рынке строительства в Дмитрове
Звоните 9:00 до 18:00 8 (915) 055-33-61
Бренд "Дмитров-Дело" c 2008 года на рынке строительства в Дмитрове

Двухэтажный дом FIXPLANS — 2258

Стоимость проекта от:
103 950 ₽
БЕСПЛАТНО! ПРИ ЗАКАЗЕ СТРОИТЕЛЬСТВА
Стоимость строительства от:
16 140 240 ₽
Артикул ART-20704
Дата 26.12.2025
Архитектурный стиль Европейский
Количество надземных этажей 2
Круглогодичное проживание Да
Площадь дома 231 м2
Санузлы 3
Спальни 3

Описание

Вдохновленный изысканностью европейских архитектур, этот двухэтажный дом от FIXPLANS — 2258, создан для того, чтобы стать оазисом уюта и комфорта в любой погоде. Пленяя пространство своими высококлассными газобетонными стенами, он сочетает в себе прочность, теплоизоляцию и акустическую изоляцию, создавая живой и тихий дом, где каждое утро начинается с мягкого света и легкого бриза с террасы. Широкий, светлый вход ведёт к уютной гостиной, где просторные окна наполняют комнату естественным светом, а открытые полки создают ощущение простора. Кухня, спроектированная с учётом всех практических потребностей, удобно расположена рядом с обеденной зоной, где можно устроить семейные обеды. Подключённый гараж и крытая автостоянка обеспечивают безопасность и удобство, а чёрдачное помещение открывает дополнительные возможности — будь то кладовая, студия или уютный уголок для чтения. Терраса, выходящая из главной лестницы, приглашает на вечерами к просмотру закатного неба и на летние встречи с друзьями. А в верхнем этаже, где отсутствуют балконы, но присутствует просторный открытельный этаж, можно создать свою идеальную зону отдыха: от домашней студии до маленького спа. Это место, где каждый элемент продуман до мелочей, чтобы вы могли наслаждаться идеальной гармонией пространства и стиля.

Характеристики дома

Архитектурный стиль
Автоматизированное регулирование параметров теплоносителя
-
Балконы/лоджии
Отсутствуют
Чердачное помещение
Да
Датчики протечки воды
-
Эксплуатируемая или зеленая кровля
-
Электроснабжение
Центральное
Газоснабжение
Центральное
Изоляция воздушного шума
-
Камин
Нет
Класс энергоэффективности
-
Класс энергосбережения
-
Количество надземных этажей
2
Круглогодичное проживание
Да
Материал кровли
Металлочерепица
Материал перекрытий
Сборные железобетонные
Материал внешних стен
Материал внутренних перегородок
Пенобетонные
Модульное строительство с конструкциями заводского изготовления
Нет
Объем надземной части
1683 м3
Основной материал фасадов
Штукатурка
Отопление
Индивидуальное
Площадь дома
231 м2
Площадь застройки
240 м2
Подвальное помещение
Нет
Показатель компактности здания
-
Приборы учета тепловой энергии
-
Пристроенный гараж/крытая автостоянка
Да
Противопожарная система
Нет
Санузлы
3
Совмещенная кухня-гостиная
Да
Спальни
3
Терраса
Да
Тип фундамента
Плитный
Толщина внешних стен
450 мм
Толщина внутренних перегородок
100 мм
Улучшенные шумовые характеристики
-
Вентиляция
Естественная
Веранда
Нет
Водоотведение
Локальные очистные сооружения
Водоснабжение
Индивидуальное
Высота дома
6 м
Высота потолков
3 м

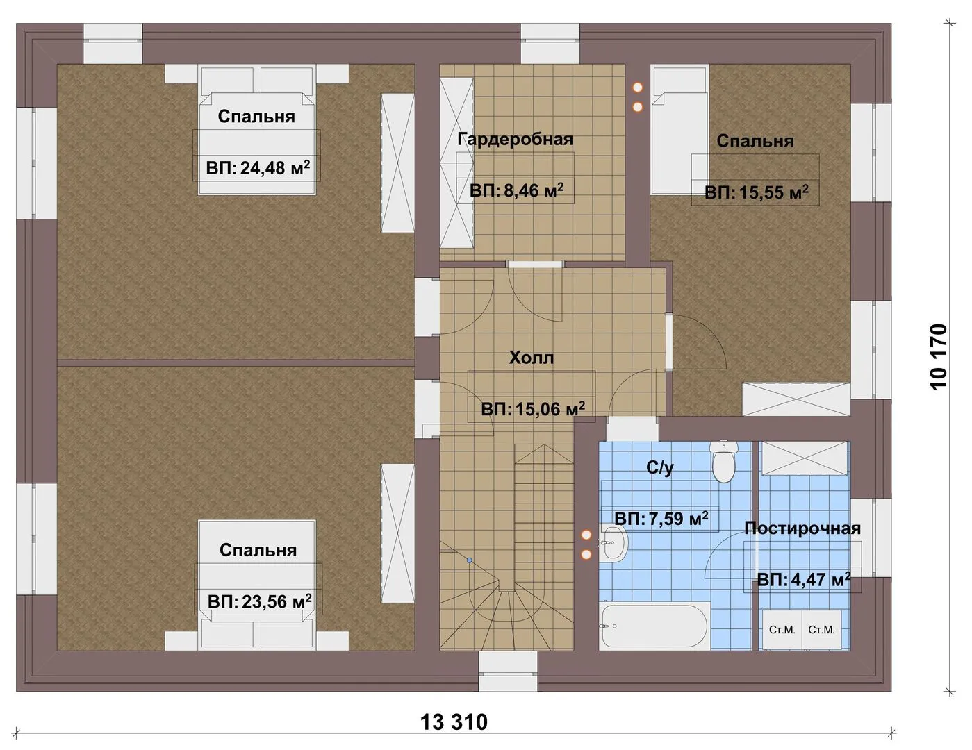
Планировка

Фасад дома

Александр

Закажите выезд инженера

Александр

Выездной инженер
Закажите выезд инженера для точной диагностики и профессиональной консультации по инженерным системам. Специалист приедет в удобное время, проведёт осмотр, рассчитает стоимость работ и подберёт оптимальные решения для вашего дома.


    Похожие проекты

    Ипотека и
    рассрочка
    Мансардный дома Ю-180
    Стоимость от:
    12 571 200
    Проект от: 81 000
    Этажей 2
    Санузлы 2
    Спальни 4
    Смотреть
    Ипотека и
    рассрочка
    Загородный дом ВС-133
    Стоимость от:
    926 640
    Проект от: 157 950
    Этажей 2
    Санузлы 4
    Спальни 2
    Смотреть
    Ипотека и
    рассрочка
    Загородный дом «Рафаэль»
    Стоимость от:
    3 999 930
    Проект от: 31 050
    Этажей 1
    Санузлы 1
    Спальни 1
    Смотреть
    Ипотека и
    рассрочка
    Одноэтажный дом Монс 111
    Стоимость от:
    9 373 540
    Проект от: 61 650
    Этажей 1
    Санузлы 3
    Спальни 3
    Смотреть
    Ипотека и
    рассрочка
    BARN49
    Стоимость от:
    3 011 580
    Проект от: 24 300
    Этажей 1
    Санузлы 1
    Спальни 1
    Смотреть
    Ипотека и
    рассрочка
    Д-120
    Стоимость от:
    7 899 600
    Проект от: 51 750
    Этажей 2
    Санузлы 2
    Спальни 4
    Смотреть

    Как узнать стоимость дома

    back
    Оставляете заявку
    Вы заполняете форму на сайте или звоните нам. Менеджер Лайвкрафт связывается с вами для уточнения деталей: тип дома, площадь, материалы, участок строительства.
    back
    Консультация и подбор решения
    Наш специалист помогает выбрать оптимальный тип дома и конструкцию с учётом бюджета, сроков и целей — будь то дом для постоянного проживания или дача.
    back
    Расчёт предварительной стоимости
    Инженер делает первичный расчёт стоимости строительства по вашим параметрам: фундамент, коробка, кровля, отделка. Вы получаете смету с разбивкой по этапам.
    back
    Корректировка и утверждение сметы
    При необходимости вносим изменения — например, замену материалов или сокращение этапов. После согласования формируется окончательная фиксированная смета.
    back
    Заключение договора и старт работ
    После утверждения сметы заключаем официальный договор с гарантией. Вы получаете прозрачный график и точную стоимость — без скрытых расходов.

    Заказать конусльтацию по:Двухэтажный дом FIXPLANS — 2258

    Фото 1 Двухэтажный дом FIXPLANS — 2258


      Наши
      контакты

      Дмитров
      Опорный проезд 28Б
      (индустриальный парк Ниагара)
      9:00 до 18:00

      Корзина