4.9
Рейтинг на основании 120 отзывов
Дмитров
Опорный проезд 28Б
(индустриальный парк Ниагара)
Бренд "Дмитров-Дело" c 2008 года на рынке строительства в Дмитрове
Звоните 9:00 до 18:00 8 (915) 055-33-61
Бренд "Дмитров-Дело" c 2008 года на рынке строительства в Дмитрове

Двухэтажный дом Ирбис 2

Стоимость проекта от:
45 000 ₽
БЕСПЛАТНО! ПРИ ЗАКАЗЕ СТРОИТЕЛЬСТВА
Стоимость строительства от:
7 483 200 ₽
Артикул ART-16001
Дата 25.12.2025
Архитектурный стиль Классический
Количество надземных этажей 2
Круглогодичное проживание Да
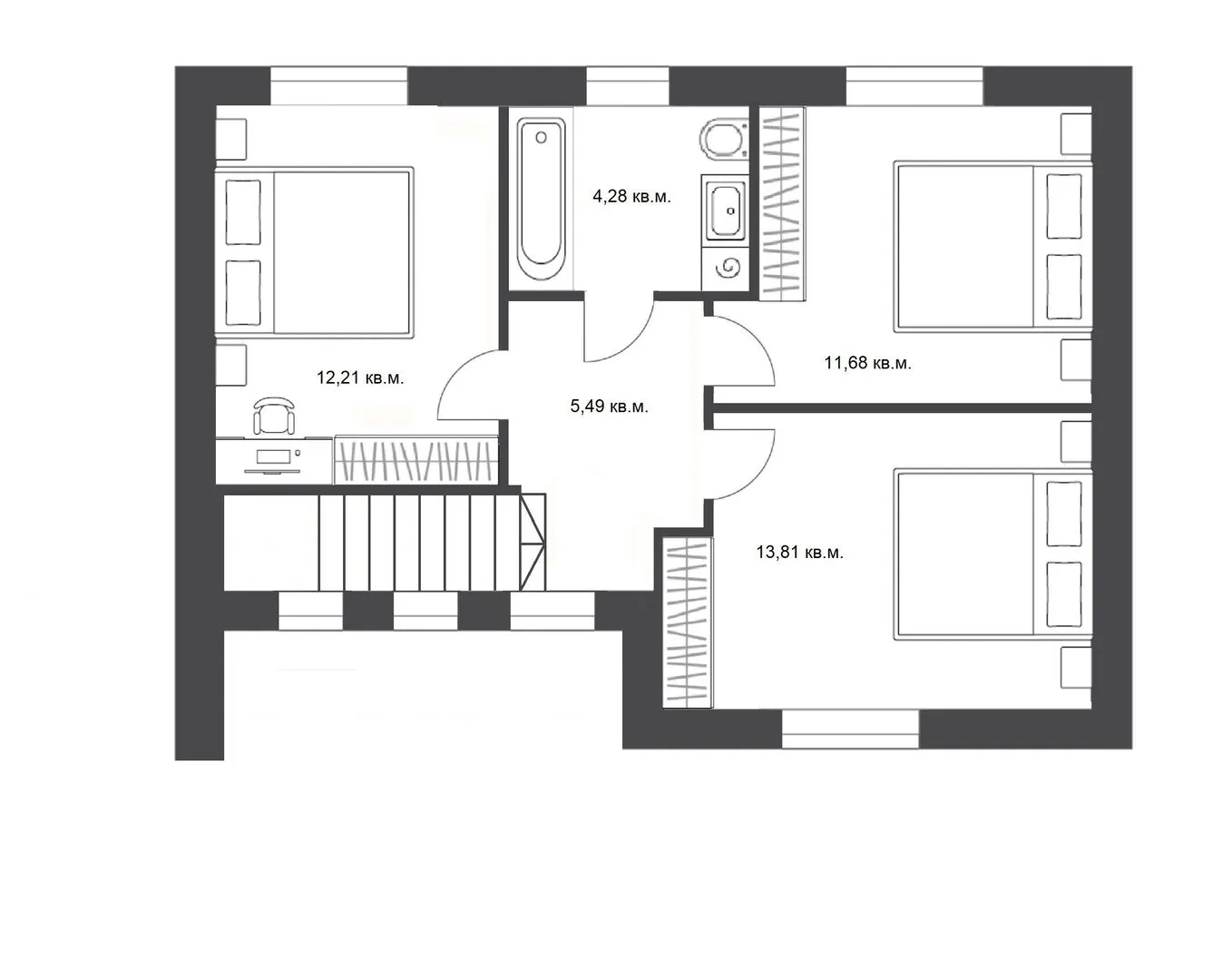
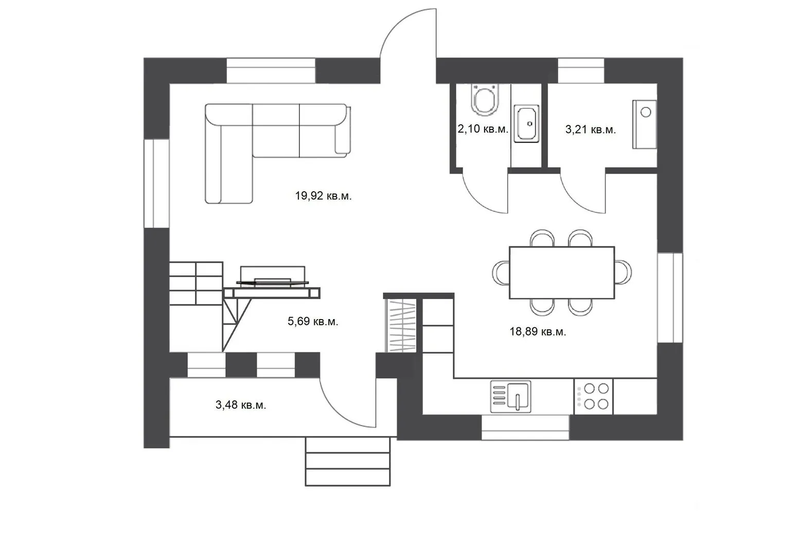
Площадь дома 100 м2
Санузлы 2
Спальни 3

Описание

Добро пожаловать в уютный двухэтажный дом **Ирбис 2** – идеальное сочетание классической элегантности и современной практичности. Его строгий, но в то же время гармоничный фасад наглядно демонстрирует, что здесь встречаются традиции и комфорт. Непревзойденная вместительность и продуманная планировка делают этот дом настоящим оазисом для семейного уюта, а его крепкий газобетонный каркас гарантирует долгую службу при любых погодных условиях. Дом построен с учётом круглогодичного проживания: двускатная крыша защищает от ветра и дождя, а теплоизоляционные газобетонные блоки сохраняют внутреннюю температуру даже в холодную осеннюю и зимнюю пору. Просторные внутренние помещения, наличие двух надземных этажей и продуманная световая проекция придают гостеприимный характер каждому квадратному метру. Окна и двери, выполненные в классическом стиле, дополняют строгую архитектуру, создавая атмосферу уюта и благородства. Ирбис 2 – это дом без компромиссов: без лишних балконов, веранд или чердаков, но с большим потенциалом для вашей индивидуальной доработки. Его открытая планировка позволяет легко адаптировать пространство под ваши желания и потребности, будь то создание домашнего офиса, студии или уютного семейного уголка. Позвольте себе роскошь и спокойствие в простоте – ваш новый дом ждет вас!

Характеристики дома

Архитектурный стиль
Автоматизированное регулирование параметров теплоносителя
Нет
Балконы/лоджии
Отсутствуют
Чердачное помещение
Нет
Датчики протечки воды
Нет
Эксплуатируемая или зеленая кровля
Нет
Электроснабжение
Центральное
Газоснабжение
Не предусмотрено
Изоляция воздушного шума
Да
Камин
Нет
Класс энергоэффективности
-
Класс энергосбережения
-
Количество надземных этажей
2
Круглогодичное проживание
Да
Материал кровли
Металлочерепица
Материал перекрытий
Монолитные железобетонные
Материал внешних стен
Материал внутренних перегородок
Пенобетонные
Модульное строительство с конструкциями заводского изготовления
Нет
Объем надземной части
450 м3
Основной материал фасадов
Облицовочный кирпич
Отопление
Индивидуальное
Площадь дома
100 м2
Площадь застройки
78 м2
Подвальное помещение
Нет
Показатель компактности здания
-
Приборы учета тепловой энергии
Нет
Пристроенный гараж/крытая автостоянка
Нет
Противопожарная система
Нет
Санузлы
2
Совмещенная кухня-гостиная
Да
Спальни
3
Терраса
Нет
Тип фундамента
Ленточный
Тип кровли
Толщина внешних стен
600 мм
Толщина внутренних перегородок
100 мм
Улучшенные шумовые характеристики
Да
Вентиляция
Естественная
Веранда
Нет
Водоотведение
Локальные очистные сооружения
Водоснабжение
Центральное
Высота дома
9 м
Высота потолков
3 м

Планировка

Фасад дома

Александр

Закажите выезд инженера

Александр

Выездной инженер
Закажите выезд инженера для точной диагностики и профессиональной консультации по инженерным системам. Специалист приедет в удобное время, проведёт осмотр, рассчитает стоимость работ и подберёт оптимальные решения для вашего дома.


    Похожие проекты

    Ипотека и
    рассрочка
    Двухэтажный дом КД-68
    Стоимость от:
    4 195 800
    Проект от: 31 500
    Этажей 2
    Санузлы 1
    Спальни 4
    Смотреть
    Ипотека и
    рассрочка
    Одноэтажный дом С-117
    Стоимость от:
    8 262 540
    Проект от: 52 650
    Этажей 1
    Санузлы 2
    Спальни 3
    Смотреть
    Ипотека и
    рассрочка
    Индивидуальный жилой дом 109 м2
    Стоимость от:
    8 674 380
    Проект от: 49 050
    Этажей 1
    Санузлы 2
    Спальни 3
    Смотреть
    Ипотека и
    рассрочка
    Ильмень-92/2
    Стоимость от:
    6 660 480
    Проект от: 41 400
    Этажей 2
    Санузлы 2
    Спальни 3
    Смотреть
    Ипотека и
    рассрочка
    Флэт 2
    Стоимость от:
    5 336 760
    Проект от: 35 100
    Этажей 1
    Санузлы 1
    Спальни 2
    Смотреть
    Ипотека и
    рассрочка
    Загородный дом «УРБАН»
    Стоимость от:
    19 195 200
    Проект от: 121 500
    Этажей 2
    Санузлы 5
    Спальни 4
    Смотреть

    Как узнать стоимость дома

    back
    Оставляете заявку
    Вы заполняете форму на сайте или звоните нам. Менеджер Лайвкрафт связывается с вами для уточнения деталей: тип дома, площадь, материалы, участок строительства.
    back
    Консультация и подбор решения
    Наш специалист помогает выбрать оптимальный тип дома и конструкцию с учётом бюджета, сроков и целей — будь то дом для постоянного проживания или дача.
    back
    Расчёт предварительной стоимости
    Инженер делает первичный расчёт стоимости строительства по вашим параметрам: фундамент, коробка, кровля, отделка. Вы получаете смету с разбивкой по этапам.
    back
    Корректировка и утверждение сметы
    При необходимости вносим изменения — например, замену материалов или сокращение этапов. После согласования формируется окончательная фиксированная смета.
    back
    Заключение договора и старт работ
    После утверждения сметы заключаем официальный договор с гарантией. Вы получаете прозрачный график и точную стоимость — без скрытых расходов.

    Заказать конусльтацию по:Двухэтажный дом Ирбис 2

    Фото 1 Двухэтажный дом Ирбис 2


      Наши
      контакты

      Дмитров
      Опорный проезд 28Б
      (индустриальный парк Ниагара)
      9:00 до 18:00

      Корзина