4.9
Рейтинг на основании 120 отзывов
Дмитров
Опорный проезд 28Б
(индустриальный парк Ниагара)
Бренд "Дмитров-Дело" c 2008 года на рынке строительства в Дмитрове
Звоните 9:00 до 18:00 8 (915) 055-33-61
Бренд "Дмитров-Дело" c 2008 года на рынке строительства в Дмитрове

Одноэтажный загородный дом серии JARDIN 75

Стоимость проекта от:
34 650 ₽
БЕСПЛАТНО! ПРИ ЗАКАЗЕ СТРОИТЕЛЬСТВА
Стоимость строительства от:
186 340 ₽
Артикул ART-11387
Дата 25.12.2025
Архитектурный стиль -
Количество надземных этажей 1
Круглогодичное проживание Да
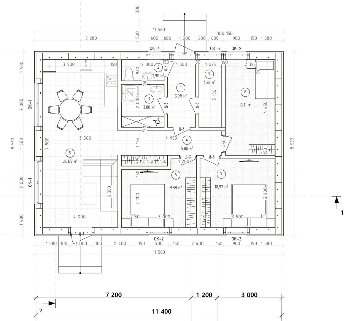
Площадь дома 77 м2
Санузлы 2
Спальни 3

Описание

Дорогой покупатель, приоткрыв дверь в **JARDIN 75** вы попадаете в мир уюта и простоты, где каждый уголок будто создан именно для того, чтобы вы насладились жизнью без суеты и лишних ограждений. Это одноэтажный загородный дом, который идеально подходит для круглогодичного проживания. Полностью открытую и светлую планировку дополняют большие окна, пропускающие в интерьер мягкий дневной свет, а внутренние помещения сохраняют тепло в холодное время года, создавая атмосферу домашнего уюта. Особое внимание стоит уделить практичности пространства. В доме отсутствуют отдельные балконы, лоджии и веранда, но вместо этого предусмотрен вместительный чердачный пол, который может превратиться в уютное детское игровое пространство, студию художника, мини‑офис или даже в гостиную, где будет приятно проводить время с близкими. Это решение позволяет адаптировать дом под любые семейные потребности, не жертвуя общей целостностью дизайна. Дом **JARDIN 75** – это не только эстетика и комфорт, но и упрощенная жизнь без лишних ограждений. Ни один автомобиль не останется без места в закрытую автостоянку, ведь прикрепленные гаражи отсутствуют. Вместе с этим, компактная планировка делает его идеальным выбором как для молодых семей, так и для тех, кто ценит простоту управления пространством. Этот дом – ваш новый уголок покоя, где каждый день начнётся и закончится в гармонии с природой и удобством современного быта.

Характеристики дома

Архитектурный стиль
-
Автоматизированное регулирование параметров теплоносителя
Нет
Балконы/лоджии
Отсутствуют
Чердачное помещение
Да
Датчики протечки воды
Нет
Эксплуатируемая или зеленая кровля
Нет
Электроснабжение
-
Газоснабжение
-
Изоляция воздушного шума
Нет
Камин
Нет
Класс энергоэффективности
-
Класс энергосбережения
-
Количество надземных этажей
1
Круглогодичное проживание
Да
Материал кровли
-
Материал перекрытий
-
Материал внешних стен
-
Материал внутренних перегородок
-
Модульное строительство с конструкциями заводского изготовления
Нет
Объем надземной части
488 м3
Основной материал фасадов
-
Отопление
-
Площадь дома
77 м2
Площадь застройки
96 м2
Подвальное помещение
Нет
Показатель компактности здания
-
Приборы учета тепловой энергии
Нет
Пристроенный гараж/крытая автостоянка
Нет
Противопожарная система
Нет
Санузлы
2
Совмещенная кухня-гостиная
Да
Спальни
3
Терраса
Нет
Тип фундамента
-
Тип кровли
-
Толщина внешних стен
300 мм
Толщина внутренних перегородок
123 мм
Улучшенные шумовые характеристики
Нет
Вентиляция
-
Веранда
Нет
Водоотведение
-
Водоснабжение
-
Высота дома
5.1 м
Высота потолков
3 м

Планировка

Фасад дома

Александр

Закажите выезд инженера

Александр

Выездной инженер
Закажите выезд инженера для точной диагностики и профессиональной консультации по инженерным системам. Специалист приедет в удобное время, проведёт осмотр, рассчитает стоимость работ и подберёт оптимальные решения для вашего дома.


    Похожие проекты

    Ипотека и
    рассрочка
    Загородный дом ВС-129
    Стоимость от:
    16 410 960
    Проект от: 107 550
    Этажей 2
    Санузлы 2
    Спальни 4
    Смотреть
    Ипотека и
    рассрочка
    Barling 127
    Стоимость от:
    8 689 340
    Проект от: 57 150
    Этажей 1
    Санузлы 3
    Спальни 4
    Смотреть
    Ипотека и
    рассрочка
    ЕН-97 м
    Стоимость от:
    7 290 140
    Проект от: 43 650
    Этажей 1
    Санузлы 2
    Спальни 3
    Смотреть
    Ипотека и
    рассрочка
    Двухэтажный дом ХZ
    Стоимость от:
    11 003 280
    Проект от: 66 150
    Этажей 2
    Санузлы 2
    Спальни 4
    Смотреть
    Ипотека и
    рассрочка
    Одноэтажная гармония пространства
    Стоимость от:
    9 901 760
    Проект от: 57 600
    Этажей 1
    Санузлы 1
    Спальни 2
    Смотреть
    Ипотека и
    рассрочка
    Одноэтажный жилой дом из клеёного бруса Велес КБ-198
    Стоимость от:
    13 547 160
    Проект от: 89 100
    Этажей 1
    Санузлы 2
    Спальни 3
    Смотреть

    Как узнать стоимость дома

    back
    Оставляете заявку
    Вы заполняете форму на сайте или звоните нам. Менеджер Лайвкрафт связывается с вами для уточнения деталей: тип дома, площадь, материалы, участок строительства.
    back
    Консультация и подбор решения
    Наш специалист помогает выбрать оптимальный тип дома и конструкцию с учётом бюджета, сроков и целей — будь то дом для постоянного проживания или дача.
    back
    Расчёт предварительной стоимости
    Инженер делает первичный расчёт стоимости строительства по вашим параметрам: фундамент, коробка, кровля, отделка. Вы получаете смету с разбивкой по этапам.
    back
    Корректировка и утверждение сметы
    При необходимости вносим изменения — например, замену материалов или сокращение этапов. После согласования формируется окончательная фиксированная смета.
    back
    Заключение договора и старт работ
    После утверждения сметы заключаем официальный договор с гарантией. Вы получаете прозрачный график и точную стоимость — без скрытых расходов.

    Заказать конусльтацию по:Одноэтажный загородный дом серии JARDIN 75

    Фото 1 Одноэтажный загородный дом серии JARDIN 75


      Наши
      контакты

      Дмитров
      Опорный проезд 28Б
      (индустриальный парк Ниагара)
      9:00 до 18:00

      Корзина