4.9
Рейтинг на основании 120 отзывов
Дмитров
Опорный проезд 28Б
(индустриальный парк Ниагара)
Бренд "Дмитров-Дело" c 2008 года на рынке строительства в Дмитрове
Звоните 9:00 до 18:00 8 (915) 055-33-61
Бренд "Дмитров-Дело" c 2008 года на рынке строительства в Дмитрове

Двухэтажный дом от компании UNIT серии Классика 135 ТК

Стоимость проекта от:
71 550 ₽
БЕСПЛАТНО! ПРИ ЗАКАЗЕ СТРОИТЕЛЬСТВА
Стоимость строительства от:
11 318 160 ₽
Артикул ART-19328
Дата 26.12.2025
Архитектурный стиль Классический
Количество надземных этажей 2
Круглогодичное проживание Да
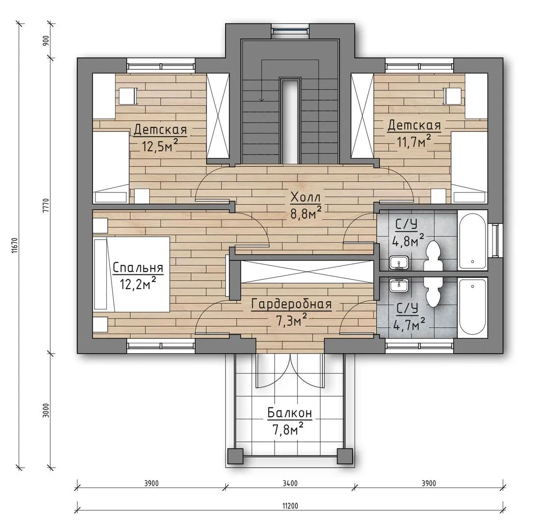
Площадь дома 159 м2
Санузлы 3
Спальни 4

Описание

Добро пожаловать в уют и элегантность, которые предлагает новый двухэтажный дом компании UNIT серии "Классика 135 ТК". Созданный для комфортной жизни в любое время года, этот дом воплощает в себе гармонию традиционного стилистического подхода и современных инженерных решений. Его архитектура в классическом стиле с четко очерченной линией фасада и четырёхскатной (вальмовой) крышей создаёт впечатление прочности и надёжности, но при этом сохраняет изысканность традиционных мотивов. Внутренняя планировка продумана до мелочей: просторные комнаты, выходящие на живописную террасу и один уютный балкон, где за утренним кофе можно наслаждаться свежим воздухом. Прочное газобетонное основание стен обеспечивает теплоизоляцию и звукоизоляцию, гарантируя безмятежный покой внутри дома. Внутри вы ощутите настоящее вдохновение: светлые, светопрозрачные интерьеры, гармонично сочетающиеся с функциональностью ежедневной жизни. Без лишних конструкций, как пристроенный гараж или чердачное помещение, дом сохраняет открытые и свободные пространства, подчёркивая лёгкость и непринуждённость классической эстетики. Дом “Классика” 135 ТК – это не просто жильё, а символ доверия и заботы о будущем. Здесь каждый элемент продуман под ваш комфорт: от теплоизоляции до удобного доступа к внешним площадям. Приглашаем вас открыть для себя атмосферу уюта, где классика встречается с современностью, создавая идеальный дом для тех, кто ценит качество, стиль и надёжность.

Характеристики дома

Архитектурный стиль
Автоматизированное регулирование параметров теплоносителя
Да
Балконы/лоджии
1
Чердачное помещение
Нет
Датчики протечки воды
Нет
Эксплуатируемая или зеленая кровля
Нет
Электроснабжение
Центральное
Газоснабжение
Центральное
Изоляция воздушного шума
Да
Камин
Нет
Класс энергоэффективности
-
Класс энергосбережения
-
Количество надземных этажей
2
Круглогодичное проживание
Да
Материал кровли
Битумная черепица
Материал перекрытий
Монолитные железобетонные
Материал внешних стен
Материал внутренних перегородок
Блочные
Модульное строительство с конструкциями заводского изготовления
Нет
Объем надземной части
759 м3
Основной материал фасадов
Штукатурка
Отопление
Индивидуальное
Площадь дома
159 м2
Площадь застройки
112 м2
Подвальное помещение
Нет
Показатель компактности здания
-
Приборы учета тепловой энергии
Нет
Пристроенный гараж/крытая автостоянка
Нет
Противопожарная система
Нет
Санузлы
3
Совмещенная кухня-гостиная
Да
Спальни
4
Терраса
Да
Тип фундамента
Свайно-ростверковый
Толщина внешних стен
300 мм
Толщина внутренних перегородок
100 мм
Улучшенные шумовые характеристики
Да
Вентиляция
Принудительная
Веранда
Нет
Водоотведение
2 варианта
Водоснабжение
2 варианта
Высота дома
8.78 м
Высота потолков
3.01 м

Планировка

Фасад дома

Александр

Закажите выезд инженера

Александр

Выездной инженер
Закажите выезд инженера для точной диагностики и профессиональной консультации по инженерным системам. Специалист приедет в удобное время, проведёт осмотр, рассчитает стоимость работ и подберёт оптимальные решения для вашего дома.


    Похожие проекты

    Ипотека и
    рассрочка
    Двухэтажный жилой дом 45-24КД.
    Стоимость от:
    11 806 560
    Проект от: 80 550
    Этажей 2
    Санузлы 2
    Спальни 4
    Смотреть
    Ипотека и
    рассрочка
    Индивидуальный жилой дом площадью 90 м2
    Стоимость от:
    7 165 400
    Проект от: 40 500
    Этажей 1
    Санузлы 1
    Спальни 3
    Смотреть
    Ипотека и
    рассрочка
    Загородный дом «Уинстон Шале-2»
    Стоимость от:
    4 517 370
    Проект от: 36 450
    Этажей 1
    Санузлы 1
    Спальни 2
    Смотреть
    Ипотека и
    рассрочка
    Дом Асия
    Стоимость от:
    3 893 460
    Проект от: 29 250
    Этажей 2
    Санузлы 1
    Спальни 1
    Смотреть
    Ипотека и
    рассрочка
    WOODY-10
    Стоимость от:
    11 265 540
    Проект от: 90 900
    Этажей 1
    Санузлы 2
    Спальни 3
    Смотреть
    Ипотека и
    рассрочка
    Уютный загородный дом П-80.24
    Стоимость от:
    6 227 040
    Проект от: 38 700
    Этажей 2
    Санузлы 1
    Спальни 3
    Смотреть

    Как узнать стоимость дома

    back
    Оставляете заявку
    Вы заполняете форму на сайте или звоните нам. Менеджер Лайвкрафт связывается с вами для уточнения деталей: тип дома, площадь, материалы, участок строительства.
    back
    Консультация и подбор решения
    Наш специалист помогает выбрать оптимальный тип дома и конструкцию с учётом бюджета, сроков и целей — будь то дом для постоянного проживания или дача.
    back
    Расчёт предварительной стоимости
    Инженер делает первичный расчёт стоимости строительства по вашим параметрам: фундамент, коробка, кровля, отделка. Вы получаете смету с разбивкой по этапам.
    back
    Корректировка и утверждение сметы
    При необходимости вносим изменения — например, замену материалов или сокращение этапов. После согласования формируется окончательная фиксированная смета.
    back
    Заключение договора и старт работ
    После утверждения сметы заключаем официальный договор с гарантией. Вы получаете прозрачный график и точную стоимость — без скрытых расходов.

    Заказать конусльтацию по:Двухэтажный дом от компании UNIT серии Классика 135 ТК

    Фото 1 Двухэтажный дом от компании UNIT серии Классика 135 ТК


      Наши
      контакты

      Дмитров
      Опорный проезд 28Б
      (индустриальный парк Ниагара)
      9:00 до 18:00

      Корзина