4.9
Рейтинг на основании 120 отзывов
Дмитров
Опорный проезд 28Б
(индустриальный парк Ниагара)
Бренд "Дмитров-Дело" c 2008 года на рынке строительства в Дмитрове
Звоните 9:00 до 18:00 8 (915) 055-33-61
Бренд "Дмитров-Дело" c 2008 года на рынке строительства в Дмитрове

Двухэтажный дом с террасой 59-22КД

Стоимость проекта от:
67 050 ₽
Стоимость строительства от:
9 828 360 ₽
Артикул ART-12665
Дата 25.12.2025
Архитектурный стиль Классический
Количество надземных этажей 2
Круглогодичное проживание Да
Площадь дома 149 м2
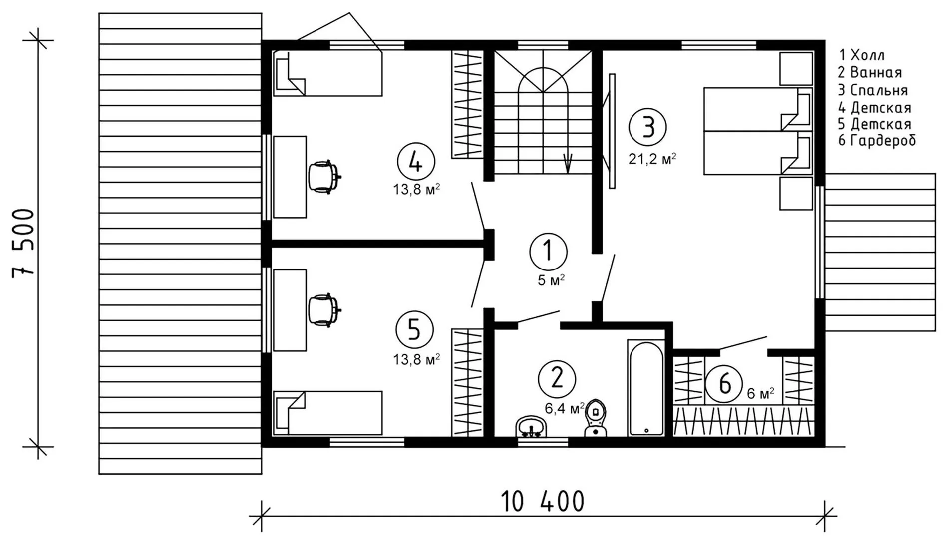
Санузлы 2
Спальни 4

Описание

Приглашаем вас открыть для себя настоящий уголок уюта и комфорта. Этот двухэтажный дом в классическом стиле сочетает в себе неповторимый шарм исторического дизайна и современные технологии строительства. Стены, выполненные из SIP‑панелей, обеспечивают теплоизоляцию и прочность, а двускатная крыша добавляет фасону элегантность и сохраняет традиционный облик. Дом предназначен для круглогодичного проживания – здесь всегда найдётся тёплое укрытие от ветра и дождя, а внутреннее пространство создаёт атмосферу уюта и спокойствия. Особое внимание хочется уделить просторной террасе, которая открывает вам невероятные виды на прилегающую территорию и становится идеальным местом для вечеров с чашечки ароматного кофе или семейных ужинов под открытым небом. Внутри дома есть функциональное чердачное помещение, где можно разместить вещи, создать кабинет или мини‑музей ваших достижений – всё, что нужно, чтобы ваш дом стал вторым домом, в котором хочется остаться. Выбирая этот дом, вы обретаете не просто жильё, а стиль жизни: гармоничное сочетание классичности и современности, благоприятный микроклимат, защищённая от атмосферных осадков крыша и уютный двор, куда каждый уголок напоминает о вашем внимании к деталям. Здесь каждый день начинается и заканчивается с вдохновляющего ощущения домашнего тепла, а в просторах дома вы всегда найдёте своё личное пространство, где можно отдохнуть, поделиться радостью и просто жить.

Характеристики дома

Архитектурный стиль
Классический
Автоматизированное регулирование параметров теплоносителя
Да
Балконы/лоджии
Отсутствуют
Чердачное помещение
Да
Датчики протечки воды
Нет
Эксплуатируемая или зеленая кровля
Нет
Электроснабжение
Центральное
Газоснабжение
Не предусмотрено
Изоляция воздушного шума
Нет
Камин
Нет
Класс энергоэффективности
-
Класс энергосбережения
-
Количество надземных этажей
2
Круглогодичное проживание
Да
Материал кровли
Металлочерепица
Материал перекрытий
Деревянные
Материал внешних стен
SIP-панели
Материал внутренних перегородок
Деревянные
Модульное строительство с конструкциями заводского изготовления
Нет
Объем надземной части
635 м3
Основной материал фасадов
Фасадная плитка
Отопление
Индивидуальное
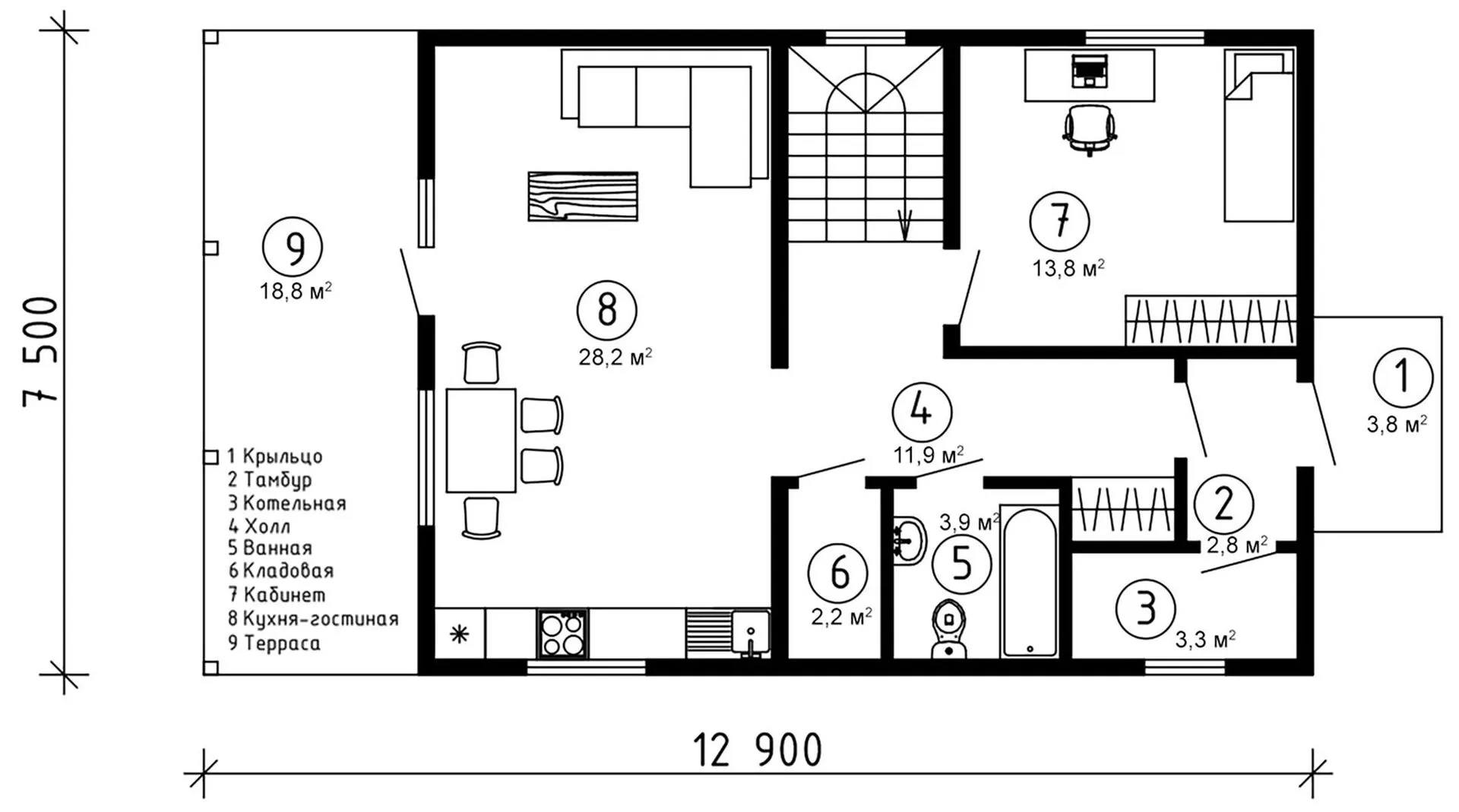
Площадь дома
149 м2
Площадь застройки
100 м2
Подвальное помещение
Нет
Показатель компактности здания
-
Приборы учета тепловой энергии
Нет
Пристроенный гараж/крытая автостоянка
Нет
Противопожарная система
Нет
Санузлы
2
Совмещенная кухня-гостиная
Да
Спальни
4
Терраса
Да
Тип фундамента
Свайный
Тип кровли
Двускатная
Толщина внешних стен
174 мм
Толщина внутренних перегородок
124 мм
Улучшенные шумовые характеристики
Нет
Вентиляция
Естественная
Веранда
Нет
Водоотведение
Локальные очистные сооружения
Водоснабжение
Центральное
Высота дома
8.6 м
Высота потолков
2.8 м

Планировка

Фасад дома

Александр

Закажите выезд инженера

Александр

Выездной инженер
Закажите выезд инженера для точной диагностики и профессиональной консультации по инженерным системам. Специалист приедет в удобное время, проведёт осмотр, рассчитает стоимость работ и подберёт оптимальные решения для вашего дома.


    Похожие проекты

    Ипотека и
    рассрочка
    Авангард
    Стоимость от:
    10 262 780
    Проект от: 58 050
    Этажей 1
    Санузлы 1
    Спальни 3
    Смотреть
    Ипотека и
    рассрочка
    Двухэтажный дом по проекту №2
    Стоимость от:
    6 399 480
    Проект от: 43 650
    Этажей 2
    Санузлы 2
    Спальни 4
    Смотреть
    Ипотека и
    рассрочка
    Одноэтажный барнхаус с сауной LATO-80 Sauna
    Стоимость от:
    3 558 720
    Проект от: 28 800
    Этажей 1
    Санузлы 1
    Спальни 2
    Смотреть
    Ипотека и
    рассрочка
    Одноэтажный дом FIXPLANS — 0611
    Стоимость от:
    8 191 920
    Проект от: 52 200
    Этажей 1
    Санузлы 1
    Спальни 3
    Смотреть
    Ипотека и
    рассрочка
    Загородный дом АС-222
    Стоимость от:
    15 721 200
    Проект от: 101 250
    Этажей 2
    Санузлы 2
    Спальни 3
    Смотреть
    Ипотека и
    рассрочка
    Одноэтажный дом размером 9*12
    Стоимость от:
    8 594 960
    Проект от: 48 600
    Этажей 1
    Санузлы 1
    Спальни 3
    Смотреть

    Как узнать стоимость дома

    back
    Оставляете заявку
    Вы заполняете форму на сайте или звоните нам. Менеджер Лайвкрафт связывается с вами для уточнения деталей: тип дома, площадь, материалы, участок строительства.
    back
    Консультация и подбор решения
    Наш специалист помогает выбрать оптимальный тип дома и конструкцию с учётом бюджета, сроков и целей — будь то дом для постоянного проживания или дача.
    back
    Расчёт предварительной стоимости
    Инженер делает первичный расчёт стоимости строительства по вашим параметрам: фундамент, коробка, кровля, отделка. Вы получаете смету с разбивкой по этапам.
    back
    Корректировка и утверждение сметы
    При необходимости вносим изменения — например, замену материалов или сокращение этапов. После согласования формируется окончательная фиксированная смета.
    back
    Заключение договора и старт работ
    После утверждения сметы заключаем официальный договор с гарантией. Вы получаете прозрачный график и точную стоимость — без скрытых расходов.

    Заказать конусльтацию по:Двухэтажный дом с террасой 59-22КД

    Фото 1 Двухэтажный дом с террасой 59-22КД


      Наши
      контакты

      Дмитров
      Опорный проезд 28Б
      (индустриальный парк Ниагара)
      9:00 до 18:00