4.9
Рейтинг на основании 120 отзывов
Дмитров
Опорный проезд 28Б
(индустриальный парк Ниагара)
Бренд "Дмитров-Дело" c 2008 года на рынке строительства в Дмитрове
Звоните 9:00 до 18:00 8 (915) 055-33-61
Бренд "Дмитров-Дело" c 2008 года на рынке строительства в Дмитрове

Двухэтажный дом СО-209

Стоимость проекта от:
94 050 ₽
БЕСПЛАТНО! ПРИ ЗАКАЗЕ СТРОИТЕЛЬСТВА
Стоимость строительства от:
14 603 760 ₽
Артикул ART-13883
Дата 25.12.2025
Архитектурный стиль Европейский
Количество надземных этажей 2
Круглогодичное проживание Да
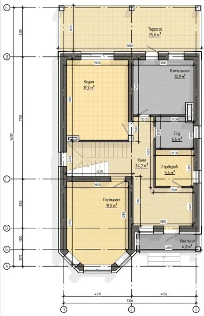
Площадь дома 209 м2
Санузлы 3
Спальни 4

Описание

Великолепный двухэтажный дом СО‑209 — это воплощение европейской элегантности в каждом квадратном метре. Уже с первого взгляда вы почувствуете атмосферу уюта и гармонии: просторные комнаты, высокий потолок, свет, льющийся из больших окон и открывающий вид на живописный ландшафт. Благодаря надежным газобетонным блокам конструкция сохраняет тепло зимой и прохладу летом, обеспечивая комфортное проживание в любое время года. Отдельный балкон и уютная терраса — идеальные места для неспешного вечера с книгой или чашкой ароматного кофе, а также для выращивания зелени и цветов. Система четырёхскатной (вальмовой) кровли не только защищает от непогоды, но и добавляет архитектуре выразительности, подчеркивая строгий, но в то же время мягкий европейский стиль дома. Пристроенный гараж отсутствует, но легкий доступ к дому и прилегающей территории делает этот вариант особенно привлекательным для семей, ценящих простоту и функциональность. Это пространство, где каждая деталь продумана до мелочей: правильный баланс света и тени, оптимальная рельефность фасада и тщательно подобранные материалы создают ощущение роскоши и тепла. Дом СО‑209 приглашает к жизни, где каждый день начинается с пробуждения в атмосфере комфорта и завершает теплым вечерним светом. Приходите и убедитесь сами — ваше идеальное европейское жилище уже ждёт!

Характеристики дома

Архитектурный стиль
Автоматизированное регулирование параметров теплоносителя
Нет
Балконы/лоджии
1
Чердачное помещение
Нет
Датчики протечки воды
Нет
Эксплуатируемая или зеленая кровля
Нет
Электроснабжение
Центральное
Газоснабжение
Центральное
Изоляция воздушного шума
Нет
Камин
Нет
Класс энергоэффективности
-
Класс энергосбережения
-
Количество надземных этажей
2
Круглогодичное проживание
Да
Материал кровли
Металлочерепица
Материал перекрытий
Иной вид материалов перекрытий
Материал внешних стен
Материал внутренних перегородок
Блочные
Модульное строительство с конструкциями заводского изготовления
Нет
Объем надземной части
1213 м3
Основной материал фасадов
Облицовочный кирпич
Отопление
Индивидуальное
Площадь дома
209 м2
Площадь застройки
135 м2
Подвальное помещение
Нет
Показатель компактности здания
-
Приборы учета тепловой энергии
Нет
Пристроенный гараж/крытая автостоянка
Нет
Противопожарная система
Нет
Санузлы
3
Совмещенная кухня-гостиная
Нет
Спальни
4
Терраса
Да
Тип фундамента
Плитный
Толщина внешних стен
520 мм
Толщина внутренних перегородок
300 мм
Улучшенные шумовые характеристики
Нет
Вентиляция
Естественная
Веранда
Нет
Водоотведение
Локальные очистные сооружения
Водоснабжение
Индивидуальное
Высота дома
8.97 м
Высота потолков
2.85 м

Планировка

Фасад дома

Александр

Закажите выезд инженера

Александр

Выездной инженер
Закажите выезд инженера для точной диагностики и профессиональной консультации по инженерным системам. Специалист приедет в удобное время, проведёт осмотр, рассчитает стоимость работ и подберёт оптимальные решения для вашего дома.


    Похожие проекты

    Ипотека и
    рассрочка
    ТН-215
    Стоимость от:
    10 599 710
    Проект от: 77 850
    Этажей 1
    Санузлы 3
    Спальни 3
    Смотреть
    Ипотека и
    рассрочка
    Азов 1-93
    Стоимость от:
    6 130 080
    Проект от: 37 800
    Этажей 1
    Санузлы 2
    Спальни 2
    Смотреть
    Ипотека и
    рассрочка
    Электра 100
    Стоимость от:
    8 756 880
    Проект от: 55 800
    Этажей 1
    Санузлы 2
    Спальни 3
    Смотреть
    Ипотека и
    рассрочка
    Загородный дом Green star
    Стоимость от:
    8 474 400
    Проект от: 54 000
    Этажей 1
    Санузлы 2
    Спальни 3
    Смотреть
    Ипотека и
    рассрочка
    Жилой дом DC-95
    Стоимость от:
    7 006 560
    Проект от: 39 600
    Этажей 1
    Санузлы 2
    Спальни 3
    Смотреть
    Ипотека и
    рассрочка
    Одноэтажный дом FIXPLANS- 1259
    Стоимость от:
    12 005 400
    Проект от: 76 500
    Этажей 1
    Санузлы 2
    Спальни 5
    Смотреть

    Как узнать стоимость дома

    back
    Оставляете заявку
    Вы заполняете форму на сайте или звоните нам. Менеджер Лайвкрафт связывается с вами для уточнения деталей: тип дома, площадь, материалы, участок строительства.
    back
    Консультация и подбор решения
    Наш специалист помогает выбрать оптимальный тип дома и конструкцию с учётом бюджета, сроков и целей — будь то дом для постоянного проживания или дача.
    back
    Расчёт предварительной стоимости
    Инженер делает первичный расчёт стоимости строительства по вашим параметрам: фундамент, коробка, кровля, отделка. Вы получаете смету с разбивкой по этапам.
    back
    Корректировка и утверждение сметы
    При необходимости вносим изменения — например, замену материалов или сокращение этапов. После согласования формируется окончательная фиксированная смета.
    back
    Заключение договора и старт работ
    После утверждения сметы заключаем официальный договор с гарантией. Вы получаете прозрачный график и точную стоимость — без скрытых расходов.

    Заказать конусльтацию по:Двухэтажный дом СО-209

    Фото 1 Двухэтажный дом СО-209


      Наши
      контакты

      Дмитров
      Опорный проезд 28Б
      (индустриальный парк Ниагара)
      9:00 до 18:00

      Корзина