4.9
Рейтинг на основании 120 отзывов
Дмитров
Опорный проезд 28Б
(индустриальный парк Ниагара)
Бренд "Дмитров-Дело" c 2008 года на рынке строительства в Дмитрове
Звоните 9:00 до 18:00 8 (915) 055-33-61
Бренд "Дмитров-Дело" c 2008 года на рынке строительства в Дмитрове

Двухэтажный дом ЦН-124

Стоимость проекта от:
55 800 ₽
БЕСПЛАТНО! ПРИ ЗАКАЗЕ СТРОИТЕЛЬСТВА
Стоимость строительства от:
8 016 600 ₽
Артикул ART-16096
Дата 25.12.2025
Архитектурный стиль Классический
Количество надземных этажей 2
Круглогодичное проживание Да
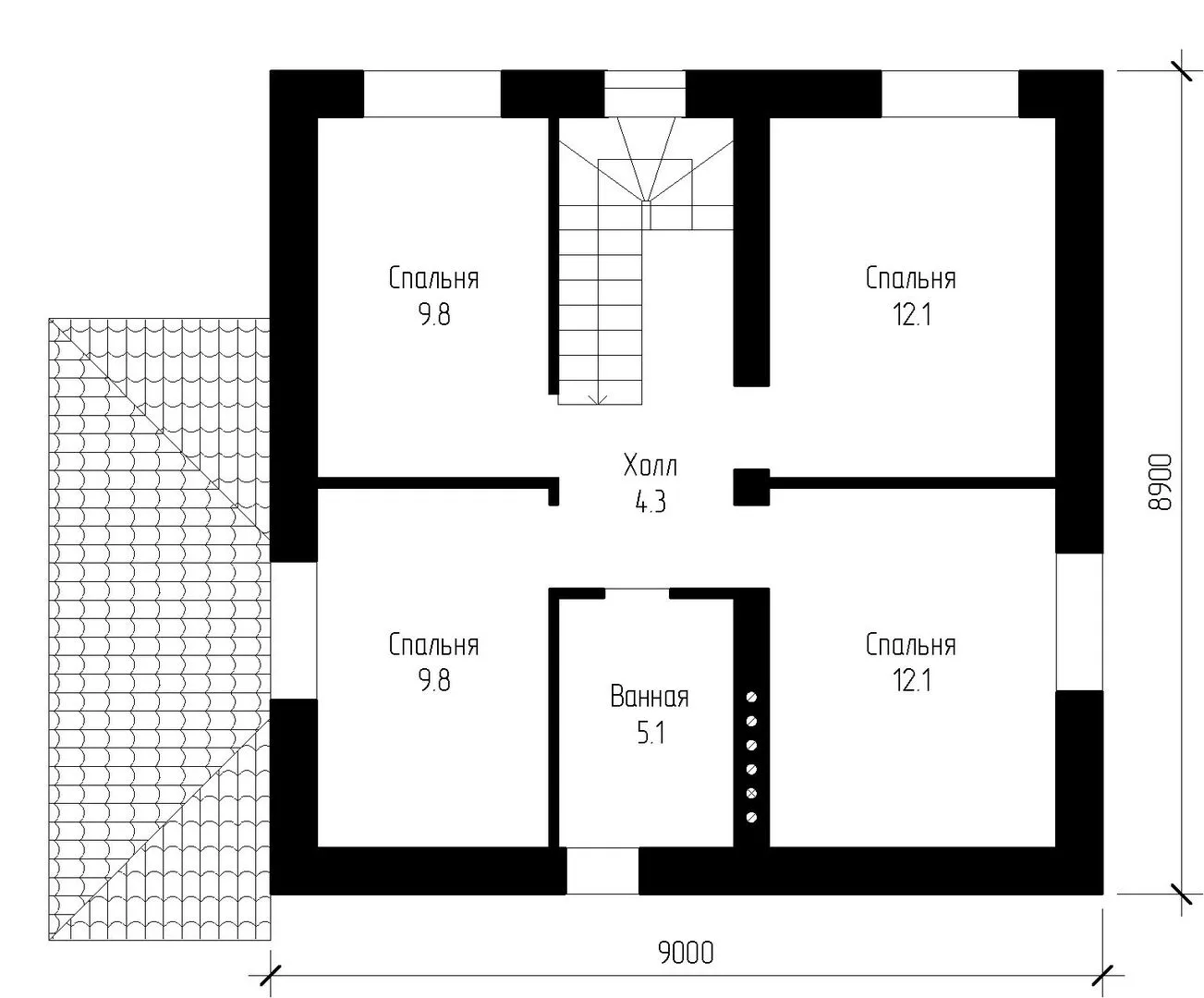
Площадь дома 124 м2
Санузлы 2
Спальни 3

Описание

Приглашаем вас открыть для себя идеальное сочетание традиционной элегантности и современных удобств – двухэтажный дом ЦН‑124. В его классическом архитектурном исполнении ощущается благородная простота, а материал внешних стен – крепкие SIP‑панели – гарантируют тепло и шумо‑изоляцию, создавая уютный микроклимат в любое время года. Деревянная четырехскатная кровля в традиционном вальмовом стиле придает фасаду изысканную вертикаль, а открытая, просторная терраса приглашает наслаждаться свежим воздухом и живописными видами вашей будущей территории. Дом спроектирован так, чтобы каждый момент в его стенах становился особенным. Внутреннее пространство продумано с мыслью о круглогодичном проживании: вам не понадобится лишняя тепловая защита, ведь SIP‑панели обеспечивают энергоэффективность, а ровные, просторные коридоры и комнаты располагают к комфортной семейной жизни. Отсутствие балконов и веранд вовсе не помешает вам насладиться открытым воздухом – терраса уже станет вашим личным оазисом, где можно разместить уютный сад, барбекю или просто полюбоваться рассветом. Эргономичный план, где каждая комната гармонично соединяется с другими, позволяет вам легко организовать пространство как для гостеприимства, так и для семейного уединения. Удобные санузлы, светлые гостиные и практичные кухни сделают ваш дом «домом», где хочется возвращаться. Свяжитесь с нами, и мы с радостью покажем вам как стать владельцем этого уютного уголка, где традиции встречаются с инновациями. Убедитесь сами – ваш новый дом ЦН‑124 ждёт, чтобы стать частью вашей истории.

Характеристики дома

Архитектурный стиль
Автоматизированное регулирование параметров теплоносителя
Да
Балконы/лоджии
Отсутствуют
Чердачное помещение
Нет
Датчики протечки воды
Нет
Эксплуатируемая или зеленая кровля
Нет
Электроснабжение
Центральное
Газоснабжение
Не предусмотрено
Изоляция воздушного шума
Нет
Камин
Нет
Класс энергоэффективности
-
Класс энергосбережения
-
Количество надземных этажей
2
Круглогодичное проживание
Да
Материал кровли
Битумная черепица
Материал перекрытий
Деревянные
Материал внешних стен
Материал внутренних перегородок
Гипсокартонные
Модульное строительство с конструкциями заводского изготовления
Нет
Объем надземной части
663 м3
Основной материал фасадов
Штукатурка
Отопление
Индивидуальное
Площадь дома
124 м2
Площадь застройки
89 м2
Подвальное помещение
Нет
Показатель компактности здания
-
Приборы учета тепловой энергии
Да
Пристроенный гараж/крытая автостоянка
Нет
Противопожарная система
Нет
Санузлы
2
Совмещенная кухня-гостиная
Да
Спальни
3
Терраса
Да
Тип фундамента
Свайно-винтовой
Толщина внешних стен
174 мм
Толщина внутренних перегородок
174 мм
Улучшенные шумовые характеристики
Нет
Вентиляция
Рекуперация
Веранда
Нет
Водоотведение
Локальные очистные сооружения
Водоснабжение
Индивидуальное
Высота дома
9.25 м
Высота потолков
2.8 м

Планировка

Фасад дома

Александр

Закажите выезд инженера

Александр

Выездной инженер
Закажите выезд инженера для точной диагностики и профессиональной консультации по инженерным системам. Специалист приедет в удобное время, проведёт осмотр, рассчитает стоимость работ и подберёт оптимальные решения для вашего дома.


    Похожие проекты

    Ипотека и
    рассрочка
    Элегантный загородный дом в стиле Барн Хаус 7,0х12,6
    Стоимость от:
    4 579 630
    Проект от: 35 550
    Этажей 1
    Санузлы 1
    Спальни 2
    Смотреть
    Ипотека и
    рассрочка
    «Солнечный»
    Стоимость от:
    8 448 720
    Проект от: 55 350
    Этажей 2
    Санузлы 2
    Спальни 3
    Смотреть
    Ипотека и
    рассрочка
    Country
    Стоимость от:
    7 676 240
    Проект от: 54 900
    Этажей 1
    Санузлы 2
    Спальни 3
    Смотреть
    Ипотека и
    рассрочка
    Дом с мансардным этажом «Пилион 2.0»
    Стоимость от:
    7 619 760
    Проект от: 49 050
    Этажей 2
    Санузлы 2
    Спальни 3
    Смотреть
    Ипотека и
    рассрочка
    Одноэтажный загородный дом №239
    Стоимость от:
    8 992 060
    Проект от: 50 850
    Этажей 1
    Санузлы 2
    Спальни 3
    Смотреть
    Ипотека и
    рассрочка
    Дом за год
    Стоимость от:
    11 706 960
    Проект от: 71 550
    Этажей 2
    Санузлы 2
    Спальни 5
    Смотреть

    Как узнать стоимость дома

    back
    Оставляете заявку
    Вы заполняете форму на сайте или звоните нам. Менеджер Лайвкрафт связывается с вами для уточнения деталей: тип дома, площадь, материалы, участок строительства.
    back
    Консультация и подбор решения
    Наш специалист помогает выбрать оптимальный тип дома и конструкцию с учётом бюджета, сроков и целей — будь то дом для постоянного проживания или дача.
    back
    Расчёт предварительной стоимости
    Инженер делает первичный расчёт стоимости строительства по вашим параметрам: фундамент, коробка, кровля, отделка. Вы получаете смету с разбивкой по этапам.
    back
    Корректировка и утверждение сметы
    При необходимости вносим изменения — например, замену материалов или сокращение этапов. После согласования формируется окончательная фиксированная смета.
    back
    Заключение договора и старт работ
    После утверждения сметы заключаем официальный договор с гарантией. Вы получаете прозрачный график и точную стоимость — без скрытых расходов.

    Заказать конусльтацию по:Двухэтажный дом ЦН-124

    Фото 1 Двухэтажный дом ЦН-124


      Наши
      контакты

      Дмитров
      Опорный проезд 28Б
      (индустриальный парк Ниагара)
      9:00 до 18:00

      Корзина