4.9
Рейтинг на основании 120 отзывов
Дмитров
Опорный проезд 28Б
(индустриальный парк Ниагара)
Бренд "Дмитров-Дело" c 2008 года на рынке строительства в Дмитрове
Звоните 9:00 до 18:00 8 (915) 055-33-61
Бренд "Дмитров-Дело" c 2008 года на рынке строительства в Дмитрове

Индивидуальный проект в современном стиле

Стоимость проекта от:
123 300 ₽
БЕСПЛАТНО! ПРИ ЗАКАЗЕ СТРОИТЕЛЬСТВА
Стоимость строительства от:
18 807 360 ₽
Артикул ART-15987
Дата 25.12.2025
Архитектурный стиль Хайтек
Количество надземных этажей 2
Круглогодичное проживание Да
Площадь дома 274 м2
Санузлы 2
Спальни 3

Описание

Насладитесь современным люксом, созданным специально для тех, кто ценит комфорт и стиль. Это двухэтажное жильё в высокотехнологичном стиле сочетает в себе простоту и функциональность: открытые пространства, насыщенные естественным светом и продуманные детали, которые делают жизнь здесь настоящим удовольствием. Благодаря плоскому металлическому кровлю и кирпичным фасадам дом сохраняет тепло круглый год, одновременно оставаясь энергоэффективным и эстетически привлекательным. Каждый этаж продуман так, чтобы максимально раскрыть потенциал пространства. Вместо балконов и веранд – просторные террасы, где можно наслаждаться тихим вечером, наблюдая за городскими огнями. Внутри – просторные коридоры, большие окна, которые пропускают свет и открывают вид на улицу. Пристроенный гараж и крытая автостоянка отсутствуют, что даёт свободу дизайна и экономит ценное пространство. Весь дом построен из прочного кирпича, а плоская крыша подчёркивает контуры современного дизайна, создавая уникальный контраст между классикой и технологическим прогрессом. Если вы ищете дом, где каждый элемент отвечает последним требованиям комфорта и стиля, этот индивидуальный проект – идеальный выбор. Здесь нет лишних деталей: простые линии, качественные материалы и продуманные пространства превращают каждый день в удовольствие. Позвольте своему стилю стать частью этой великолепной архитектурной истории, сотворенной специально для вас.

Характеристики дома

Архитектурный стиль
Автоматизированное регулирование параметров теплоносителя
Нет
Балконы/лоджии
Отсутствуют
Чердачное помещение
Нет
Датчики протечки воды
Нет
Эксплуатируемая или зеленая кровля
Нет
Электроснабжение
Индивидуальное
Газоснабжение
2 варианта
Изоляция воздушного шума
Нет
Камин
Нет
Класс энергоэффективности
-
Класс энергосбережения
-
Количество надземных этажей
2
Круглогодичное проживание
Да
Материал кровли
ПВХ мембраны
Материал перекрытий
Монолитные железобетонные
Материал внешних стен
Материал внутренних перегородок
Кирпичные
Модульное строительство с конструкциями заводского изготовления
Нет
Объем надземной части
-
Основной материал фасадов
Штукатурка
Отопление
2 варианта
Площадь дома
274 м2
Площадь застройки
154 м2
Подвальное помещение
Нет
Показатель компактности здания
-
Приборы учета тепловой энергии
Да
Пристроенный гараж/крытая автостоянка
Нет
Противопожарная система
Нет
Санузлы
2
Совмещенная кухня-гостиная
Да
Спальни
3
Терраса
Да
Тип фундамента
Плитный
Тип кровли
Толщина внешних стен
350 мм
Толщина внутренних перегородок
250 мм
Улучшенные шумовые характеристики
Нет
Вентиляция
3 варианта
Веранда
Нет
Водоотведение
2 варианта
Водоснабжение
Индивидуальное
Высота дома
-
Высота потолков
3.15 м

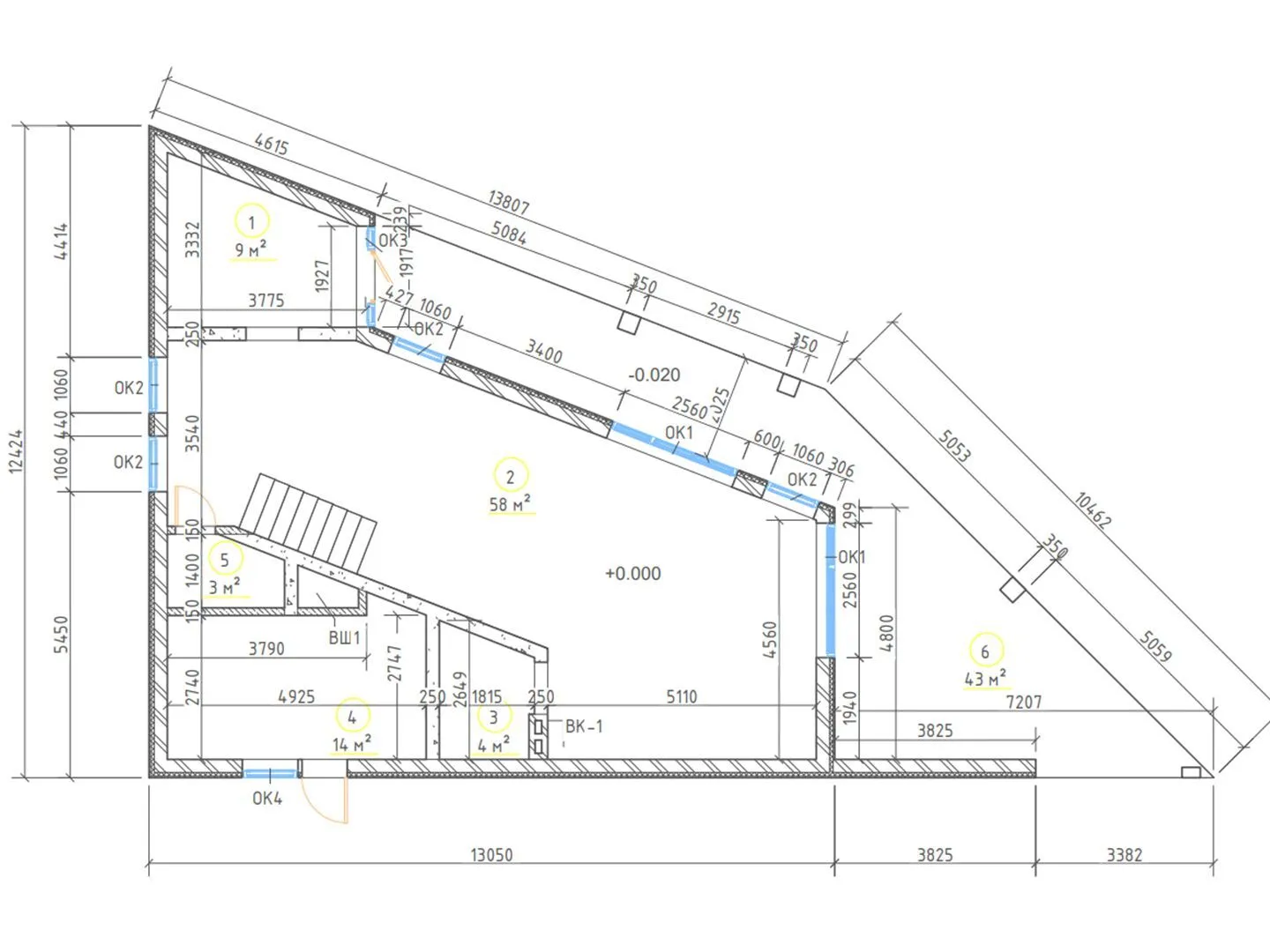
Планировка

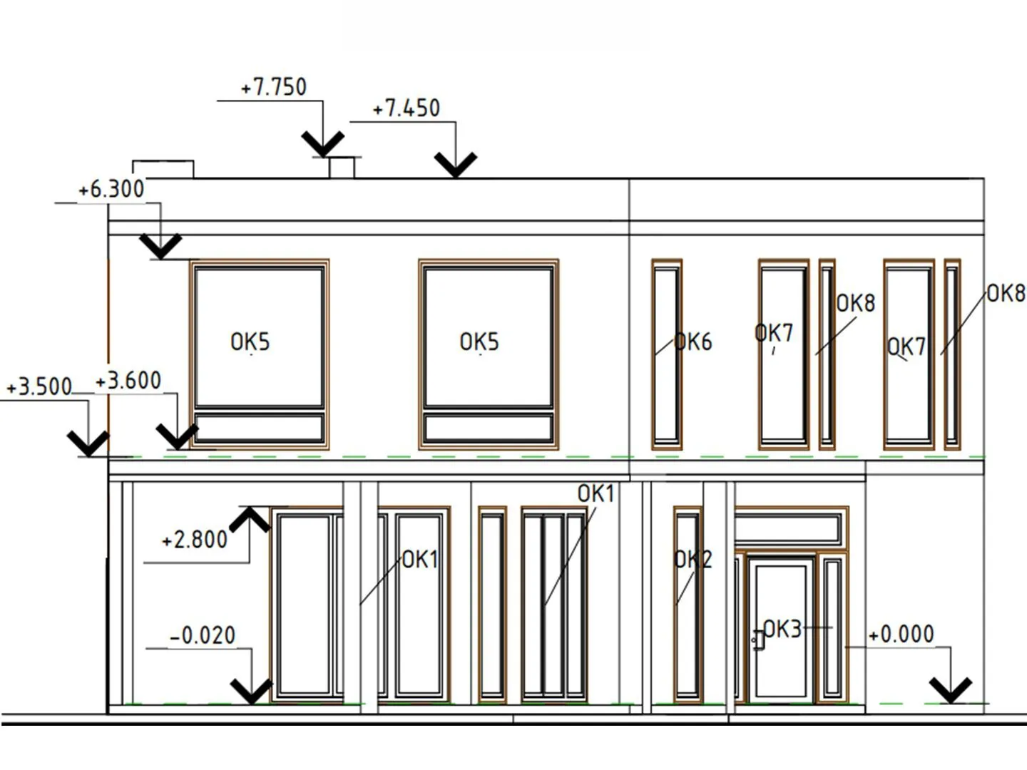
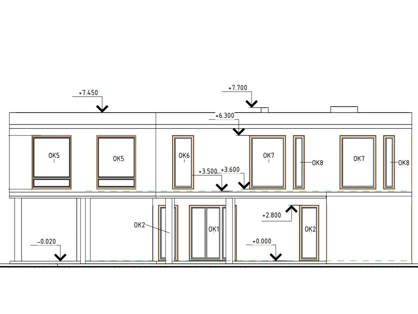
Фасад дома

Александр

Закажите выезд инженера

Александр

Выездной инженер
Закажите выезд инженера для точной диагностики и профессиональной консультации по инженерным системам. Специалист приедет в удобное время, проведёт осмотр, рассчитает стоимость работ и подберёт оптимальные решения для вашего дома.


    Похожие проекты

    Ипотека и
    рассрочка
    Двухэтажный дом с четырьмя спальнями S-204
    Стоимость от:
    17 956 080
    Проект от: 115 650
    Этажей 2
    Санузлы 2
    Спальни 4
    Смотреть
    Ипотека и
    рассрочка
    Жилой дом Уют 1.0
    Стоимость от:
    11 396 320
    Проект от: 68 400
    Этажей 3
    Санузлы 1
    Спальни 3
    Смотреть
    Ипотека и
    рассрочка
    МС-191
    Стоимость от:
    13 116 240
    Проект от: 85 950
    Этажей 2
    Санузлы 2
    Спальни 3
    Смотреть
    Ипотека и
    рассрочка
    Одноэтажный дом ОПТИМУМ 115-1
    Стоимость от:
    7 729 920
    Проект от: 49 950
    Этажей 1
    Санузлы 1
    Спальни 3
    Смотреть
    Ипотека и
    рассрочка
    Дом с просторной террасой над гаражом S3-192-2 (Zx6)
    Стоимость от:
    21 452 880
    Проект от: 129 150
    Этажей 2
    Санузлы 2
    Спальни 4
    Смотреть
    Ипотека и
    рассрочка
    Barn 108
    Стоимость от:
    5 881 920
    Проект от: 43 200
    Этажей 1
    Санузлы 1
    Спальни 2
    Смотреть

    Как узнать стоимость дома

    back
    Оставляете заявку
    Вы заполняете форму на сайте или звоните нам. Менеджер Лайвкрафт связывается с вами для уточнения деталей: тип дома, площадь, материалы, участок строительства.
    back
    Консультация и подбор решения
    Наш специалист помогает выбрать оптимальный тип дома и конструкцию с учётом бюджета, сроков и целей — будь то дом для постоянного проживания или дача.
    back
    Расчёт предварительной стоимости
    Инженер делает первичный расчёт стоимости строительства по вашим параметрам: фундамент, коробка, кровля, отделка. Вы получаете смету с разбивкой по этапам.
    back
    Корректировка и утверждение сметы
    При необходимости вносим изменения — например, замену материалов или сокращение этапов. После согласования формируется окончательная фиксированная смета.
    back
    Заключение договора и старт работ
    После утверждения сметы заключаем официальный договор с гарантией. Вы получаете прозрачный график и точную стоимость — без скрытых расходов.

    Заказать конусльтацию по:Индивидуальный проект в современном стиле

    Фото 1 Индивидуальный проект в современном стиле


      Наши
      контакты

      Дмитров
      Опорный проезд 28Б
      (индустриальный парк Ниагара)
      9:00 до 18:00

      Корзина