4.9
Рейтинг на основании 120 отзывов
Дмитров
Опорный проезд 28Б
(индустриальный парк Ниагара)
Бренд "Дмитров-Дело" c 2008 года на рынке строительства в Дмитрове
Звоните 9:00 до 18:00 8 (915) 055-33-61
Бренд "Дмитров-Дело" c 2008 года на рынке строительства в Дмитрове

Двухэтажный дом «Йорк 145» в стиле барнхаус

Стоимость проекта от:
65 250 ₽
БЕСПЛАТНО! ПРИ ЗАКАЗЕ СТРОИТЕЛЬСТВА
Стоимость строительства от:
8 681 460 ₽
Артикул ART-5894
Дата 26.12.2025
Архитектурный стиль Барнхаус
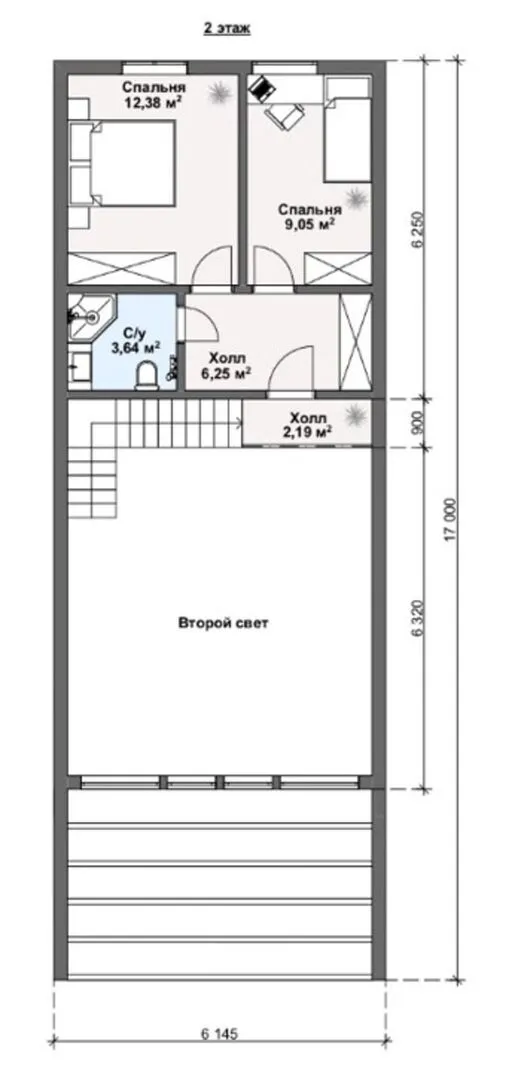
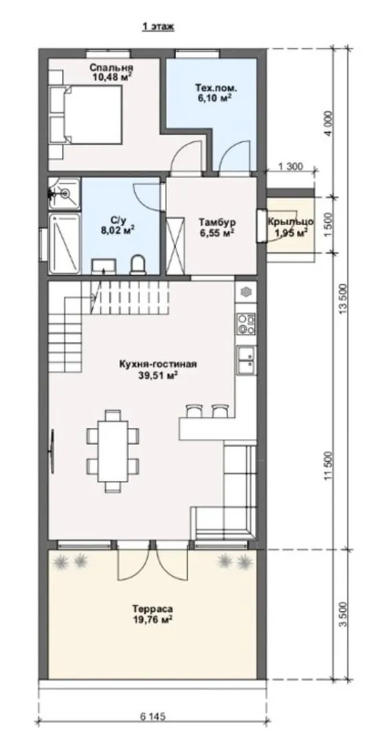
Количество надземных этажей 2
Круглогодичное проживание Да
Площадь дома 145 м2
Санузлы 2
Спальни 3

Описание

Двухэтажный дом «Йорк 145» — это идеальный образец современной интерьера, выполненный в неповторимом стиле барнхаус. Внимательно подобранная деревянная каркасная конструкция и традиционная двускатная крыша создают ощущение уюта и придают дому неповторимый характер, словно он пришёл со страниц старинных книг о сельской жизни. В интерьере дом раскрывается мягкими, тёплыми тонами, которые позволяют ощутить атмосферу дома из настоящего века, при этом комфортом и современным удобством. Просторный жилой фонд с двумя этажами гарантирует полноценное круглогодичное проживание: зонирование с открытыми кухонными и гостинными зонами, уютный спальный уголок и светлая, воздушная терраса позволяют наслаждаться каждым моментом в уединении и комфорте. В «Йорке 145» нет балконов и веранд, но обильное освещение и продуманная планировка компенсируют их отсутствие, создавая идеальную среду для семейных встреч и спокойного отдыха. Дом не требует дополнительных гаражей или загородных территорий, ведь собственный жилой блок уже включает пространство для ваших автомобильных нужд и уютную террасу для вечерних прогулок на свежем воздухе. Это место, где каждая деталь продумана так, чтобы вы чувствовали себя дома с первого взгляда.

Характеристики дома

Архитектурный стиль
Автоматизированное регулирование параметров теплоносителя
-
Балконы/лоджии
Отсутствуют
Чердачное помещение
Нет
Датчики протечки воды
-
Эксплуатируемая или зеленая кровля
-
Электроснабжение
Центральное
Газоснабжение
Индивидуальное
Изоляция воздушного шума
-
Камин
Нет
Класс энергоэффективности
-
Класс энергосбережения
-
Количество надземных этажей
2
Круглогодичное проживание
Да
Материал кровли
Металлочерепица
Материал перекрытий
Деревянные
Материал внешних стен
Материал внутренних перегородок
Деревянные
Модульное строительство с конструкциями заводского изготовления
Нет
Объем надземной части
600 м3
Основной материал фасадов
Дерево
Отопление
Индивидуальное
Площадь дома
145 м2
Площадь застройки
145 м2
Подвальное помещение
Нет
Показатель компактности здания
-
Приборы учета тепловой энергии
-
Пристроенный гараж/крытая автостоянка
Нет
Противопожарная система
Нет
Санузлы
2
Совмещенная кухня-гостиная
Да
Спальни
3
Терраса
Да
Тип фундамента
Свайно-винтовой
Тип кровли
Толщина внешних стен
150 мм
Толщина внутренних перегородок
100 мм
Улучшенные шумовые характеристики
-
Вентиляция
2 варианта
Веранда
Нет
Водоотведение
Локальные очистные сооружения
Водоснабжение
Индивидуальное
Высота дома
7.6 м
Высота потолков
2.2 м

Планировка

Фасад дома

Александр

Закажите выезд инженера

Александр

Выездной инженер
Закажите выезд инженера для точной диагностики и профессиональной консультации по инженерным системам. Специалист приедет в удобное время, проведёт осмотр, рассчитает стоимость работ и подберёт оптимальные решения для вашего дома.


    Похожие проекты

    Ипотека и
    рассрочка
    Загородный дом КВ-1-86
    Стоимость от:
    7 800 760
    Проект от: 44 100
    Этажей 1
    Санузлы 1
    Спальни 3
    Смотреть
    Ипотека и
    рассрочка
    Серия «КЛАССИКА» КД-6
    Стоимость от:
    5 278 500
    Проект от: 40 500
    Этажей 2
    Санузлы 2
    Спальни 4
    Смотреть
    Ипотека и
    рассрочка
    ЛайнДом 01-22-АС
    Стоимость от:
    23 679 120
    Проект от: 149 850
    Этажей 2
    Санузлы 4
    Спальни 7
    Смотреть
    Ипотека и
    рассрочка
    Прохоровка
    Стоимость от:
    5 132 820
    Проект от: 37 800
    Этажей 1
    Санузлы 1
    Спальни 3
    Смотреть
    Ипотека и
    рассрочка
    Иркут
    Стоимость от:
    7 203 240
    Проект от: 45 900
    Этажей 1
    Санузлы 2
    Спальни 3
    Смотреть
    Ипотека и
    рассрочка
    Ладога
    Стоимость от:
    8 839 160
    Проект от: 55 350
    Этажей 1
    Санузлы 2
    Спальни 3
    Смотреть

    Как узнать стоимость дома

    back
    Оставляете заявку
    Вы заполняете форму на сайте или звоните нам. Менеджер Лайвкрафт связывается с вами для уточнения деталей: тип дома, площадь, материалы, участок строительства.
    back
    Консультация и подбор решения
    Наш специалист помогает выбрать оптимальный тип дома и конструкцию с учётом бюджета, сроков и целей — будь то дом для постоянного проживания или дача.
    back
    Расчёт предварительной стоимости
    Инженер делает первичный расчёт стоимости строительства по вашим параметрам: фундамент, коробка, кровля, отделка. Вы получаете смету с разбивкой по этапам.
    back
    Корректировка и утверждение сметы
    При необходимости вносим изменения — например, замену материалов или сокращение этапов. После согласования формируется окончательная фиксированная смета.
    back
    Заключение договора и старт работ
    После утверждения сметы заключаем официальный договор с гарантией. Вы получаете прозрачный график и точную стоимость — без скрытых расходов.

    Заказать конусльтацию по:Двухэтажный дом «Йорк 145» в стиле барнхаус

    Фото 1 Двухэтажный дом «Йорк 145» в стиле барнхаус


      Наши
      контакты

      Дмитров
      Опорный проезд 28Б
      (индустриальный парк Ниагара)
      9:00 до 18:00

      Корзина