4.9
Рейтинг на основании 120 отзывов
Дмитров
Опорный проезд 28Б
(индустриальный парк Ниагара)
Бренд "Дмитров-Дело" c 2008 года на рынке строительства в Дмитрове
Звоните 9:00 до 18:00 8 (915) 055-33-61
Бренд "Дмитров-Дело" c 2008 года на рынке строительства в Дмитрове

Одноэтажный дом СП 37

Стоимость проекта от:
54 450 ₽
Стоимость строительства от:
9 090 620 ₽
Артикул ART-10584
Дата 25.12.2025
Архитектурный стиль Европейский
Количество надземных этажей 1
Круглогодичное проживание Да
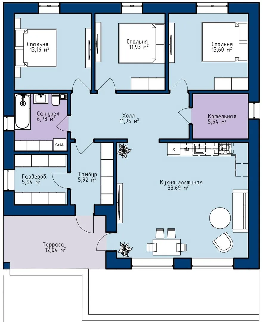
Площадь дома 121 м2
Санузлы 1
Спальни 3

Описание

Вдохновляющий дом, созданный для тех, кто ценит комфорт и стиль в однонамеренной гармонии с природой. Небольшой, но уютный одноэтажный дом площадью 37 м² восстанавливает ощущение европейской элегантности в каждой детали: лёгкая, воздушная отделка газобетонных блоков, аккуратный четырёхскатный (вальмовый) ковер из крышины и открытая терраса приглашают к расслаблению на свежем воздухе прямо в собственном дворе. Просторные комнаты и продуманный планировочный дизайн создают идеальный баланс между функциональностью и эстетикой, позволяя чувствовать себя дома в любой поре года. Здесь нет лишних деталей, которые отвлекают от сути: отсутствуют балконы, лоджии и веранда, а также дополнительные крытые стоянки и чердаки, что делает интерьер максимально свободным и открытым. Тёплый и светлый интерьер с просторными окнами наполнен естественным естественным светом, а терраса становится идеальным выходом за пределы дома, где можно отдохнуть с чашечкой кофе или устроить семейный пикник. Этот дом — воплощение уюта, современного дизайна и непринужденной европейской простоты, готовый принять вас и вашу семью в кругу уюта и гармонии.

Характеристики дома

Архитектурный стиль
Европейский
Автоматизированное регулирование параметров теплоносителя
Нет
Балконы/лоджии
Отсутствуют
Чердачное помещение
Нет
Датчики протечки воды
Нет
Эксплуатируемая или зеленая кровля
Нет
Электроснабжение
2 варианта
Газоснабжение
2 варианта
Изоляция воздушного шума
Нет
Камин
Нет
Класс энергоэффективности
-
Класс энергосбережения
-
Количество надземных этажей
1
Круглогодичное проживание
Да
Материал кровли
Металлочерепица
Материал перекрытий
Монолитные железобетонные
Материал внешних стен
Газобетонные блоки
Материал внутренних перегородок
Блочные
Модульное строительство с конструкциями заводского изготовления
Нет
Объем надземной части
580 м3
Основной материал фасадов
Облицовочный кирпич
Отопление
2 варианта
Площадь дома
121 м2
Площадь застройки
150 м2
Подвальное помещение
Нет
Показатель компактности здания
-
Приборы учета тепловой энергии
Нет
Пристроенный гараж/крытая автостоянка
Нет
Противопожарная система
Нет
Санузлы
1
Совмещенная кухня-гостиная
Да
Спальни
3
Терраса
Да
Тип фундамента
Свайно-ростверковый
Тип кровли
Четырехскатная (вальмовая)
Толщина внешних стен
375 мм
Толщина внутренних перегородок
150 мм
Улучшенные шумовые характеристики
Да
Вентиляция
Естественная
Веранда
Нет
Водоотведение
2 варианта
Водоснабжение
2 варианта
Высота дома
6 м
Высота потолков
3.1 м

Планировка

Фасад дома

Александр

Закажите выезд инженера

Александр

Выездной инженер
Закажите выезд инженера для точной диагностики и профессиональной консультации по инженерным системам. Специалист приедет в удобное время, проведёт осмотр, рассчитает стоимость работ и подберёт оптимальные решения для вашего дома.


    Похожие проекты

    Ипотека и
    рассрочка
    Одноэтажный дом в классическом стиле «Диана»
    Стоимость от:
    8 504 980
    Проект от: 60 300
    Этажей 1
    Санузлы 2
    Спальни 3
    Смотреть
    Ипотека и
    рассрочка
    Проект одноэтажного дома Челси
    Стоимость от:
    12 841 620
    Проект от: 76 950
    Этажей 1
    Санузлы 2
    Спальни 3
    Смотреть
    Ипотека и
    рассрочка
    Одноэтажный дом в стиле современного минимализма S3-168 (Zx111)
    Стоимость от:
    14 766 620
    Проект от: 85 950
    Этажей 1
    Санузлы 3
    Спальни 3
    Смотреть
    Ипотека и
    рассрочка
    Загородный дом «Оптимум» площадью застройки 110м2
    Стоимость от:
    6 539 940
    Проект от: 39 150
    Этажей 1
    Санузлы 1
    Спальни 4
    Смотреть
    Ипотека и
    рассрочка
    Одноэтажный дом 108м2
    Стоимость от:
    6 260 760
    Проект от: 48 600
    Этажей 1
    Санузлы 1
    Спальни 3
    Смотреть
    Ипотека и
    рассрочка
    Загородный дом-182
    Стоимость от:
    12 852 840
    Проект от: 81 900
    Этажей 1
    Санузлы 2
    Спальни 4
    Смотреть

    Как узнать стоимость дома

    back
    Оставляете заявку
    Вы заполняете форму на сайте или звоните нам. Менеджер Лайвкрафт связывается с вами для уточнения деталей: тип дома, площадь, материалы, участок строительства.
    back
    Консультация и подбор решения
    Наш специалист помогает выбрать оптимальный тип дома и конструкцию с учётом бюджета, сроков и целей — будь то дом для постоянного проживания или дача.
    back
    Расчёт предварительной стоимости
    Инженер делает первичный расчёт стоимости строительства по вашим параметрам: фундамент, коробка, кровля, отделка. Вы получаете смету с разбивкой по этапам.
    back
    Корректировка и утверждение сметы
    При необходимости вносим изменения — например, замену материалов или сокращение этапов. После согласования формируется окончательная фиксированная смета.
    back
    Заключение договора и старт работ
    После утверждения сметы заключаем официальный договор с гарантией. Вы получаете прозрачный график и точную стоимость — без скрытых расходов.

    Заказать конусльтацию по:Одноэтажный дом СП 37

    Фото 1 Одноэтажный дом СП 37


      Наши
      контакты

      Дмитров
      Опорный проезд 28Б
      (индустриальный парк Ниагара)
      9:00 до 18:00

      Корзина