4.9
Рейтинг на основании 120 отзывов
Дмитров
Опорный проезд 28Б
(индустриальный парк Ниагара)
Бренд "Дмитров-Дело" c 2008 года на рынке строительства в Дмитрове
Звоните 9:00 до 18:00 8 (915) 055-33-61
Бренд "Дмитров-Дело" c 2008 года на рынке строительства в Дмитрове

ЭС-7

Стоимость проекта от:
42 750 ₽
БЕСПЛАТНО! ПРИ ЗАКАЗЕ СТРОИТЕЛЬСТВА
Стоимость строительства от:
7 562 500 ₽
Артикул ART-14079
Дата 25.12.2025
Архитектурный стиль Европейский
Количество надземных этажей 1
Круглогодичное проживание Да
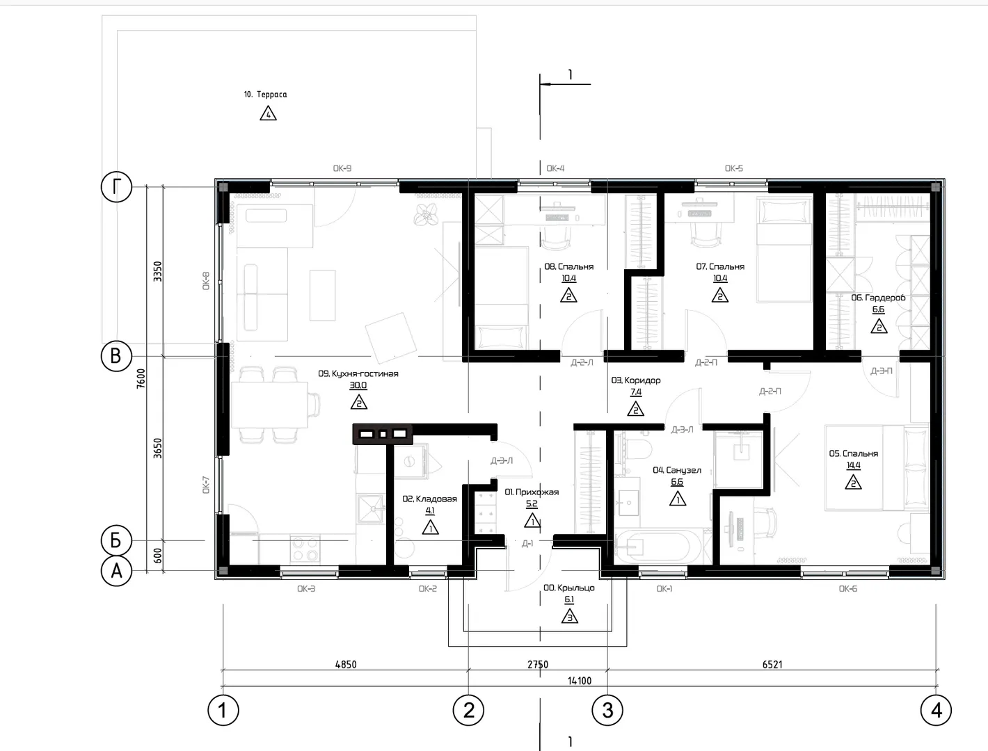
Площадь дома 95 м2
Санузлы 1
Спальни 3

Описание

Представляем вам идеальный выбор для тех, кто ценит уют, тепло и современный европейский комфорт — дом ES‑7. На одном уровне, без лишних этажей, он обеспечивает простоту и удобство повседневной жизни: от кухни до спальной зоны ничего не требует лишнего подъёма. Такой план идеально подходит для семейного проживания, пожилых людей и тех, кто любит проводить время в кругу близких, не отрываясь от простого и практичного решения. Вся конструкция выполнена из газобетонных блоков, что придаёт дому отличную тепло- и звукоизоляцию, а также стойкость к климатическим нагрузкам. Двускатная крыша не только подчёркивает классический европейский стиль, но и позволяет эффективно скапливать тепло и защитить жильё от дождя и снега. Огромная живописная терраса открывает поле зрения на окружающую природу, создавая ощущение свободы и простора прямо перед входной дверью. Благодаря круглогодичному проживанию вы получите уют в любой поре, а строгий, но светлый фасад подчеркнёт ваш вкус к элегантности без лишних деталей. Дом ES‑7 – это не просто пространство, а заботливо продуманный оазис домашнего уюта, где каждый элемент создан, чтобы сделать вашу жизнь проще и красивее. Если вы ищете гармонию между традициями и современностью, комфортом и экономичностью – ваш новый дом уже ждёт вас, готовый подарить надёжное убежище и вдохновение для новых дел.

Характеристики дома

Архитектурный стиль
Автоматизированное регулирование параметров теплоносителя
Нет
Балконы/лоджии
Отсутствуют
Чердачное помещение
Нет
Датчики протечки воды
Нет
Эксплуатируемая или зеленая кровля
Нет
Электроснабжение
Не предусмотрено
Газоснабжение
Не предусмотрено
Изоляция воздушного шума
Нет
Камин
Нет
Класс энергоэффективности
-
Класс энергосбережения
-
Количество надземных этажей
1
Круглогодичное проживание
Да
Материал кровли
Металлочерепица
Материал перекрытий
Деревянные
Материал внешних стен
Материал внутренних перегородок
Блочные
Модульное строительство с конструкциями заводского изготовления
Нет
Объем надземной части
-
Основной материал фасадов
Штукатурка
Отопление
Не предусмотрено
Площадь дома
95 м2
Площадь застройки
101 м2
Подвальное помещение
Нет
Показатель компактности здания
-
Приборы учета тепловой энергии
Нет
Пристроенный гараж/крытая автостоянка
Нет
Противопожарная система
Нет
Санузлы
1
Совмещенная кухня-гостиная
Да
Спальни
3
Терраса
Да
Тип фундамента
Ленточный
Тип кровли
Толщина внешних стен
200 мм
Толщина внутренних перегородок
100 мм
Улучшенные шумовые характеристики
Нет
Вентиляция
Естественная
Веранда
Нет
Водоотведение
Не предусмотрено
Водоснабжение
Не предусмотрено
Высота дома
5.9 м
Высота потолков
3 м

Планировка

Фасад дома

Александр

Закажите выезд инженера

Александр

Выездной инженер
Закажите выезд инженера для точной диагностики и профессиональной консультации по инженерным системам. Специалист приедет в удобное время, проведёт осмотр, рассчитает стоимость работ и подберёт оптимальные решения для вашего дома.


    Похожие проекты

    Ипотека и
    рассрочка
    M.BARN 150
    Стоимость от:
    8 674 380
    Проект от: 70 200
    Этажей 1
    Санузлы 2
    Спальни 4
    Смотреть
    Ипотека и
    рассрочка
    Елена
    Стоимость от:
    8 191 920
    Проект от: 52 200
    Этажей 1
    Санузлы 2
    Спальни 3
    Смотреть
    Ипотека и
    рассрочка
    Проект КВ-2-90
    Стоимость от:
    5 839 680
    Проект от: 36 900
    Этажей 2
    Санузлы 1
    Спальни 4
    Смотреть
    Ипотека и
    рассрочка
    Villa Maria
    Стоимость от:
    11 744 400
    Проект от: 74 250
    Этажей 2
    Санузлы 2
    Спальни 4
    Смотреть
    Ипотека и
    рассрочка
    Модульный дом Барн 75
    Стоимость от:
    4 227 630
    Проект от: 31 050
    Этажей 1
    Санузлы 1
    Спальни 2
    Смотреть
    Ипотека и
    рассрочка
    Каменный дом Маяк
    Стоимость от:
    6 272 420
    Проект от: 36 450
    Этажей 1
    Санузлы 1
    Спальни 3
    Смотреть

    Как узнать стоимость дома

    back
    Оставляете заявку
    Вы заполняете форму на сайте или звоните нам. Менеджер Лайвкрафт связывается с вами для уточнения деталей: тип дома, площадь, материалы, участок строительства.
    back
    Консультация и подбор решения
    Наш специалист помогает выбрать оптимальный тип дома и конструкцию с учётом бюджета, сроков и целей — будь то дом для постоянного проживания или дача.
    back
    Расчёт предварительной стоимости
    Инженер делает первичный расчёт стоимости строительства по вашим параметрам: фундамент, коробка, кровля, отделка. Вы получаете смету с разбивкой по этапам.
    back
    Корректировка и утверждение сметы
    При необходимости вносим изменения — например, замену материалов или сокращение этапов. После согласования формируется окончательная фиксированная смета.
    back
    Заключение договора и старт работ
    После утверждения сметы заключаем официальный договор с гарантией. Вы получаете прозрачный график и точную стоимость — без скрытых расходов.

    Заказать конусльтацию по:ЭС-7

    Фото 1 ЭС-7


      Наши
      контакты

      Дмитров
      Опорный проезд 28Б
      (индустриальный парк Ниагара)
      9:00 до 18:00

      Корзина