4.9
Рейтинг на основании 120 отзывов
Дмитров
Опорный проезд 28Б
(индустриальный парк Ниагара)
Бренд "Дмитров-Дело" c 2008 года на рынке строительства в Дмитрове
Звоните 9:00 до 18:00 8 (915) 055-33-61
Бренд "Дмитров-Дело" c 2008 года на рынке строительства в Дмитрове

Двухэтажный дом Жилино

Стоимость проекта от:
67 950 ₽
БЕСПЛАТНО! ПРИ ЗАКАЗЕ СТРОИТЕЛЬСТВА
Стоимость строительства от:
9 777 840 ₽
Артикул ART-13286
Дата 25.12.2025
Архитектурный стиль Европейский
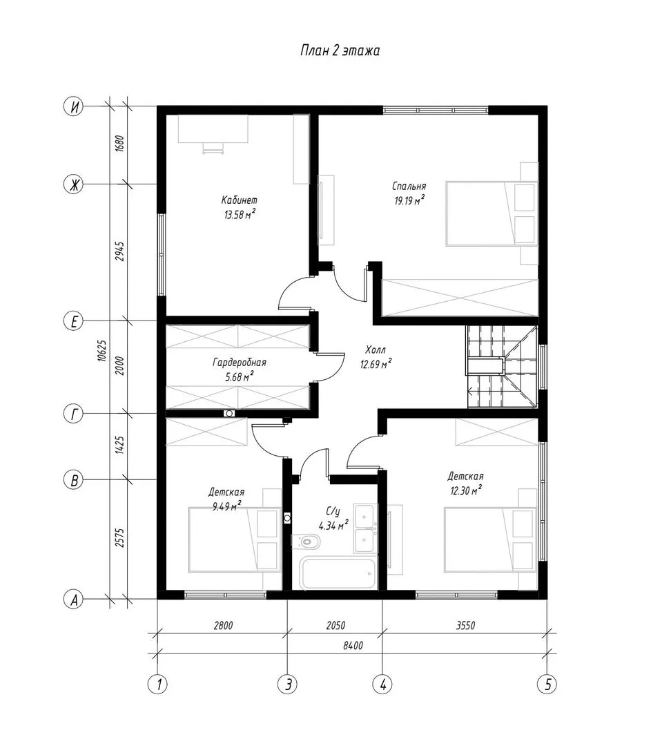
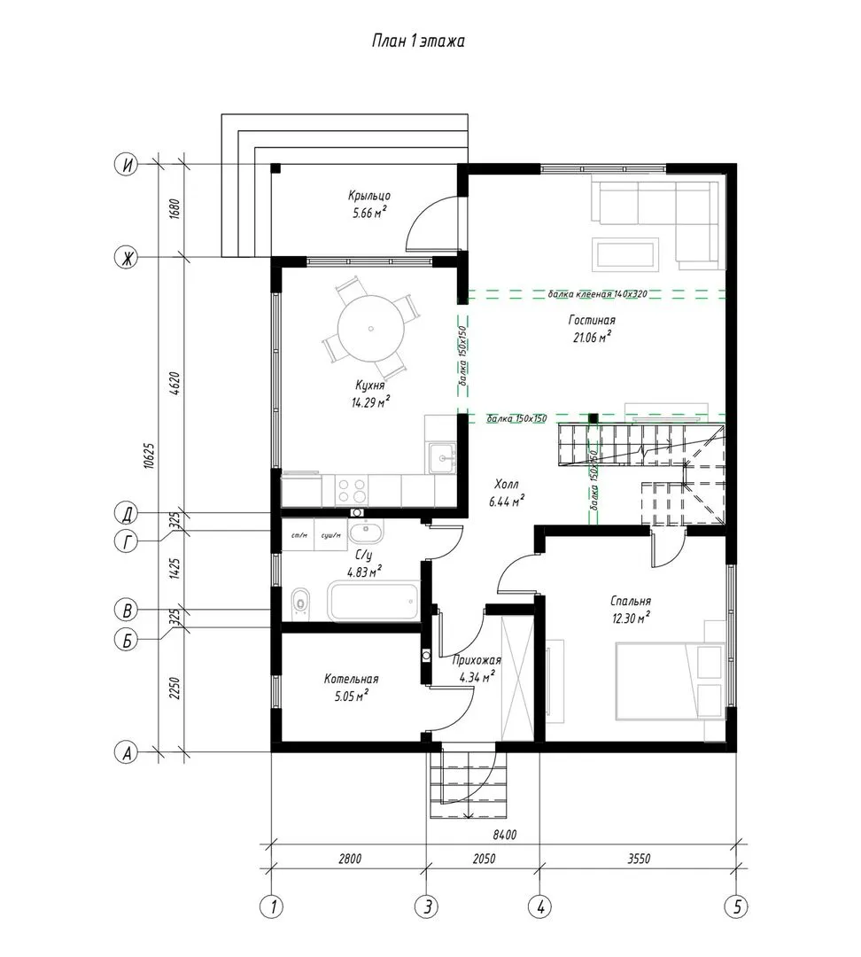
Количество надземных этажей 2
Круглогодичное проживание Да
Площадь дома 151 м2
Санузлы 2
Спальни 4

Описание

Добро пожаловать в элегантный двухэтажный дом в Жилино, где каждая деталь продумана до мелочей, чтобы превратить ваш дом в настоящий оазис уюта и гармонии. Фасад, выполненный из SIP‑панелей, не только гарантирует высокую энергоэффективность и надёжную термоизоляцию, но и придаёт зданию современный, но при этом строгий европейский характер. Четырёхскатная (валмовая) крыша подчёркивает лаконичность архитектурного облика и придаёт дому величественный вид, сохраняя при этом простоту конструкций и экономичность строительства. Круглогодичное проживание обеспечено благодаря продуманной теплоизоляции и современным системам вентиляции, а значит, вы сможете наслаждаться комфортом независимо от погоды. В квартире нет лишних балконов, лоджий и веранд, но всё, что нужно, находится внутри: светлые, просторные комнаты, открытая планировка, которая позволяет легко расставить мебель по душе и открыть пространство для семейных уединенных уголков. Холодные зимние вечера и солнечные летние дни становятся особенным комфортным пространством, где каждый элемент тщательно выбран, чтобы стать естественной частью вашего образа жизни. Этот дом в Жилино — идеальное сочетание эстетики и практичности для тех, кто ценит простоту, энергоэффективность и уверенность в будущем. Погрузитесь в атмосферу современного европейского уюта, где каждый уголок пропитан светом и теплом. Сделайте шаг к новой жизни в этом красивом и функциональном доме, и позвольте своему дому стать вашим самым надёжным союзником в повседневной суете.

Характеристики дома

Архитектурный стиль
Автоматизированное регулирование параметров теплоносителя
Нет
Балконы/лоджии
Отсутствуют
Чердачное помещение
Нет
Датчики протечки воды
Нет
Эксплуатируемая или зеленая кровля
Нет
Электроснабжение
2 варианта
Газоснабжение
Не предусмотрено
Изоляция воздушного шума
Нет
Камин
Нет
Класс энергоэффективности
-
Класс энергосбережения
-
Количество надземных этажей
2
Круглогодичное проживание
Да
Материал кровли
Битумная черепица
Материал перекрытий
Иной вид материалов перекрытий
Материал внешних стен
Материал внутренних перегородок
Деревянные
Модульное строительство с конструкциями заводского изготовления
Нет
Объем надземной части
423 м3
Основной материал фасадов
Штукатурка
Отопление
2 варианта
Площадь дома
151 м2
Площадь застройки
89 м2
Подвальное помещение
Нет
Показатель компактности здания
-
Приборы учета тепловой энергии
Нет
Пристроенный гараж/крытая автостоянка
Нет
Противопожарная система
Нет
Санузлы
2
Совмещенная кухня-гостиная
Нет
Спальни
4
Терраса
Нет
Тип фундамента
Свайный
Толщина внешних стен
174 мм
Толщина внутренних перегородок
174 мм
Улучшенные шумовые характеристики
Нет
Вентиляция
3 варианта
Веранда
Нет
Водоотведение
2 варианта
Водоснабжение
2 варианта
Высота дома
8.4 м
Высота потолков
2.8 м

Планировка

Фасад дома

Александр

Закажите выезд инженера

Александр

Выездной инженер
Закажите выезд инженера для точной диагностики и профессиональной консультации по инженерным системам. Специалист приедет в удобное время, проведёт осмотр, рассчитает стоимость работ и подберёт оптимальные решения для вашего дома.


    Похожие проекты

    Ипотека и
    рассрочка
    «Южный»
    Стоимость от:
    528 000
    Проект от: 90 000
    Этажей 2
    Санузлы 2
    Спальни 3
    Смотреть
    Ипотека и
    рассрочка
    Лагуна
    Стоимость от:
    6 936 600
    Проект от: 54 000
    Этажей 1
    Санузлы 2
    Спальни 4
    Смотреть
    Ипотека и
    рассрочка
    Двухэтажный дом с террасой «Наследник»
    Стоимость от:
    7 731 840
    Проект от: 54 450
    Этажей 2
    Санузлы 2
    Спальни 2
    Смотреть
    Ипотека и
    рассрочка
    Загородный дом с мансардой «Тафт»
    Стоимость от:
    6 781 680
    Проект от: 43 650
    Этажей 2
    Санузлы 3
    Спальни 4
    Смотреть
    Ипотека и
    рассрочка
    Загородный дом «Семейный»
    Стоимость от:
    9 052 340
    Проект от: 52 650
    Этажей 1
    Санузлы 1
    Спальни 3
    Смотреть
    Ипотека и
    рассрочка
    Одноэтажный кирпичный дом ТП-64
    Стоимость от:
    4 439 380
    Проект от: 26 550
    Этажей 1
    Санузлы 1
    Спальни 2
    Смотреть

    Как узнать стоимость дома

    back
    Оставляете заявку
    Вы заполняете форму на сайте или звоните нам. Менеджер Лайвкрафт связывается с вами для уточнения деталей: тип дома, площадь, материалы, участок строительства.
    back
    Консультация и подбор решения
    Наш специалист помогает выбрать оптимальный тип дома и конструкцию с учётом бюджета, сроков и целей — будь то дом для постоянного проживания или дача.
    back
    Расчёт предварительной стоимости
    Инженер делает первичный расчёт стоимости строительства по вашим параметрам: фундамент, коробка, кровля, отделка. Вы получаете смету с разбивкой по этапам.
    back
    Корректировка и утверждение сметы
    При необходимости вносим изменения — например, замену материалов или сокращение этапов. После согласования формируется окончательная фиксированная смета.
    back
    Заключение договора и старт работ
    После утверждения сметы заключаем официальный договор с гарантией. Вы получаете прозрачный график и точную стоимость — без скрытых расходов.

    Заказать конусльтацию по:Двухэтажный дом Жилино

    Фото 1 Двухэтажный дом Жилино


      Наши
      контакты

      Дмитров
      Опорный проезд 28Б
      (индустриальный парк Ниагара)
      9:00 до 18:00

      Корзина